Размещено на портале Архи.ру (www.archi.ru)

26.01.2021

Один памятник вместо другого

Нина Фролова
Объект:
Зал Мойнихана на Пенсильванском вокзале
Адрес:
США, None, Нью-Йорк.
Мастерская:
SOM - Skidmore, Owings & Merrill

Новый зал Мойнихана по проекту SOM для Пенсильванского вокзала в Нью-Йорке призван заменить общественные пространства снесенного в 1965 его исторического здания.

Снос Пенсильванского вокзала, грандиозного сооружения 1910 года архитекторов McKim, Mead & White, стал в 1960-е причиной создания Нью-Йоркской комиссии по охране памятников (New York City Landmarks Preservation Commission), во многом изменив ментальность горожан, до того относившихся к регулярным сносам равнодушно, как к неизбежному знаку обновления. На месте вокзала в стиле бозар построили знаменитую арену «Мэдисон-сквер-гарден», а вся железнодорожная программа оказалась под землей, включая первоначальные 9 платформ и 17 путей.

Зал Мойнихана на Пенсильванском вокзале
Зал Мойнихана на Пенсильванском вокзале
Фото: Lucas Blair Simpson © SOM

Эта новая Пенн-стейшн редко упоминается в архитектурных текстах без эпитетов «тесная» и «темная», особенно по сравнению с роскошными пространствами старой, вдохновленной термами Каракаллы. Отдельной проблемой стало то, что подземный вокзал рассчитан на 200 000 человек в день, т. к. в 1960-е популярность железнодорожного транспорта по многим причинам упала, и снижение вместимости сочли разумным, но пассажиропоток с тех пор постоянно рос, превысив в 2010-е годы 600 000 в сутки. Это создавало особые сложности и даже небезопасную давку в час-пик.
Зал Мойнихана на Пенсильванском вокзале
Зал Мойнихана на Пенсильванском вокзале
Фото: Lucas Blair Simpson © SOM

Решение проблемы предложил сенатор Доминик Мойнихан. Рядом с вокзалом в 1913 по проекту тех же McKim, Mead & White, был построен вместительный почтамт, который к концу XX века опустел на 95% – для доставки посылок и писем уже не использовали поезда, заменив их грузовиками, которым не нужно было здание в центре города. Почтамт расположен над подземными платформами Пенн-стейшн, поэтому логичным было превратить его в «реинкарнацию» вокзала 1910 года. Проект в конце 1990-х был поручен SOM, но реализация его шла непросто, поэтому первая, небольшая очередь открылась в 2017, а основная часть, зал Мойнихана, названный в честь уже покойного идейного вдохновителя этого плана, заработал для пассажиров только 1 января этого года.
Зал Мойнихана на Пенсильванском вокзале
Зал Мойнихана на Пенсильванском вокзале
Фото: Lucas Blair Simpson © SOM

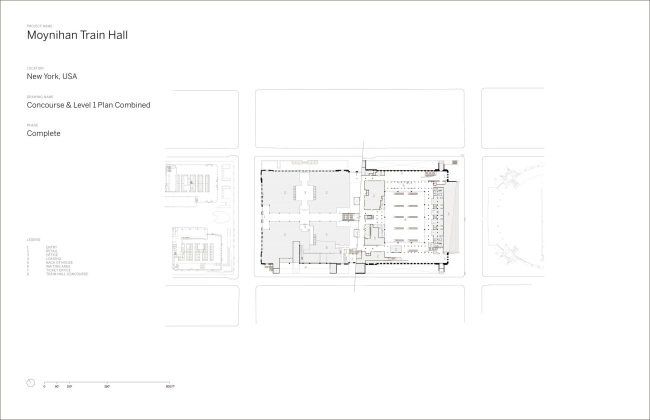
Вокзальным пространством служит бывший сортировочный «цех» почтамта. Архитекторы с помощью немецких инженеров schlaich bergermann partner перекрыли его стеклянными сводами на тросах и жестких стальных конструкциях. Опираются они на три исторические фермы, скрывавшиеся ранее в кровле почтамта, но теперь открытые взгляду. По краям стеклянные панели (всего их 500) утолщаются, чтобы выдержать нагрузку, а по центру каждого свода стекло тоньше, площадь его больше – чтобы пропускать максимум света, который теперь проникает и под землю, к поездам. Именно таким, со светопрозрачной кровлей и солнечными лучами на подземных платформах, был вокзал 1910 года, поэтому авторы проекта говорят о «возращении» естественного освещения.
Зал Мойнихана на Пенсильванском вокзале Фото: Nicholas Knight, предоставлено Empire State Development
Зал Мойнихана на Пенсильванском вокзале
Фото: Nicholas Knight, предоставлено Empire State Development
Зал Мойнихана на Пенсильванском вокзале Фото: Lucas Blair Simpson © SOM
Зал Мойнихана на Пенсильванском вокзале
Фото: Lucas Blair Simpson © SOM
Зал Мойнихана на Пенсильванском вокзале Фото: Lucas Blair Simpson © SOM
Зал Мойнихана на Пенсильванском вокзале
Фото: Lucas Blair Simpson © SOM
Зал Мойнихана на Пенсильванском вокзале Фото: Lucas Blair Simpson © SOM
Зал Мойнихана на Пенсильванском вокзале
Фото: Lucas Blair Simpson © SOM
Зал Мойнихана на Пенсильванском вокзале Фото: Nicholas Knight, предоставлено Empire State Development
Зал Мойнихана на Пенсильванском вокзале
Фото: Nicholas Knight, предоставлено Empire State Development
Зал Мойнихана на Пенсильванском вокзале Фото: Nicholas Knight, предоставлено Empire State Development
Зал Мойнихана на Пенсильванском вокзале
Фото: Nicholas Knight, предоставлено Empire State Development
Зал Мойнихана на Пенсильванском вокзале Фото: Nicholas Knight, предоставлено Empire State Development
Зал Мойнихана на Пенсильванском вокзале
Фото: Nicholas Knight, предоставлено Empire State Development
Зал Мойнихана на Пенсильванском вокзале Фото: Nicholas Knight, предоставлено Empire State Development
Зал Мойнихана на Пенсильванском вокзале
Фото: Nicholas Knight, предоставлено Empire State Development
Зал Мойнихана на Пенсильванском вокзале Фото: Nicholas Knight, предоставлено Empire State Development
Зал Мойнихана на Пенсильванском вокзале
Фото: Nicholas Knight, предоставлено Empire State Development
Зал Мойнихана на Пенсильванском вокзале Фото: Nicholas Knight, предоставлено Empire State Development
Зал Мойнихана на Пенсильванском вокзале
Фото: Nicholas Knight, предоставлено Empire State Development
Зал Мойнихана на Пенсильванском вокзале Фото: Nicholas Knight, предоставлено Empire State Development
Зал Мойнихана на Пенсильванском вокзале
Фото: Nicholas Knight, предоставлено Empire State Development

Почтамт обладает эффектным портиком, то есть у вокзала вновь есть парадный вход – наряду с несколькими другими. В интерьере широко использовали характерный для Нью-Йорка рубежа веков известняк – «теннессийский мрамор», чтобы обеспечить преемственность. Кроме собственно зала под стеклянными сводами, с напоминающими об традиционных часами авторства Pennoyer Architects, проект включает в себя зоны ожидания, билетные кассы и информационные киоски, фуд-корт, представительства железнодорожных компаний (их дизайном занимались другие бюро): все это значительно облегчает жизнь пассажирам, хотя большая на 50% площадь, свет и интуитивно понятная планировка – все же самое важное.
Зал Мойнихана на Пенсильванском вокзале
Зал Мойнихана на Пенсильванском вокзале
Фото: Nicholas Knight, предоставлено Empire State Development

Не забыли об искусстве: для зала Мойнихана поработали, в частности, скандинавские художники Элмгрин и Драгсет, создав на удивление нейтральную для них потолочную инсталляцию «Улей».
Зал Мойнихана на Пенсильванском вокзале
Зал Мойнихана на Пенсильванском вокзале
Фото: Lucas Blair Simpson © SOM

Финансирование проекта (он обошелся примерно в 1,5 млрд долларов) частично обеспечили офисы для Facebook и железнодорожной компании Amtrak, магазины и рестораны. Когда появилась первая Пенн-стейшн, эта часть Манхэттена была во многом промышленной, но в наши дни, с реализацией масштабных проектов Hudson Yards и Manhattan West, обновленный вокзал, считающийся крупнейшим транспортным узлом Северного полушария, приобретает и «районное» значение общественного центра, считают архитекторы.
Зал Мойнихана на Пенсильванском вокзале
Зал Мойнихана на Пенсильванском вокзале
Фото: Nicholas Knight, предоставлено Empire State Development
Элмгрин и Драгсет. «Улей» (2020).
Нержавеющая сталь, алюминий, поликарбонат, светодиодные лампы, лак.
По заказу Empire State Development совместно с Public Art Fund для зала Мойнихана. Фото: Nicholas Knight, предоставлено Empire State Development & Public Art Fund, NY
Элмгрин и Драгсет. «Улей» (2020). Нержавеющая сталь, алюминий, поликарбонат, светодиодные лампы, лак. По заказу Empire State Development совместно с Public Art Fund для зала Мойнихана.
Фото: Nicholas Knight, предоставлено Empire State Development & Public Art Fund, NY
Элмгрин и Драгсет. «Улей» (2020).
Нержавеющая сталь, алюминий, поликарбонат, светодиодные лампы, лак.
По заказу Empire State Development совместно с Public Art Fund для зала Мойнихана. Фото: Nicholas Knight, предоставлено Empire State Development & Public Art Fund, NY
Элмгрин и Драгсет. «Улей» (2020). Нержавеющая сталь, алюминий, поликарбонат, светодиодные лампы, лак. По заказу Empire State Development совместно с Public Art Fund для зала Мойнихана.
Фото: Nicholas Knight, предоставлено Empire State Development & Public Art Fund, NY
Элмгрин и Драгсет. «Улей» (2020).
Нержавеющая сталь, алюминий, поликарбонат, светодиодные лампы, лак.
По заказу Empire State Development совместно с Public Art Fund для зала Мойнихана. Фото: Nicholas Knight, предоставлено Empire State Development & Public Art Fund, NY
Элмгрин и Драгсет. «Улей» (2020). Нержавеющая сталь, алюминий, поликарбонат, светодиодные лампы, лак. По заказу Empire State Development совместно с Public Art Fund для зала Мойнихана.
Фото: Nicholas Knight, предоставлено Empire State Development & Public Art Fund, NY
Элмгрин и Драгсет. «Улей» (2020).
Нержавеющая сталь, алюминий, поликарбонат, светодиодные лампы, лак.
По заказу Empire State Development совместно с Public Art Fund для зала Мойнихана. Фото: Nicholas Knight, предоставлено Empire State Development & Public Art Fund, NY
Элмгрин и Драгсет. «Улей» (2020). Нержавеющая сталь, алюминий, поликарбонат, светодиодные лампы, лак. По заказу Empire State Development совместно с Public Art Fund для зала Мойнихана.
Фото: Nicholas Knight, предоставлено Empire State Development & Public Art Fund, NY
Элмгрин и Драгсет. «Улей» (2020).
Нержавеющая сталь, алюминий, поликарбонат, светодиодные лампы, лак.
По заказу Empire State Development совместно с Public Art Fund для зала Мойнихана. Фото: Nicholas Knight, предоставлено Empire State Development & Public Art Fund, NY
Элмгрин и Драгсет. «Улей» (2020). Нержавеющая сталь, алюминий, поликарбонат, светодиодные лампы, лак. По заказу Empire State Development совместно с Public Art Fund для зала Мойнихана.
Фото: Nicholas Knight, предоставлено Empire State Development & Public Art Fund, NY
Элмгрин и Драгсет. «Улей» (2020).
Нержавеющая сталь, алюминий, поликарбонат, светодиодные лампы, лак.
По заказу Empire State Development совместно с Public Art Fund для зала Мойнихана. Фото: Nicholas Knight, предоставлено Empire State Development & Public Art Fund, NY
Элмгрин и Драгсет. «Улей» (2020). Нержавеющая сталь, алюминий, поликарбонат, светодиодные лампы, лак. По заказу Empire State Development совместно с Public Art Fund для зала Мойнихана.
Фото: Nicholas Knight, предоставлено Empire State Development & Public Art Fund, NY
Зал Мойнихана на Пенсильванском вокзале
Зал Мойнихана на Пенсильванском вокзале
Фото: Lucas Blair Simpson © SOM
Зал Мойнихана на Пенсильванском вокзале Фото: Nicholas Knight, предоставлено Empire State Development
Зал Мойнихана на Пенсильванском вокзале
Фото: Nicholas Knight, предоставлено Empire State Development
Зал Мойнихана на Пенсильванском вокзале Фото: Nicholas Knight, предоставлено Empire State Development
Зал Мойнихана на Пенсильванском вокзале
Фото: Nicholas Knight, предоставлено Empire State Development
Зал Мойнихана на Пенсильванском вокзале Фото: Nicholas Knight, предоставлено Empire State Development
Зал Мойнихана на Пенсильванском вокзале
Фото: Nicholas Knight, предоставлено Empire State Development
Зал Мойнихана на Пенсильванском вокзале
Зал Мойнихана на Пенсильванском вокзале
Фото: Nicholas Knight, предоставлено Empire State Development
Зал Мойнихана на Пенсильванском вокзале
Зал Мойнихана на Пенсильванском вокзале
Фото: Nicholas Knight, предоставлено Empire State Development
Зал Мойнихана на Пенсильванском вокзале
Зал Мойнихана на Пенсильванском вокзале
Фото: Nicholas Knight, предоставлено Empire State Development
Зал Мойнихана на Пенсильванском вокзале Фото: Nicholas Knight, предоставлено Empire State Development
Зал Мойнихана на Пенсильванском вокзале
Фото: Nicholas Knight, предоставлено Empire State Development
Зал Мойнихана на Пенсильванском вокзале Фото: Nicholas Knight, предоставлено Empire State Development
Зал Мойнихана на Пенсильванском вокзале
Фото: Nicholas Knight, предоставлено Empire State Development
Зал Мойнихана на Пенсильванском вокзале Фото: Nicholas Knight, предоставлено Empire State Development
Зал Мойнихана на Пенсильванском вокзале
Фото: Nicholas Knight, предоставлено Empire State Development
Зал Мойнихана на Пенсильванском вокзале
Зал Мойнихана на Пенсильванском вокзале
Фото: Nicholas Knight, предоставлено Empire State Development
Зал Мойнихана на Пенсильванском вокзале Фото: Nicholas Knight, предоставлено Empire State Development
Зал Мойнихана на Пенсильванском вокзале
Фото: Nicholas Knight, предоставлено Empire State Development
Зал Мойнихана на Пенсильванском вокзале Фото: Nicholas Knight, предоставлено Empire State Development
Зал Мойнихана на Пенсильванском вокзале
Фото: Nicholas Knight, предоставлено Empire State Development
Зал Мойнихана на Пенсильванском вокзале Фото: Nicholas Knight, предоставлено Empire State Development
Зал Мойнихана на Пенсильванском вокзале
Фото: Nicholas Knight, предоставлено Empire State Development
Зал Мойнихана на Пенсильванском вокзале Фото: Nicholas Knight, предоставлено Empire State Development
Зал Мойнихана на Пенсильванском вокзале
Фото: Nicholas Knight, предоставлено Empire State Development
Зал Мойнихана на Пенсильванском вокзале Фото: Nicholas Knight, предоставлено Empire State Development
Зал Мойнихана на Пенсильванском вокзале
Фото: Nicholas Knight, предоставлено Empire State Development
Зал Мойнихана на Пенсильванском вокзале Фото: Nicholas Knight, предоставлено Empire State Development
Зал Мойнихана на Пенсильванском вокзале
Фото: Nicholas Knight, предоставлено Empire State Development
Зал Мойнихана на Пенсильванском вокзале Фото: Nicholas Knight, предоставлено Empire State Development
Зал Мойнихана на Пенсильванском вокзале
Фото: Nicholas Knight, предоставлено Empire State Development
Зал Мойнихана на Пенсильванском вокзале Фото: Nicholas Knight, предоставлено Empire State Development
Зал Мойнихана на Пенсильванском вокзале
Фото: Nicholas Knight, предоставлено Empire State Development
Зал Мойнихана на Пенсильванском вокзале Фото: Nicholas Knight, предоставлено Empire State Development
Зал Мойнихана на Пенсильванском вокзале
Фото: Nicholas Knight, предоставлено Empire State Development
Зал Мойнихана на Пенсильванском вокзале Фото: Nicholas Knight, предоставлено Empire State Development
Зал Мойнихана на Пенсильванском вокзале
Фото: Nicholas Knight, предоставлено Empire State Development
Зал Мойнихана на Пенсильванском вокзале
Зал Мойнихана на Пенсильванском вокзале
Фото: Nicholas Knight, предоставлено Empire State Development
Зал Мойнихана на Пенсильванском вокзале
Зал Мойнихана на Пенсильванском вокзале
Фото: Nicholas Knight, предоставлено Empire State Development
Зал Мойнихана на Пенсильванском вокзале
Зал Мойнихана на Пенсильванском вокзале
Фото: Nicholas Knight, предоставлено Empire State Development
Зал Мойнихана на Пенсильванском вокзале Фото: Nicholas Knight, предоставлено Empire State Development
Зал Мойнихана на Пенсильванском вокзале
Фото: Nicholas Knight, предоставлено Empire State Development
Зал Мойнихана на Пенсильванском вокзале Фото: Nicholas Knight, предоставлено Empire State Development
Зал Мойнихана на Пенсильванском вокзале
Фото: Nicholas Knight, предоставлено Empire State Development
Зал Мойнихана на Пенсильванском вокзале Фото: Nicholas Knight, предоставлено Empire State Development
Зал Мойнихана на Пенсильванском вокзале
Фото: Nicholas Knight, предоставлено Empire State Development
Зал Мойнихана на Пенсильванском вокзале Фото: Nicholas Knight, предоставлено Empire State Development
Зал Мойнихана на Пенсильванском вокзале
Фото: Nicholas Knight, предоставлено Empire State Development
Зал Мойнихана на Пенсильванском вокзале Фото: Nicholas Knight, предоставлено Empire State Development
Зал Мойнихана на Пенсильванском вокзале
Фото: Nicholas Knight, предоставлено Empire State Development
Зал Мойнихана на Пенсильванском вокзале Фото: Nicholas Knight, предоставлено Empire State Development
Зал Мойнихана на Пенсильванском вокзале
Фото: Nicholas Knight, предоставлено Empire State Development
Зал Мойнихана на Пенсильванском вокзале Фото: Nicholas Knight, предоставлено Empire State Development
Зал Мойнихана на Пенсильванском вокзале
Фото: Nicholas Knight, предоставлено Empire State Development
Зал Мойнихана на Пенсильванском вокзале
Зал Мойнихана на Пенсильванском вокзале
Фото: Nicholas Knight, предоставлено Empire State Development
Зал Мойнихана на Пенсильванском вокзале
Зал Мойнихана на Пенсильванском вокзале
© Empire State Development, предоставлено SOM | Public Square
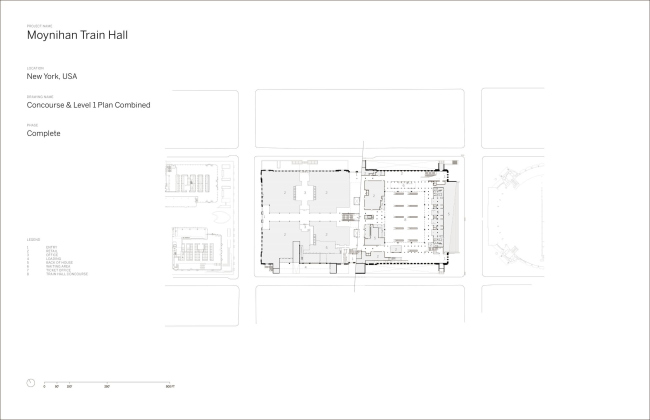
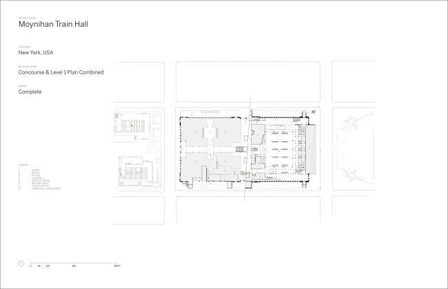
Зал Мойнихана на Пенсильванском вокзале
Зал Мойнихана на Пенсильванском вокзале
© SOM
Зал Мойнихана на Пенсильванском вокзале
Зал Мойнихана на Пенсильванском вокзале
© SOM
Зал Мойнихана на Пенсильванском вокзале
Зал Мойнихана на Пенсильванском вокзале
© SOM
Зал Мойнихана на Пенсильванском вокзале
Зал Мойнихана на Пенсильванском вокзале
© SOM
Зал Мойнихана на Пенсильванском вокзале
Зал Мойнихана на Пенсильванском вокзале
© SOM
Зал Мойнихана на Пенсильванском вокзале
Зал Мойнихана на Пенсильванском вокзале
© SOM