Размещено на портале Архи.ру (www.archi.ru)

22.01.2021

Традиции энергетики

Нина Фролова
Объект:
Офисное здание Powerhouse Telemark
Адрес:
Норвегия, None, Порсгрунн.
Мастерская:
Snøhetta

В Порсгрунне на юге Норвегии по проекту архитекторов Snøhetta построено четвертое здание из их ресурсоэффективной серии Powerhouse: как и три предыдущих, оно произведет за время эксплуатации (минимум 60 лет) больше энергии, чем потратит, включая периоды строительства и демонтажа и даже процесс производства стройматериалов.

Powerhouse Telemark построено в бывшей губернии Телемарк, где в XIX веке появилась одна из первых гидроэлектростанций. Поэтому архитекторы считают, что их здание продолжает эту традицию новаторства в области «чистой» энергетики.

Офисное здание Powerhouse Telemark
Офисное здание Powerhouse Telemark
Фото © Ivar Kvaal

О первом комплексе серии Powerhouse мы писали здесь: он появился еще в 2014, и с тех пор у каждого нового объекта уровень энергоэффективности повышался. Здание в Порсгрунне потребляет на 70% меньше аналогичного среднестатистического офисного сооружения – 11 этажей, общая площадь – почти 8000 м2.
Офисное здание Powerhouse Telemark
Офисное здание Powerhouse Telemark
Фото © Ivar Kvaal

На специально скошенной, чтобы увеличить ее площадь, кровле и на юго-восточном фасаде размещены солнечные батареи (1482 м2), которые производят 256 000 киловатт·час в год. Для сравнения, столько потребляют 20 средних норвежских домохозяйств. Powerhouse Telemark нужен меньший объем электричества, поэтому излишек будет продаваться местной энергосети.

Офисное здание Powerhouse Telemark
Офисное здание Powerhouse Telemark
Фото © Ivar Kvaal



Деревянные ламели защищают здание от перегрева: за ними находятся фасадные панели и трехслойное остекление. Охлаждение и отопление помещений обеспечивает тепловой насос со скважинами глубиной 350 м. Остекленные проемы в кровле обеспечивают три верхних этажа солнечным светом, естественному освещению (и экономии электричества) также способствуют светлые тона и поверхности в интерьере.
Офисное здание Powerhouse Telemark
Офисное здание Powerhouse Telemark
Фото © Ivar Kvaal

Материалы в интерьере выбраны долговечные (местная древесина, гипсокартон, оставленные без обработки и «маскировки» бетонные поверхности), в том числе – вторично переработанные. Так, ковровое покрытие – это бывшие рыболовные сети, промышленный паркет произведен из древесных отходов.
Офисное здание Powerhouse Telemark
Офисное здание Powerhouse Telemark
Фото © Ivar Kvaal

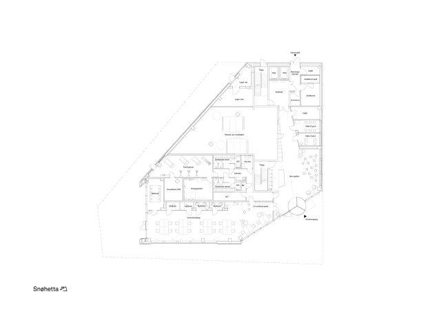
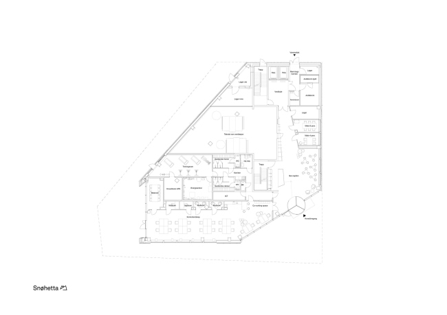
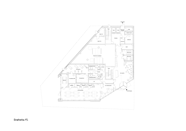
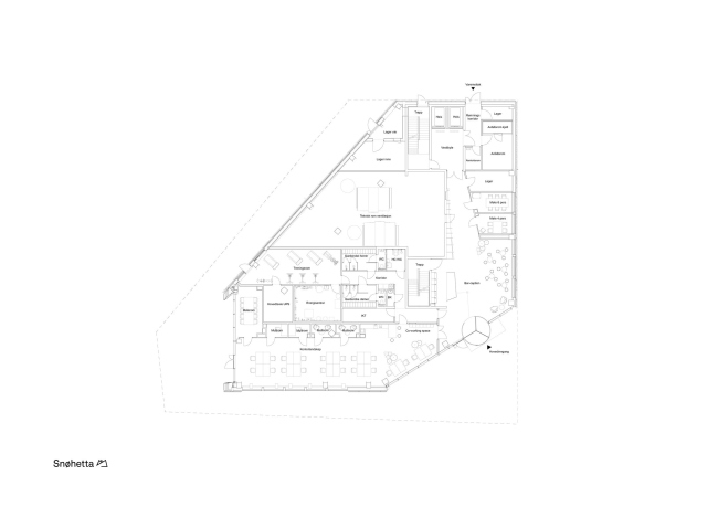
Функционально здание также «устойчиво»: все детали, перегородки, кухонное и санитарное оборудование, фурнитура стандартизированы, одни и те же модели используются по всему зданию. Офисы, особенно два этажа коворгинга, легко приспособить под любую нужную арендатору площадь, и ему не придется переезжать, если он решит расширить или сократить штат своей компании. К инфраструктуре относятся barception – помесь бара и стойки администратора, столовая для сотрудников, переговорные в «пентхаузе» и терраса на кровле с видом на фьорд.
Офисное здание Powerhouse Telemark Фото © Ivar Kvaal
Офисное здание Powerhouse Telemark
Фото © Ivar Kvaal
Офисное здание Powerhouse Telemark Фото © Ivar Kvaal
Офисное здание Powerhouse Telemark
Фото © Ivar Kvaal
Офисное здание Powerhouse Telemark Фото © Ivar Kvaal
Офисное здание Powerhouse Telemark
Фото © Ivar Kvaal
Офисное здание Powerhouse Telemark Фото © Ivar Kvaal
Офисное здание Powerhouse Telemark
Фото © Ivar Kvaal
Офисное здание Powerhouse Telemark
Офисное здание Powerhouse Telemark
Фото © Ivar Kvaal
Офисное здание Powerhouse Telemark
Офисное здание Powerhouse Telemark
Фото © Ivar Kvaal
Офисное здание Powerhouse Telemark
Офисное здание Powerhouse Telemark
Фото © Ivar Kvaal
Офисное здание Powerhouse Telemark
Офисное здание Powerhouse Telemark
Фото © Ivar Kvaal
Офисное здание Powerhouse Telemark Фото © Ivar Kvaal
Офисное здание Powerhouse Telemark
Фото © Ivar Kvaal
Офисное здание Powerhouse Telemark Фото © Ivar Kvaal
Офисное здание Powerhouse Telemark
Фото © Ivar Kvaal
Офисное здание Powerhouse Telemark Фото © Ivar Kvaal
Офисное здание Powerhouse Telemark
Фото © Ivar Kvaal
Офисное здание Powerhouse Telemark Фото © Ivar Kvaal
Офисное здание Powerhouse Telemark
Фото © Ivar Kvaal
Офисное здание Powerhouse Telemark
Офисное здание Powerhouse Telemark
Фото © Ivar Kvaal
Офисное здание Powerhouse Telemark
Офисное здание Powerhouse Telemark
Фото © Ivar Kvaal
Офисное здание Powerhouse Telemark
Офисное здание Powerhouse Telemark
Фото © Ivar Kvaal
Офисное здание Powerhouse Telemark
Офисное здание Powerhouse Telemark
© Snøhetta
Офисное здание Powerhouse Telemark
Офисное здание Powerhouse Telemark
© Snøhetta
Офисное здание Powerhouse Telemark
Офисное здание Powerhouse Telemark
© Snøhetta
Офисное здание Powerhouse Telemark
Офисное здание Powerhouse Telemark
© Snøhetta
Офисное здание Powerhouse Telemark
Офисное здание Powerhouse Telemark
© Snøhetta
Офисное здание Powerhouse Telemark
Офисное здание Powerhouse Telemark
© Snøhetta
Офисное здание Powerhouse Telemark
Офисное здание Powerhouse Telemark
© Snøhetta
Офисное здание Powerhouse Telemark
Офисное здание Powerhouse Telemark
© Snøhetta
Офисное здание Powerhouse Telemark
Офисное здание Powerhouse Telemark
© Snøhetta
Офисное здание Powerhouse Telemark
Офисное здание Powerhouse Telemark
© Snøhetta
Офисное здание Powerhouse Telemark
Офисное здание Powerhouse Telemark
© Snøhetta