Размещено на портале Архи.ру (www.archi.ru)

14.01.2021

Кирпичный узор

Нина Фролова
Объект:
Комплекс Theodora House
Адрес:
Дания, None, Копенгаген.
Мастерская:
Adept

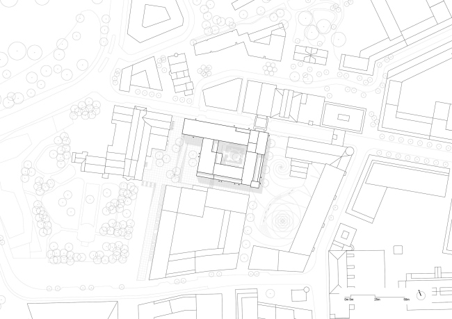
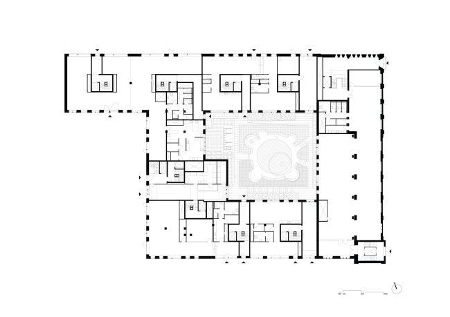
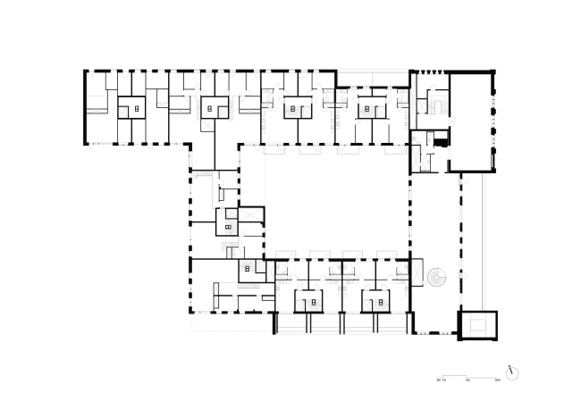
Многофункциональный комплекс Theodora House на месте бывшего пивоваренного завода Carlsberg в Копенгагене: в историческом складе архитекторы Adept устроили офисы и пристроили к нему жилые корпуса, восстановив планировку начала XX века.

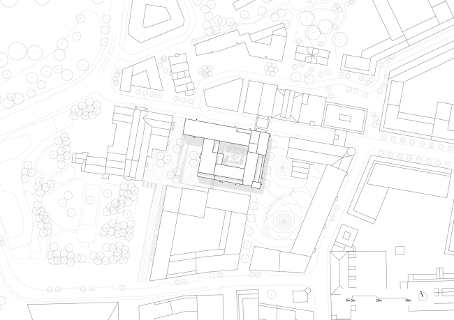
Завод Carlsberg в наши дни – крупный проект реконструкции промзоны: индустриальное наследие там соседствует с новыми зданиями, а вместе они составляют район смешанной застройки. Примером особенно тесного слияния старого и нового стал комплекс Theodora House. Он появился на месте склада пивных дрожжей, рядом с «театральными» Слоновьими воротами.

Комплекс Theodora House
Комплекс Theodora House
Фото © Rasmus Hjortshøj – COAST Studio

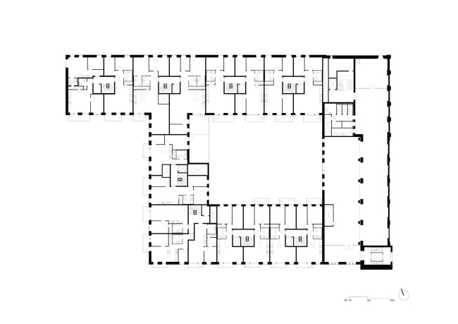
От склада удалось сохранить лишь одно крыло, но архитекторы заменили исчезнувшие части жилыми корпусами, то есть историческая структура застройки была восстановлена. Склад отличает узорчатая кирпичная кладка: кирпич вообще характерен для заводских построек Carlsberg. Архитекторы выбрали для внешних фасадов новых корпусов похожий кирпич – тоже датский, классического красного цвета, и вновь применили орнаментальную кладку. Однако им было важным избежать ощущения «копии», поэтому они использовали асимметричные, живописные, использующие игру света и тени узоры – однозначно современные. Кроме того, для создания особой пластичности, они использовали кирпичи особой, искривленной формы, изготовленные специально для их проекта.
Комплекс Theodora House
Комплекс Theodora House
Фото © Rasmus Hjortshøj – COAST Studio

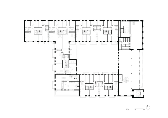
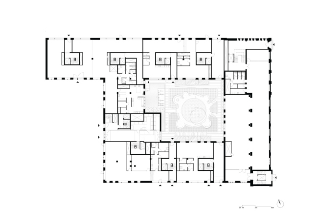
Но так выглядят жилые корпуса снаружи, а во внутренний двор они выходят белыми фасадами с решеткой из деревянных реек: она предназначена для вьющихся растений, которые скоро придадут двору в центре Копенгагена романтический и загородный, совсем не урбанистический вид.
Комплекс Theodora House
Комплекс Theodora House
Фото © Rasmus Hjortshøj – COAST Studio

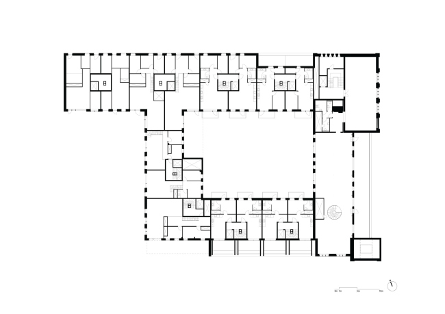
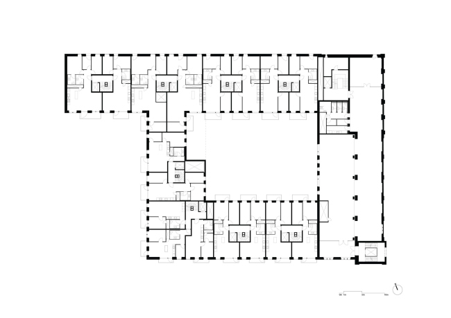
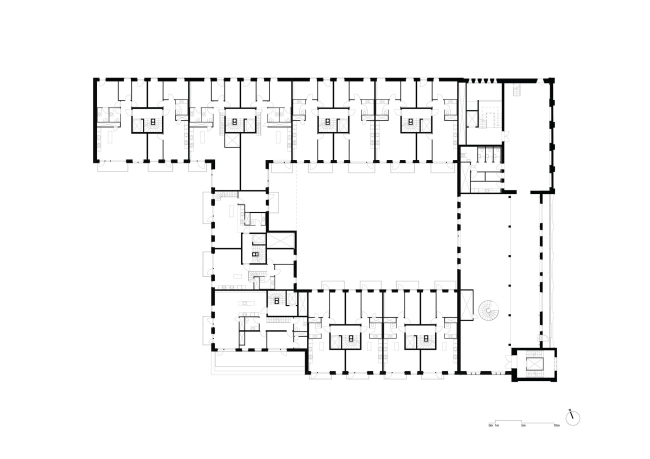
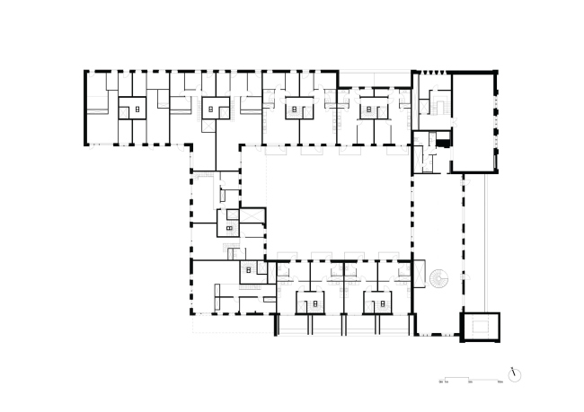
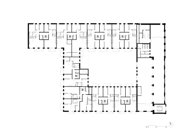
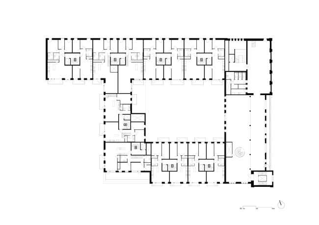
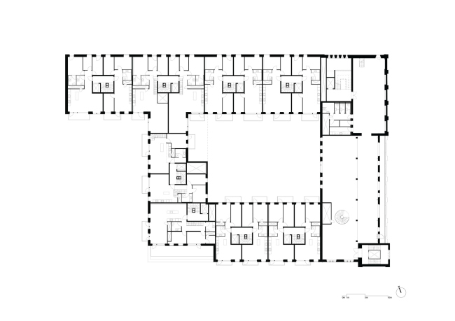
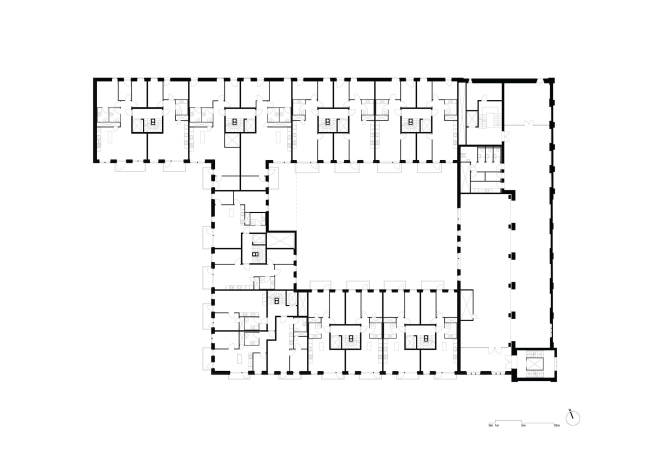
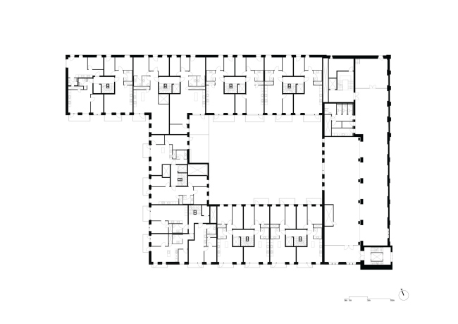
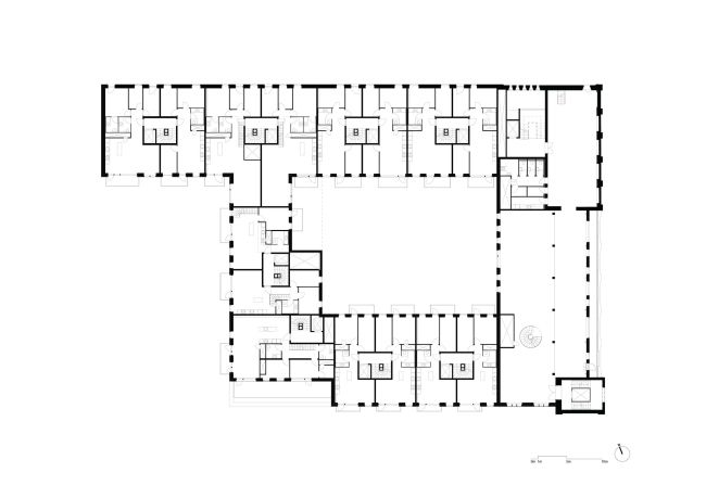
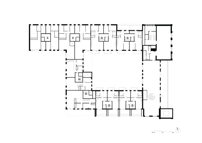
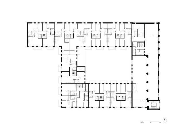
Помимо офисов в старой части, в комплекс вошли 58 квартир площадью от 57 до 183 м2. Самые крупные – это пять дуплексов. У большинства квартир есть балконы, а у семи – даже террасы на крыше.
Комплекс Theodora House
Комплекс Theodora House
Фото © Rasmus Hjortshøj – COAST Studio
Комплекс Theodora House
Комплекс Theodora House
Фото © Rasmus Hjortshøj – COAST Studio
Комплекс Theodora House
Комплекс Theodora House
Фото © Rasmus Hjortshøj – COAST Studio
Комплекс Theodora House
Комплекс Theodora House
Фото © Rasmus Hjortshøj – COAST Studio
Комплекс Theodora House
Комплекс Theodora House
Фото © Jens Peter Nielsen
Комплекс Theodora House
Комплекс Theodora House
Фото © Rasmus Hjortshøj – COAST Studio
Комплекс Theodora House
Комплекс Theodora House
Фото © Jens Peter Nielsen
Комплекс Theodora House
Комплекс Theodora House
Фото © Rasmus Hjortshøj – COAST Studio
Комплекс Theodora House
Комплекс Theodora House
Фото © Rasmus Hjortshøj – COAST Studio
Комплекс Theodora House
Комплекс Theodora House
Фото © Rasmus Hjortshøj – COAST Studio
Комплекс Theodora House
Комплекс Theodora House
Фото © Rasmus Hjortshøj – COAST Studio
Комплекс Theodora House
Комплекс Theodora House
Фото © Rasmus Hjortshøj – COAST Studio
Комплекс Theodora House
Комплекс Theodora House
Фото © Rasmus Hjortshøj – COAST Studio
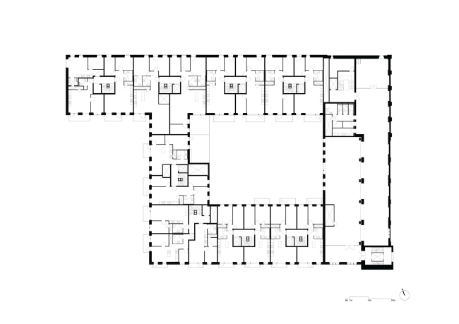
Комплекс Theodora House
Комплекс Theodora House
© Adept
Комплекс Theodora House
Комплекс Theodora House
© Adept
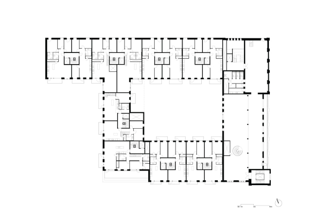
Комплекс Theodora House
Комплекс Theodora House
© Adept
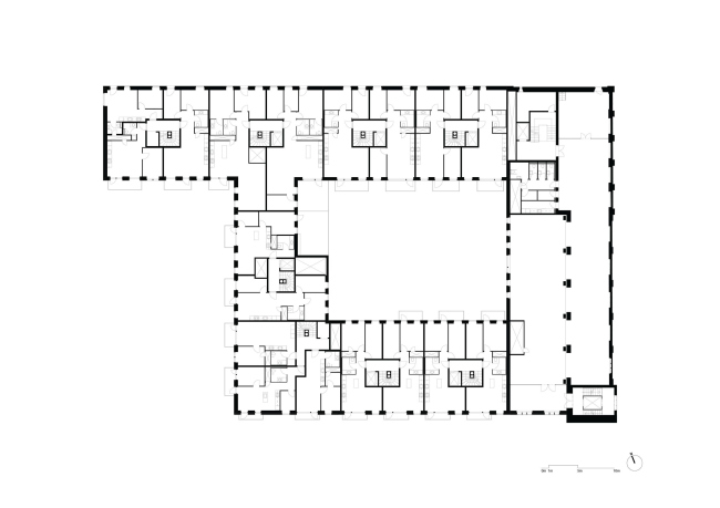
Комплекс Theodora House
Комплекс Theodora House
© Adept
Комплекс Theodora House
Комплекс Theodora House
© Adept
Комплекс Theodora House
Комплекс Theodora House
© Adept
Комплекс Theodora House
Комплекс Theodora House
© Adept
Комплекс Theodora House
Комплекс Theodora House
© Adept
Комплекс Theodora House
Комплекс Theodora House
© Adept
Комплекс Theodora House
Комплекс Theodora House
© Adept
Комплекс Theodora House
Комплекс Theodora House
© Adept
Комплекс Theodora House
Комплекс Theodora House
© Adept
Комплекс Theodora House
Комплекс Theodora House
© Adept
Комплекс Theodora House
Комплекс Theodora House
© Adept
Комплекс Theodora House
Комплекс Theodora House
© Adept
Комплекс Theodora House
Комплекс Theodora House
© Adept
Комплекс Theodora House
Комплекс Theodora House
© Adept