Ðàçìåùåíî íà ïîðòàëå Àðõè.ðó (www.archi.ru)

25.12.2020

Êàìåííûå ïðîôèëè

Íèíà Ôðîëîâà
Îáúåêò:
Êóíñòõàóñ â Öþðèõå – íîâîå êðûëî
Àäðåñ:
Øâåéöàðèÿ, None, Öþðèõ.

 Öþðèõå çàâåðøåíî ñòðîèòåëüñòâî íîâîãî êîðïóñà Êóíñòõàóñà, êðóïíåéøåãî õóäîæåñòâåííîãî ìóçåÿ Øâåéöàðèè. Àâòîðû ïðîåêòà – áåðëèíñêèé ôèëèàë áþðî Äýâèäà ×èïïåðôèëüäà.

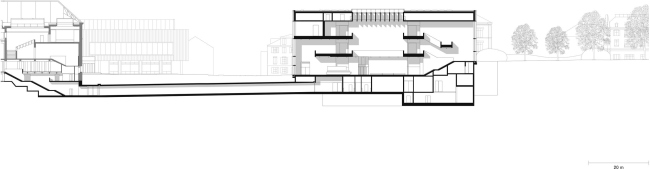
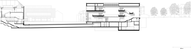
Ïðîåêòèðîâàíèå íîâîãî çäàíèÿ áûëî ïîðó÷åíî Äýâèäó ×èïïåðôèëüäó ïî èòîãàì êîíêóðñà 2008 ãîäà: ðå÷ü øëà óæå î ÷åòâåðòîì êîðïóñå ìóçåÿ, êîòîðûé ìîã åäèíîâðåìåííî ïîêàçàòü âñåãî ëèøü äåñÿòóþ ÷àñòü ñâîåé êîëëåêöèè.  îòëè÷èå îò òðåõ ïðåäûäóùèõ çäàíèé, ñîñòàâëÿþùèõ åäèíûé êîìïëåêñ, ïîñòðîéêà áðèòàíñêîãî àðõèòåêòîðà ïîÿâèëàñü íà îòäåëüíîì ó÷àñòêå, ÷åðåç ïëîùàäü Õàéìïëàö: ñ îñíîâíûì àíñàìáëåì Êóíñòõàóñà åå ñâÿçàë ïîäçåìíûé êîðèäîð äëèíîé 64 ì.
Êóíñòõàóñ â Öþðèõå – íîâîå êðûëî
Êóíñòõàóñ â Öþðèõå – íîâîå êðûëî
Ôîòî © Noshe
Íîâûé ìóçåéíûé êîðïóñ èãðàåò òàêæå è ãðàäîñòðîèòåëüíóþ ðîëü: îí îáîçíà÷àåò íà÷àëî âóçîâñêîãî ðàéîíà Öþðèõà – äàëüøå íà ñåâåð ðàñêèíóëèñü àíñàìáëè ãîðîäñêîãî óíèâåðñèòåòà è Ôåäåðàëüíîé âûñøåé òåõíè÷åñêîé øêîëû (ETH Zürich). Êðîìå òîãî, îí ñâÿçûâàåò ïðîñòðàíñòâî ïëîùàäè ñ óñòðîåííûì çà ñâîèì çàäíèì ôàñàäîì íîâûì Ñàäîì èñêóññòâà.
Êóíñòõàóñ â Öþðèõå – íîâîå êðûëî
Êóíñòõàóñ â Öþðèõå – íîâîå êðûëî
Ôîòî © Noshe
×èïïåðôèëüä îðèåíòèðîâàëñÿ ïðè ïðîåêòèðîâàíèè íà ëàêîíè÷íûé ïðÿìîóãîëüíèê êàíòîíàëüíîé øêîëû (1842), íàõîäÿùåéñÿ ê ñåâåðó îò ó÷àñòêà, çà íîâîñîçäàííûì ñàäîì.Òàêæå èñòî÷íèêàìè âäîõíîâåíèÿ ñòàëè êàìåííûå ôàñàäû êëþ÷åâûõ öþðèõñêèõ îáùåñòâåííûõ ñîîðóæåíèé, íàïðèìåð, ñàìîãî ïåðâîãî, íåîêëàññè÷åñêîãî çäàíèÿ Êóíñòõàóñà 1910 ãîäà, ñïðîåêòèðîâàííîãî êðóïíåéøèì øâåéöàðñêèì àðõèòåêòîðîì ðóáåæà âåêîâ Êàðëîì Ìîçåðîì, à òàêæå ïàðàäíûõ óíèâåðñèòåòñêèõ êîðïóñîâ ïîçàïðîøëîãî ñòîëåòèÿ, âêëþ÷àÿ ãëàâíîå çäàíèå ETH Ãîòôðèäà Çåìïåðà.
Êóíñòõàóñ â Öþðèõå – íîâîå êðûëî
Êóíñòõàóñ â Öþðèõå – íîâîå êðûëî
Ôîòî © Noshe
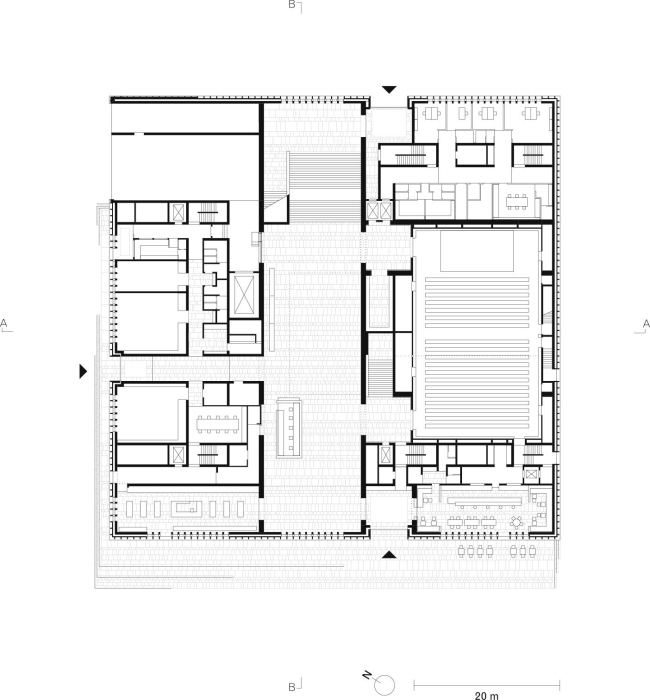
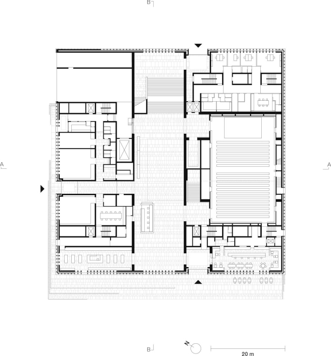
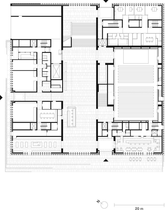
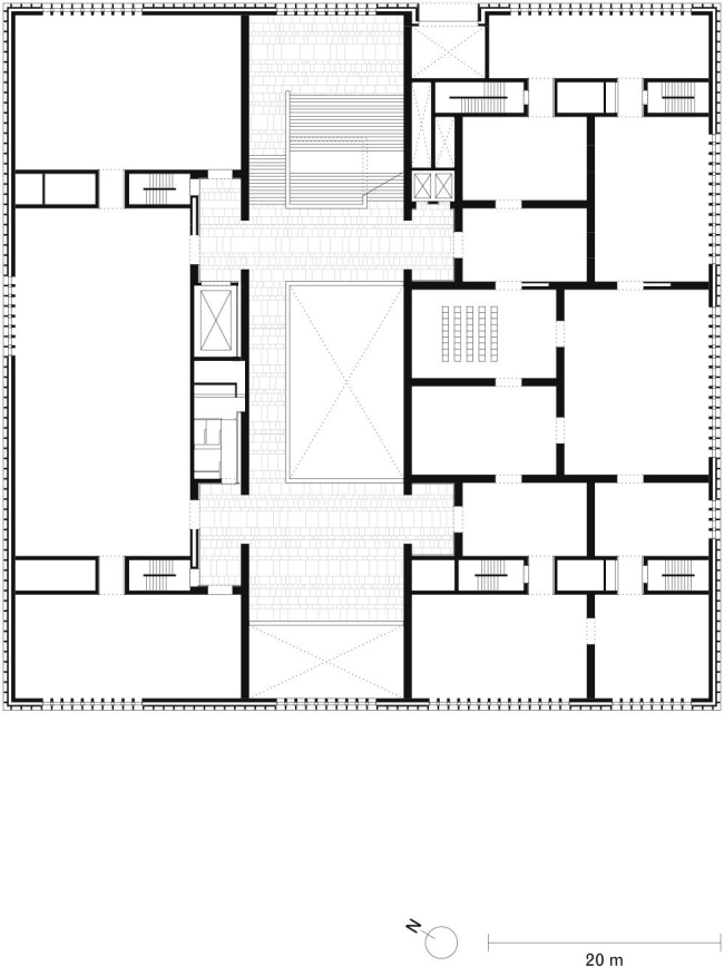
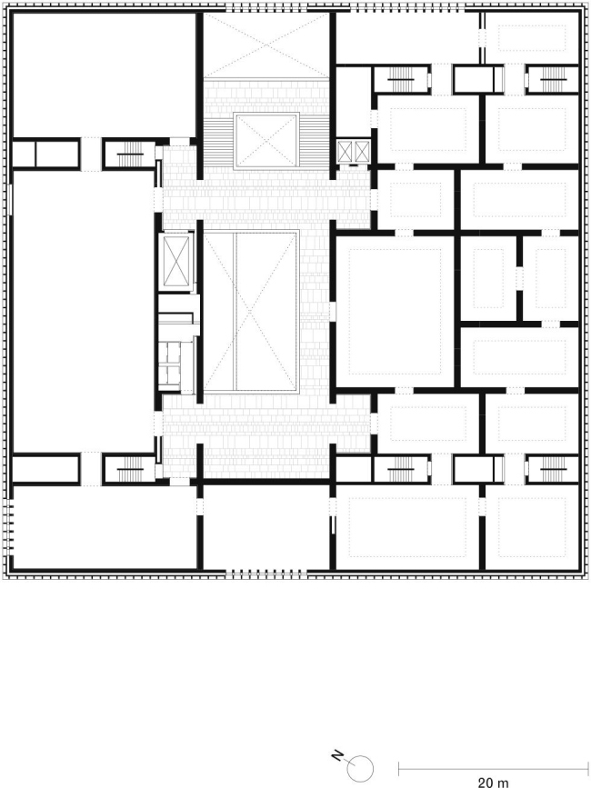
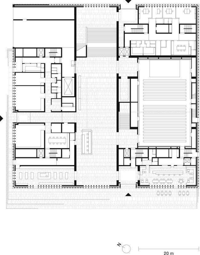
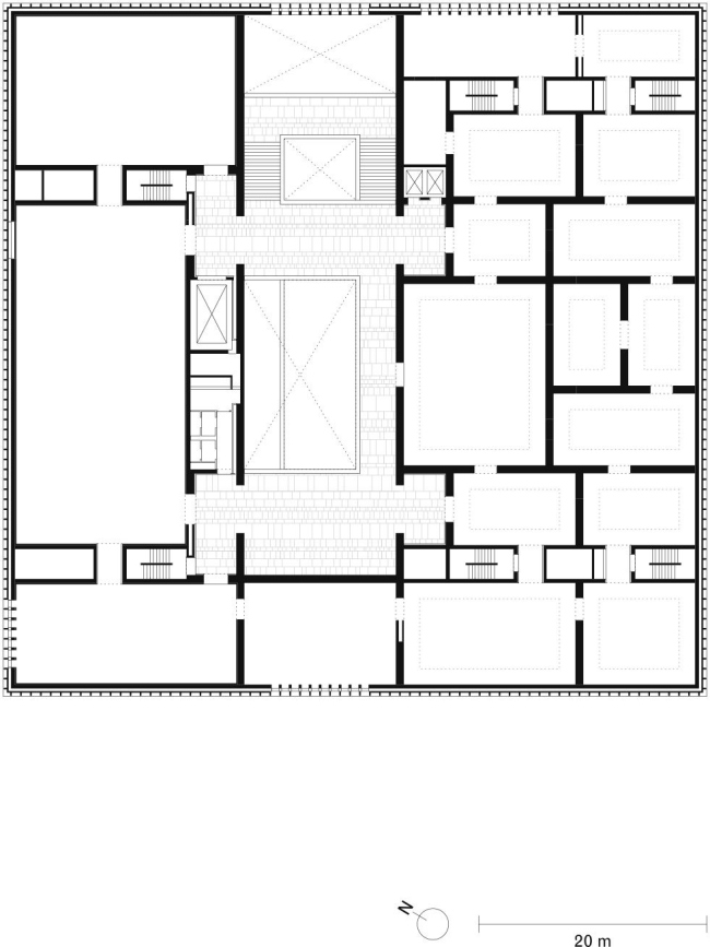
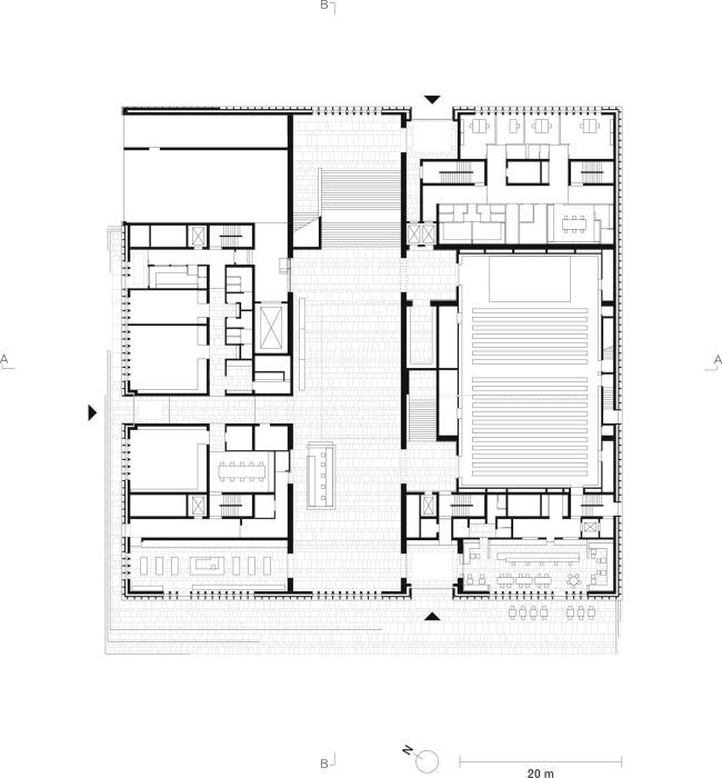
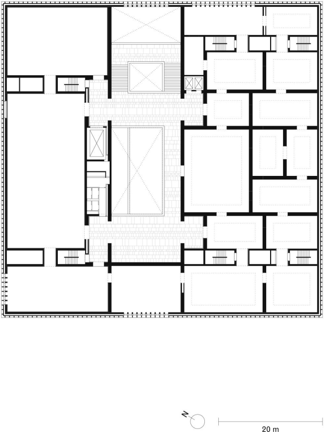
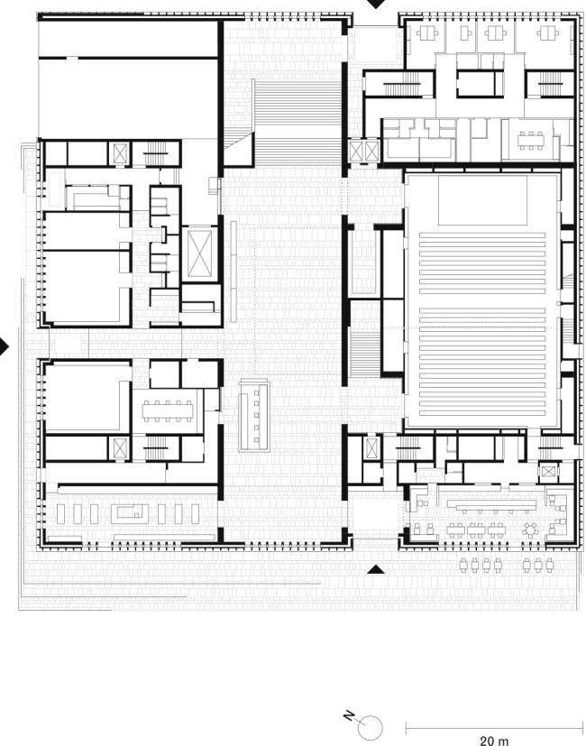
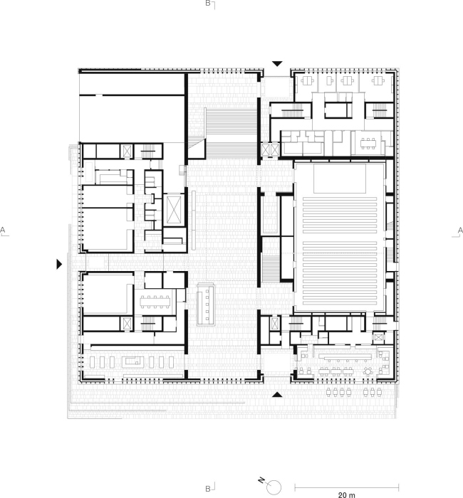
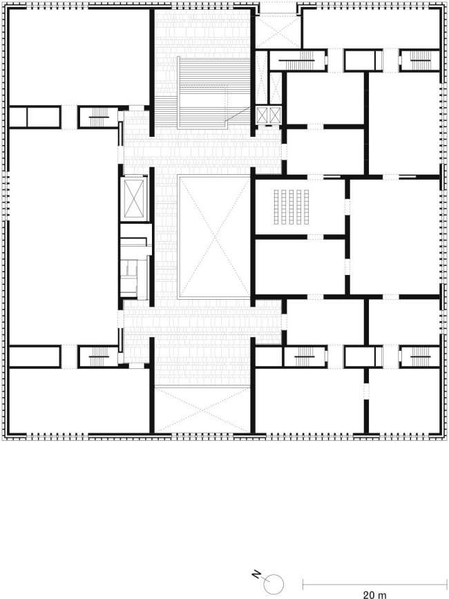
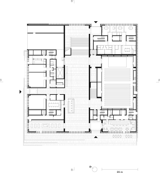
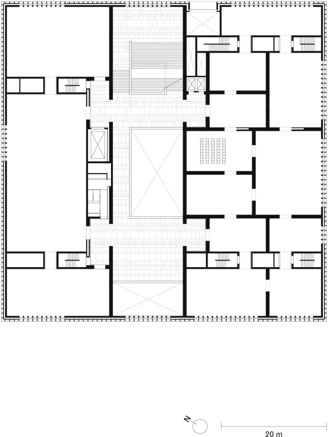
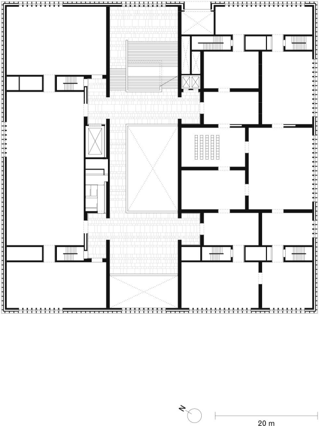
Áëîê íîâîãî ìóçåéíîãî êîðïóñà èç èñêóññòâåííîãî êàìíÿ ñ âåðòèêàëüíûìè ïðîôèëÿìè èç þðñêîãî èçâåñòíÿêà (ìåñòîðîæäåíèå Ëèñáåðã) çàíèìàåò â ãîðîäñêîé ñðåäå çíà÷èòåëüíîå ìåñòî ïî ìåíüøåé ìåðå èç-çà ñâîåãî ðàçìåðà (êâàäðàò 60õ60 ì â ïëàíå, 21 ì âûñîòû, îáùàÿ ïëîùàäü – 23 300 ì2), îäíàêî ñäåðæàííûå öâåò è ðåøåíèå ôàñàäîâ ñìÿã÷àþò êîíòðàñò çäàíèÿ ñ îêðóæåíèåì. Ïðîôèëè, ïåðåêðûâàþùèå ïî âåðòèêàëè îêîííûå ïðîåìû, âûïîëíåíû èç èñêóññòâåííîãî êàìíÿ, ïîòîìó ÷òî áûëî âàæíûì èñïîëüçîâàòü çäåñü öåëüíûå áëîêè ìàòåðèàëà. Îí æå ïðèìåíåí äëÿ «êàðíèçîâ», ðàçäåëÿþùèõ ýòàæè è îáåñïå÷èâàþùèõ «÷èòàáåëüíîñòü» ôàñàäîâ.
Êóíñòõàóñ â Öþðèõå – íîâîå êðûëî
Êóíñòõàóñ â Öþðèõå – íîâîå êðûëî
Ôîòî © Noshe
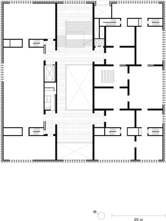
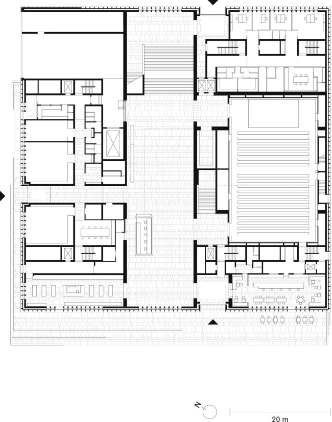
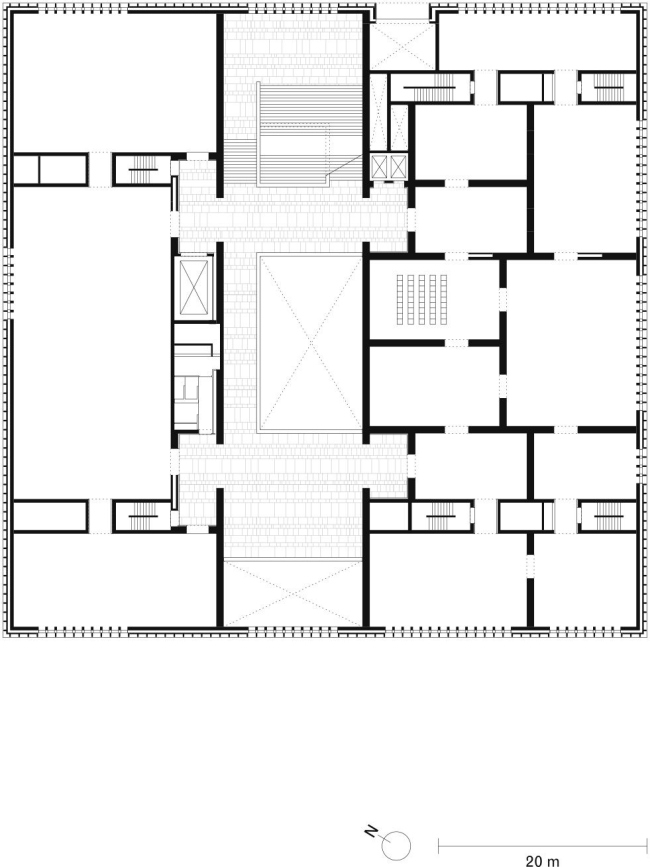
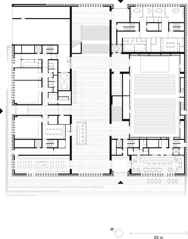
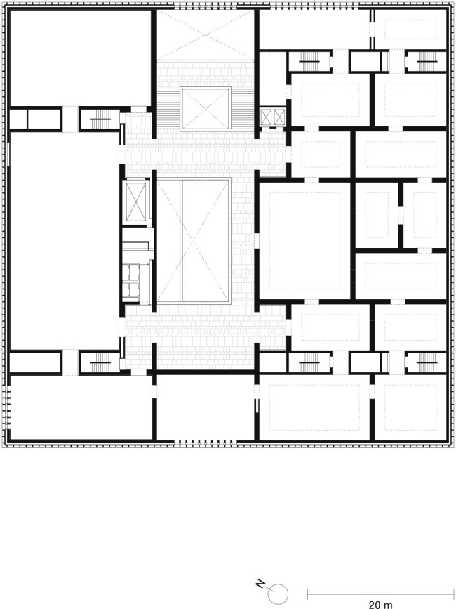
Ìðàìîðíîå ìîùåíèå ïîëà â âåñòèáþëå çäàíèÿ 1910 ãîäà ïðîäîëæàåòñÿ íà ïëîùàäè ïåðåä íèì è – ÷åðåç ïðîåçæóþ ÷àñòü – ïåðåä ïîñòðîéêîé ×èïïåðôèëüäà è â åå ïðîñòîðíîì õîëëå. Íà ïåðâîì ýòàæå ðàçìåùåíû îáùåñòâåííûå çîíû: àóäèòîðèÿ íà 500 ÷åëîâåê, ìóçåéíûé ìàãàçèí, êàôå-áàð, îáðàçîâàòåëüíûé öåíòð, à òàêæå àäìèíèñòðàòèâíûå ïîìåùåíèÿ. Íà äâóõ ïîäçåìíûõ óðîâíÿõ ðàñïîëîæåíû çàïàñíèê, ìàñòåðñêèå, ãàðäåðîáû, êàìåðà õðàíåíèÿ, òóàëåòû.
Êóíñòõàóñ â Öþðèõå – íîâîå êðûëî
Êóíñòõàóñ â Öþðèõå – íîâîå êðûëî
Ôîòî © Noshe
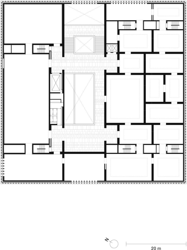
Äâà âåðõíèõ ýòàæà çàíèìàþò âûñòàâî÷íûå çàëû: çäåñü ïîëû ïîêðûòû äóáîâûì ïàðêåòîì, à íåîáõîäèìûå àêöåíòû è ôóðíèòóðà âûïîëíåíû èç ëàòóíè, êîòîðóþ ëèøü ïîêðûëè âîñêîì – ïðîåêò ïðåäóñìàòðèâàåò ïîÿâëåíèå íà íåé íàòóðàëüíîé ïàòèíû.
Êóíñòõàóñ â Öþðèõå – íîâîå êðûëî
Êóíñòõàóñ â Öþðèõå – íîâîå êðûëî
Ôîòî © Noshe
Åñòåñòâåííûé ñâåò ïðîíèêàåò â çàëû âòîðîãî ýòàæà ñáîêó, ÷åðåç îêíà, òðåòüåãî – ñâåðõó, ñêâîçü îñòåêëåííûå ó÷àñòêè ïåðåêðûòèé.
Êóíñòõàóñ â Öþðèõå – íîâîå êðûëî
Êóíñòõàóñ â Öþðèõå – íîâîå êðûëî
Ôîòî © Noshe
Íîâîå çäàíèå îòêðîåòñÿ äëÿ ïîñåòèòåëåé â 2021 ãîäó: òàì áóäóò âûñòàâëåíû ïðîèçâåäåíèÿ «êëàññè÷åñêîãî» ìîäåðíèçìà, íîâåéøåå èñêóññòâî (ïîñëå 1960), êîëëåêöèÿ Ýìèëÿ Ãåîðãà Áþðëå.  ýòèõ çàëàõ òàêæå áóäóò ïðîõîäèòü íåáîëüøèå âûñòàâêè.
Êóíñòõàóñ â Öþðèõå – íîâîå êðûëî
Êóíñòõàóñ â Öþðèõå – íîâîå êðûëî
Ôîòî © Noshe
Êóíñòõàóñ â Öþðèõå – íîâîå êðûëî
Êóíñòõàóñ â Öþðèõå – íîâîå êðûëî
Ôîòî © Noshe
Êóíñòõàóñ â Öþðèõå – íîâîå êðûëî
Êóíñòõàóñ â Öþðèõå – íîâîå êðûëî
Ôîòî © Noshe
Êóíñòõàóñ â Öþðèõå – íîâîå êðûëî
Êóíñòõàóñ â Öþðèõå – íîâîå êðûëî
Ôîòî © Noshe
Êóíñòõàóñ â Öþðèõå – íîâîå êðûëî
Êóíñòõàóñ â Öþðèõå – íîâîå êðûëî
Ôîòî © Noshe
Êóíñòõàóñ â Öþðèõå – íîâîå êðûëî
Êóíñòõàóñ â Öþðèõå – íîâîå êðûëî
Ôîòî © Noshe
Êóíñòõàóñ â Öþðèõå – íîâîå êðûëî
Êóíñòõàóñ â Öþðèõå – íîâîå êðûëî
Ôîòî © Noshe
Êóíñòõàóñ â Öþðèõå – íîâîå êðûëî
Êóíñòõàóñ â Öþðèõå – íîâîå êðûëî
Ôîòî © Noshe
Êóíñòõàóñ â Öþðèõå – íîâîå êðûëî
Êóíñòõàóñ â Öþðèõå – íîâîå êðûëî
Ôîòî © Noshe
Êóíñòõàóñ â Öþðèõå – íîâîå êðûëî
Êóíñòõàóñ â Öþðèõå – íîâîå êðûëî
Ôîòî © Noshe
Êóíñòõàóñ â Öþðèõå – íîâîå êðûëî
Êóíñòõàóñ â Öþðèõå – íîâîå êðûëî
© David Chipperfield Architects
Êóíñòõàóñ â Öþðèõå – íîâîå êðûëî
Êóíñòõàóñ â Öþðèõå – íîâîå êðûëî
© David Chipperfield Architects
Êóíñòõàóñ â Öþðèõå – íîâîå êðûëî
Êóíñòõàóñ â Öþðèõå – íîâîå êðûëî
© David Chipperfield Architects
Êóíñòõàóñ â Öþðèõå – íîâîå êðûëî
Êóíñòõàóñ â Öþðèõå – íîâîå êðûëî
© David Chipperfield Architects
Êóíñòõàóñ â Öþðèõå – íîâîå êðûëî
Êóíñòõàóñ â Öþðèõå – íîâîå êðûëî
© David Chipperfield Architects
Êóíñòõàóñ â Öþðèõå – íîâîå êðûëî
Êóíñòõàóñ â Öþðèõå – íîâîå êðûëî
© David Chipperfield Architects
Êóíñòõàóñ â Öþðèõå – íîâîå êðûëî
Êóíñòõàóñ â Öþðèõå – íîâîå êðûëî
© David Chipperfield Architects
Êóíñòõàóñ â Öþðèõå – íîâîå êðûëî
Êóíñòõàóñ â Öþðèõå – íîâîå êðûëî
© David Chipperfield Architects
Êóíñòõàóñ â Öþðèõå – íîâîå êðûëî
Êóíñòõàóñ â Öþðèõå – íîâîå êðûëî
© David Chipperfield Architects
Êóíñòõàóñ â Öþðèõå – íîâîå êðûëî
Êóíñòõàóñ â Öþðèõå – íîâîå êðûëî
© David Chipperfield Architects
Êóíñòõàóñ â Öþðèõå – íîâîå êðûëî
Êóíñòõàóñ â Öþðèõå – íîâîå êðûëî
© David Chipperfield Architects
Êóíñòõàóñ â Öþðèõå – íîâîå êðûëî
Êóíñòõàóñ â Öþðèõå – íîâîå êðûëî
© David Chipperfield Architects
Êóíñòõàóñ â Öþðèõå – íîâîå êðûëî
Êóíñòõàóñ â Öþðèõå – íîâîå êðûëî
© David Chipperfield Architects
Êóíñòõàóñ â Öþðèõå – íîâîå êðûëî
Êóíñòõàóñ â Öþðèõå – íîâîå êðûëî
© David Chipperfield Architects
Êóíñòõàóñ â Öþðèõå – íîâîå êðûëî
Êóíñòõàóñ â Öþðèõå – íîâîå êðûëî
© David Chipperfield Architects