Размещено на портале Архи.ру (www.archi.ru)

11.12.2020

«Любовь и свобода»

Нина Фролова
Объект:
Детский сад «Юэчэн»
Адрес:
Китай, None, Пекин.
Мастерская:
MAD

Бюро MAD завершили детский сад «Юэчэн» в Пекине, где главную роль играют внутренние дворы – современные и исторические, а также просторная разноцветная крыша-терраса.

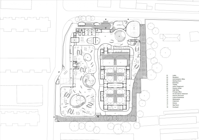
Детский сад «Юэчэн» построен по заказу одноименной компании как дополнение к ее жилью для пожилых: ее идея заключалась в межпоколенческой схеме, где дошкольное образование сочетается с заботой о людях старшего возраста. На участке изначально располагалось новое четырехэтажное здание, городская усадьба типа сыхэюань XVIII века и ее современная копия. Вокруг преобладала жилая застройка последних десятилетий.

Детский сад «Юэчэн»
Детский сад «Юэчэн»
Фото © ArchExist

Архитекторы снесли новодельную усадьбу и вписали детский сад в свободное пространство вокруг исторического сыхэюаня; по словам архитекторов, их здание как будто держит его на ладони. Старое и новое сооружения составляют единый комплекс на 390 детей в возрасте от полутора до шести лет.
Детский сад «Юэчэн»
Детский сад «Юэчэн»
Фото © ArchExist

Основатель MAD Ма Яньсун при проектировании опирался на собственные детские воспоминания, пытаясь понять, что больше всего нужно дошкольникам. Его выводом стали любовь и свобода, которые – если у ребенка они есть – откроют ему «безграничные возможности». Поэтому здание не задает четкие рамки, но предоставляет ему выбор – что делать и чем заниматься.
Детский сад «Юэчэн»
Детский сад «Юэчэн»
Фото © ArchExist

Новая часть контрастирует своей обтекаемой формой со строгой симметричной композицией усадьбы, однако и там, и там важнейшую роль играют внутренние дворы. Современное сооружение с помощью своих трех дворов огибает существовавшие на участке старые деревья. Кроме того, они обеспечивают интерьер светом и свежим воздухом, а детей – безопасным местом для игр. Но главное такое пространство – это крыша, куда из дворов ведут горки и лестницы.
Детский сад «Юэчэн»
Детский сад «Юэчэн»
Фото © ArchExist

Идея кровли как героини проекта подсказана китайской детской поговоркой: «Если три дня не будешь наказан, крыша обвалится». «Обваливающаяся» кровля, где есть проемы и холмики, служит основным пространством для прогулок и занятий на свежем воздухе, в то время как на уровне земли места для этого сравнительно немного. Ее яркие цвета контрастируют с привычными для Пекина серым и синим тонами кирпича и черепицы: эта необычность должна расширить горизонт ребенка, побудить его думать и мечтать.
Детский сад «Юэчэн»
Детский сад «Юэчэн»
Фото © ArchExist

В интерьере важную роль играет покрытие потолка из алюминиевой решетки: оно визуально снижает высоту помещений и уменьшает их масштаб, что важно для восприятия ребенка. Обилие остекления обеспечивает в том числе зрительную связь нового здания с историческим.
Детский сад «Юэчэн»
Детский сад «Юэчэн»
Фото © ArchExist

Одно из главных пространств – углубленный относительно уровня земли амфитеатр, поверху которого расположены стеллажи с книгами (их обилие – основа «политики» детского сада). За ним расположен двухсветный зал для занятий физкультурой, собраний или просто игр при плохой погоде.
Детский сад «Юэчэн»
Детский сад «Юэчэн»
Фото © ArchExist

Образовательная зона в западной части здания разделена на сектора для разных возрастных групп не стенами, а свободно стоящими перегородками обтекаемой формы, позволяющими слышать и видеть происходящее рядом (они также – часть несущей конструкции).
Детский сад «Юэчэн»
Детский сад «Юэчэн»
Фото © ArchExist

Историческая усадьба отдана под художественные занятия детей – танцами, рисованием и т.д., там же находятся административные помещения.
Детский сад «Юэчэн»
Детский сад «Юэчэн»
Фото © Hufton + Crow
Детский сад «Юэчэн»
Детский сад «Юэчэн»
Фото © Hufton + Crow
Детский сад «Юэчэн»
Детский сад «Юэчэн»
Фото © Hufton + Crow
Детский сад «Юэчэн»
Детский сад «Юэчэн»
Фото © Hufton + Crow
Детский сад «Юэчэн»
Детский сад «Юэчэн»
Фото © Hufton + Crow
Детский сад «Юэчэн»
Детский сад «Юэчэн»
Фото © Hufton + Crow
Детский сад «Юэчэн»
Детский сад «Юэчэн»
Фото © Hufton + Crow
Детский сад «Юэчэн»
Детский сад «Юэчэн»
Фото © Hufton + Crow
Детский сад «Юэчэн»
Детский сад «Юэчэн»
Фото © Hufton + Crow
Детский сад «Юэчэн»
Детский сад «Юэчэн»
Фото © Hufton + Crow
Детский сад «Юэчэн»
Детский сад «Юэчэн»
Фото © Tian Fangfang
Детский сад «Юэчэн»
Детский сад «Юэчэн»
Фото © Tian Fangfang
Детский сад «Юэчэн»
Детский сад «Юэчэн»
Фото © Tian Fangfang
Детский сад «Юэчэн»
Детский сад «Юэчэн»
Фото © Tian Fangfang
Детский сад «Юэчэн»
Детский сад «Юэчэн»
Фото © Tian Fangfang
Детский сад «Юэчэн»
Детский сад «Юэчэн»
Фото © Tian Fangfang
Детский сад «Юэчэн»
Детский сад «Юэчэн»
Фото © CreatAR Images
Детский сад «Юэчэн»
Детский сад «Юэчэн»
Фото © CreatAR Images
Детский сад «Юэчэн»
Детский сад «Юэчэн»
© MAD Architects
Детский сад «Юэчэн»
Детский сад «Юэчэн»
© MAD Architects
Детский сад «Юэчэн»
Детский сад «Юэчэн»
© MAD Architects
Детский сад «Юэчэн»
Детский сад «Юэчэн»
© MAD Architects