Размещено на портале Архи.ру (www.archi.ru)

10.12.2020

Подъем с изгибом

Нина Фролова
Объект:
Башня MIRA
Адрес:
США, None, Сан-Франциско.
Мастерская:
Studio Gang

Башня MIRA в Сан-Франциско по проекту Studio Gang получила модульный фасад с «эркерами», делающими каждую квартиру угловой, с панорамными видами.

Настоящие эркеры типичны для исторической застройки Сан-Франциско, а для 130-метровой башни по проекту бюро Джин Гэнг был разработан их современный аналог, играющий по сути ту же роль: он обеспечивает интерьер светом и видами, увеличивает его площадь: так каждая квартира становится как будто угловой.

Башня MIRA
Башня MIRA
Фото © Scott Hargis Photo

Навесной фасад башни состоит из модульной системы, полностью повторяющейся каждые 11 этажей (всего их 39). Сложные изгибы, спроектированные с опорой на авиастроительные принципы, позволяют минимизировать воздействия ветров, очень сильных в заливе Сан-Франциско. Фасад при этом на 51% непрозрачный, состоящий из произведенных в Италии белых алюминиевых панелей, что защищает интерьер от перегрева. Кроме того, визуально сложная его поверхность не собьет с толку птиц и убережет их от столкновения, как было сделано и в другом небоскребе по проекту Джин Гэнг.
Башня MIRA
Башня MIRA
Фото © Scott Hargis Photo

Упомянутые «эркеры» было возможно после монтажа каркаса здания устанавливать изнутри, что позволило обойтись без башенных кранов.
Башня MIRA
Башня MIRA
Фото © Scott Hargis Photo

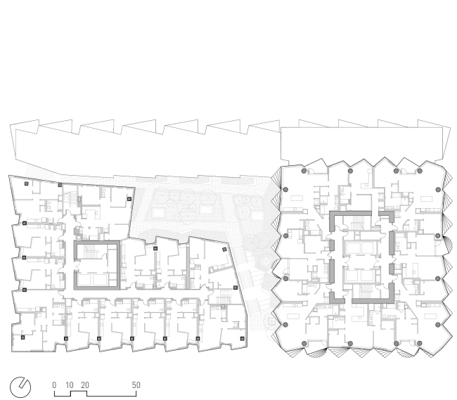
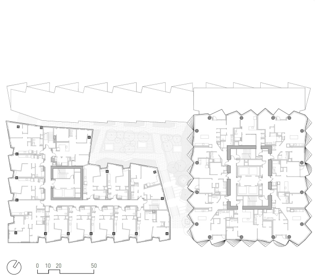
Жилой комплекс состоит из собственно башни и корпуса с таунхаусами: всего там 392 квартиры, от упомянутых 8 таунхаусов до 20 прото-пентхаусов на пяти верхних этажах, площадь которых варьируется в пределах 200–220 м2. Однако типичная квартира имеет площадь в 120 м2. 40% квартир принадлежат к категории доступных, так как будут проданы по цене ниже рыночной.
Башня MIRA
Башня MIRA
Фото © Scott Hargis Photo

Имеются парковка на 340 машин и 150 велосипедов, удобная связь с транспортной системой. Чтобы связать жилой комплекс с городом, для устройства магазинов и кафе на первом этаже выделено 930 м2.
Башня MIRA
Башня MIRA
Фото © Scott Hargis Photo
Башня MIRA
Башня MIRA
Фото © Scott Hargis Photo
Башня MIRA
Башня MIRA
Фото © Scott Hargis Photo
Башня MIRA
Башня MIRA
Фото © Scott Hargis Photo
Башня MIRA
Башня MIRA
© Studio Gang
Башня MIRA
Башня MIRA
© Studio Gang
Башня MIRA
Башня MIRA
© Studio Gang
Башня MIRA
Башня MIRA
© Studio Gang