Размещено на портале Архи.ру (www.archi.ru)

30.11.2020

Занавес из фибробетона

Нина Фролова
Объект:
Театр «Лежандр»
Адрес:
Франция, None, Эврё.
Мастерская:
Opus 5

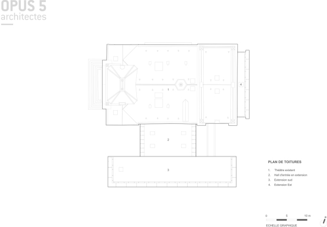
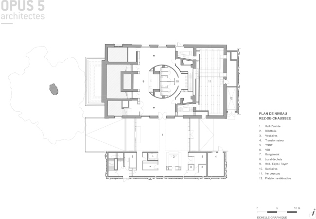
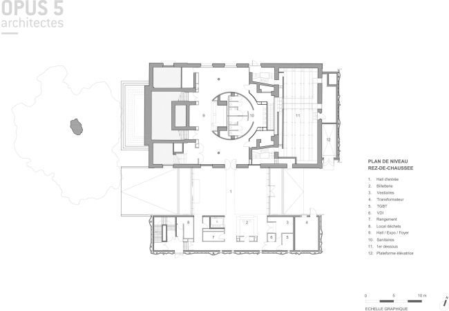
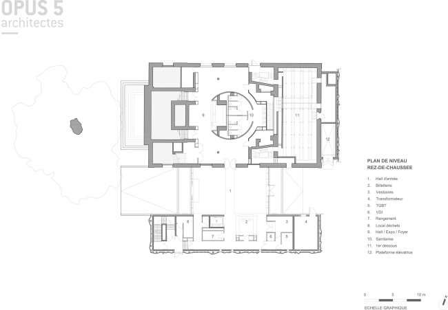
Реконструкция театра начала XX века в Эврё включает напоминающие занавес фасады из фибробетона толщиной 8 см и весом 11,2 тонн. Авторы проекта – бюро Opus 5.

Драматический театр в нормандском городе Эврё построен в 1903 по пышному эклектическому проекту архитектора Леона Лежандра на месте римского театра I века нашей эры. Однако уже через сто лет театр «Лежандр» обветшал и в 2006 был закрыт как требующий значительно ремонта и даже небезопасный. Роль здесь сыграла неустойчивая почва, которая долгое время мешала успешной реконструкции: для решения этой проблемы требовались слишком большие средства. Вместе с тем, имеющее статус памятника здание в самом центре города, рядом с ратушей, необходимо было привести в порядок – и в соответствие с современными требованиями к зрелищным учреждениям.

Театр «Лежандр»
Театр «Лежандр»
Фото © Luc Boegly

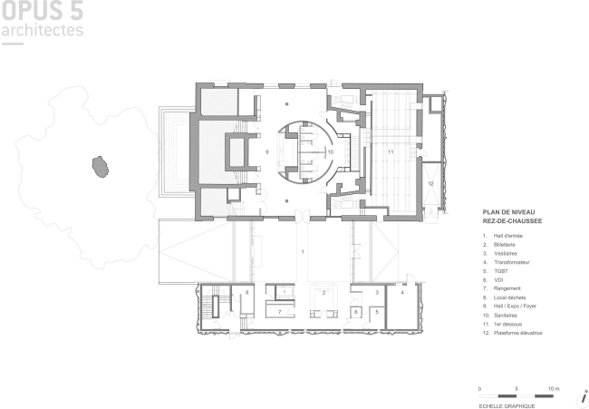
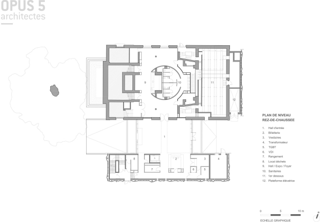
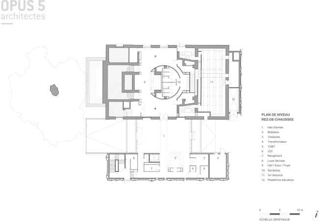
Проект Opus 5, который в итоге и был реализован, сочетает в себе реставрацию с реконструкцией тех частей, которые восстановить уже нельзя. Это в первую очередь касалось торцевого южного фасада, практически руинированного. К нему было пристроено остекленное фойе, а за ним – объем с новыми гримуборными и комнатами отдыха для артистов, репетиционной студией, кабинетами директора и режиссера. Туда из исторического здания через фойе ведут три мостика, точнее, один трехъярусный. На цокольном этаже устроены хранилища реквизита и т.п.
Театр «Лежандр»
Театр «Лежандр»
Фото © Luc Boegly

Восточный фасад, куда выходит пространство за сценой, также получил новый облик, потому что это пространство было расширено, чтобы вместить современную машинерию.
Театр «Лежандр»
Театр «Лежандр»
Фото © Luc Boegly

Восточный и южный фасады закрыты 27 фибробетонными панелями размером 2,28 м x 13,5 м. Их отливали на заводе в полностью закрытой форме, чтобы добиться минимальной толщины – 8 см – и минимального веса – 11,2 тонн.
Театр «Лежандр»
Театр «Лежандр»
Фото © Luc Boegly

Остальные фасады исторического здания были тщательно отреставрированы, включая главный, западный, обращенный к площади Жоржа Брассенса, куда также выходят медиатека и Дом искусств. Зрительному залу и фойе тоже вернули облик начала XX века.
Театр «Лежандр»
Театр «Лежандр»
Фото © Luc Boegly
Театр «Лежандр»
Театр «Лежандр»
Фото © Luc Boegly
Театр «Лежандр» Фото © Luc Boegly
Театр «Лежандр»
Фото © Luc Boegly
Театр «Лежандр» Фото © Luc Boegly
Театр «Лежандр»
Фото © Luc Boegly
Театр «Лежандр» Фото © Luc Boegly
Театр «Лежандр»
Фото © Luc Boegly
Театр «Лежандр» Фото © Luc Boegly
Театр «Лежандр»
Фото © Luc Boegly
Театр «Лежандр»
Театр «Лежандр»
Фото © Luc Boegly
Театр «Лежандр»
Театр «Лежандр»
Фото © Luc Boegly
Театр «Лежандр»
Театр «Лежандр»
Фото © Luc Boegly
Театр «Лежандр»
Театр «Лежандр»
Фото © Luc Boegly
Театр «Лежандр» Фото © Luc Boegly
Театр «Лежандр»
Фото © Luc Boegly
Театр «Лежандр» Фото © Luc Boegly
Театр «Лежандр»
Фото © Luc Boegly
Театр «Лежандр» Фото © Luc Boegly
Театр «Лежандр»
Фото © Luc Boegly
Театр «Лежандр» Фото © Luc Boegly
Театр «Лежандр»
Фото © Luc Boegly
Театр «Лежандр» Фото © Luc Boegly
Театр «Лежандр»
Фото © Luc Boegly
Театр «Лежандр»
Театр «Лежандр»
Фото © Luc Boegly
Театр «Лежандр»
Театр «Лежандр»
Фото © Luc Boegly
Театр «Лежандр» Фото © Luc Boegly
Театр «Лежандр»
Фото © Luc Boegly
Театр «Лежандр» Фото © Luc Boegly
Театр «Лежандр»
Фото © Luc Boegly
Театр «Лежандр» Фото © Luc Boegly
Театр «Лежандр»
Фото © Luc Boegly
Театр «Лежандр» Фото © Luc Boegly
Театр «Лежандр»
Фото © Luc Boegly
Театр «Лежандр» Фото © Luc Boegly
Театр «Лежандр»
Фото © Luc Boegly
Театр «Лежандр»
Театр «Лежандр»
Фото © Luc Boegly
Театр «Лежандр»
Театр «Лежандр»
Фото © Luc Boegly
Театр «Лежандр»
Театр «Лежандр»
© OPUS 5 Architectes
Театр «Лежандр»
Театр «Лежандр»
© OPUS 5 Architectes
Театр «Лежандр»
Театр «Лежандр»
© OPUS 5 Architectes
Театр «Лежандр»
Театр «Лежандр»
© OPUS 5 Architectes
Театр «Лежандр»
Театр «Лежандр»
© OPUS 5 Architectes
Театр «Лежандр»
Театр «Лежандр»
© OPUS 5 Architectes
Театр «Лежандр»
Театр «Лежандр»
© OPUS 5 Architectes
Театр «Лежандр»
Театр «Лежандр»
© OPUS 5 Architectes
Театр «Лежандр»
Театр «Лежандр»
© OPUS 5 Architectes
Театр «Лежандр»
Театр «Лежандр»
© OPUS 5 Architectes
Театр «Лежандр»
Театр «Лежандр»
© OPUS 5 Architectes
Театр «Лежандр»
Театр «Лежандр»
© OPUS 5 Architectes
Театр «Лежандр»
Театр «Лежандр»
© OPUS 5 Architectes
Театр «Лежандр»
Театр «Лежандр»
© OPUS 5 Architectes
Театр «Лежандр»
Театр «Лежандр»
© OPUS 5 Architectes