Размещено на портале Архи.ру (www.archi.ru)

27.11.2020

И овцы сыты

Алина Измайлова
Объект:
Горная хижина в Квитфьеле
Адрес:
Норвегия,
Мастерская:
Mork-Ulnes Architects

Дом четы архитекторов, Каспера и Лесли Морк-Ульнес, в горах Норвегии использует традиционные методы строительства из дерева и служит также убежищем для овец.

Дом на высоте 943 метров над уровнем моря супруги Морк-Ульнес построили для себя и своей семьи. Пара всерьез увлекается лыжами, а с уступа, на котором расположена «хижина», за несколько минут можно добраться до любой из трасс Квитфьеля – горнолыжного курорта, построенного специально к Олимпийским играм 1994. Каспер и Лесли Морк-Ульнес называют свой загородный дом «лабораторией»: в проекте Skigard Hytte им удалось воплотить идеи, не нашедшие отклика у сторонних заказчиков за все 15 лет существования их бюро Mork-Ulnes Architects. Так, практически все компоненты здания выполнены из дерева: несущие конструкции, напольные и настенные покрытия – даже в таких «спорных» помещениях, как санузлы, – а также мебель и фурнитура.

Горная хижина в Квитфьеле
Горная хижина в Квитфьеле
Фотография © Bruce Damonte

Конструкцию держат 45 тонких полутораметровых колонн-свай из клееной древесины. Отказавшись от бетонного фундамента, архитекторы смогли сохранить и природную среду, и тропинку, по которой овцы, живущие вблизи участка, спускались на пастбище, расположенное у подножья горы. Теперь в образовавшемся под домом пространстве животные прячутся от непогоды.
Горная хижина в Квитфьеле Фотография © Bruce Damonte
Горная хижина в Квитфьеле
Фотография © Bruce Damonte
Горная хижина в Квитфьеле Фотография © Bruce Damonte
Горная хижина в Квитфьеле
Фотография © Bruce Damonte
Горная хижина в Квитфьеле Фотография © Bruce Damonte
Горная хижина в Квитфьеле
Фотография © Bruce Damonte
Горная хижина в Квитфьеле Фотография © Bruce Damonte
Горная хижина в Квитфьеле
Фотография © Bruce Damonte
Горная хижина в Квитфьеле Фотография © Bruce Damonte
Горная хижина в Квитфьеле
Фотография © Bruce Damonte

Фасад здания облицован «четвертушками» необработанных жердей, уложенных по диагонали – похожим образом норвежские фермеры монтируют изгороди вокруг своих угодий, техника называется «шигар» (skigard). Зимой снег, забивая щели в «сайдинге», придает суровому строению более дружелюбный вид.
Горная хижина в Квитфьеле Фотография © Bruce Damonte
Горная хижина в Квитфьеле
Фотография © Bruce Damonte
Горная хижина в Квитфьеле Фотография © Bruce Damonte
Горная хижина в Квитфьеле
Фотография © Bruce Damonte
Горная хижина в Квитфьеле Фотография © Juan Benavides
Горная хижина в Квитфьеле
Фотография © Juan Benavides
Горная хижина в Квитфьеле Фотография © Juan Benavides
Горная хижина в Квитфьеле
Фотография © Juan Benavides
Горная хижина в Квитфьеле Фотография © Juan Benavides
Горная хижина в Квитфьеле
Фотография © Juan Benavides
Горная хижина в Квитфьеле Фотография © Bruce Damonte
Горная хижина в Квитфьеле
Фотография © Bruce Damonte
Горная хижина в Квитфьеле Фотография © Bruce Damonte
Горная хижина в Квитфьеле
Фотография © Bruce Damonte

Еще одна отсылка к местным традициям – крыша, покрытая дерном. Пушистая травяная «шапка», колышущаяся на ветру, помогает смягчить жесткую геометрию постройки и обеспечивает обитателям защиту от холода. Дополнительную теплоизоляцию дают двухкамерные стеклопакеты, заполненные аргоном.
Горная хижина в Квитфьеле
Горная хижина в Квитфьеле
Фотография © Bruce Damonte

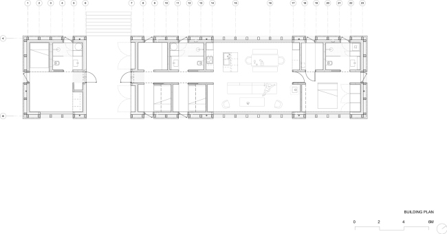
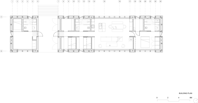
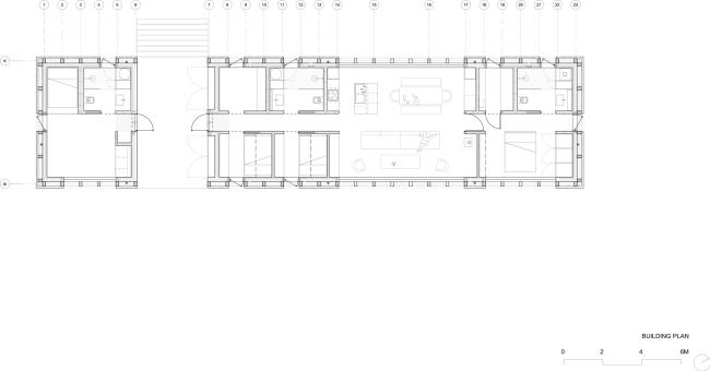
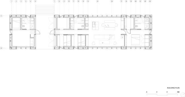
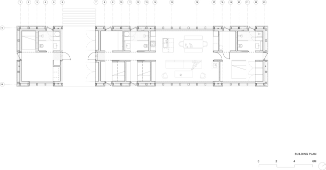
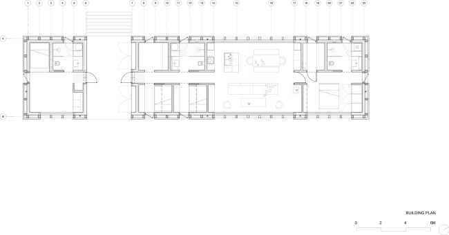
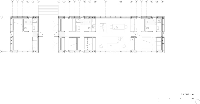
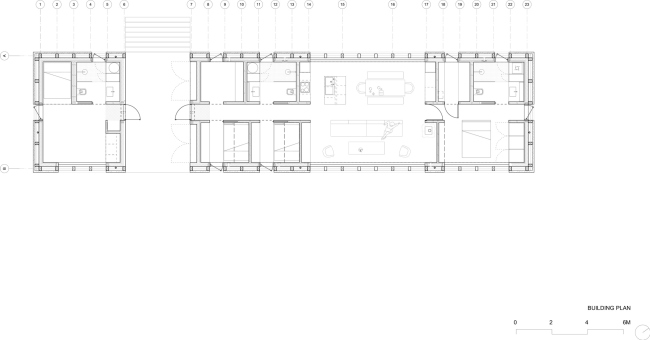
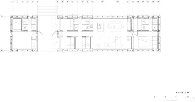
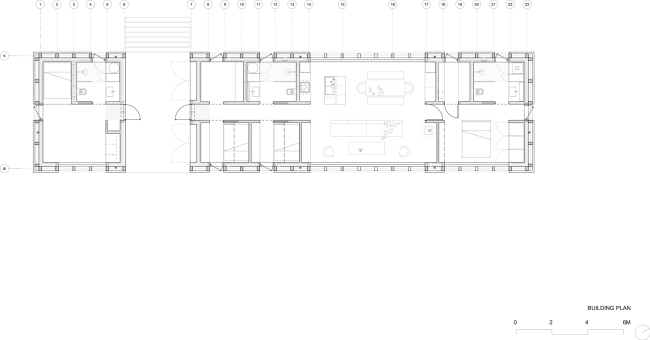
Планировка «хижины» повторяет схему традиционного фермерского жилища, называемого «трёндерлон» (trønderlån). Как правило, в таких домах жили сразу несколько поколений одной семьи – комнаты располагались по обе стороны от длинного узкого коридора, протянутого от одного торца до другого; центральную часть здания занимала общая комната. Прямоугольная «коробка», построенная мастерской Mork-Ulnes Architects, поделена на два неравнозначных блока: справа от сквозного портала находится небольшой гостевой «домик» со всеми удобствами, слева – хозяйская часть здания, где расположены совмещенная с кухней гостиная, три спальни, санузлы и сауна. Общая площадь сооружения – 145 м2.
Горная хижина в Квитфьеле Фотография © Bruce Damonte
Горная хижина в Квитфьеле
Фотография © Bruce Damonte
Горная хижина в Квитфьеле Фотография © Bruce Damonte
Горная хижина в Квитфьеле
Фотография © Bruce Damonte
Горная хижина в Квитфьеле Фотография © Bruce Damonte
Горная хижина в Квитфьеле
Фотография © Bruce Damonte
Горная хижина в Квитфьеле Фотография © Bruce Damonte
Горная хижина в Квитфьеле
Фотография © Bruce Damonte
Горная хижина в Квитфьеле Фотография © Bruce Damonte
Горная хижина в Квитфьеле
Фотография © Bruce Damonte
Горная хижина в Квитфьеле Фотография © Bruce Damonte
Горная хижина в Квитфьеле
Фотография © Bruce Damonte
Горная хижина в Квитфьеле Фотография © Bruce Damonte
Горная хижина в Квитфьеле
Фотография © Bruce Damonte
Горная хижина в Квитфьеле Фотография © Bruce Damonte
Горная хижина в Квитфьеле
Фотография © Bruce Damonte
Горная хижина в Квитфьеле Фотография © Bruce Damonte
Горная хижина в Квитфьеле
Фотография © Bruce Damonte

Световые фонари, венчающие каждую комнату, и окна от пола до потолка – а в гостиной ширина их проемов, один из которых выходит на южную сторону, составляет целых шесть метров – обеспечивают доступ к солнечному свету. «С таким количеством окон в доме нет необходимости включать свет в дневное время», – поясняют хозяева дома.
Горная хижина в Квитфьеле Фотография © Bruce Damonte
Горная хижина в Квитфьеле
Фотография © Bruce Damonte
Горная хижина в Квитфьеле Фотография © Bruce Damonte
Горная хижина в Квитфьеле
Фотография © Bruce Damonte
Горная хижина в Квитфьеле Фотография © Bruce Damonte
Горная хижина в Квитфьеле
Фотография © Bruce Damonte
Горная хижина в Квитфьеле Фотография © Juan Benavides
Горная хижина в Квитфьеле
Фотография © Juan Benavides
Горная хижина в Квитфьеле Фотография © Juan Benavides
Горная хижина в Квитфьеле
Фотография © Juan Benavides
Горная хижина в Квитфьеле Фотография © Juan Benavides
Горная хижина в Квитфьеле
Фотография © Juan Benavides
Горная хижина в Квитфьеле
Горная хижина в Квитфьеле
Фотография © Bruce Damonte
Горная хижина в Квитфьеле
Горная хижина в Квитфьеле
Фотография © Bruce Damonte
Горная хижина в Квитфьеле
Горная хижина в Квитфьеле
Фотография © Bruce Damonte
Горная хижина в Квитфьеле
Горная хижина в Квитфьеле
Фотография © Juan Benavides
Горная хижина в Квитфьеле
Горная хижина в Квитфьеле
Фотография © Juan Benavides
Горная хижина в Квитфьеле
Горная хижина в Квитфьеле
Изображение © Mork-Ulnes Architects
План. Горная хижина в Квитфьеле
План. Горная хижина в Квитфьеле
Изображение © Mork-Ulnes Architects
Поперечный разрез. Горная хижина в Квитфьеле
Поперечный разрез. Горная хижина в Квитфьеле
Изображение © Mork-Ulnes Architects
Поперечные разрезы. Горная хижина в Квитфьеле
Поперечные разрезы. Горная хижина в Квитфьеле
Изображение © Mork-Ulnes Architects
Продольный разрез. Горная хижина в Квитфьеле
Продольный разрез. Горная хижина в Квитфьеле
Изображение © Mork-Ulnes Architects
План местности. Горная хижина в Квитфьеле
План местности. Горная хижина в Квитфьеле
Изображение © Mork-Ulnes Architects
Горная хижина в Квитфьеле
Горная хижина в Квитфьеле
Изображение © Mork-Ulnes Architects
Чертеж фасада. Горная хижина в Квитфьеле
Чертеж фасада. Горная хижина в Квитфьеле
Изображение © Mork-Ulnes Architects
Горная хижина в Квитфьеле
Горная хижина в Квитфьеле
Изображение © Mork-Ulnes Architects
Горная хижина в Квитфьеле
Горная хижина в Квитфьеле
Изображение © Mork-Ulnes Architects
Горная хижина в Квитфьеле
Горная хижина в Квитфьеле
Изображение © Mork-Ulnes Architects
Горная хижина в Квитфьеле
Горная хижина в Квитфьеле
Изображение © Mork-Ulnes Architects