Размещено на портале Архи.ру (www.archi.ru)

26.11.2020

Шоу-рум в ландшафте

Нина Фролова
Объект:
Шоу-рум Чучжоу – Минху компании OCT
Адрес:
Китай, None, Чучжоу.
Мастерская:
Lacime Architects

Павильон девелопера OCT представляет красоты пейзажа покупателям квартир в очередном «новом городе» на востоке Китая. Авторы проекта шоу-рума – шанхайское бюро Lacime Architects.


Влажная, болотистая местность рядом с мегаполисом Чучжоу недалеко от Шанхая сейчас активно осушается и осваивается. Одним из таких проектов стал «новый город» Minghu Wellness Town рядом с озером Минху. Сопутствующий ему шоу-рум расположен в «природном парке», но при этом на хорошо заметном месте – рядом с оживленным шоссе Чучжоу – Янчжоу и скоростной железной дорогой Шанхай – Пекин.

Шоу-рум Чучжоу – Минху компании OCT
Шоу-рум Чучжоу – Минху компании OCT
Фото © Schran Images
Шоу-рум Чучжоу – Минху компании OCT
Шоу-рум Чучжоу – Минху компании OCT
Фото © Schran Images
Шоу-рум Чучжоу – Минху компании OCT
Шоу-рум Чучжоу – Минху компании OCT
Фото © Schran Images

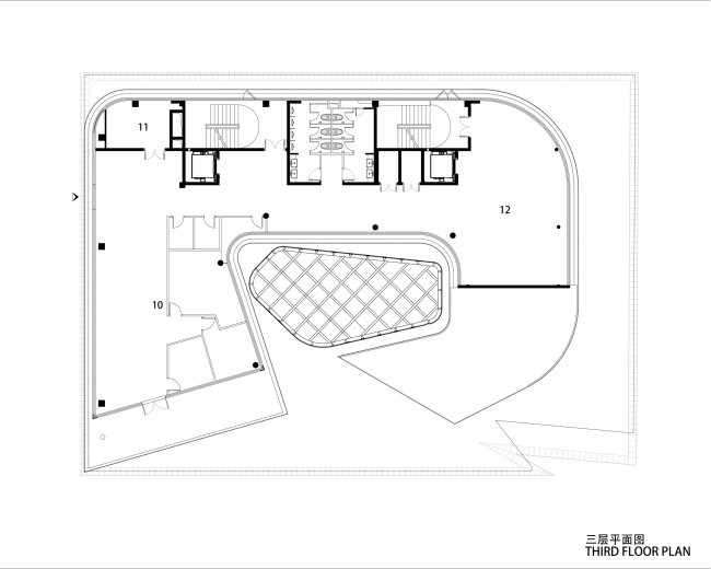
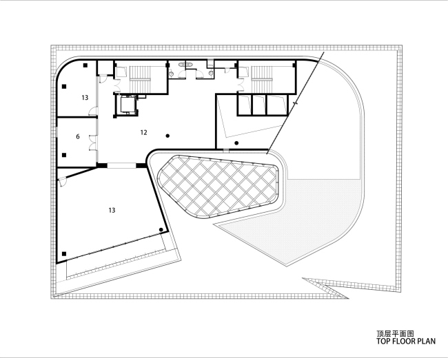
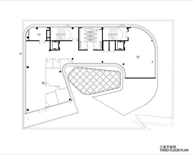
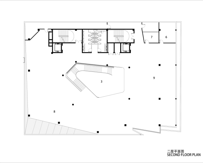
Авторы проекта, бюро Lacime Architects, сравнивают свою облицованную серебристым металлом спиралевидную постройку с «туманом, поднимающимся над болотами». Природа, действительно, была их главной точкой опоры. Объем постройки разделен по горизонтали, что должно лишить ее «массы», а изнутри открываются эффектные виды местности.
Шоу-рум Чучжоу – Минху компании OCT
Шоу-рум Чучжоу – Минху компании OCT
Фото © Schran Images
Шоу-рум Чучжоу – Минху компании OCT
Шоу-рум Чучжоу – Минху компании OCT
Фото © Schran Images
Шоу-рум Чучжоу – Минху компании OCT
Шоу-рум Чучжоу – Минху компании OCT
Фото © Schran Images
Шоу-рум Чучжоу – Минху компании OCT
Шоу-рум Чучжоу – Минху компании OCT
Фото © Schran Images
Шоу-рум Чучжоу – Минху компании OCT
Шоу-рум Чучжоу – Минху компании OCT
Фото © Schran Images
Шоу-рум Чучжоу – Минху компании OCT
Шоу-рум Чучжоу – Минху компании OCT
Фото © Schran Images
Шоу-рум Чучжоу – Минху компании OCT
Шоу-рум Чучжоу – Минху компании OCT
Фото © Schran Images
Шоу-рум Чучжоу – Минху компании OCT
Шоу-рум Чучжоу – Минху компании OCT
Фото © Schran Images
Шоу-рум Чучжоу – Минху компании OCT
Шоу-рум Чучжоу – Минху компании OCT
Фото © Schran Images
Шоу-рум Чучжоу – Минху компании OCT
Шоу-рум Чучжоу – Минху компании OCT
Фото © Schran Images
Шоу-рум Чучжоу – Минху компании OCT
Шоу-рум Чучжоу – Минху компании OCT
Фото © Schran Images
Шоу-рум Чучжоу – Минху компании OCT
Шоу-рум Чучжоу – Минху компании OCT
Фото © Schran Images
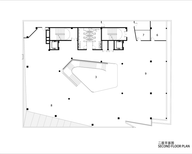
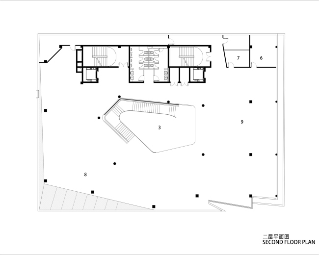
Шоу-рум Чучжоу – Минху компании OCT
Шоу-рум Чучжоу – Минху компании OCT
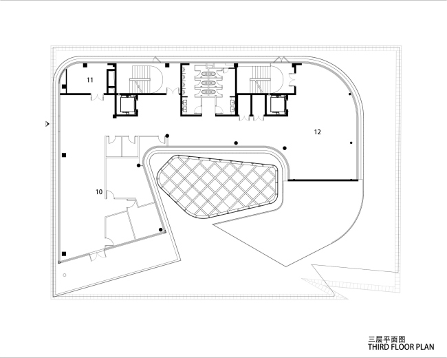
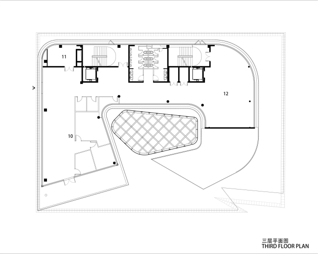
© Lacime Architects
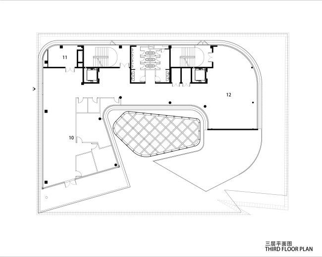
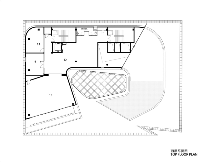
Шоу-рум Чучжоу – Минху компании OCT
Шоу-рум Чучжоу – Минху компании OCT
© Lacime Architects
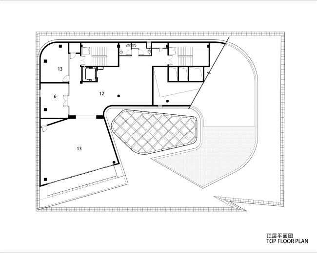
Шоу-рум Чучжоу – Минху компании OCT
Шоу-рум Чучжоу – Минху компании OCT
© Lacime Architects
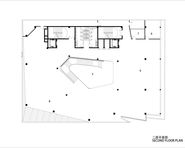
Шоу-рум Чучжоу – Минху компании OCT
Шоу-рум Чучжоу – Минху компании OCT
© Lacime Architects
Шоу-рум Чучжоу – Минху компании OCT © Lacime Architects
Шоу-рум Чучжоу – Минху компании OCT
© Lacime Architects
Шоу-рум Чучжоу – Минху компании OCT © Lacime Architects
Шоу-рум Чучжоу – Минху компании OCT
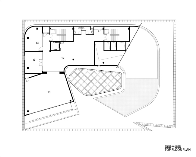
© Lacime Architects
Шоу-рум Чучжоу – Минху компании OCT © Lacime Architects
Шоу-рум Чучжоу – Минху компании OCT
© Lacime Architects
Шоу-рум Чучжоу – Минху компании OCT © Lacime Architects
Шоу-рум Чучжоу – Минху компании OCT
© Lacime Architects
Шоу-рум Чучжоу – Минху компании OCT © Lacime Architects
Шоу-рум Чучжоу – Минху компании OCT
© Lacime Architects
Шоу-рум Чучжоу – Минху компании OCT © Lacime Architects
Шоу-рум Чучжоу – Минху компании OCT
© Lacime Architects
Шоу-рум Чучжоу – Минху компании OCT
Шоу-рум Чучжоу – Минху компании OCT
© Lacime Architects
Шоу-рум Чучжоу – Минху компании OCT
Шоу-рум Чучжоу – Минху компании OCT
© Lacime Architects
Шоу-рум Чучжоу – Минху компании OCT
Шоу-рум Чучжоу – Минху компании OCT
© Lacime Architects
Шоу-рум Чучжоу – Минху компании OCT
Шоу-рум Чучжоу – Минху компании OCT
© Lacime Architects
Шоу-рум Чучжоу – Минху компании OCT
Шоу-рум Чучжоу – Минху компании OCT
© Lacime Architects
Шоу-рум Чучжоу – Минху компании OCT
Шоу-рум Чучжоу – Минху компании OCT
© Lacime Architects
Шоу-рум Чучжоу – Минху компании OCT
Шоу-рум Чучжоу – Минху компании OCT
© Lacime Architects
Шоу-рум Чучжоу – Минху компании OCT
Шоу-рум Чучжоу – Минху компании OCT
© Lacime Architects