Размещено на портале Архи.ру (www.archi.ru)

18.11.2020

Кирпич как связующее

Нина Фролова
Объект:
Комплекс Bricks Berlin Schöneberg
Адрес:
Германия, None, Берлин.
Мастерская:
GRAFT

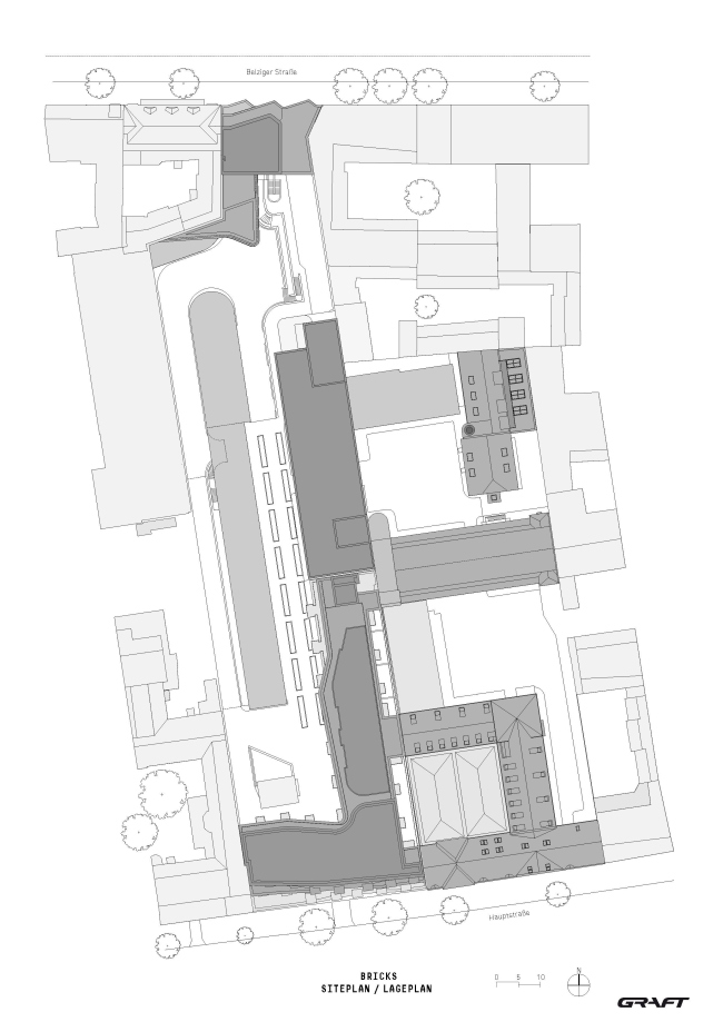
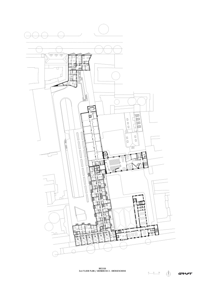
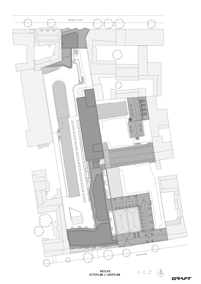
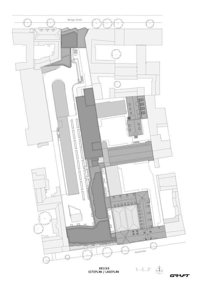
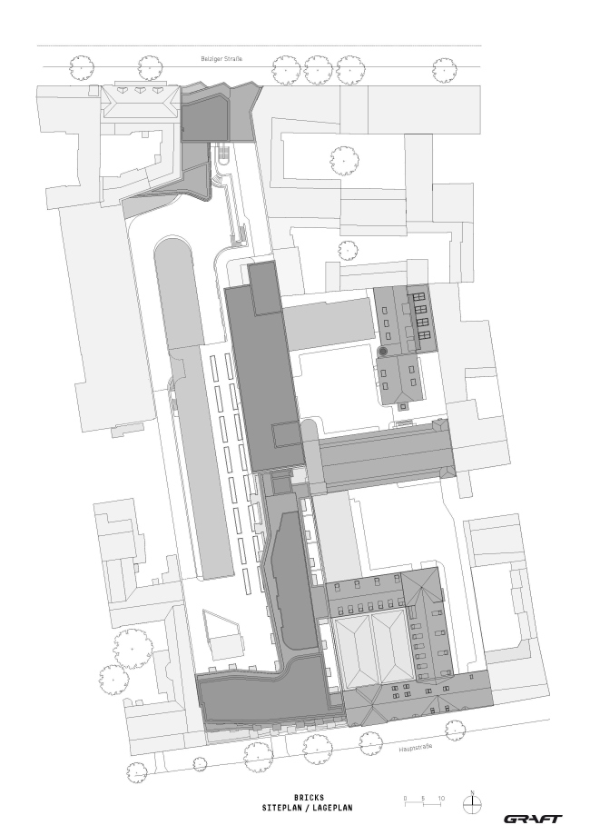
Исторический комплекс почтамта – телеграфа – телефонной станции на юго-западе Берлина архитекторы GRAFT приспособили под офисы, магазины и рестораны, а также добавили два новых жилых корпуса.

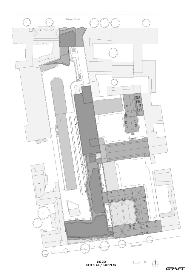
Почтамт района Шёнеберг появился на улице Хауптштрассе в самом начале XX века, позже к нему добавился телеграф, телефонная станция (совсем еще не автоматическая) и даже «телевизионная комната», где желающие могли посмотреть начавшиеся в 1935 передачи (собственный телеприемник тогда не был доступен практически никому).

Комплекс Bricks Berlin Schöneberg
Комплекс Bricks Berlin Schöneberg
Фото © Bttr GmbH

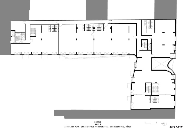
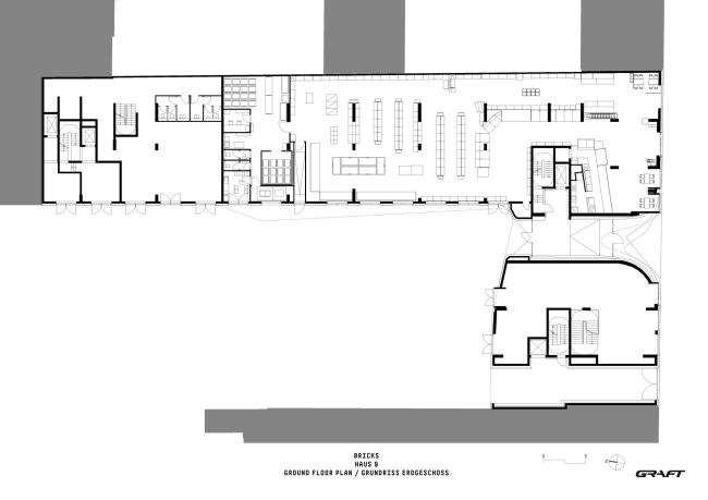
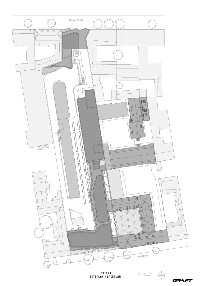
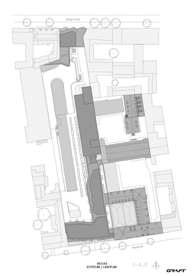
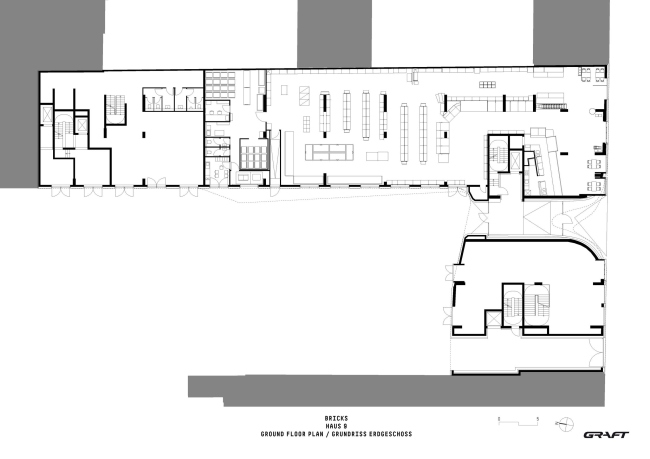
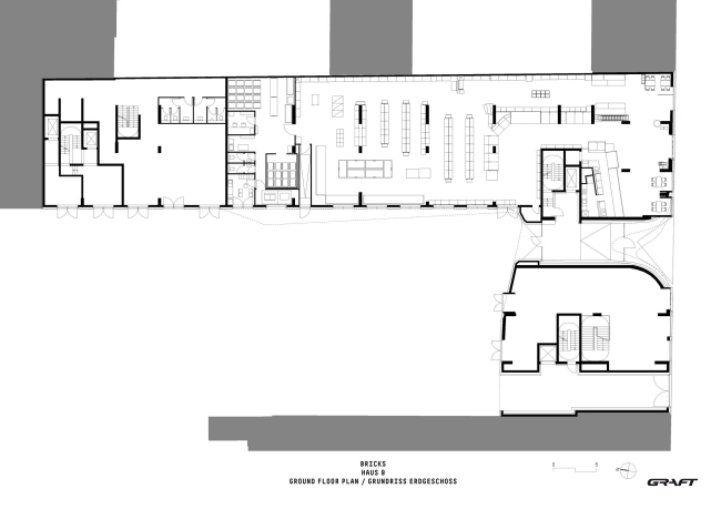
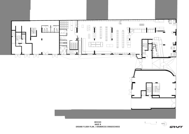
Ансамбль между Хауптштрассе и идущей параллельно ей Бельцигерштрассе включал и пышный неоренессанс в немецком изводе, и функционализм, но все здания объединял материал: кирпич. Поэтому когда за их ревитализацию взялось бюро GRAFT, они использовали именно этот материал, чтобы придать комплексу связности. После завершения реконструкции новые и обновленные старые площади достигли паритета, а в целом в комплексе Bricks Berlin Schöneberg – 32 000 м2.
Комплекс Bricks Berlin Schöneberg
Комплекс Bricks Berlin Schöneberg
Фото © Bttr GmbH


Видео © Bttr GmbH


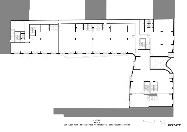
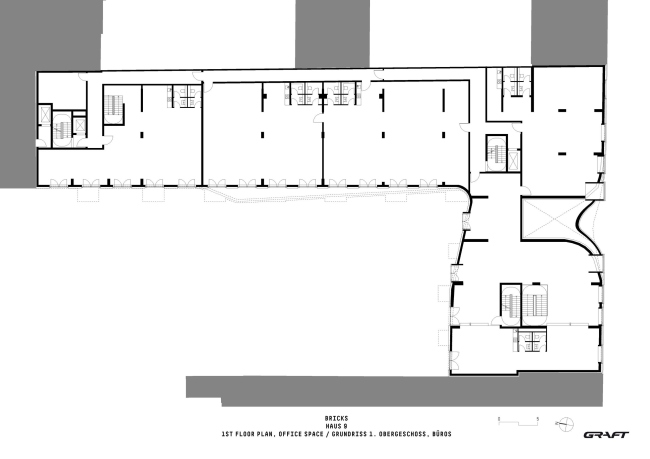
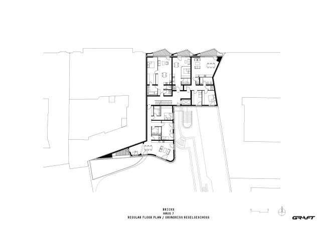
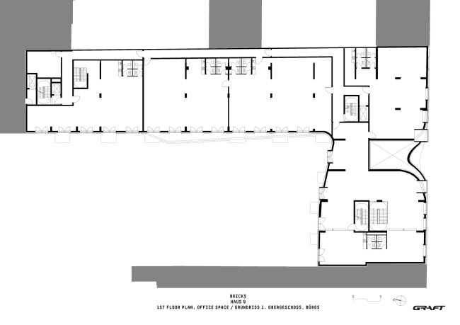
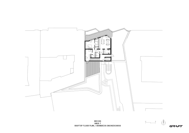
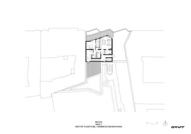
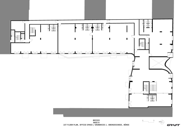
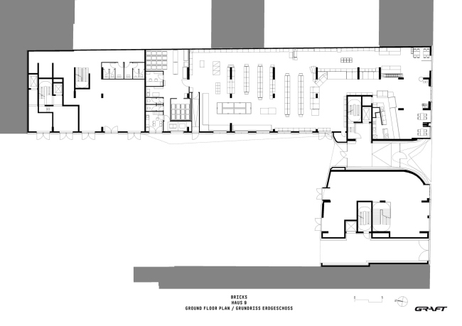
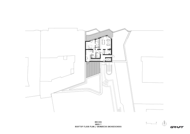
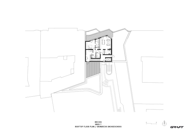
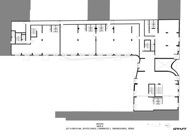
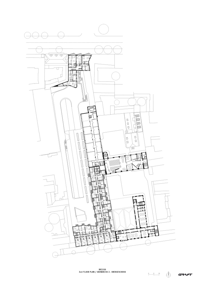
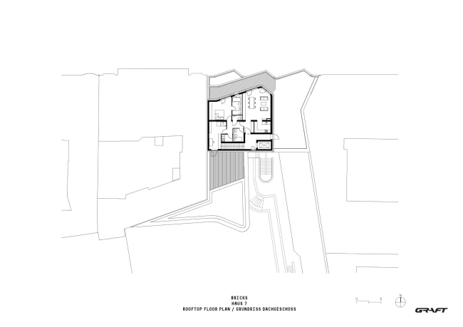
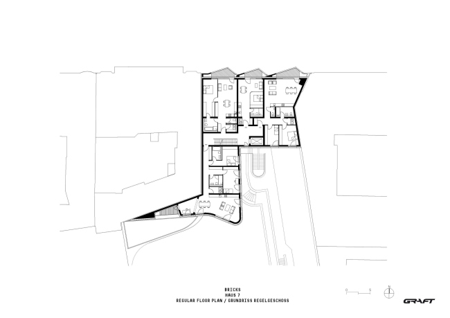
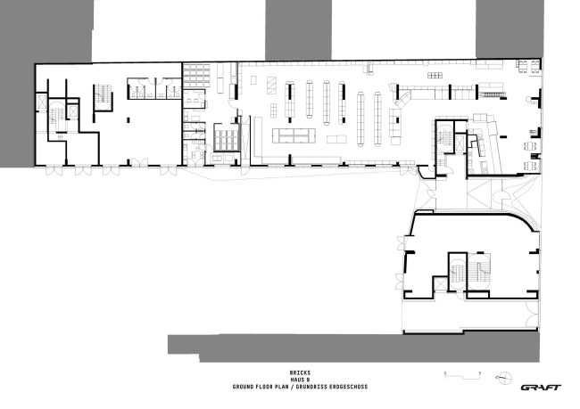
Когда почтовые и телекоммуникационные учреждения покинули эти здания, у них уже был статус памятника, что ограничивало возможности для реконструкции. Выходом стало приспособление под новое использование их двускатных крыш, что значительно увеличило полезную площадь. Со стороны двора на кровлях появились окна, а вот с улицы проемы сделать было нельзя: это нарушило бы их исторический облик.
Комплекс Bricks Berlin Schöneberg
Комплекс Bricks Berlin Schöneberg
Фото © Bttr GmbH

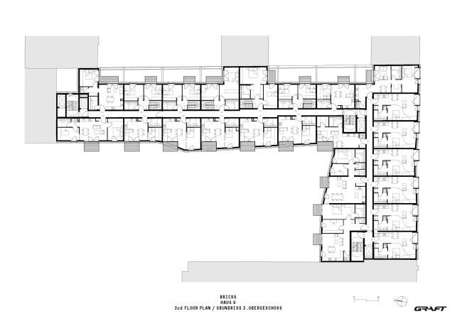
В этих «мансардах» современные интерьеры сочетаются с историческими стропилами и даже «ренессансной» росписью столетней давности. Но они видны лишь сотрудникам и посетителям этих офисов, а вот два жилых корпуса занимают гораздо более заметное место.
Комплекс Bricks Berlin Schöneberg
Комплекс Bricks Berlin Schöneberg
Фото © Bttr GmbH

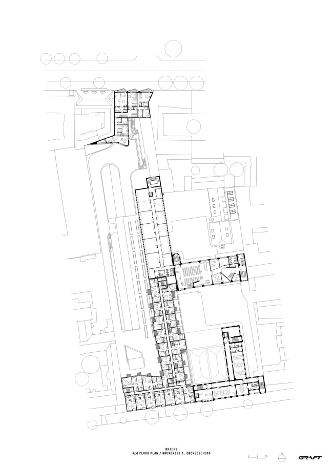
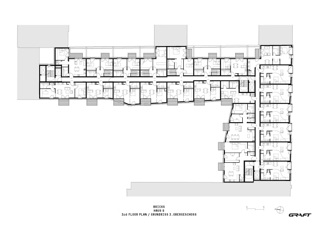
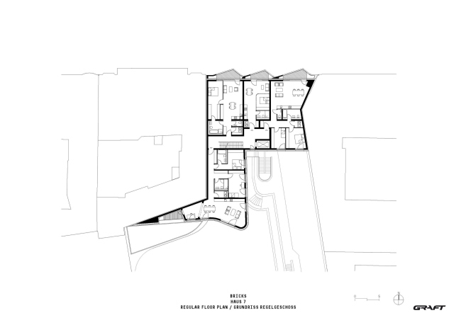
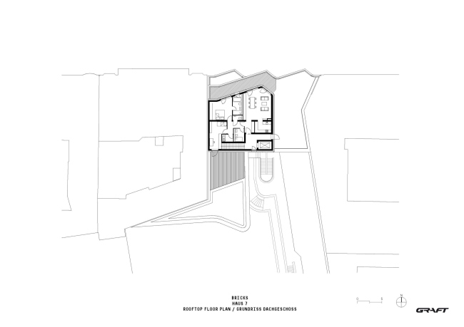
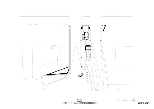
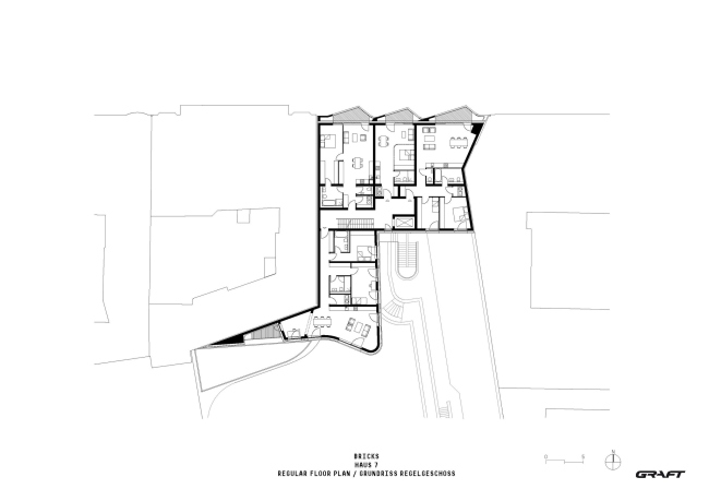
Один, на Хауптштрассе, с параметрическими очертаниями входа во двор, пиксельной клинкерной кладкой и золотистыми блоками эркеров, соседствует с почтамтом, не уступая ему по богатству декора – пусть вкусы и сильно поменялись за прошедшие 120 лет.
Комплекс Bricks Berlin Schöneberg
Комплекс Bricks Berlin Schöneberg
Фото © Bttr GmbH

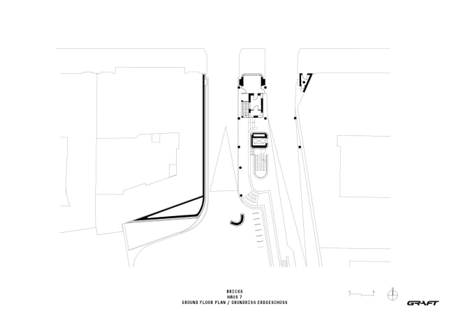
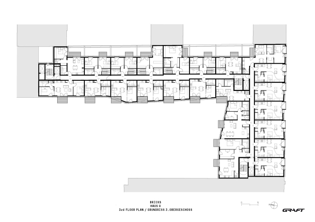
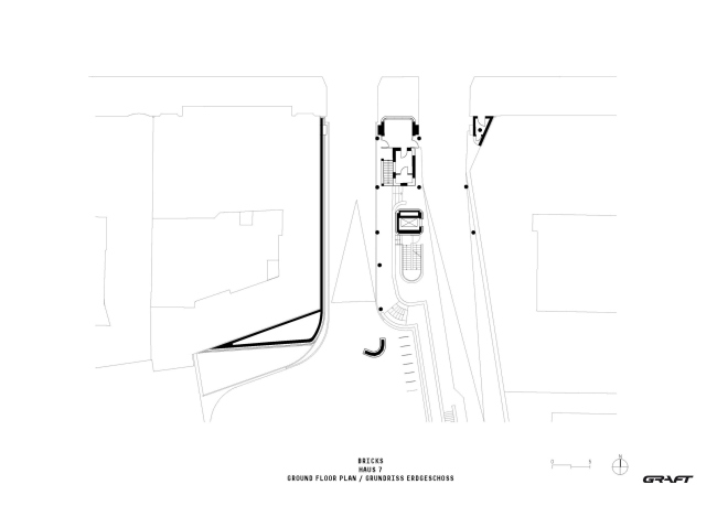
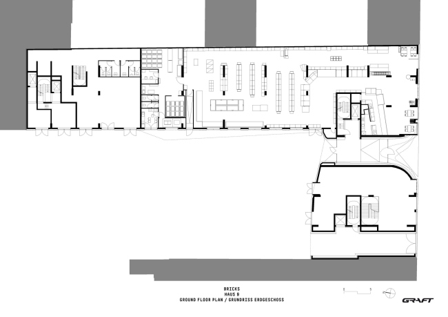
Второй, на Белцигерштрассе, в окружении солидных доходных домов, более сдержан, зато может похвастаться элегантным абрисом балконов. Интересно, что фактически начинается он со второго этажа, а на первом сохранены ворота во двор почтамта: два проезда, разделенные проходной – тоже, конечно, кирпичной. Теперь в ней устроен киоск с уличной едой.
Комплекс Bricks Berlin Schöneberg
Комплекс Bricks Berlin Schöneberg
Фото © Bttr GmbH

Конечно, кроме офисов под крышей и жилья, в Bricks Berlin Schöneberg теперь есть рестораны, магазины, спортзал, центр изучения каббалы и благоустроенные пространства, поэтому комплекс может быть интересен далеко не только своим жильцам и сотрудникам.
Комплекс Bricks Berlin Schöneberg
Комплекс Bricks Berlin Schöneberg
Фото © Bttr GmbH
Комплекс Bricks Berlin Schöneberg
Комплекс Bricks Berlin Schöneberg
Фото © Bttr GmbH
Комплекс Bricks Berlin Schöneberg
Комплекс Bricks Berlin Schöneberg
Фото © Bttr GmbH
Комплекс Bricks Berlin Schöneberg
Комплекс Bricks Berlin Schöneberg
Фото © Bttr GmbH
Комплекс Bricks Berlin Schöneberg
Комплекс Bricks Berlin Schöneberg
Фото © Bttr GmbH
Комплекс Bricks Berlin Schöneberg
Комплекс Bricks Berlin Schöneberg
Фото © Trockland Management GmbH
Комплекс Bricks Berlin Schöneberg
Комплекс Bricks Berlin Schöneberg
Фото © Trockland Management GmbH
Комплекс Bricks Berlin Schöneberg
Комплекс Bricks Berlin Schöneberg
Фото © Trockland Management GmbH
Комплекс Bricks Berlin Schöneberg
Комплекс Bricks Berlin Schöneberg
© GRAFT GmbH
Комплекс Bricks Berlin Schöneberg
Комплекс Bricks Berlin Schöneberg
© GRAFT GmbH
Комплекс Bricks Berlin Schöneberg
Комплекс Bricks Berlin Schöneberg
© GRAFT GmbH
Комплекс Bricks Berlin Schöneberg
Комплекс Bricks Berlin Schöneberg
© GRAFT GmbH
Комплекс Bricks Berlin Schöneberg
Комплекс Bricks Berlin Schöneberg
© GRAFT GmbH
Комплекс Bricks Berlin Schöneberg
Комплекс Bricks Berlin Schöneberg
© GRAFT GmbH
Комплекс Bricks Berlin Schöneberg
Комплекс Bricks Berlin Schöneberg
© GRAFT GmbH
Комплекс Bricks Berlin Schöneberg
Комплекс Bricks Berlin Schöneberg
© GRAFT GmbH
Комплекс Bricks Berlin Schöneberg
Комплекс Bricks Berlin Schöneberg
© GRAFT GmbH
Комплекс Bricks Berlin Schöneberg
Комплекс Bricks Berlin Schöneberg
© GRAFT GmbH
Комплекс Bricks Berlin Schöneberg
Комплекс Bricks Berlin Schöneberg
© GRAFT GmbH
Комплекс Bricks Berlin Schöneberg
Комплекс Bricks Berlin Schöneberg
© GRAFT GmbH
Комплекс Bricks Berlin Schöneberg
Комплекс Bricks Berlin Schöneberg
© GRAFT GmbH
Комплекс Bricks Berlin Schöneberg
Комплекс Bricks Berlin Schöneberg
© GRAFT GmbH
Комплекс Bricks Berlin Schöneberg
Комплекс Bricks Berlin Schöneberg
© GRAFT GmbH
Комплекс Bricks Berlin Schöneberg
Комплекс Bricks Berlin Schöneberg
© GRAFT GmbH
Комплекс Bricks Berlin Schöneberg
Комплекс Bricks Berlin Schöneberg
© GRAFT GmbH