Размещено на портале Архи.ру (www.archi.ru)

16.11.2020

Кирпич и фарфор

Нина Фролова
Объект:
Музей Императорской печи для обжига фарфора в Цзиндэчжэне
Адрес:
Китай, None, Цзиндэчжэнь.
Мастерская:
Studio Zhu Pei

Музей Императорской печи в Цзиндэчжэне на юго-востоке Китая в прямом и переносном смысле построен вокруг тысячелетней традиции создания фарфора. Авторы проекта – пекинские архитекторы Studio Zhu-Pei.

Цзиндэчжэн – один из крупнейших центров фарфорового производства в Китае: он приобрел известность в XI веке, а в XIV веке стал «императорским» – здесь производили фарфор для нужд двора и для подарков приближенным властителя. Также изделия отсюда активно поставлялись в Европу. Производство в Цзиндэчжэне широко идет и сегодня, однако от Императорской печи (точнее, печей) остались только руины – частью потому, что для качественного обжига традиционная печь не может быть старше двух-трех лет, затем она теряет свои термические свойства и должна быть разобрана.

Музей Императорской печи для обжига фарфора в Цзиндэчжэне
Музей Императорской печи для обжига фарфора в Цзиндэчжэне
Фото © Studio Zhu-Pei

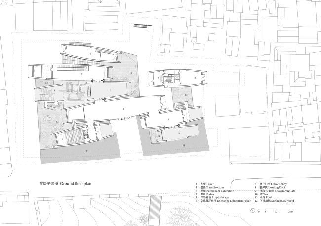
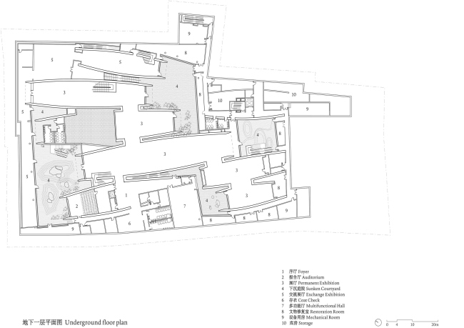
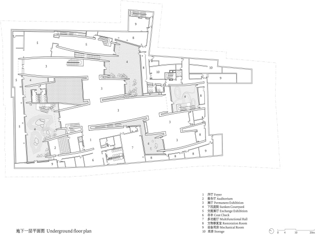
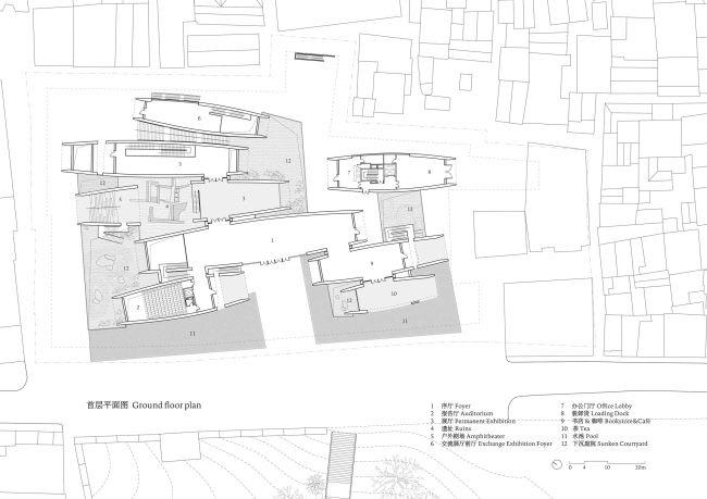
Музей Императорской печи по проекту Studio Zhu-Pei построен у археологической зоны рядом с ее, печи, руинами. Остатки производственных сооружений есть и на территории собственно музея, часть их обнаружили в процессе строительства. Это во многом определило проект: он построен на сочетании внешнего и внутреннего, связи с «почвой». Значительную часть территории занимают углубленные дворы, и сам музей утоплен по сравнению с уровнем улицы.
Музей Императорской печи для обжига фарфора в Цзиндэчжэне
Музей Императорской печи для обжига фарфора в Цзиндэчжэне
Фото © Tian Fangfang

Комплекс представляет собой серию вытянутых параллельно друг другу кирпичных сводов: форма и материал позаимствованы у печей для обжига фарфора. Из кирпича этих печей выстроено большинство исторических зданий в Цзиндэчжэне: раз их приходилось часто разбирать, кирпич широко использовался повторно и вообще играл большую роль в жизни горожан. Скажем, еще недавно школьники зимой клали в ранцы нагретый в печи кирпич, который отдавал им тепло в течение целого дня.
Музей Императорской печи для обжига фарфора в Цзиндэчжэне
Музей Императорской печи для обжига фарфора в Цзиндэчжэне
Фото © schranimage

Печи строились из минимума материала, перекрывая максимум площади: отсюда их довольно современная форма, позаимствованная музеем. Только в его случае основа каждого свода – все же бетонная, облицованная кирпичом изнутри и снаружи. Был использован как кирпич из разобранных печей, так и новый: такая смесь – самая характерная для зданий Цзиндэчжэня.
Музей Императорской печи для обжига фарфора в Цзиндэчжэне
Музей Императорской печи для обжига фарфора в Цзиндэчжэне
Фото © Studio Zhu-Pei

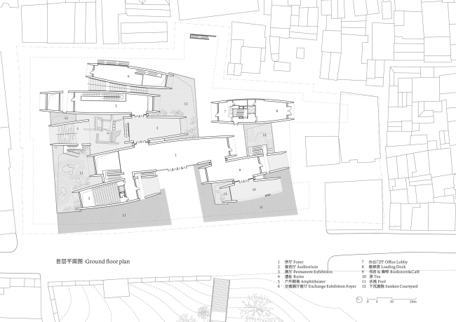
Посетители попадают в музей со стороны археологической зоны, с юго-запада. Перед протяженным парадным фасадом расположен зеркальный водоем, через который ведет дорожка-мост. Посетители оказываются в вестибюле, рядом с которым сгруппированы привычные функции: аудитория, кафе, чайная, книжный магазин. Дальше, среди дворов и полуоткрытых сводов помещены своды закрытые – с выставочными залами для постоянных и временных экспозиций. Музейная администрация тоже получила свой свод – угловой с юга.
Музей Императорской печи для обжига фарфора в Цзиндэчжэне
Музей Императорской печи для обжига фарфора в Цзиндэчжэне
Фото © schranimage

Особое внимание авторы проекта уделили свету: он проникает внутрь сквозь остекленные или открытые торцы сводов, а также сквозь маленькие округлые проемы в перекрытиях. Чтобы сохранить этот образ и в темное время суток, рядом помещены такие же светильники.
Музей Императорской печи для обжига фарфора в Цзиндэчжэне
Музей Императорской печи для обжига фарфора в Цзиндэчжэне
Фото © Studio Zhu-Pei

Отдельного упоминания заслуживают лестницы, переходы, амфитеатр открытой части комплекса, где продуманно кадрируются виды то на окружающий город, то на соседний исторический павильон.
Музей Императорской печи для обжига фарфора в Цзиндэчжэне
Музей Императорской печи для обжига фарфора в Цзиндэчжэне
Фото © schranimage

Материалы для публикации предоставлены v2com.
Музей Императорской печи для обжига фарфора в Цзиндэчжэне
Музей Императорской печи для обжига фарфора в Цзиндэчжэне
Фото © schranimage
Музей Императорской печи для обжига фарфора в Цзиндэчжэне
Музей Императорской печи для обжига фарфора в Цзиндэчжэне
Фото © schranimage
Музей Императорской печи для обжига фарфора в Цзиндэчжэне
Музей Императорской печи для обжига фарфора в Цзиндэчжэне
Фото © schranimage
Музей Императорской печи для обжига фарфора в Цзиндэчжэне
Музей Императорской печи для обжига фарфора в Цзиндэчжэне
Фото © schranimage
Музей Императорской печи для обжига фарфора в Цзиндэчжэне
Музей Императорской печи для обжига фарфора в Цзиндэчжэне
Фото © Studio Zhu-Pei
Музей Императорской печи для обжига фарфора в Цзиндэчжэне
Музей Императорской печи для обжига фарфора в Цзиндэчжэне
Фото © Tian Fangfang
Музей Императорской печи для обжига фарфора в Цзиндэчжэне
Музей Императорской печи для обжига фарфора в Цзиндэчжэне
Фото © schranimage
Музей Императорской печи для обжига фарфора в Цзиндэчжэне
Музей Императорской печи для обжига фарфора в Цзиндэчжэне
Фото © schranimage
Музей Императорской печи для обжига фарфора в Цзиндэчжэне
Музей Императорской печи для обжига фарфора в Цзиндэчжэне
Фото © schranimage
Музей Императорской печи для обжига фарфора в Цзиндэчжэне
Музей Императорской печи для обжига фарфора в Цзиндэчжэне
Фото © schranimage
Музей Императорской печи для обжига фарфора в Цзиндэчжэне
Музей Императорской печи для обжига фарфора в Цзиндэчжэне
Фото © schranimage
Музей Императорской печи для обжига фарфора в Цзиндэчжэне
Музей Императорской печи для обжига фарфора в Цзиндэчжэне
Фото © Studio Zhu-Pei
Музей Императорской печи для обжига фарфора в Цзиндэчжэне
Музей Императорской печи для обжига фарфора в Цзиндэчжэне
Фото © Zhang Qinquan
Музей Императорской печи для обжига фарфора в Цзиндэчжэне
Музей Императорской печи для обжига фарфора в Цзиндэчжэне
© Studio Zhu-Pei
Музей Императорской печи для обжига фарфора в Цзиндэчжэне
Музей Императорской печи для обжига фарфора в Цзиндэчжэне
© Studio Zhu-Pei
Музей Императорской печи для обжига фарфора в Цзиндэчжэне
Музей Императорской печи для обжига фарфора в Цзиндэчжэне
© Studio Zhu-Pei
Музей Императорской печи для обжига фарфора в Цзиндэчжэне
Музей Императорской печи для обжига фарфора в Цзиндэчжэне
© Studio Zhu-Pei
Музей Императорской печи для обжига фарфора в Цзиндэчжэне
Музей Императорской печи для обжига фарфора в Цзиндэчжэне
© Studio Zhu-Pei
Музей Императорской печи для обжига фарфора в Цзиндэчжэне
Музей Императорской печи для обжига фарфора в Цзиндэчжэне
© Studio Zhu-Pei
Музей Императорской печи для обжига фарфора в Цзиндэчжэне
Музей Императорской печи для обжига фарфора в Цзиндэчжэне
© Studio Zhu-Pei
Музей Императорской печи для обжига фарфора в Цзиндэчжэне
Музей Императорской печи для обжига фарфора в Цзиндэчжэне
© Studio Zhu-Pei