Размещено на портале Архи.ру (www.archi.ru)

06.11.2020

Изгибы среди деревьев

Нина Фролова
Объект:
Корпус визуальных искусств Уинтер Колледжа Франклина и Маршалла
Адрес:
США, None, Ланкастер_.

Корпус визуальных искусств в пенсильванском колледже по проекту Стивена Холла получил криволинейный план, чтобы сберечь 200-летние деревья вокруг.

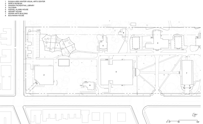
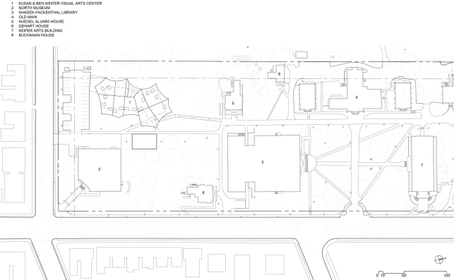
Корпус Уинтер расположен на границе парка Бьюкенен и кампуса колледжа Франклина и Маршалла (имеется в виду именно Бендажмин Франклин: он выделил на основание колледжа средства в конце XVIII века) в городе Ланкастер в штате Пенсильвания, в «старой», северо-восточной части США.
 

Корпус визуальных искусств Уинтер Колледжа Франклина и Маршалла
Корпус визуальных искусств Уинтер Колледжа Франклина и Маршалла
Фото © Paul Warchol

Основная часть вузовских построек – кирпичные корпуса середины XIX века, а вот многие деревья – старше, 200-летнего возраста. Чтобы сохранить их, Стивен Холл спроектировал новое здание – для факультетов искусств, кинематографа и истории искусства – с плавными дугообразными «лакунами»: так архитектура уступает место природе. Эта мягкая криволинейность поддержана в интерьере деревянными перекрытиями, опирающимися на изогнутые металлические трубы, а те держатся на скрытых в стенах фермах.
 
Корпус визуальных искусств Уинтер Колледжа Франклина и Маршалла
Корпус визуальных искусств Уинтер Колледжа Франклина и Маршалла
Фото © Paul Warchol

Как и всегда у Холла, важнейшую роль в проекте играет естественный свет. Даже в подвальный этаж, отданный не нуждающимся в солнце медиа-художникам, лучи попадают сквозь проемы в перекрытиях. В остальные пространства они проникают сквозь фасады из конструктивных стеклянных панелей типа U-plank: они установлены в два слоя, между ними проложена прозрачная изоляция. Так удалось добиться высокой термоизоляции с оптимальным для художественных мастерских проникновением рассеянного света. Его обилие позволяет экономить электричество, тем же целям служат открывающиеся окна: о том, что нужно растворить форточку, студентам и преподавателям напоминают специальные панели, куда подается информация о погоде от сенсоров.
 
Корпус визуальных искусств Уинтер Колледжа Франклина и Маршалла
Корпус визуальных искусств Уинтер Колледжа Франклина и Маршалла
Фото © Paul Warchol

Проект претендует на «золотой» сертификат LEED благодаря описанному выше фасаду и сохраненным деревьям, использованию местных материалов (включая дерево и фанеру, которые полностью соответствуют эко-стандарту), повышенным требованиям к безопасности всех материалов, высокоэффективной излучательной системе отопления и охлаждения помещений на водной основе, встроенной в бетонные плиты пола. Зеркальный водоем рядом служит для стока дождевой воды.
 
Корпус визуальных искусств Уинтер Колледжа Франклина и Маршалла
Корпус визуальных искусств Уинтер Колледжа Франклина и Маршалла
Фото © Paul Warchol

Конструкция здания до первого этажа включительно – монолитный бетон, выше – металлический каркас.
 
Корпус визуальных искусств Уинтер Колледжа Франклина и Маршалла
Корпус визуальных искусств Уинтер Колледжа Франклина и Маршалла
Фото © Paul Warchol

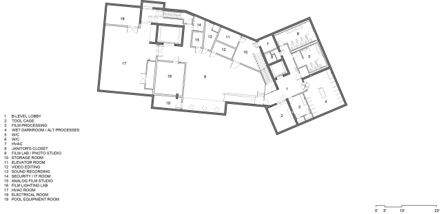
В цокольном этаже размещены будущие фотографы, кинематографисты и видео-художники, на первом этаже – общественное пространство (форум) и выставочные залы: они связывают новое здание с городом и его жителями. Там же – пространства для скульпторов, которые часто работают с тяжелыми материалами и произведениями: на уровне земли их проще загружать и выгружать из мастерских.
 
Корпус визуальных искусств Уинтер Колледжа Франклина и Маршалла
Корпус визуальных искусств Уинтер Колледжа Франклина и Маршалла
Фото © Paul Warchol

На антресольном ярусе – мастерские преподавателей, семинарские помещения для искусствоведов, а также балкон «среди деревьев». На втором этаже – студии рисунка, живописи, резьбы по дереву, гравюры и дизайна, а также кинозал. Кроме того, уровни объединяет commons для студентов – общие пространства вокруг атриума с лестницей.
Корпус визуальных искусств Уинтер Колледжа Франклина и Маршалла
Корпус визуальных искусств Уинтер Колледжа Франклина и Маршалла
Фото © Paul Warchol
Корпус визуальных искусств Уинтер Колледжа Франклина и Маршалла
Корпус визуальных искусств Уинтер Колледжа Франклина и Маршалла
Фото © Paul Warchol
Корпус визуальных искусств Уинтер Колледжа Франклина и Маршалла
Корпус визуальных искусств Уинтер Колледжа Франклина и Маршалла
Фото © Paul Warchol
Корпус визуальных искусств Уинтер Колледжа Франклина и Маршалла
Корпус визуальных искусств Уинтер Колледжа Франклина и Маршалла
© Steven Holl Architects
Корпус визуальных искусств Уинтер Колледжа Франклина и Маршалла
Корпус визуальных искусств Уинтер Колледжа Франклина и Маршалла
© Steven Holl Architects
Корпус визуальных искусств Уинтер Колледжа Франклина и Маршалла
Корпус визуальных искусств Уинтер Колледжа Франклина и Маршалла
© Steven Holl Architects
Корпус визуальных искусств Уинтер Колледжа Франклина и Маршалла
Корпус визуальных искусств Уинтер Колледжа Франклина и Маршалла
© Steven Holl Architects
Корпус визуальных искусств Уинтер Колледжа Франклина и Маршалла
Корпус визуальных искусств Уинтер Колледжа Франклина и Маршалла
© Steven Holl Architects
Корпус визуальных искусств Уинтер Колледжа Франклина и Маршалла
Корпус визуальных искусств Уинтер Колледжа Франклина и Маршалла
© Steven Holl Architects
Корпус визуальных искусств Уинтер Колледжа Франклина и Маршалла
Корпус визуальных искусств Уинтер Колледжа Франклина и Маршалла
© Steven Holl Architects
Корпус визуальных искусств Уинтер Колледжа Франклина и Маршалла
Корпус визуальных искусств Уинтер Колледжа Франклина и Маршалла
© Steven Holl Architects
Корпус визуальных искусств Уинтер Колледжа Франклина и Маршалла
Корпус визуальных искусств Уинтер Колледжа Франклина и Маршалла
© Steven Holl Architects
Корпус визуальных искусств Уинтер Колледжа Франклина и Маршалла
Корпус визуальных искусств Уинтер Колледжа Франклина и Маршалла
© Steven Holl Architects
Корпус визуальных искусств Уинтер Колледжа Франклина и Маршалла
Корпус визуальных искусств Уинтер Колледжа Франклина и Маршалла
© Steven Holl Architects
Корпус визуальных искусств Уинтер Колледжа Франклина и Маршалла
Корпус визуальных искусств Уинтер Колледжа Франклина и Маршалла
© Steven Holl Architects
Корпус визуальных искусств Уинтер Колледжа Франклина и Маршалла
Корпус визуальных искусств Уинтер Колледжа Франклина и Маршалла
© Steven Holl Architects
Корпус визуальных искусств Уинтер Колледжа Франклина и Маршалла
Корпус визуальных искусств Уинтер Колледжа Франклина и Маршалла
© Steven Holl
Корпус визуальных искусств Уинтер Колледжа Франклина и Маршалла
Корпус визуальных искусств Уинтер Колледжа Франклина и Маршалла
© Steven Holl
Корпус визуальных искусств Уинтер Колледжа Франклина и Маршалла
Корпус визуальных искусств Уинтер Колледжа Франклина и Маршалла
© Steven Holl
Корпус визуальных искусств Уинтер Колледжа Франклина и Маршалла
Корпус визуальных искусств Уинтер Колледжа Франклина и Маршалла
© Steven Holl
Корпус визуальных искусств Уинтер Колледжа Франклина и Маршалла
Корпус визуальных искусств Уинтер Колледжа Франклина и Маршалла
© Steven Holl