Размещено на портале Архи.ру (www.archi.ru)

08.10.2020

Общежитие на контрастной подкладке

Нина Фролова
Объект:
Студенческое общежитие 2en1
Адрес:
Франция, None, Обервилье.
Мастерская:
BFV Architectes

Студенческое общежитие в пригороде Парижа по проекту бюро BFV Architectes.

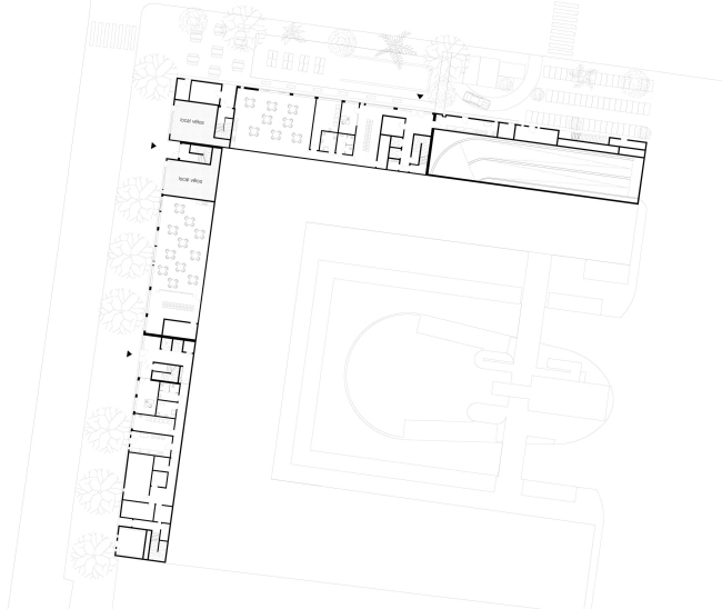
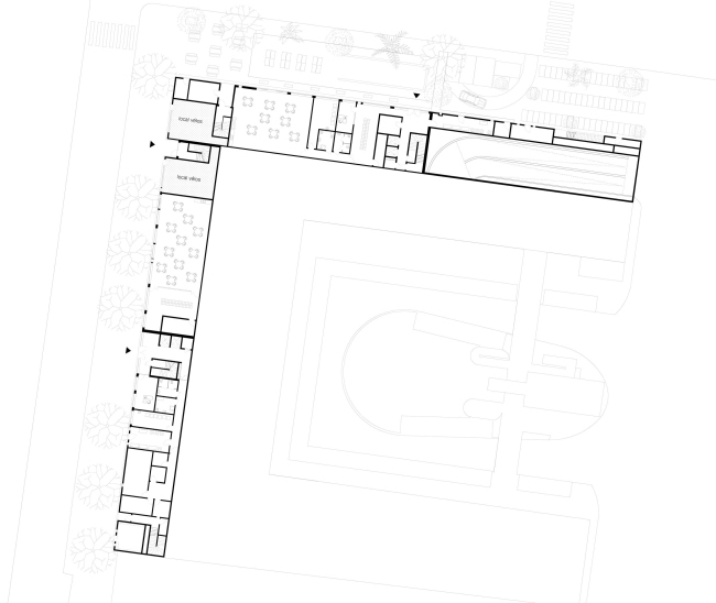
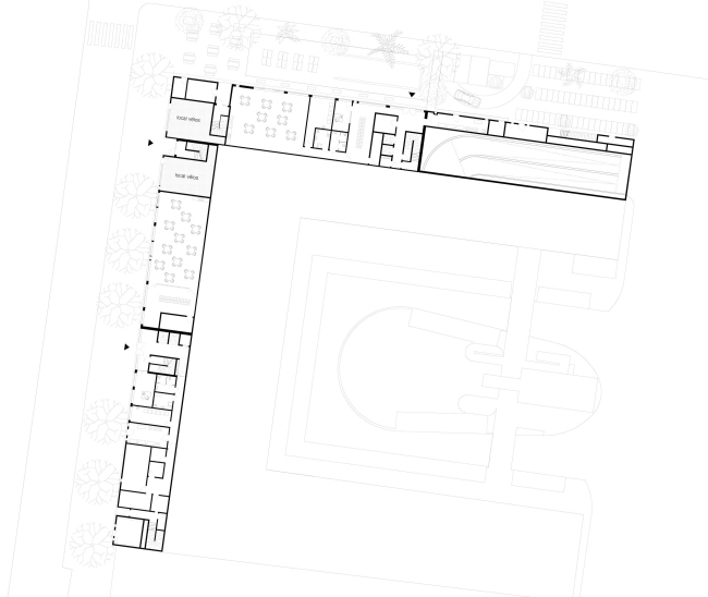
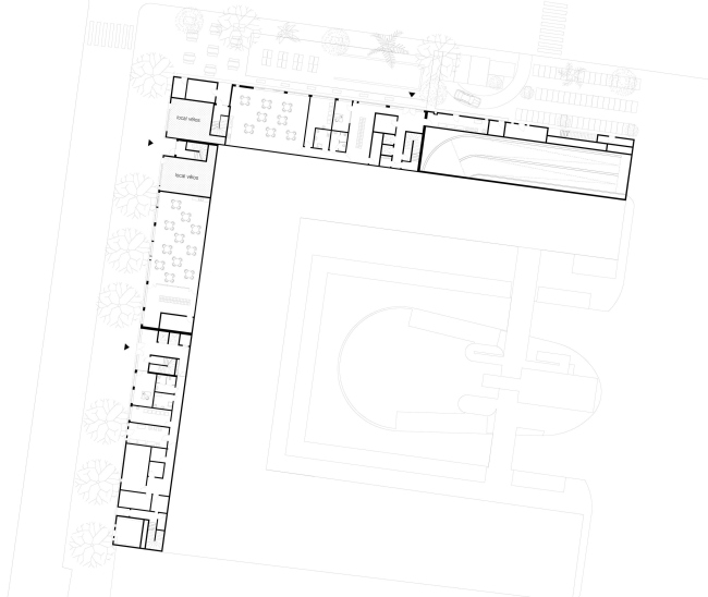
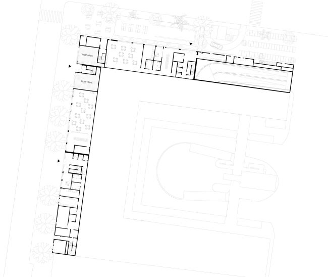
Участок под строительство расположен в пригороде Парижа Обервилье, в переживающей реконструкцию промзоне. Общежитие на 300 комнат по этой причине сочетает «гуманистический» облик с достаточной простотой образа, которая необходима в подобном окружении.
 

Студенческое общежитие 2en1
Студенческое общежитие 2en1
Фото © Fréderic Delangle

Архитекторы построили проект на мотиве «лицо – подкладка»: выходящий на более оживленную улицу фасад – белый с красными деталями, на более тихую (здание имеет Г-образный план и построено на перекрестке) – красный с белыми.
 
Студенческое общежитие 2en1
Студенческое общежитие 2en1
Фото © Fréderic Delangle

Двухсветный первый этаж, полоса из окрашенного бетона, вмещает вестибюль, коворкинг, кафе, прачечную и другие пространства общего пользования. Выше фасад образуют перфорированные металлические панели, а контрастный цвет отмечает частные террасы, предназначенные для сдвоенных комнат, точнее, защищающие эти террасы от солнца решетчатые экраны.
 
Студенческое общежитие 2en1
Студенческое общежитие 2en1
Фото © Fréderic Delangle
Студенческое общежитие 2en1
Студенческое общежитие 2en1
Фото © Fréderic Delangle
Студенческое общежитие 2en1
Студенческое общежитие 2en1
Фото © Fréderic Delangle
Студенческое общежитие 2en1
Студенческое общежитие 2en1
Фото © Fréderic Delangle
Студенческое общежитие 2en1
Студенческое общежитие 2en1
Фото © Côme Bocabeille
Студенческое общежитие 2en1
Студенческое общежитие 2en1
Фото © Côme Bocabeille
Студенческое общежитие 2en1
Студенческое общежитие 2en1
Фото © Fréderic Delangle
Студенческое общежитие 2en1
Студенческое общежитие 2en1
Фото © Fréderic Delangle
Студенческое общежитие 2en1
Студенческое общежитие 2en1
Фото © Fréderic Delangle
Студенческое общежитие 2en1
Студенческое общежитие 2en1
© BFV Architectes
Студенческое общежитие 2en1
Студенческое общежитие 2en1
© BFV Architectes
Студенческое общежитие 2en1
Студенческое общежитие 2en1
© BFV Architectes
Студенческое общежитие 2en1
Студенческое общежитие 2en1
© BFV Architectes
Студенческое общежитие 2en1
Студенческое общежитие 2en1
© BFV Architectes
Студенческое общежитие 2en1
Студенческое общежитие 2en1
© BFV Architectes
Студенческое общежитие 2en1
Студенческое общежитие 2en1
© BFV Architectes
Студенческое общежитие 2en1
Студенческое общежитие 2en1
© BFV Architectes