Размещено на портале Архи.ру (www.archi.ru)

30.09.2020

Корпоративная пещера

Нина Фролова
Объект:
Естественно-исторический музей камня компании Yingliang
Адрес:
Китай, None, Шуйтоу.
Мастерская:
Atelier Alter

Пекинское бюро Atelier Alter устроило в штаб-квартире компании Yingliang на юго-востоке Китая музей окаменелостей, найденных при добыче ею камня.

Компания Yingliang в городе Шуйтоу (уезд Наньань) на юго-востоке Китая при добыче камня в кристаллическом скальном основании обнаружила там значительное число различных окаменелостей, которые решила показать в собственном музее.
 

Естественно-исторический музей камня компании Yingliang
Естественно-исторический музей камня компании Yingliang
© Atelier Alter

Местом для него выбрали штаб-квартиру компании с сохранением ее основной функции. Архитекторы Atelier Alter по этой причине должны были не только вписать выставочные зоны в существующее здание, но и согласовать новую общественную программу с существующей частной – корпоративной.
 
Естественно-исторический музей камня компании Yingliang
Естественно-исторический музей камня компании Yingliang
© Atelier Alter

Музей занял пространство остекленного атриума, поэтому еще одной задачей было сохранить естественное освещение и там, и в офисных пространствах – а оно изначально не было щедрым.
 
Естественно-исторический музей камня компании Yingliang © Atelier Alter
Естественно-исторический музей камня компании Yingliang
© Atelier Alter
Естественно-исторический музей камня компании Yingliang © Atelier Alter
Естественно-исторический музей камня компании Yingliang
© Atelier Alter
Естественно-исторический музей камня компании Yingliang © Atelier Alter
Естественно-исторический музей камня компании Yingliang
© Atelier Alter
Естественно-исторический музей камня компании Yingliang © Atelier Alter
Естественно-исторический музей камня компании Yingliang
© Atelier Alter
Естественно-исторический музей камня компании Yingliang © Atelier Alter
Естественно-исторический музей камня компании Yingliang
© Atelier Alter

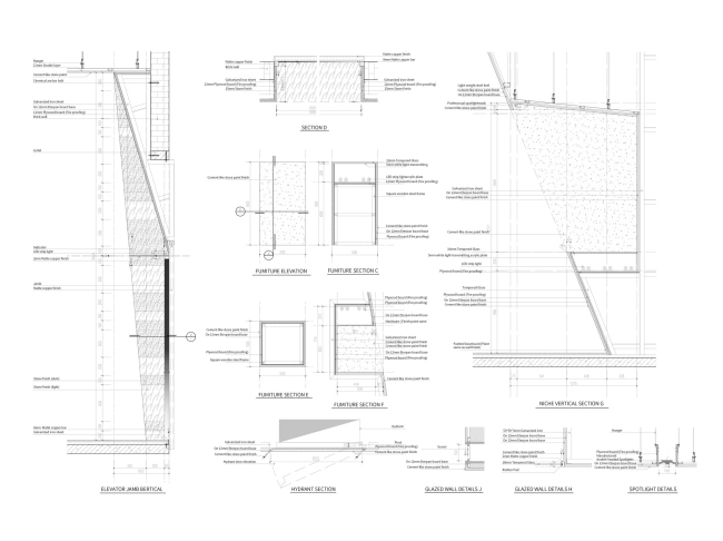
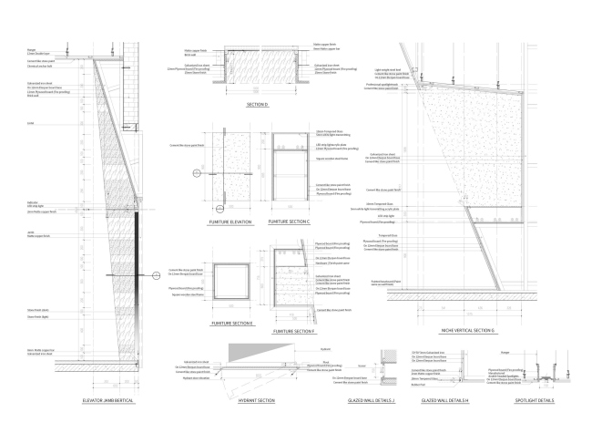
Проект представляет собой внедрение пирамидообразных и кристаллических форм в прямоугольную систему координат, которой соответствовало здание. Главная пирамида перевернута: это колодец, по которому свет попадает на второй этаж – в атриум музея, а ее внешние поверхности отражают в офисы солнечные лучи, проникающие через не занятое основанием пирамиды остекление. Горизонтально направленные кристаллы образуют выставочные залы, вертикально – помогают направлять свет глубже в интерьер.
 
Естественно-исторический музей камня компании Yingliang
Естественно-исторический музей камня компании Yingliang
© Atelier Alter

Архитекторы хотели создать впечатление прохладной пещеры, чтобы усилить воздействие экспонатов, придать им еще большее ощущение древности.
Естественно-исторический музей камня компании Yingliang
Естественно-исторический музей камня компании Yingliang
© Atelier Alter
Естественно-исторический музей камня компании Yingliang
Естественно-исторический музей камня компании Yingliang
© Atelier Alter
Естественно-исторический музей камня компании Yingliang
Естественно-исторический музей камня компании Yingliang
© Atelier Alter
Естественно-исторический музей камня компании Yingliang
Естественно-исторический музей камня компании Yingliang
© Atelier Alter
Естественно-исторический музей камня компании Yingliang
Естественно-исторический музей камня компании Yingliang
© Atelier Alter
Естественно-исторический музей камня компании Yingliang © Atelier Alter
Естественно-исторический музей камня компании Yingliang
© Atelier Alter
Естественно-исторический музей камня компании Yingliang © Atelier Alter
Естественно-исторический музей камня компании Yingliang
© Atelier Alter
Естественно-исторический музей камня компании Yingliang © Atelier Alter
Естественно-исторический музей камня компании Yingliang
© Atelier Alter
Естественно-исторический музей камня компании Yingliang © Atelier Alter
Естественно-исторический музей камня компании Yingliang
© Atelier Alter
Естественно-исторический музей камня компании Yingliang © Atelier Alter
Естественно-исторический музей камня компании Yingliang
© Atelier Alter
Естественно-исторический музей камня компании Yingliang © Atelier Alter
Естественно-исторический музей камня компании Yingliang
© Atelier Alter
Естественно-исторический музей камня компании Yingliang
Естественно-исторический музей камня компании Yingliang
© Atelier Alter
Естественно-исторический музей камня компании Yingliang
Естественно-исторический музей камня компании Yingliang
© Atelier Alter
Естественно-исторический музей камня компании Yingliang
Естественно-исторический музей камня компании Yingliang
© Atelier Alter
Естественно-исторический музей камня компании Yingliang © Atelier Alter
Естественно-исторический музей камня компании Yingliang
© Atelier Alter
Естественно-исторический музей камня компании Yingliang © Atelier Alter
Естественно-исторический музей камня компании Yingliang
© Atelier Alter
Естественно-исторический музей камня компании Yingliang © Atelier Alter
Естественно-исторический музей камня компании Yingliang
© Atelier Alter
Естественно-исторический музей камня компании Yingliang © Atelier Alter
Естественно-исторический музей камня компании Yingliang
© Atelier Alter
Естественно-исторический музей камня компании Yingliang
Естественно-исторический музей камня компании Yingliang
© Atelier Alter
Естественно-исторический музей камня компании Yingliang
Естественно-исторический музей камня компании Yingliang
© Atelier Alter
Естественно-исторический музей камня компании Yingliang
Естественно-исторический музей камня компании Yingliang
© Atelier Alter
Естественно-исторический музей камня компании Yingliang
Естественно-исторический музей камня компании Yingliang
© Atelier Alter
Естественно-исторический музей камня компании Yingliang
Естественно-исторический музей камня компании Yingliang
© Atelier Alter
Естественно-исторический музей камня компании Yingliang © Atelier Alter
Естественно-исторический музей камня компании Yingliang
© Atelier Alter
Естественно-исторический музей камня компании Yingliang © Atelier Alter
Естественно-исторический музей камня компании Yingliang
© Atelier Alter
Естественно-исторический музей камня компании Yingliang © Atelier Alter
Естественно-исторический музей камня компании Yingliang
© Atelier Alter
Естественно-исторический музей камня компании Yingliang © Atelier Alter
Естественно-исторический музей камня компании Yingliang
© Atelier Alter
Естественно-исторический музей камня компании Yingliang © Atelier Alter
Естественно-исторический музей камня компании Yingliang
© Atelier Alter
Естественно-исторический музей камня компании Yingliang © Atelier Alter
Естественно-исторический музей камня компании Yingliang
© Atelier Alter
Естественно-исторический музей камня компании Yingliang
Естественно-исторический музей камня компании Yingliang
© Atelier Alter
Естественно-исторический музей камня компании Yingliang
Естественно-исторический музей камня компании Yingliang
© Atelier Alter
Естественно-исторический музей камня компании Yingliang
Естественно-исторический музей камня компании Yingliang
© Atelier Alter
Естественно-исторический музей камня компании Yingliang
Естественно-исторический музей камня компании Yingliang
© Atelier Alter
Естественно-исторический музей камня компании Yingliang
Естественно-исторический музей камня компании Yingliang
© Atelier Alter
Естественно-исторический музей камня компании Yingliang © Atelier Alter
Естественно-исторический музей камня компании Yingliang
© Atelier Alter
Естественно-исторический музей камня компании Yingliang © Atelier Alter
Естественно-исторический музей камня компании Yingliang
© Atelier Alter
Естественно-исторический музей камня компании Yingliang © Atelier Alter
Естественно-исторический музей камня компании Yingliang
© Atelier Alter
Естественно-исторический музей камня компании Yingliang © Atelier Alter
Естественно-исторический музей камня компании Yingliang
© Atelier Alter
Естественно-исторический музей камня компании Yingliang © Atelier Alter
Естественно-исторический музей камня компании Yingliang
© Atelier Alter
Естественно-исторический музей камня компании Yingliang © Atelier Alter
Естественно-исторический музей камня компании Yingliang
© Atelier Alter
Естественно-исторический музей камня компании Yingliang © Atelier Alter
Естественно-исторический музей камня компании Yingliang
© Atelier Alter
Естественно-исторический музей камня компании Yingliang
Естественно-исторический музей камня компании Yingliang
© Atelier Alter
Естественно-исторический музей камня компании Yingliang
Естественно-исторический музей камня компании Yingliang
© Atelier Alter
Естественно-исторический музей камня компании Yingliang
Естественно-исторический музей камня компании Yingliang
© Atelier Alter
Естественно-исторический музей камня компании Yingliang
Естественно-исторический музей камня компании Yingliang
© Atelier Alter
Естественно-исторический музей камня компании Yingliang
Естественно-исторический музей камня компании Yingliang
© Atelier Alter
Естественно-исторический музей камня компании Yingliang
Естественно-исторический музей камня компании Yingliang
© Atelier Alter
Естественно-исторический музей камня компании Yingliang
Естественно-исторический музей камня компании Yingliang
© Atelier Alter