Размещено на портале Архи.ру (www.archi.ru)

17.09.2020

Двуликий коворкинг

Нина Фролова
Объект:
Центр Concordia Design Wrocław
Адрес:
Польша, None, Вроцлав.
Мастерская:
MVRDV

Центр Concordia Design по проекту архитекторов MVRDV во Вроцлаве соединил фасады XIX и XXI веков.

Concordia Design Wrocław расположился на Солодовом острове (wyspa Słodowa) на реке Одра. Этот остров играет в первую очередь рекреационную функцию – как парк и место кинопоказов, концертов, спортивных соревнований. Все здания, которые в прошлом здесь были, оказались разрушены во время осады Вроцлава (тогда еще Бреслау) Красной армией в 1945. Сохранился лишь доходный дом XIX века, который и стал основой для коворкинга по проекту MVRDV.
 

Центр Concordia Design Wrocław
Центр Concordia Design Wrocław
Фото © Juliusz Sokołowski

Имеющая статус памятника историческая часть трактуется архитекторами как «регулярное» лицо их постройки, к которой они добавили второе, «неформальное». Фасады XIX века отреставрированы (это объект культурного наследия), с торца устроен один из двух главных входов, за которым – трехсветный атриум с кафе, старые стены очищены до кирпича и дополнены деревянной отделкой.
 
Центр Concordia Design Wrocław
Центр Concordia Design Wrocław
Фото © Juliusz Sokołowski

Неформальная часть получила в торце такой же атриум, а вместо кафе – «фуд-холл». Внутри она расписана художницей Алицией Бяла, что хорошо видно снаружи благодаря обширным стеклянным поверхностям. В остальном у новых фасадов – регулярная сетка окон без деталей, что позволило согласовать их с частью XIX столетия.
 
Центр Concordia Design Wrocław
Центр Concordia Design Wrocław
Фото © Juliusz Sokołowski

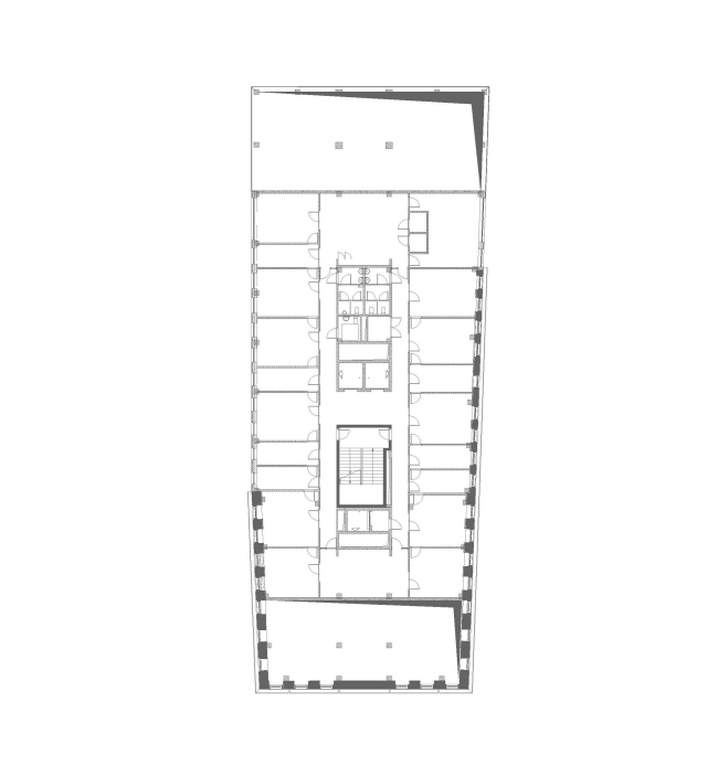
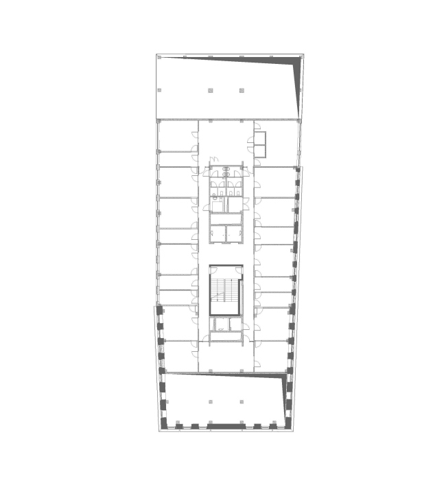
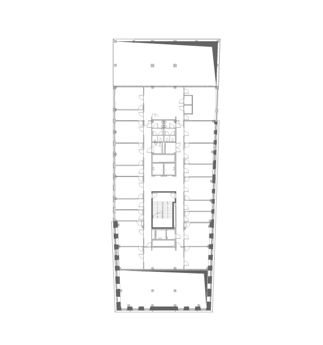
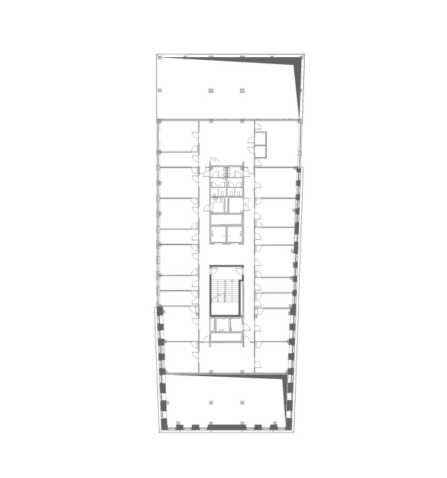
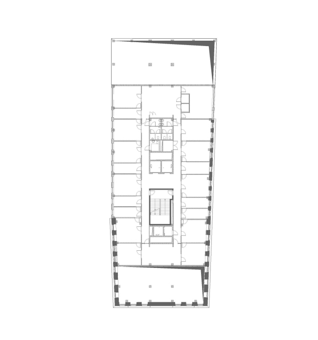
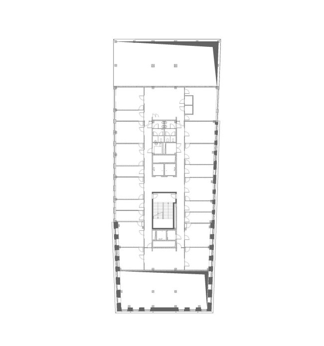
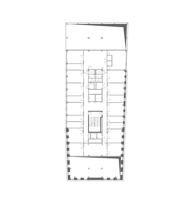
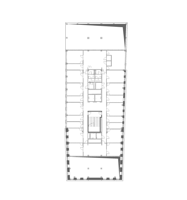
Основную часть здания площадью 7000 м2 занимает коворкинг, а на новой части кровли устроили нечто вроде теплицы – остекленную террасу с садом для разных мероприятий. Заказчик проекта – фирма Concordia Design, его сопровождали польские архитекторы Q2.
Центр Concordia Design Wrocław Фото © Juliusz Sokołowski & Maciej Lulko
Центр Concordia Design Wrocław
Фото © Juliusz Sokołowski & Maciej Lulko
Центр Concordia Design Wrocław Фото © Juliusz Sokołowski & Maciej Lulko
Центр Concordia Design Wrocław
Фото © Juliusz Sokołowski & Maciej Lulko
Центр Concordia Design Wrocław Фото © Juliusz Sokołowski & Maciej Lulko
Центр Concordia Design Wrocław
Фото © Juliusz Sokołowski & Maciej Lulko
Центр Concordia Design Wrocław
Центр Concordia Design Wrocław
Фото © Juliusz Sokołowski & Maciej Lulko
Центр Concordia Design Wrocław
Центр Concordia Design Wrocław
Фото © Juliusz Sokołowski
Центр Concordia Design Wrocław
Центр Concordia Design Wrocław
Фото © Juliusz Sokołowski
Центр Concordia Design Wrocław Фото © Juliusz Sokołowski
Центр Concordia Design Wrocław
Фото © Juliusz Sokołowski
Центр Concordia Design Wrocław Фото © Juliusz Sokołowski
Центр Concordia Design Wrocław
Фото © Juliusz Sokołowski
Центр Concordia Design Wrocław Фото © Juliusz Sokołowski & Maciej Lulko
Центр Concordia Design Wrocław
Фото © Juliusz Sokołowski & Maciej Lulko
Центр Concordia Design Wrocław Фото © Juliusz Sokołowski
Центр Concordia Design Wrocław
Фото © Juliusz Sokołowski
Центр Concordia Design Wrocław
Центр Concordia Design Wrocław
Фото © Juliusz Sokołowski
Центр Concordia Design Wrocław
Центр Concordia Design Wrocław
Фото © Juliusz Sokołowski
Центр Concordia Design Wrocław
Центр Concordia Design Wrocław
Фото © Juliusz Sokołowski
Центр Concordia Design Wrocław
Центр Concordia Design Wrocław
Фото © Juliusz Sokołowski
Центр Concordia Design Wrocław
Центр Concordia Design Wrocław
Фото © Juliusz Sokołowski
Центр Concordia Design Wrocław
Центр Concordia Design Wrocław
Фото © Juliusz Sokołowski
Центр Concordia Design Wrocław
Центр Concordia Design Wrocław
Фото © Juliusz Sokołowski & Maciej Lulko
Центр Concordia Design Wrocław
Центр Concordia Design Wrocław
Фото © Juliusz Sokołowski & Maciej Lulko
Центр Concordia Design Wrocław Фото © Juliusz Sokołowski & Maciej Lulko
Центр Concordia Design Wrocław
Фото © Juliusz Sokołowski & Maciej Lulko
Центр Concordia Design Wrocław Фото © Juliusz Sokołowski
Центр Concordia Design Wrocław
Фото © Juliusz Sokołowski
Центр Concordia Design Wrocław Фото © Juliusz Sokołowski
Центр Concordia Design Wrocław
Фото © Juliusz Sokołowski
Центр Concordia Design Wrocław
Центр Concordia Design Wrocław
© MVRDV 2018 – (Winy Maas, Jacob van Rijs, Nathalie de Vries)
Центр Concordia Design Wrocław
Центр Concordia Design Wrocław
© MVRDV 2018 – (Winy Maas, Jacob van Rijs, Nathalie de Vries)