Размещено на портале Архи.ру (www.archi.ru)

11.09.2020

Радужный небосвод

Нина Фролова
Объект:
Церковь блаженной Марии Реституты
Адрес:
Чехия, None, Брно.
Мастерская:
Atelier Štěpán

В церкви блаженной Марии Реституты в Брно архитекторы Atelier Štěpán создали клеристорий из многоцветных окон, напоминающий о радуге как о символе завета человека с Богом.

Бетонная церковь-ротонда в Брно – не первая в портфолио архитектора Марека Яна Штепана: несколько лет назад был освящен подобный его храм рядом со Злином (мы писали о нем здесь). Однако культовое сооружение на северной окраине Брно, по словам автора, было задумано еще в 1968-м, в Пражскую весну, когда появилась надежда на либеральные перемены, в том числе в архитектурной и духовной жизни.
 

Церковь блаженной Марии Реституты
Церковь блаженной Марии Реституты
Фото © BoysPlayNice

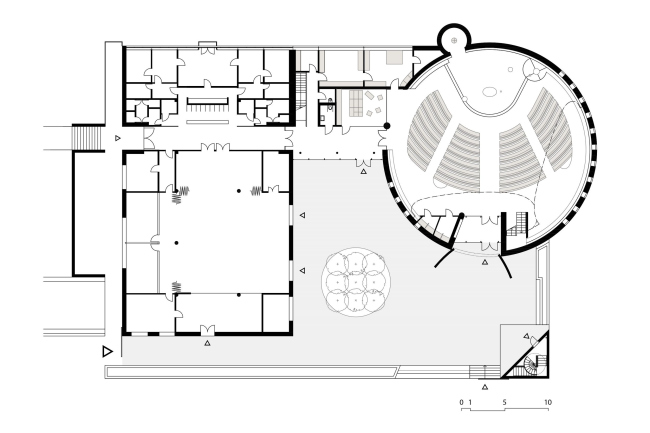
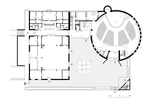
Местом для строительства стал район Лесна – бывшая деревня, в начале XX века вошедшая в состав Брно. Ее территорию занимает жилой массив 1960-х – 1970-х, до сих пор считающийся очень удачным образцом послевоенного модернизма. Его архитекторы дополнили район духовным центром, к которому в наши дни и пристроили, наконец, церковь.
 
Церковь блаженной Марии Реституты
Церковь блаженной Марии Реституты
Фото © BoysPlayNice

Храм посвящен блаженной Марии Реституте, католической монахине, родившейся в конце XIX века в тогда еще деревне Лесна, в 600 метрах от места расположения новой церкви. Мария работала медсестрой в венской больнице и была казнена в 1943 за неподчинение нацистским порядкам (она ставила выше свой профессиональный долг и веру) и открытую критику режима. Ее причислил к лику блаженных папа Иоанн Павел II.
 
Церковь блаженной Марии Реституты
Церковь блаженной Марии Реституты
Фото © BoysPlayNice

Первая в мире посвященная Марии Реституте церковь не напоминает о ее христианском подвиге, а представляет собой, по замыслу архитектора, убежище от перенасыщенного информацией современного мира, как и храм под Злином. Лаконичный интерьер оживляет бетонный свод со следами грубой деревянной опалубки, который в радужные цвета окрашивает стекло клеристория. Это кольцо изнутри и снаружи создает впечатление «парения» перекрытий храма. Учитывая то, что круг – символ неба, то задуманная Штепаном метафора свода – небосвода совершенно очевидна. Хотя замысел постройки относится к 1968-му, нельзя не отметить сходства этого 80-метрового кольца с работой Олафура Элиассона в Орхусе «Твоя радужная панорама» (2006–2011).
 
Церковь блаженной Марии Реституты
Церковь блаженной Марии Реституты
Фото © BoysPlayNice

Центрический интерьер прекрасно подходит к требованиям современной католической литургии. Треугольный проем в стене напоминает о разорвавшейся в момент смерти Иисуса на кресте завесе Иерусалимского храма.
 
Церковь блаженной Марии Реституты Фото © BoysPlayNice
Церковь блаженной Марии Реституты
Фото © BoysPlayNice
Церковь блаженной Марии Реституты Фото © BoysPlayNice
Церковь блаженной Марии Реституты
Фото © BoysPlayNice
Церковь блаженной Марии Реституты Фото © BoysPlayNice
Церковь блаженной Марии Реституты
Фото © BoysPlayNice
Церковь блаженной Марии Реституты Фото © BoysPlayNice
Церковь блаженной Марии Реституты
Фото © BoysPlayNice

Колокольня с треугольным планом не только стремится к небесам, но и обращена к церкви, к пастве выступом своей звонницы наверху. Окраска ее вершины в красный и желтый (золотой) тоже несет символическую нагрузку. Кроме того, на стену башни нанесены греческие слова «свет» и «жизнь» и знак креста. Они позаимствованы из археологических находок в Микульчице недалеко от Брно, относящихся к эпохе Великоморавской державы.
 
Церковь блаженной Марии Реституты
Церковь блаженной Марии Реституты
Фото © BoysPlayNice

Небольшой зеленый холм рядом с церковью, объект ландшафтного дизайна, тоже получил особый смысл: его назвали Елеонской горой.
Церковь блаженной Марии Реституты Фото © BoysPlayNice
Церковь блаженной Марии Реституты
Фото © BoysPlayNice
Церковь блаженной Марии Реституты Фото © BoysPlayNice
Церковь блаженной Марии Реституты
Фото © BoysPlayNice
Церковь блаженной Марии Реституты Фото © BoysPlayNice
Церковь блаженной Марии Реституты
Фото © BoysPlayNice
Церковь блаженной Марии Реституты Фото © BoysPlayNice
Церковь блаженной Марии Реституты
Фото © BoysPlayNice
Церковь блаженной Марии Реституты Фото © BoysPlayNice
Церковь блаженной Марии Реституты
Фото © BoysPlayNice
Церковь блаженной Марии Реституты Фото © BoysPlayNice
Церковь блаженной Марии Реституты
Фото © BoysPlayNice
Церковь блаженной Марии Реституты Фото © BoysPlayNice
Церковь блаженной Марии Реституты
Фото © BoysPlayNice
Церковь блаженной Марии Реституты
Церковь блаженной Марии Реституты
Фото © BoysPlayNice
Церковь блаженной Марии Реституты Фото © BoysPlayNice
Церковь блаженной Марии Реституты
Фото © BoysPlayNice
Церковь блаженной Марии Реституты Фото © BoysPlayNice
Церковь блаженной Марии Реституты
Фото © BoysPlayNice
Церковь блаженной Марии Реституты Фото © BoysPlayNice
Церковь блаженной Марии Реституты
Фото © BoysPlayNice
Церковь блаженной Марии Реституты Фото © BoysPlayNice
Церковь блаженной Марии Реституты
Фото © BoysPlayNice
Церковь блаженной Марии Реституты
Церковь блаженной Марии Реституты
Фото © BoysPlayNice
Церковь блаженной Марии Реституты
Церковь блаженной Марии Реституты
Фото © BoysPlayNice
Церковь блаженной Марии Реституты
Церковь блаженной Марии Реституты
Фото © BoysPlayNice
Церковь блаженной Марии Реституты
Церковь блаженной Марии Реституты
Фото © BoysPlayNice
Церковь блаженной Марии Реституты
Церковь блаженной Марии Реституты
Фото © BoysPlayNice
Церковь блаженной Марии Реституты
Церковь блаженной Марии Реституты
Фото © BoysPlayNice
Церковь блаженной Марии Реституты
Церковь блаженной Марии Реституты
Фото © BoysPlayNice
Церковь блаженной Марии Реституты
Церковь блаженной Марии Реституты
Фото © BoysPlayNice
Церковь блаженной Марии Реституты Фото © BoysPlayNice
Церковь блаженной Марии Реституты
Фото © BoysPlayNice
Церковь блаженной Марии Реституты Фото © BoysPlayNice
Церковь блаженной Марии Реституты
Фото © BoysPlayNice
Церковь блаженной Марии Реституты Фото © BoysPlayNice
Церковь блаженной Марии Реституты
Фото © BoysPlayNice
Церковь блаженной Марии Реституты Фото © BoysPlayNice
Церковь блаженной Марии Реституты
Фото © BoysPlayNice
Церковь блаженной Марии Реституты
Церковь блаженной Марии Реституты
Фото © BoysPlayNice
Церковь блаженной Марии Реституты Фото © BoysPlayNice
Церковь блаженной Марии Реституты
Фото © BoysPlayNice
Церковь блаженной Марии Реституты Фото © BoysPlayNice
Церковь блаженной Марии Реституты
Фото © BoysPlayNice
Церковь блаженной Марии Реституты Фото © BoysPlayNice
Церковь блаженной Марии Реституты
Фото © BoysPlayNice
Церковь блаженной Марии Реституты Фото © BoysPlayNice
Церковь блаженной Марии Реституты
Фото © BoysPlayNice
Церковь блаженной Марии Реституты
Церковь блаженной Марии Реституты
Фото © BoysPlayNice
Церковь блаженной Марии Реституты
Церковь блаженной Марии Реституты
© Atelier Štěpán
Церковь блаженной Марии Реституты
Церковь блаженной Марии Реституты
© Atelier Štěpán
Церковь блаженной Марии Реституты
Церковь блаженной Марии Реституты
© Atelier Štěpán
Церковь блаженной Марии Реституты
Церковь блаженной Марии Реституты
© Atelier Štěpán
Церковь блаженной Марии Реституты
Церковь блаженной Марии Реституты
© Atelier Štěpán
Церковь блаженной Марии Реституты
Церковь блаженной Марии Реституты
© Atelier Štěpán
Церковь блаженной Марии Реституты
Церковь блаженной Марии Реституты
© Atelier Štěpán
Церковь блаженной Марии Реституты
Церковь блаженной Марии Реституты
© Atelier Štěpán
Церковь блаженной Марии Реституты
Церковь блаженной Марии Реституты
© Atelier Štěpán
Церковь блаженной Марии Реституты
Церковь блаженной Марии Реституты
© Atelier Štěpán
Церковь блаженной Марии Реституты
Церковь блаженной Марии Реституты
Фото © Jiří Šmahel