Размещено на портале Архи.ру (www.archi.ru)

07.09.2020

Подземный кинозал и душ под открытым небом: гостевой дом в Бельгии – как в кино

Алина Измайлова

Гостевой дом в бельгийском селе Эйтберген запросто мог бы стать декорацией к одной из лент Дэвида Линча: к этому располагают планировка с «двойным дном» и интерьер с уклоном в сюрреализм. Тесная связь архитектурного проекта с киноискусством не случайна: владелец участка, чья профессия связана с индустрией кино, хотел подарить своим гостям «незабываемый опыт». Проект разработала бельгийская мастерская Atelier Vens Vanbelle.

«Гостевой дом Алекса»
«Гостевой дом Алекса»
© Tim Van de Velde

Снаружи постройка, изготовленная из клееной древесины и «одетая» в оболочку из кортеновской стали, выглядит не менее кинематографично; она напоминает сразу и маяк, и подводную лодку, и грузовой контейнер; при этом архитекторы настаивают, что получившийся сложный объем – чистой воды абстракция, «открытая для толкования».
«Гостевой дом Алекса» © Tim Van de Velde
«Гостевой дом Алекса»
© Tim Van de Velde
«Гостевой дом Алекса» © Tim Van de Velde
«Гостевой дом Алекса»
© Tim Van de Velde
«Гостевой дом Алекса» © Tim Van de Velde
«Гостевой дом Алекса»
© Tim Van de Velde
«Гостевой дом Алекса» © Tim Van de Velde
«Гостевой дом Алекса»
© Tim Van de Velde
«Гостевой дом Алекса» © Tim Van de Velde
«Гостевой дом Алекса»
© Tim Van de Velde

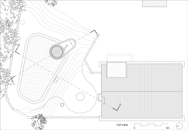
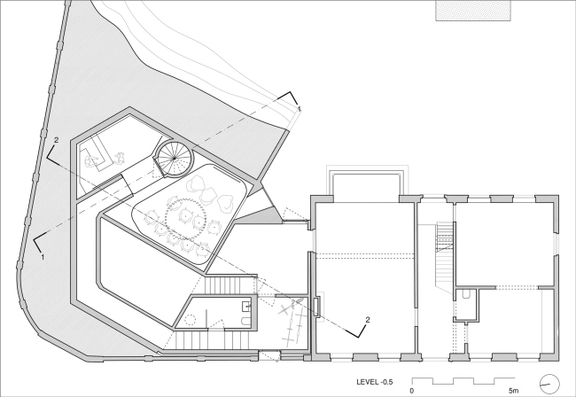
Гостевой дом площадью 150 м2 состоит из трех уровней: подземного, надземного и смотровой площадки. Искусственный холм, на котором покоится здание, визуально приподнимает конструкцию – создается впечатление, что «субмарина» парит в воздухе. Кроме того, насыпь позволила увеличить высоту потолка в цоколе.
«Гостевой дом Алекса»
«Гостевой дом Алекса»
© Tim Van de Velde

В гостевом доме – два входа. «Парадный», как того требуют общепринятые нормы, находится на первом этаже строения – отсюда постояльцы попадают в уютное помещение, сочетающее в себе гостиную и спальню. Необработанные деревянные стены и потолок, обилие природных материалов и окна-иллюминаторы делают пространство похожим на гостеприимное жилище хоббита.
«Гостевой дом Алекса» © Tim Van de Velde
«Гостевой дом Алекса»
© Tim Van de Velde
«Гостевой дом Алекса» © Tim Van de Velde
«Гостевой дом Алекса»
© Tim Van de Velde
«Гостевой дом Алекса» © Tim Van de Velde
«Гостевой дом Алекса»
© Tim Van de Velde
«Гостевой дом Алекса» © Tim Van de Velde
«Гостевой дом Алекса»
© Tim Van de Velde
«Гостевой дом Алекса» © Tim Van de Velde
«Гостевой дом Алекса»
© Tim Van de Velde
«Гостевой дом Алекса» © Tim Van de Velde
«Гостевой дом Алекса»
© Tim Van de Velde
«Гостевой дом Алекса» © Tim Van de Velde
«Гостевой дом Алекса»
© Tim Van de Velde
«Гостевой дом Алекса» © Tim Van de Velde
«Гостевой дом Алекса»
© Tim Van de Velde
«Гостевой дом Алекса» © Tim Van de Velde
«Гостевой дом Алекса»
© Tim Van de Velde
«Гостевой дом Алекса» © Tim Van de Velde
«Гостевой дом Алекса»
© Tim Van de Velde

Совсем иной – драматический – сюжет развивается, если начать путешествие по домику с запасного входа – он располагается в гостиной хозяйского особняка. Чтобы попасть на место ночлега, постояльцам придется проделать довольно длинный путь: пройти мимо садового сарая и навеса для велосипедов, спуститься в погреб, а затем прогуляться по подземному тоннелю. Там, в «полной дезориентации», гостей встречает небольшой «линчевский» кинозал с красными занавесями – вероятная отсылка к «Твин Пикс» и «Малхолланд Драйв». Напротив располагается «симпатичный, но не менее странный», как утверждают архитекторы, бар. Впечатлительные гости могут запаниковать.
«Гостевой дом Алекса» © Tim Van de Velde
«Гостевой дом Алекса»
© Tim Van de Velde
«Гостевой дом Алекса» © Tim Van de Velde
«Гостевой дом Алекса»
© Tim Van de Velde
«Гостевой дом Алекса» © Tim Van de Velde
«Гостевой дом Алекса»
© Tim Van de Velde
«Гостевой дом Алекса» © Tim Van de Velde
«Гостевой дом Алекса»
© Tim Van de Velde
«Гостевой дом Алекса» © Tim Van de Velde
«Гостевой дом Алекса»
© Tim Van de Velde
«Гостевой дом Алекса» © Tim Van de Velde
«Гостевой дом Алекса»
© Tim Van de Velde

Однако свет в конец тоннеля, льющийся из шахты с винтовой лестницей, свидетельствует о близости свежего воздуха и «нормального» пространства. Во время подъема лестница кажется бесконечной, но рано или поздно жильцы оказываются на поверхности – в гостиной, обшитой деревом. Еще выше находится смотровая площадка, где под открытым небом установлен душ – кто не мечтал освежиться, касаясь руками высоких платанов?
«Гостевой дом Алекса» © Tim Van de Velde
«Гостевой дом Алекса»
© Tim Van de Velde
«Гостевой дом Алекса» © Tim Van de Velde
«Гостевой дом Алекса»
© Tim Van de Velde
«Гостевой дом Алекса» © Tim Van de Velde
«Гостевой дом Алекса»
© Tim Van de Velde
«Гостевой дом Алекса» © Tim Van de Velde
«Гостевой дом Алекса»
© Tim Van de Velde
«Гостевой дом Алекса» © Tim Van de Velde
«Гостевой дом Алекса»
© Tim Van de Velde
«Гостевой дом Алекса» © Tim Van de Velde
«Гостевой дом Алекса»
© Tim Van de Velde

По мысли бельгийцев, столь резкое переключение регистров и стилевой микс в интерьере должны «катапультировать [гостей] из одной атмосферы в другую» – примерно так, как то делает кинематограф.
«Гостевой дом Алекса»
«Гостевой дом Алекса»
© Tim Van de Velde
«Гостевой дом Алекса»
«Гостевой дом Алекса»
© Tim Van de Velde
«Гостевой дом Алекса»
«Гостевой дом Алекса»
© Tim Van de Velde
«Гостевой дом Алекса»
«Гостевой дом Алекса»
© Tim Van de Velde
«Гостевой дом Алекса»
«Гостевой дом Алекса»
© Tim Van de Velde
«Гостевой дом Алекса»
«Гостевой дом Алекса»
© Tim Van de Velde
«Гостевой дом Алекса»
«Гостевой дом Алекса»
© Atelier Vens Vanbelle
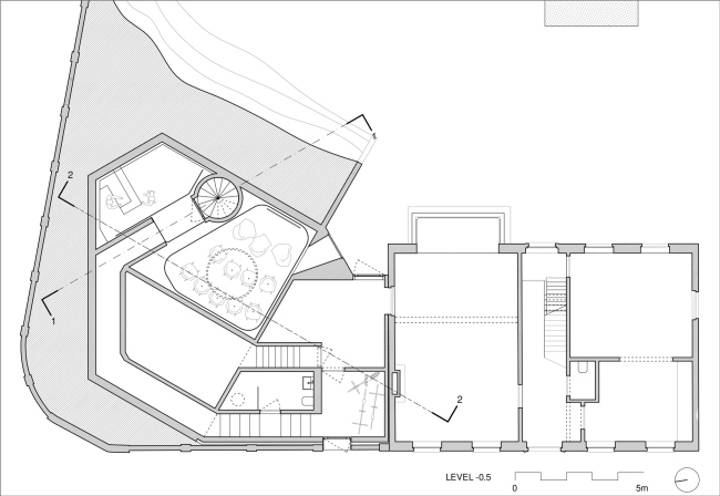
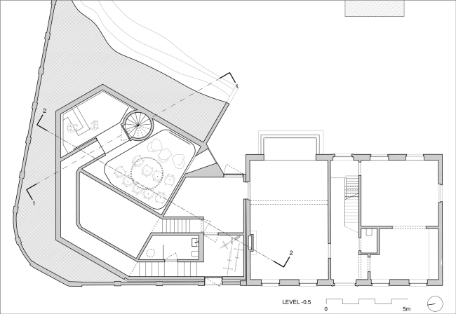
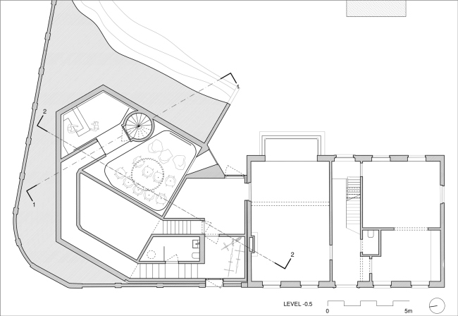
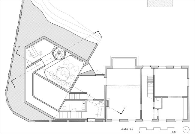
План подземного этажа. «Гостевой дом Алекса»
План подземного этажа. «Гостевой дом Алекса»
© Atelier Vens Vanbelle
План второго этажа. «Гостевой дом Алекса»
План второго этажа. «Гостевой дом Алекса»
© Atelier Vens Vanbelle
Разрез. «Гостевой дом Алекса»
Разрез. «Гостевой дом Алекса»
© Atelier Vens Vanbelle
Разрез. «Гостевой дом Алекса»
Разрез. «Гостевой дом Алекса»
© Atelier Vens Vanbelle
Вид сверху. «Гостевой дом Алекса»
Вид сверху. «Гостевой дом Алекса»
© Atelier Vens Vanbelle