Размещено на портале Архи.ру (www.archi.ru)

04.09.2020

Машина для эмоций

Нина Фролова
Объект:
Башня Saint-Gobain
Адрес:
Франция, None, Курбевуа.
Мастерская:
Valode & Pistre

Новый небоскреб в деловом районе Дефанс – башня компании Saint-Gobain, по замыслу архитекторов Valode & Pistre, должна вызывать эмоции – своей сложной формой, висячими садами, переменчивым обликом фасада.

Добавить еще один небоскреб к высотной застройке Дефанса, крупнейшего в Европе делового района, – задача ответственная, что в случае со свежим проектом Valode & Pistre усложнялось именем заказчика: Saint-Gobain – не только крупный производитель новаторских строительных материалов и технологий, но и одна из старейших компаний Франции, поэтому ее новое здание должно соответствовать этому статусу.
 

Башня Saint-Gobain в районе Дефанс
Башня Saint-Gobain в районе Дефанс
Фото © Sergio Grazia

Архитекторы считают, что небоскреб – самый «вовлекающий» человека тип здания, от него многого ждут, поэтому он всегда должен вызывать эмоции. Этот процесс они решили тройным способом. Во-первых, высокоэффективный фасад в зависимости от освещения и угла зрения выглядит то зеркальным, то прозрачным, что само по себе создает интригу.
 
Башня Saint-Gobain
Башня Saint-Gobain
Фото © Sergio Grazia

Кроме того, была выбрана скульптурная композиция из трех призм – ромбоэдров, которые благодаря своей «неустойчивой» форме придают башне динамику, часто отсутствующую у высотных построек. Эта композиция воспринимается зрителем – что типично для человека – как антропоморфная, с головой и телом: это важно в случае постройки, достигающей 178 м (38 этажей) в высоту и не соразмерной пешеходу.
 
Башня Saint-Gobain
Башня Saint-Gobain
Фото © Sergio Grazia

Учитывая дефицит природной среды в городе, а особенно – в Дефансе с его продуваемой ветром эспланадой, архитекторы также привлекли к башне заинтересованные взгляды благодаря садам-террасам на офисных этажах и большому зимнему саду на ее вершине.
 
Башня Saint-Gobain
Башня Saint-Gobain
Фото © Sergio Grazia

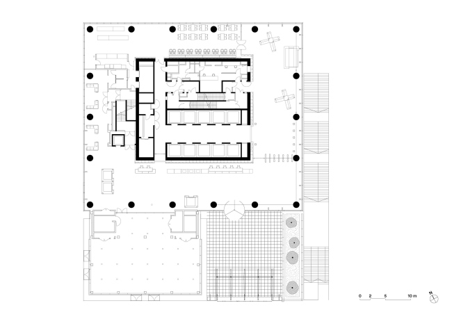
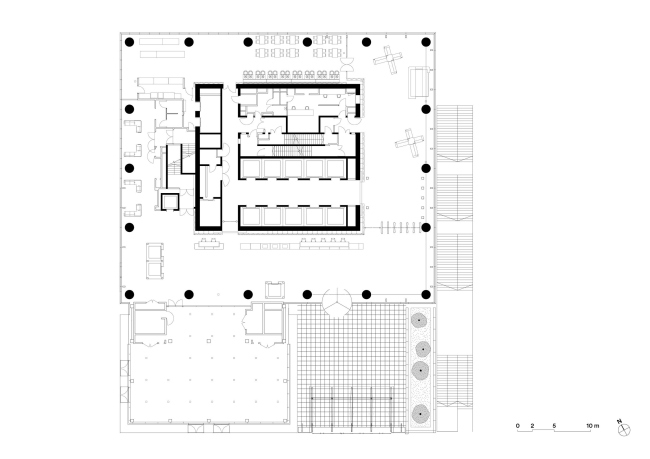
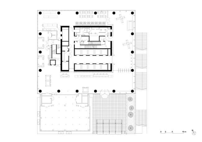
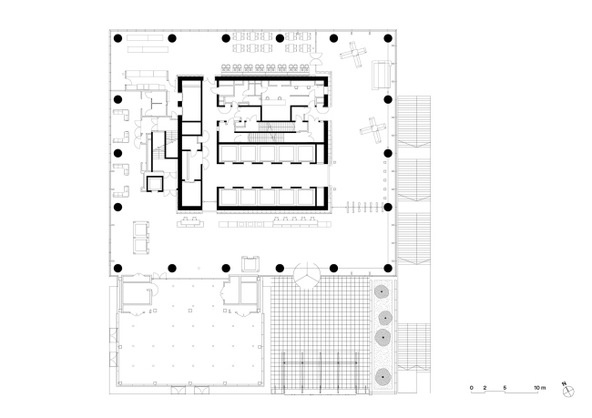
Эти три пункта проекта поддерживаются «гостеприимным» обликом цоколя постройки, где общественные зоны с шоу-румом открываются на эспланаду, как будто приглашая зайти внутрь.
 
Башня Saint-Gobain
Башня Saint-Gobain
Фото © Sergio Grazia

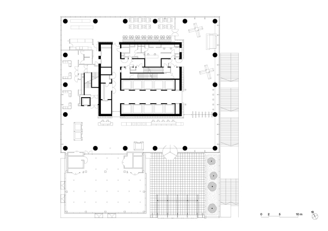
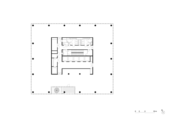
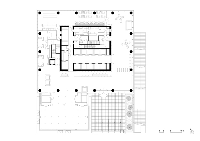
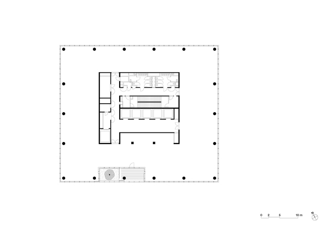
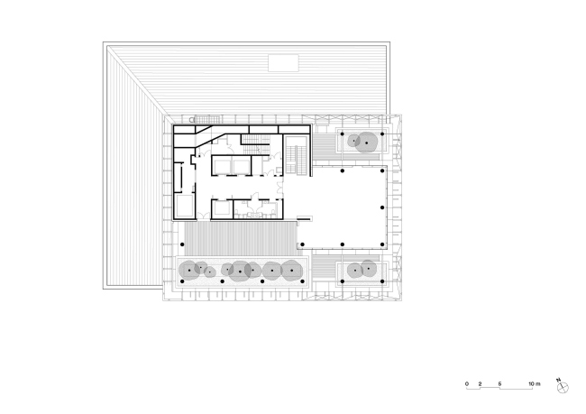
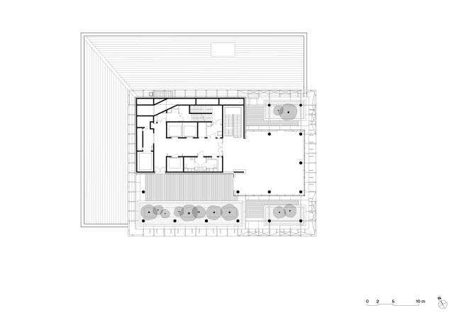
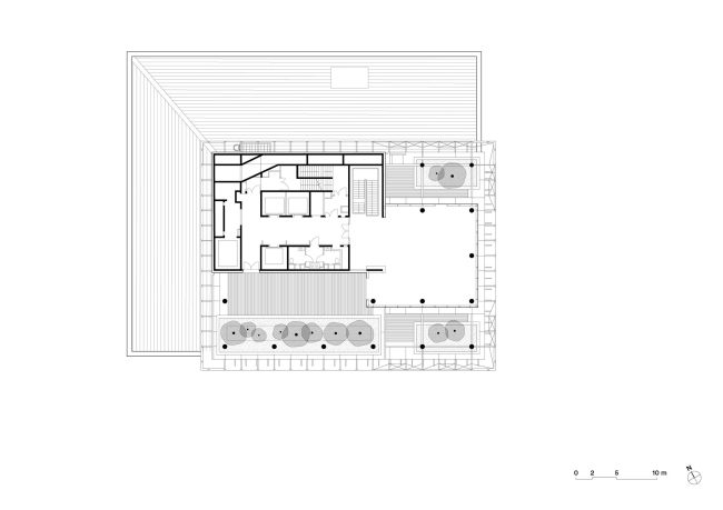
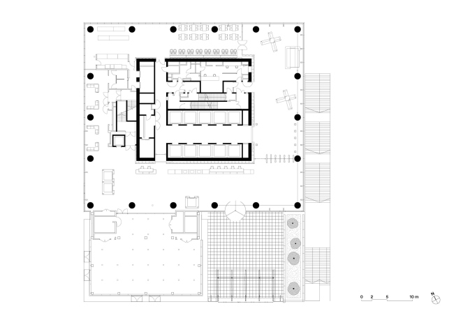
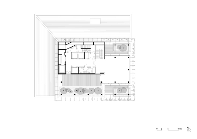
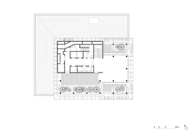
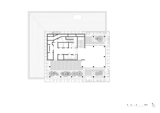
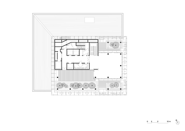
В основном объеме офисные этажи получили одинаковый план в виде вытянутого прямоугольника. Солнечный свет освещает их почти полностью: с этой целью лестнично-лифтовой и сервисный узел немного сдвинут от центра, поэтому 90% из 2200 рабочих мест находятся на расстоянии 7 метров и менее от фасада.
 
Башня Saint-Gobain
Башня Saint-Gobain
Фото © Sergio Grazia

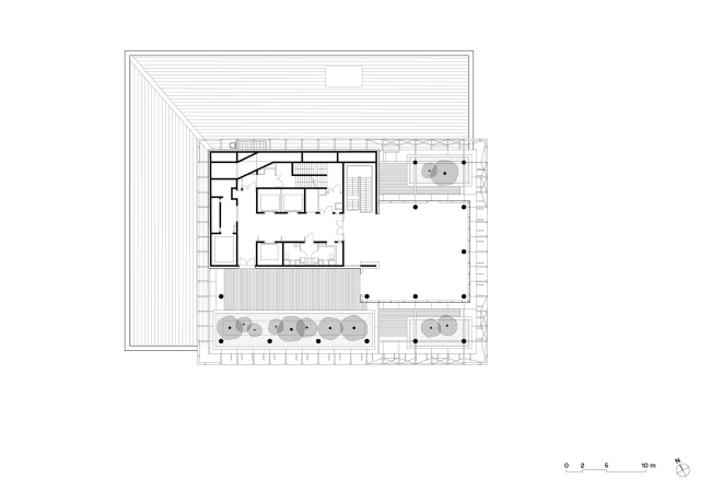
Для отдыха сотрудников предусмотрены открытые, но защищенные от ветра террасы – всего их тринадцать. Каждая – площадью 44 м2, среди посадок – боярышник, шиповник, гранат, олива, розы и герань.
 
Башня Saint-Gobain
Башня Saint-Gobain
Фото © Sergio Grazia

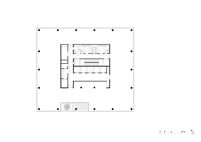
На вершине башни устроены еще четыре террасы: они заключены в теплицу со средиземноморским климатом. Там есть большие деревья: лох узколистный, гранат, земляничное дерево, а также розы, акант, полынь, тысячелистник. Для больших и средних деревьев слой почвы составил 1 м, для остальных растений – 0,6 м. Садами занималось ландшафтное бюро Raphia.
 
Башня Saint-Gobain
Башня Saint-Gobain
Фото © Laurent Kronental

В верхней призме с теплицей размещены один из ресторанов, переговорные, представительские помещения.
 
Башня Saint-Gobain
Башня Saint-Gobain
Фото © Laurent Kronental

Низкое энергопотребление обеспечивают потолки из излучающих панелей (отопление / охлаждение), вытесняющая вентиляция с очень низкой скоростью и фасад с максимальной степенью изоляции. Предусмотрен сбор дождевой воды для полива озеленения, которое естественным образом помогает охладить теплицу на вершине башни.
 
Башня Saint-Gobain
Башня Saint-Gobain
Фото © Sergio Grazia
Башня Saint-Gobain
Башня Saint-Gobain
Фото © Sergio Grazia
Башня Saint-Gobain
Башня Saint-Gobain
Фото © Sergio Grazia
Башня Saint-Gobain
Башня Saint-Gobain
Фото © Sergio Grazia
Башня Saint-Gobain
Башня Saint-Gobain
Фото © Sergio Grazia
Башня Saint-Gobain
Башня Saint-Gobain
Фото © Sergio Grazia
Башня Saint-Gobain
Башня Saint-Gobain
Фото © Sergio Grazia
Башня Saint-Gobain
Башня Saint-Gobain
Фото © Sergio Grazia
Башня Saint-Gobain
Башня Saint-Gobain
Фото © Sergio Grazia
Башня Saint-Gobain
Башня Saint-Gobain
Фото © Sergio Grazia
Башня Saint-Gobain
Башня Saint-Gobain
Фото © Sergio Grazia
Башня Saint-Gobain
Башня Saint-Gobain
© Valode & Pistre
Башня Saint-Gobain
Башня Saint-Gobain
© Valode & Pistre
Башня Saint-Gobain
Башня Saint-Gobain
© Valode & Pistre
Башня Saint-Gobain
Башня Saint-Gobain
© Valode & Pistre
Башня Saint-Gobain
Башня Saint-Gobain
© Valode & Pistre
Башня Saint-Gobain
Башня Saint-Gobain
© Valode & Pistre
Башня Saint-Gobain
Башня Saint-Gobain
© Valode & Pistre