Размещено на портале Архи.ру (www.archi.ru)

28.09.2020

Общинный центр «Kannikegarden» в городе Рибе, Дания. Тысяча лет истории датского кирпича

Объект:
Общинный центр Kannikegården
Адрес:
Дания, Рибе. Torvet 13
Мастерская:
АРХИТАЙЛ/ ARCHITILE


Общинный центр «Kannikegarden» с фасадами из клинкерных панелей Cover, уникальной продукции компании Petersen Tegl (Дания), гармонично вписан в застройку самого старого датского города из ныне существующих – Рибе.

Общинный центр Kannikegården
Общинный центр Kannikegården
Фотография © Anders Sune Berg / предоставлено АРХИТАЙЛ

Центр «Kannikegarden» по проекту бюро Lundgaard & Tranberg (Дания) находится в самой важной части Рибе, совсем рядом со знаменитым собором Богоматери. Собор и стал его заказчиком: в здании разместился его приходской совет. В пространстве на сто зрителей можно также проводить события для горожан – концерты, лекции и кинопоказы. Но самое интересное помещение – остекленный зал внизу, где можно увидеть остатки стоявших на этом месте 1000 лет назад построек. Этот фундамент трапезной монастыря каноников, то есть внесенных в официальный список-«канон» священнослужителей – лучше всего сохранившееся из старейших кирпичных сооружений Дании: его обнаружили в 2012 и тут же присвоили статус памятника. Это напоминание о Средних веках, когда кирпич на севере Европы был еще новшеством, вторит выбранному для фасадов и кровли здания современному материалу – клинкерным панелям Cover компании Petersen Tegl. Панели Cover перекликаются с родственным им памятником прошлого и таким образом охватывают всю историю датского кирпича, от истоков до наших дней.
Общинный центр Kannikegården
Общинный центр Kannikegården
Фотография © Anders Sune Berg / предоставлено АРХИТАЙЛ


Не менее важно, что Cover гармонируют с окружающей застройкой, включая кирпичные части собора и окружающие дома. Именно с этими жилищами «Kannikegarden» связан своей формой. Слегка изогнутый объем с двускатной крышей намеренно напоминает стоящие рядом дома, слегка покосившиеся от времени. Так же, как они, он учитывает нужды «соседей»: криволинейность позволяет ему не заслонять солнечный свет постройкам рядом.
Общинный центр Kannikegården
Общинный центр Kannikegården
Фотография © Anders Sune Berg / предоставлено АРХИТАЙЛ

Выше первого, остекленного, этажа общинный центр полностью обшит клинкерными панелями внахлест, как чешуей. Занимавшийся проектом в бюро Lundgaard & Tranberg Эрик Франнсен утверждает: «Кирпичи – это алхимия». Архитекторы совместно со специалистами Petersen Tegl разработали специальную сортировку Cover C48 – более крупного формата, чтобы было легче обшить ей здание полностью (630 x 350 мм). Подходящие для центра Рибе тона тоже подбирали индивидуально, используя на стройплощадке макеты (мок-апы) частей фасада в масштабе 1:1. Нужные оттенки красного получили, регулируя подачу кислорода при обжиге.

Каждая из панелей Cover уникальна, на ней есть подпалины и другие следы производственного процесса – в ней жива традиция средневекового кирпича, изготовленного вручную и обожженного в печи на древесном угле: эту технологию воспроизводят на заводе Petersen Tegl. Интересно, что стыки между гранями на объеме «Kannikegarden» соединяют панели Cover зигзагом, напоминающим узорчатую кладку средневековых домов по соседству: именно ради этих сложных криволинейных швов и выбрали более крупный размер панелей. Для подпорных стен был использован кирпич также компании Petersen Tegl – D- формата, сортировки D48.
Общинный центр Kannikegården
Общинный центр Kannikegården
Фотография © Anders Sune Berg / предоставлено АРХИТАЙЛ
Общинный центр Kannikegården
Общинный центр Kannikegården
© Lundgaard & Tranberg


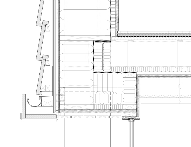
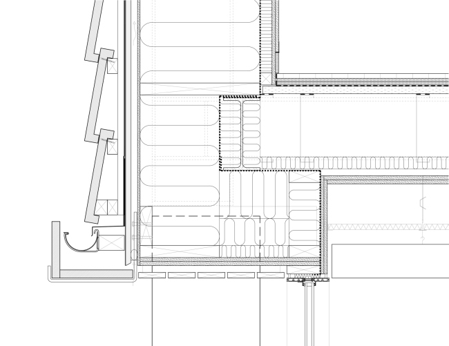
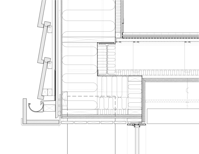
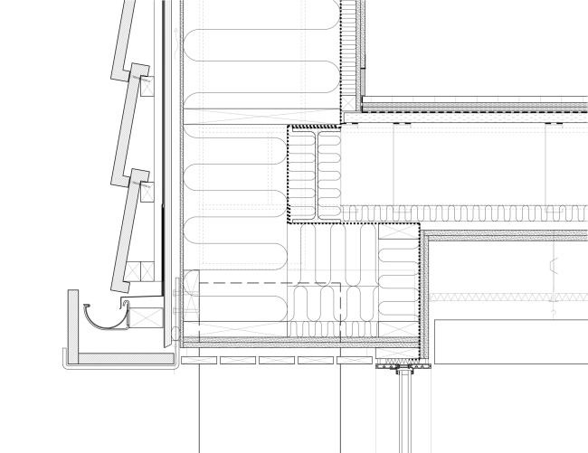
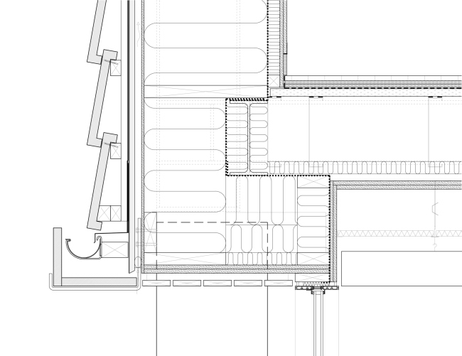
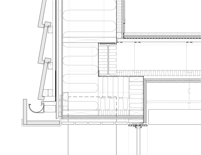
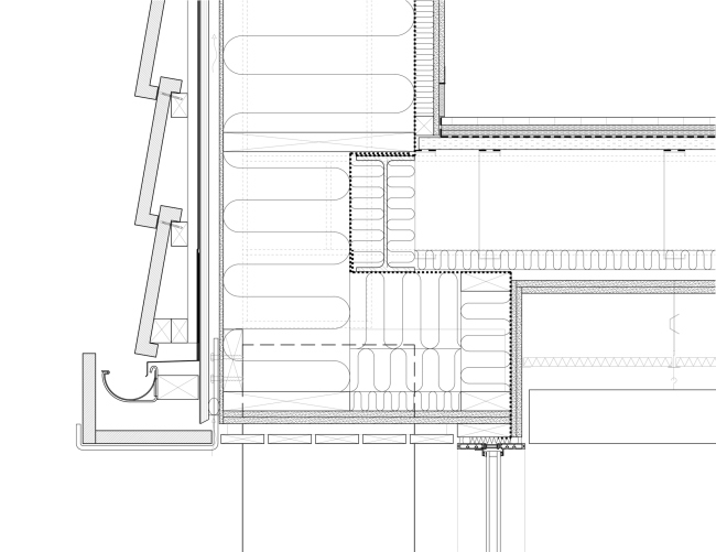
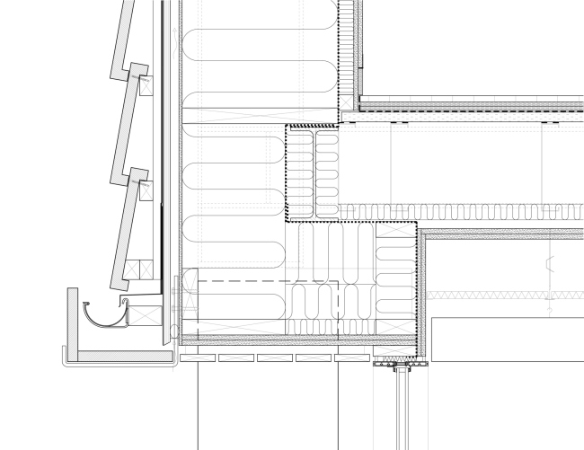
Современное происхождение общинного центра выдает его радикальная тектоника: первый, как будто невесомый, стеклянный ярус поддерживает почти монолитный объем двух верхних этажей. Переход от стекла к кладке из Cover подчеркивает спрятанный за рядом клинкерных панелей на стальных кронштейнах водосточный желоб: в результате он выглядит как традиционный карниз.
Учитывая историческое окружение, архитекторы постарались воспроизвести характерную для такой среды органичность, «необработанность». Так, клинкерные панели на фасаде смонтированы с сантиметровым допуском (в средневековых постройках он может достигать нескольких дюймов). По тому же принципу бетонные опоры первого яруса получили следы «грубой» опалубки, для чего в нее даже специально загоняли клинья (несущая конструкция верхних этажей – из стали). Еще один «первозданный» материал – свободно закрепленные доски дуба, служащие для защиты от солнца первого этажа и задающие там проемы человеческого масштаба: руины предназначены для осмотра снаружи, внутрь можно попасть только на специальной экскурсии. Такими же досками обшиты перекрытия этого выставочного зала.
Общинный центр Kannikegården
Общинный центр Kannikegården
Фотография © Anders Sune Berg / предоставлено АРХИТАЙЛ
Общинный центр Kannikegården
Общинный центр Kannikegården
Фотография © Anders Sune Berg / предоставлено АРХИТАЙЛ


Окна двух верхних этажей – разного, но всегда небольшого размера – расположены асимметрично. За ними скрываются лестница-спираль из дуба и окрашенные в темно-красный, охристый, белый тона помещения. Этот колорит вдохновлен средневековыми фресками в интерьере собора. За «Kannikegarden» разбит сад, доступный для всех желающих.

«Канникегорен» (Kannikegarden) можно перевести с датского как «двор каноников»: новое здание названо в честь стоявшего на этом месте 1000 лет назад средневекового монастыря. Таким же образом использованный там современный материал, клинкерные панели Cover компании Petersen Tegl, отдает дань уважения средневековому кирпичу построек центра Рибе и этого монастыря.