Размещено на портале Архи.ру (www.archi.ru)

01.09.2020

Жизнь среди природы и искусства

Объект:
Вилла Windward House
Адрес:
Великобритания, None,

Дом-художественная галерея по проекту Элисон Брукс среди холмов и лесов на границе Англии и Уэльса.

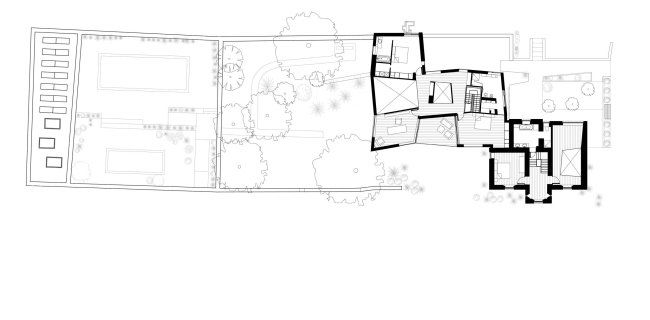
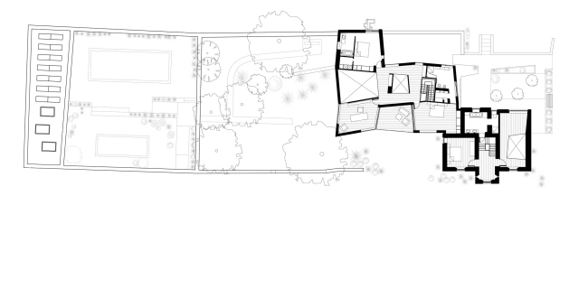
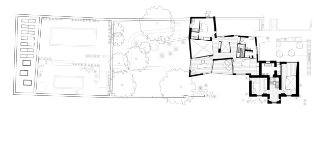
Вилла Windward House – реконструкция фермы конца георгианской эпохи, то есть рубежа XVIII – XIX веков. Место она занимает выигрышное: самую высокую точку графства Глостершир над долиной реки Уай, по которой здесь проходит граница Англии и Уэльса. Совсем недалеко – древний лес Дин и полноводный Северн, куда и впадает Уай.
 

Вилла Windward House
Вилла Windward House
Фото © Paul Riddle

Прекрасные пейзажи, которые открываются из виллы, ее сада и дворов, внутри дома дополнены коллекцией африканского и индийского искусства, которую 40 лет собирали владельцы. Элисон Брукс назвала свой проект «жилой галерей», где произведения выступают друзьями и родственниками хозяев, делящими с ними интерьеры.
 
Вилла Windward House
Вилла Windward House
Фото © Paul Riddle

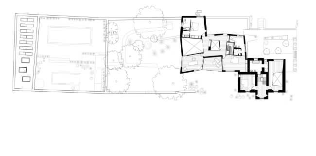
Пространство развертывается от фермерского дома, где половина сделана трехсветной галерей, а каменные стены контрастируют с зеркальными металлическими поверхностями, к двухэтажному Западному крылу с фасадами из темного металла. Именно там живут хозяева – в этом доме с планом типа 3х3, хотя и довольно сильно искривленным. Ферма и Западное крыло соединены, и рядом с ними стены сада, защищающие от постоянных ветров, создали интимный двор. Особенно красивые виды открываются с террасы на крыше крыла и из двухсветной гостиной.
 
Вилла Windward House
Вилла Windward House
Фото © Paul Riddle

В наполненном светом Западном крыле с темным поблескивающим бетонном полом центральное место занимает кухня и столовая, так как хозяева очень любят принимать гостей.
 
Вилла Windward House
Вилла Windward House
Фото © Paul Riddle

Третья часть дома – «Галерея у бассейна», окруженный напоминающей о местных традициях каменной стеной двор, одна сторона которого – многофункциональный павильон с раздевалкой, квартирой для гостей, выставочным помещением и кладовкой. Бассейн окрашен в черный, чтобы лучше прогреваться солнцем (это дает преимущество в 4 градуса), к тому же его нагревает воздушный тепловой насос. Такое же устройство обогревает павильон и горячую воду в его водопроводе.
 
Вилла Windward House Фото © Paul Riddle
Вилла Windward House
Фото © Paul Riddle
Вилла Windward House Фото © Paul Riddle
Вилла Windward House
Фото © Paul Riddle
Вилла Windward House Фото © Paul Riddle
Вилла Windward House
Фото © Paul Riddle
Вилла Windward House Фото © Paul Riddle
Вилла Windward House
Фото © Paul Riddle
Вилла Windward House Фото © Paul Riddle
Вилла Windward House
Фото © Paul Riddle
Вилла Windward House Фото © Paul Riddle
Вилла Windward House
Фото © Paul Riddle

Ферму и Западное крыло отапливает геотермальный тепловой насос, на кровле фермы установлены солнечные коллекторы, на кровле павильона у бассейна – солнечные батареи. Крыша Западного крыла засажена полевыми цветами местных видов. На окружающих дом 8,5 га земли расположены дикий луг и фруктовые сады, а 2,5 зеленых изгородей восстанавливают с помощью видов с обильной пыльцой. Параллельно идет высадка 2500 деревьев. Все это направлено на регенерацию экосистемы и повышение биоразнообразия.
Вилла Windward House
Вилла Windward House
Фото © Paul Riddle
Вилла Windward House Фото © Paul Riddle
Вилла Windward House
Фото © Paul Riddle
Вилла Windward House Фото © Paul Riddle
Вилла Windward House
Фото © Paul Riddle
Вилла Windward House Фото © Paul Riddle
Вилла Windward House
Фото © Paul Riddle
Вилла Windward House Фото © Paul Riddle
Вилла Windward House
Фото © Paul Riddle
Вилла Windward House
Вилла Windward House
Фото © Paul Riddle
Вилла Windward House
Вилла Windward House
Фото © Paul Riddle
Вилла Windward House
Вилла Windward House
Фото © Paul Riddle
Вилла Windward House
Вилла Windward House
Фото © Paul Riddle
Вилла Windward House
Вилла Windward House
Фото © Paul Riddle
Вилла Windward House
Вилла Windward House
Фото © Paul Riddle
Вилла Windward House
Вилла Windward House
Фото © Paul Riddle
Вилла Windward House
Вилла Windward House
Фото © Paul Riddle
Вилла Windward House
Вилла Windward House
Фото © Paul Riddle
Вилла Windward House
Вилла Windward House
Фото © Paul Riddle
Вилла Windward House
Вилла Windward House
Фото © Paul Riddle
Вилла Windward House
Вилла Windward House
Фото © Paul Riddle
Вилла Windward House
Вилла Windward House
Фото © Paul Riddle
Вилла Windward House Фото © Paul Riddle
Вилла Windward House
Фото © Paul Riddle
Вилла Windward House Фото © Paul Riddle
Вилла Windward House
Фото © Paul Riddle
Вилла Windward House Фото © Paul Riddle
Вилла Windward House
Фото © Paul Riddle
Вилла Windward House
Вилла Windward House
Фото © Paul Riddle
Вилла Windward House
Вилла Windward House
Фото © Paul Riddle
Вилла Windward House
Вилла Windward House
Фото © Paul Riddle
Вилла Windward House Фото © Paul Riddle
Вилла Windward House
Фото © Paul Riddle
Вилла Windward House Фото © Paul Riddle
Вилла Windward House
Фото © Paul Riddle
Вилла Windward House Фото © Paul Riddle
Вилла Windward House
Фото © Paul Riddle
Вилла Windward House Фото © Paul Riddle
Вилла Windward House
Фото © Paul Riddle
Вилла Windward House Фото © Paul Riddle
Вилла Windward House
Фото © Paul Riddle
Вилла Windward House в 1950-е годы
Вилла Windward House в 1950-е годы
Предоставлено Alison Brooks Architects
Вилла Windward House в 2007
Вилла Windward House в 2007
Предоставлено Alison Brooks Architects
Вилла Windward House
Вилла Windward House
© Alison Brooks Architects
Вилла Windward House
Вилла Windward House
© Alison Brooks Architects
Вилла Windward House
Вилла Windward House
© Alison Brooks Architects
Вилла Windward House
Вилла Windward House
© Alison Brooks Architects
Вилла Windward House
Вилла Windward House
© Alison Brooks Architects
Вилла Windward House
Вилла Windward House
© Alison Brooks Architects
Вилла Windward House
Вилла Windward House
© Alison Brooks Architects