Размещено на портале Архи.ру (www.archi.ru)

31.08.2020

«Скальпель» в сердце Сити

Нина Фролова
Объект:
Офисное здание 52 Lime Street
Адрес:
Великобритания, None, Лондон.
Мастерская:
KPF - Kohn Pedersen Fox

Новая офисная башня по проекту KPF в центре Лондона благодаря своему острому силуэту получила прозвище «Скальпель». Она стоит рядом с «Корнишоном» и «Теркой для сыра».

190-метровое офисное здание 52 Lime Street (таково официальное название «Скальпеля») находится в так называемом Сити-кластере: сосредоточении новых высотных зданий – и более старых, таких, как здание Lloyds Ричарда Роджерса и St Mary Axe – «Корнишон» – Нормана Фостера. Рядом стоит и «Терка для сыра» – Leadenhall того же Роджерса.
 

Офисное здание 52 Lime Street
Офисное здание 52 Lime Street
Фотография © Hufton + Crow

Острый силуэт «Скальпеля», прекрасно вписавшегося в эту компанию – результат уклонения от ключевых перспектив на купол собора Святого Павла. Здание должно было стать или ступенчатым, или наклонным объемом, и архитекторы выбрали первое.
 
Офисное здание 52 Lime Street
Офисное здание 52 Lime Street
Фотография © Hufton + Crow

Стеклянный фасад, который прерывают лишь металлические полосы границ между гранями, обеспечивает интерьер естественным освещением, а сотрудников – видами на Лондон. Стержень постройки сдвинут к южному фасаду, что освобождает полезную площадь и позволяет свободно делить ее между арендаторами – тем более что опор там почти нет. Кроме того, стержень затеняет эту самую солнечную из сторон здания.
 
Офисное здание 52 Lime Street
Офисное здание 52 Lime Street
Фотография © Hufton + Crow

С историческим контекстом здание связывают четыре барельефа Джеймса Вудфорда, посвященные четырем стихиям: они украшали здание Lloyds 1957 года, а потом размещались на постройке 52–54 Lime Street, снесенной, чтобы уступить место «Скальпелю».
 
Офисное здание 52 Lime Street
Офисное здание 52 Lime Street
Фотография © Hufton + Crow

Заказчик «Скальпеля» и его главный «обитатель» – корпорация W.R. Berkeley, остальное пространство сдано в аренду. Бюджет проекта – 240 млн фунтов, общая площадь – чуть менее 40 тыс. м2.
Офисное здание 52 Lime Street
Офисное здание 52 Lime Street
Фотография © Hufton + Crow
Офисное здание 52 Lime Street
Офисное здание 52 Lime Street
Фотография © Timothy Soar
Офисное здание 52 Lime Street
Офисное здание 52 Lime Street
Фотография © Hufton + Crow
Офисное здание 52 Lime Street
Офисное здание 52 Lime Street
Фотография © Hufton + Crow
Офисное здание 52 Lime Street
Офисное здание 52 Lime Street
Фотография © Hufton + Crow
Офисное здание 52 Lime Street
Офисное здание 52 Lime Street
Фотография © Hufton + Crow
Офисное здание 52 Lime Street
Офисное здание 52 Lime Street
Фотография © Hufton + Crow
Офисное здание 52 Lime Street
Офисное здание 52 Lime Street
Фотография © Hufton + Crow
Офисное здание 52 Lime Street
Офисное здание 52 Lime Street
Фотография © Hufton + Crow
Офисное здание 52 Lime Street
Офисное здание 52 Lime Street
Фотография © Hufton + Crow
Офисное здание 52 Lime Street
Офисное здание 52 Lime Street
Фотография © Timothy Soar
Офисное здание 52 Lime Street
Офисное здание 52 Lime Street
Фотография © Timothy Soar
Офисное здание 52 Lime Street
Офисное здание 52 Lime Street
Фотография © Timothy Soar
Офисное здание 52 Lime Street
Офисное здание 52 Lime Street
Фотография © Timothy Soar
Офисное здание 52 Lime Street
Офисное здание 52 Lime Street
Фотография © Timothy Soar
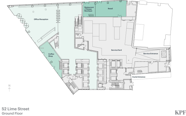
Офисное здание 52 Lime Street
Офисное здание 52 Lime Street
© KPF
Офисное здание 52 Lime Street
Офисное здание 52 Lime Street
© KPF
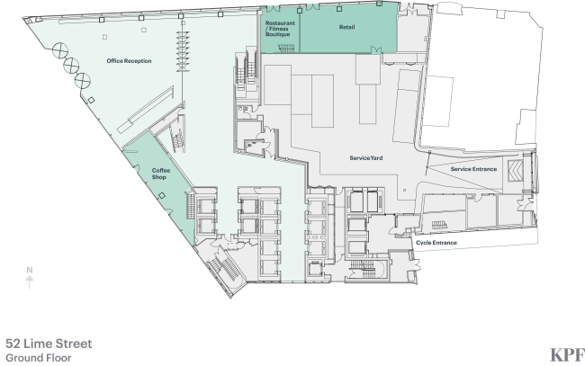
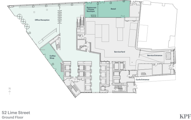
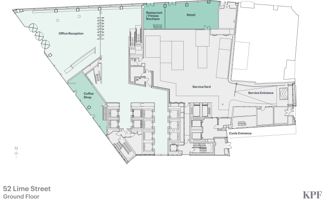
Офисное здание 52 Lime Street
Офисное здание 52 Lime Street
© KPF
Офисное здание 52 Lime Street
Офисное здание 52 Lime Street
© KPF