Размещено на портале Архи.ру (www.archi.ru)

26.08.2020

Комфортный труд за зеленым фасадом

Нина Фролова
Объект:
Штаб-квартира компании ASI Reisen
Адрес:
Австрия, None, Инсбрук.
Мастерская:
Snøhetta

Штаб-квартира туристической компании ASI Reisen близ Инсбрука – озелененная внутри и снаружи деревянная постройка по проекту Snøhetta.

ASI Reisen занимается активным отдыхом и пешим туризмом, предлагая сотни маршрутов по всему миру. Подобный отдых всегда связан с природой, и сама компания базируется за городом, поэтому идея очень «зеленого» во всех смыслах ее здания была очевидной.
 

Штаб-квартира компании ASI Reisen
Штаб-квартира компании ASI Reisen
Фото © Christian Flatscher

Четырехэтажное здание выстроено из дерева – что вполне соответствует тирольским традициям, однако оно обожжено по японскому методу якисуги: в результате, ему не страшны непогода, влажность и паразиты, никакая дополнительная обработка и покраска не требуются. Из бетона здесь выполнены лишь фундамент и сервисное ядро здания.
 
Штаб-квартира компании ASI Reisen
Штаб-квартира компании ASI Reisen
Фото © Christian Flatscher

Свободный план офисов дополняется панорамными окнами с видами Альп, лесов и лугов. От солнца стеклянные фасады защищают вьющиеся растения: для них установлена металлическая решетка, включающая и балконы для сотрудников. В больших горшках высажены 118 растений 17 видов, часть из которых – лиственная, часть – вечнозеленая. Благодаря такому смешанному набору, облик постройки будет меняться в зависимости от сезона, а опавшие листья части посадок в холодное время года сделают растительную завесу реже и позволят солнцу легче проникать в интерьер – что как раз будет кстати зимой.
 
Штаб-квартира компании ASI Reisen
Штаб-квартира компании ASI Reisen
Фото © Christian Flatscher

Кроме зелени на фасаде, Snøhetta занималась ландшафтным дизайном: для него выбрано 73 местных вида флоры, которые также повысят биоразнообразие на кампусе компании.
 
Штаб-квартира компании ASI Reisen
Штаб-квартира компании ASI Reisen
Фото © Christian Flatscher

В интерьере для 65 сотрудников предусмотрены не только рабочие места, но и пространства для отдыха, совместной работы и общения, включая двухъярусный вестибюль. Многие из них разграничены стеллажами с комнатными растениями, продолжающими «внешнюю» тему вертикального озеленения.
 
Штаб-квартира компании ASI Reisen
Штаб-квартира компании ASI Reisen
Фото © Christian Flatscher

Эко-концепцию проекта тестировали с помощью динамического моделирования температурного режима здания. Воздуховодяной тепловой насос мощностью 40 киловатт с возможностью обратной передачи тепла обеспечивает отопление и охлаждение интерьера. Широко использованы датчики температуры, влажности, уровня углекислого газа, силы ветра, которые управляют естественной вентиляцией – тем, насколько широко открыты клапаны. На кровле установлены солнечные батареи.
Штаб-квартира компании ASI Reisen
Штаб-квартира компании ASI Reisen
Фото © Christian Flatscher
Штаб-квартира компании ASI Reisen
Штаб-квартира компании ASI Reisen
Фото © Christian Flatscher
Штаб-квартира компании ASI Reisen
Штаб-квартира компании ASI Reisen
Фото © Christian Flatscher
Штаб-квартира компании ASI Reisen
Штаб-квартира компании ASI Reisen
Фото © Christian Flatscher
Штаб-квартира компании ASI Reisen
Штаб-квартира компании ASI Reisen
Фото © Christian Flatscher
Штаб-квартира компании ASI Reisen
Штаб-квартира компании ASI Reisen
Фото © Christian Flatscher
Штаб-квартира компании ASI Reisen
Штаб-квартира компании ASI Reisen
Фото © Christian Flatscher
Штаб-квартира компании ASI Reisen
Штаб-квартира компании ASI Reisen
Фото © Christian Flatscher
Штаб-квартира компании ASI Reisen
Штаб-квартира компании ASI Reisen
Фото © Christian Flatscher
Штаб-квартира компании ASI Reisen
Штаб-квартира компании ASI Reisen
Фото © Christian Flatscher
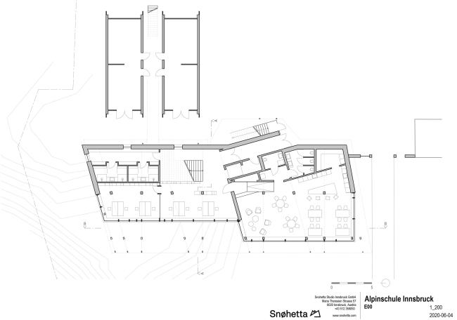
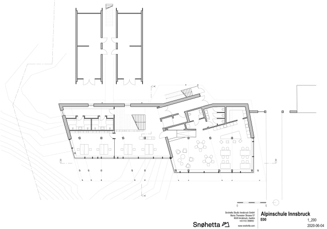
Штаб-квартира компании ASI Reisen
Штаб-квартира компании ASI Reisen
© Snøhetta
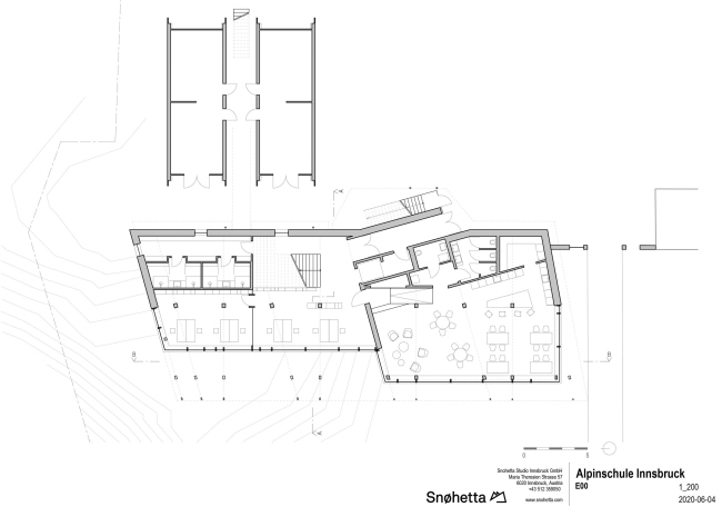
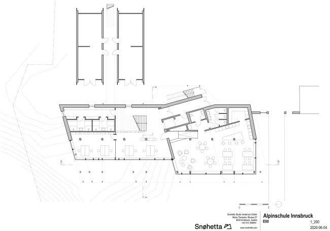
Штаб-квартира компании ASI Reisen
Штаб-квартира компании ASI Reisen
© Snøhetta
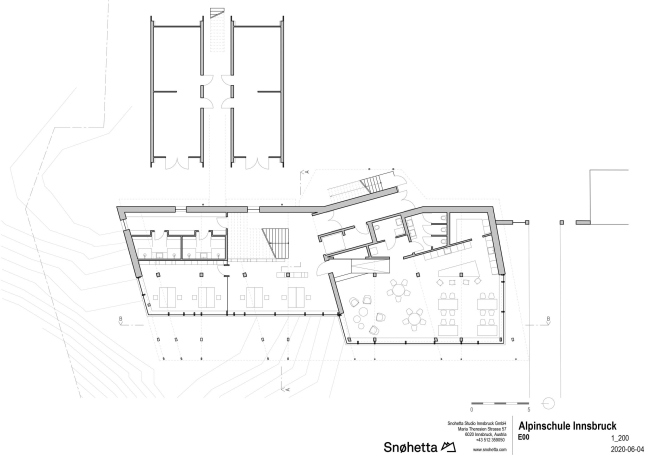
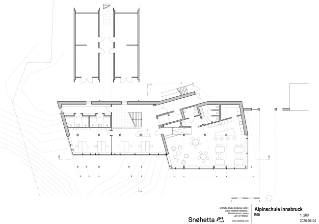
Штаб-квартира компании ASI Reisen
Штаб-квартира компании ASI Reisen
© Snøhetta
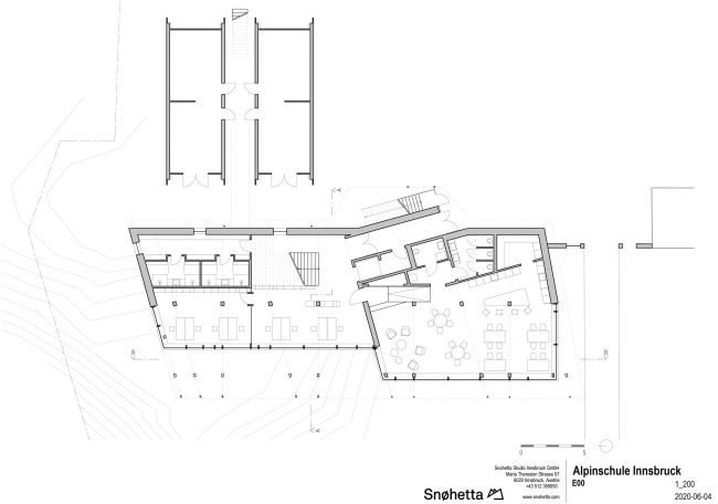
Штаб-квартира компании ASI Reisen
Штаб-квартира компании ASI Reisen
© Snøhetta
Штаб-квартира компании ASI Reisen
Штаб-квартира компании ASI Reisen
© Snøhetta
Штаб-квартира компании ASI Reisen
Штаб-квартира компании ASI Reisen
Фото © Christian Flatscher
Штаб-квартира компании ASI Reisen
Штаб-квартира компании ASI Reisen
© Snøhetta
Штаб-квартира компании ASI Reisen
Штаб-квартира компании ASI Reisen
© Snøhetta