Размещено на портале Архи.ру (www.archi.ru)

18.08.2020

«Сердце юга»

Нина Фролова
Объект:
Театр Зюйдплейн
Адрес:
Нидерланды, None, Роттердам.
Мастерская:
De Zwarte Hond

Театр Зюйдплейн в районе Роттердам-Юг по проекту De Zwarte Hond – часть нового общественного центра, постепенно заменяющего модернистский комплекс 1950-х годов.

Зюйдплейн – часть района Роттердам-Зюйд, Роттердам-Юг, с собственным общественным центром. В наши дни эта послевоенная застройка не отвечает требованиям ни к учреждениям торговли и культуры, ни к городской среде, поэтому ее было решено заменить в рамках крупного частно-государственного партнерства «Сердце юга» (Hart van Zuid) на новую. Ключевыми пунктами проекта стали торговый центр Zuidplein 1960-х годов (его планируется в очередной раз расширить) и общегородской центр выставок, конгрессов, концертов и спортивных соревнований Ahoy (он был основан в 1950, полностью перестроен в 1970, а теперь реконструирован). Остальные объекты поэтапно заменяют на новые, но, чтобы не терять их функцию на время строительства, их строят не на прежнем месте, а друг вместо друга.
 

Театр Зюйдплейн
Театр Зюйдплейн
Фото © Daria Scagliola & Stijn Brakkee
Театр Зюйдплейн
Театр Зюйдплейн
Фото © Daria Scagliola & Stijn Brakkee

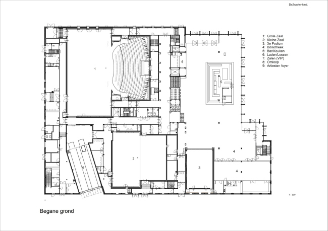
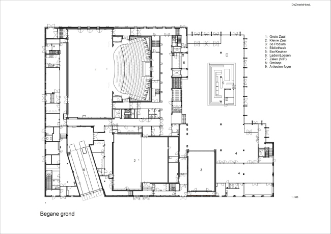
Так, первый новый объект, плавательный бассейн, появился вместо административного центра, а на месте старого бассейна построили театр Зюйдплейн, также вмещающий библиотеку и кафе-ресторан. Бывшее театральное здание (1953) стоит рядом с новым, и, когда то полностью заработает, будет демонтировано: вместо него построят автовокзал. Когда он будет готов, на месте старого автовокзала, под эстакадой метро, разобьют 750-метровый бульвар, связывающий все главные объекты Зюйдплейна. Также запланированы новые жилые дома, гостиница и т.п.
 
Театр Зюйдплейн
Театр Зюйдплейн
Фото © Daria Scagliola & Stijn Brakkee

Общественные пространства будут полностью преобразованы, а прежние принципы – обилие бетона, оживленные автотрассы и надземные переходы – сменятся пешеходными зонами, разнообразными материалами и озеленением. Материалы от старых сооружений будут использоваться при строительстве новых: так, бетонные стены старого театра пойдут в измельченном виде на фундамент автовокзала.
 
Театр Зюйдплейн Фото © Daria Scagliola & Stijn Brakkee
Театр Зюйдплейн
Фото © Daria Scagliola & Stijn Brakkee
Театр Зюйдплейн Фото © Daria Scagliola & Stijn Brakkee
Театр Зюйдплейн
Фото © Daria Scagliola & Stijn Brakkee
Театр Зюйдплейн Фото © Daria Scagliola & Stijn Brakkee
Театр Зюйдплейн
Фото © Daria Scagliola & Stijn Brakkee
Театр Зюйдплейн Фото © Daria Scagliola & Stijn Brakkee
Театр Зюйдплейн
Фото © Daria Scagliola & Stijn Brakkee
Театр Зюйдплейн Фото © Daria Scagliola & Stijn Brakkee
Театр Зюйдплейн
Фото © Daria Scagliola & Stijn Brakkee
Театр Зюйдплейн Фото © Daria Scagliola & Stijn Brakkee
Театр Зюйдплейн
Фото © Daria Scagliola & Stijn Brakkee

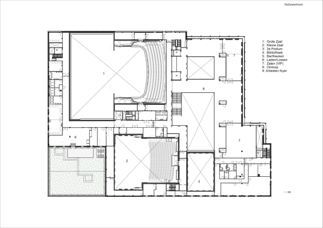
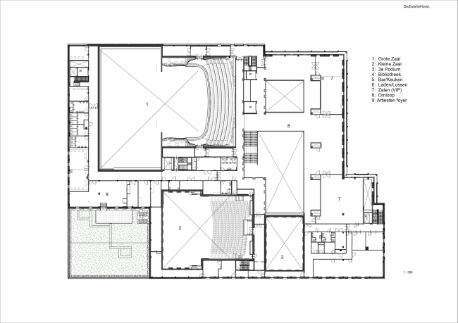
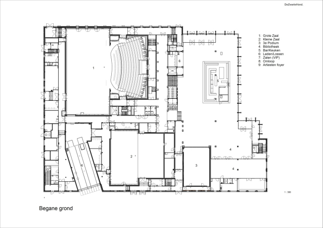
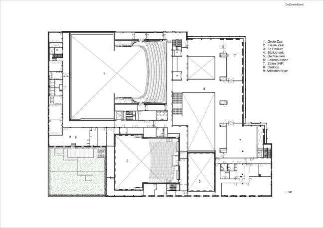
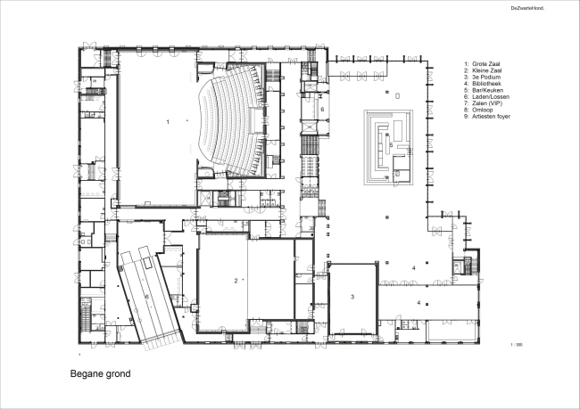
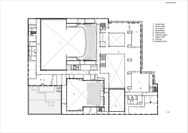
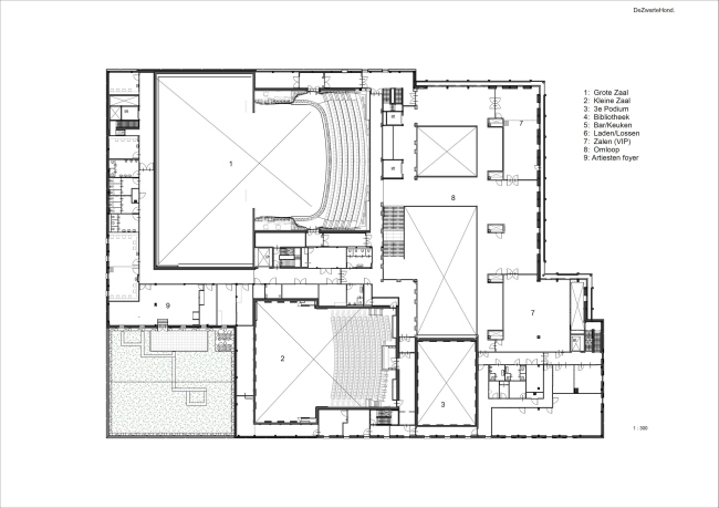
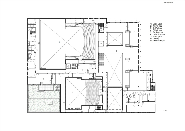
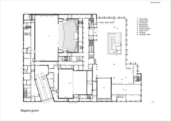
Театр Зюйдплейн получил фасады двух типов: облицованные розовым кирпичом скрывают за собой два зала, большой (600 зрителей) и малый. Они обращены к линии метро, а не к домам, чтобы не мешать жителям по вечерам, если там проходят шумные представления и концерты. Со стороны новой площади фасад остеклен и закрыт ажурными панелями из анодированного алюминия, которые создают узорную игру света и тени в интерьере днем, а вечером превращают светящееся изнутри здание в волшебный фонарь. В этой части находится фойе с зоной библиотеки и кафе. Также там есть небольшая сцена для детских представлений, выступлений диджеев и т.п.
 
Театр Зюйдплейн Фото © Daria Scagliola & Stijn Brakkee
Театр Зюйдплейн
Фото © Daria Scagliola & Stijn Brakkee
Театр Зюйдплейн Фото © Daria Scagliola & Stijn Brakkee
Театр Зюйдплейн
Фото © Daria Scagliola & Stijn Brakkee
Театр Зюйдплейн Фото © Daria Scagliola & Stijn Brakkee
Театр Зюйдплейн
Фото © Daria Scagliola & Stijn Brakkee

Интерьер архитекторы De Zwarte Hond разрабатывали совместно с выигравшей тендер на эту часть работ студией BURO M2R. Особое внимание было уделено акустике: так, в фойе даже представление на малой сцене не помешает посетителям библиотеки. В большом зале акустическое покрытие стен (авторы – Studio RAP) из красных алюминиевых панелей имеет сложную конфигурацию, которая позволила обойтись без слоя шумоизоляции, обеспечить и тишину снаружи, и прекрасную слышимость внутри зала.
 
Театр Зюйдплейн
Театр Зюйдплейн
Фото © Daria Scagliola & Stijn Brakkee

Обычно, чтобы превращать часть зала перед сценой в стоячий партер, места там делают мобильными, что плохо сказывается на их удобстве. В случае театра Зюйдплейн они стационарны и комфортны: в роли танцпола при необходимости выступает сцена, по размеру превышающая площадь зала.
 
Театр Зюйдплейн
Театр Зюйдплейн
Фото © Daria Scagliola & Stijn Brakkee

Особая часть реализации этого проекта – тесное взаимодействие с жителями, которое шло в сложных условиях. По тендеру, у театра было необычно много проектировщиков и подрядчиков, поэтому их слаженная работа и удачное сотрудничество с горожанами стали большим достижением, считают архитекторы. Отдельного упоминания заслуживает список из более чем шести тысяч показателей, по которым у муниципальных властей были к проекту требования – все они были полностью удовлетворены.
Театр Зюйдплейн
Театр Зюйдплейн
Фото © Daria Scagliola & Stijn Brakkee
Театр Зюйдплейн
Театр Зюйдплейн
Фото © Daria Scagliola & Stijn Brakkee
Театр Зюйдплейн Фото © Daria Scagliola & Stijn Brakkee
Театр Зюйдплейн
Фото © Daria Scagliola & Stijn Brakkee
Театр Зюйдплейн Фото © Daria Scagliola & Stijn Brakkee
Театр Зюйдплейн
Фото © Daria Scagliola & Stijn Brakkee
Театр Зюйдплейн Фото © Daria Scagliola & Stijn Brakkee
Театр Зюйдплейн
Фото © Daria Scagliola & Stijn Brakkee
Театр Зюйдплейн Фото © Daria Scagliola & Stijn Brakkee
Театр Зюйдплейн
Фото © Daria Scagliola & Stijn Brakkee
Театр Зюйдплейн Фото © Daria Scagliola & Stijn Brakkee
Театр Зюйдплейн
Фото © Daria Scagliola & Stijn Brakkee
Театр Зюйдплейн Фото © Daria Scagliola & Stijn Brakkee
Театр Зюйдплейн
Фото © Daria Scagliola & Stijn Brakkee
Театр Зюйдплейн Фото © Daria Scagliola & Stijn Brakkee
Театр Зюйдплейн
Фото © Daria Scagliola & Stijn Brakkee
Театр Зюйдплейн Фото © Daria Scagliola & Stijn Brakkee
Театр Зюйдплейн
Фото © Daria Scagliola & Stijn Brakkee
Театр Зюйдплейн Фото © Daria Scagliola & Stijn Brakkee
Театр Зюйдплейн
Фото © Daria Scagliola & Stijn Brakkee
Театр Зюйдплейн
Театр Зюйдплейн
Фото © Daria Scagliola & Stijn Brakkee
Театр Зюйдплейн
Театр Зюйдплейн
Фото © Daria Scagliola & Stijn Brakkee
Театр Зюйдплейн
Театр Зюйдплейн
Фото © Daria Scagliola & Stijn Brakkee
Театр Зюйдплейн
Театр Зюйдплейн
Фото © Daria Scagliola & Stijn Brakkee
Театр Зюйдплейн
Театр Зюйдплейн
Фото © Daria Scagliola & Stijn Brakkee
Театр Зюйдплейн
Театр Зюйдплейн
© De Zwarte Hond
Театр Зюйдплейн
Театр Зюйдплейн
© De Zwarte Hond
Театр Зюйдплейн
Театр Зюйдплейн
© De Zwarte Hond
Театр Зюйдплейн
Театр Зюйдплейн
© De Zwarte Hond