Размещено на портале Архи.ру (www.archi.ru)

10.08.2020

По принципам каллиграфии

Нина Фролова
Объект:
Шуянская художественная галерея
Адрес:
Китай, None, Суцянь.
Мастерская:
Архитектурный проектно-исследовательский институт Чжэцзянского университета (UAD)

Художественная галерея в уезде Шуян посвящена традиционно развитому там искусству каллиграфии. Авторы проекта – Архитектурный проектно-исследовательский институт Чжэцзянского университета.

Уезд Шуян на востоке Китая, входящий в наши дни в состав города Суцянь, связан с историей каллиграфии. Он находится в провинции Цзянсу, где родился и жил в XVIII веке художник Чжэн Се, один из реформаторов этого искусства. Его творческий метод архитекторы использовали как основу проекта для Шуянской художественной галереи, посвященной именно каллиграфии.
 

Шуянская художественная галерея
Шуянская художественная галерея
Фото © Zhao Qiang

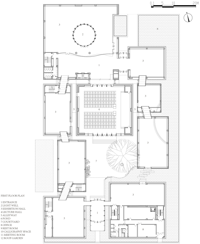
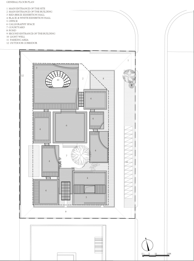
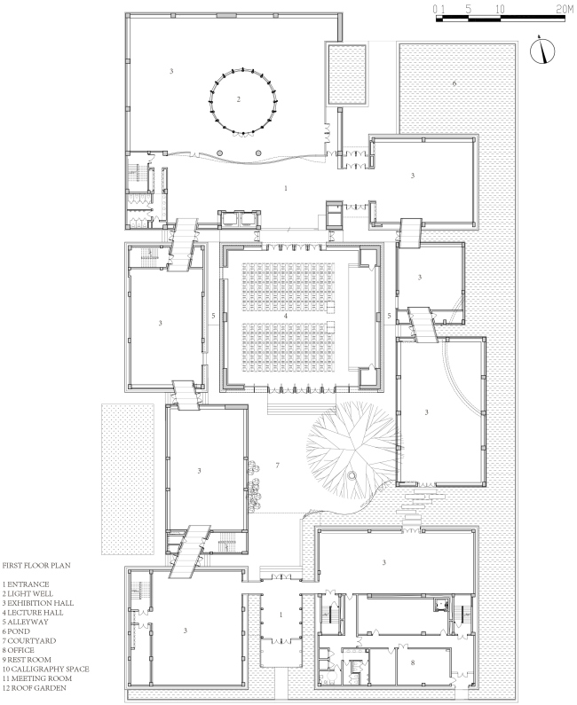
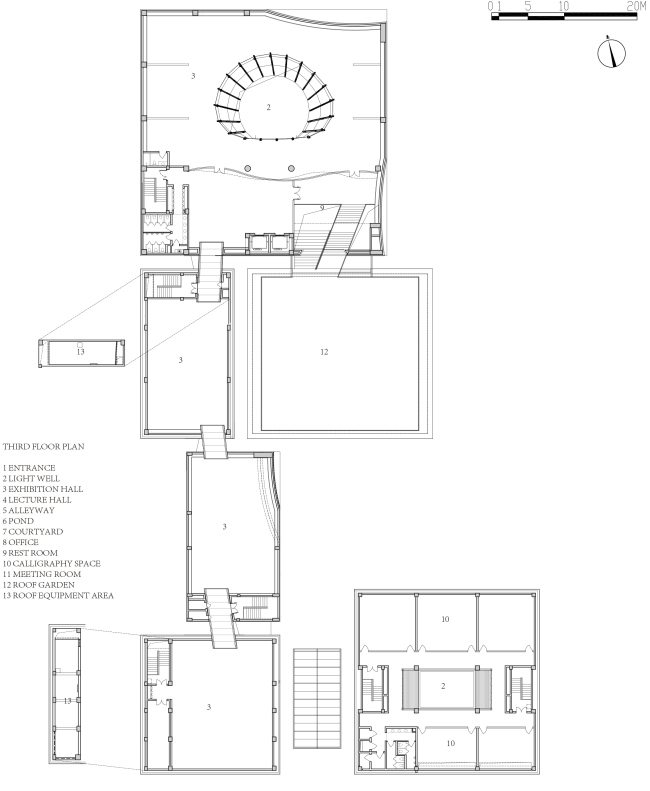
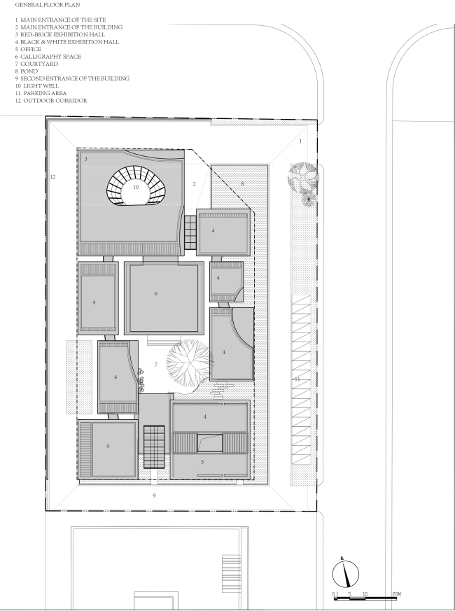
Прямоугольный комплекс галереи расположен среди полей на окраине города. Метафора каллиграфии начинается с мощения двора серым гранитом разных оттенков: это напоминает растекшуюся по бумаге тушь.
 
Шуянская художественная галерея
Шуянская художественная галерея
Фото © Zhao Qiang

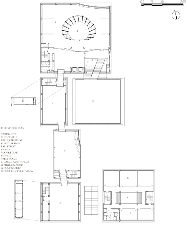
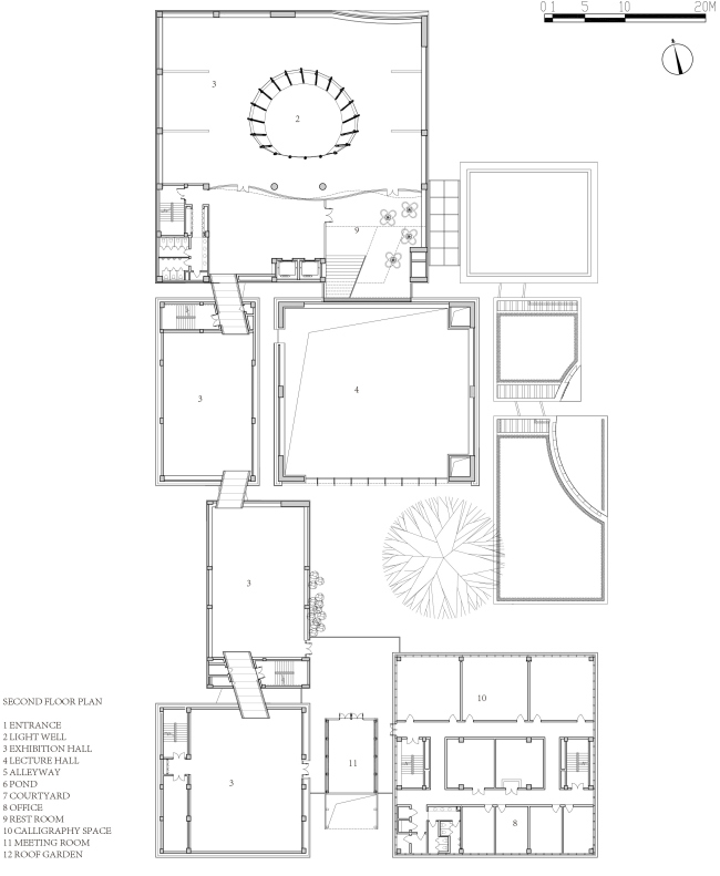
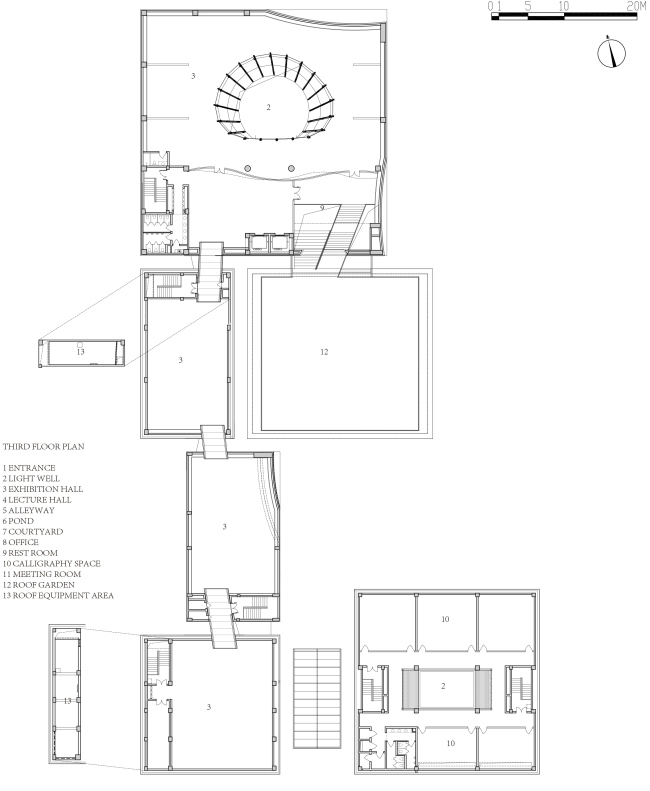
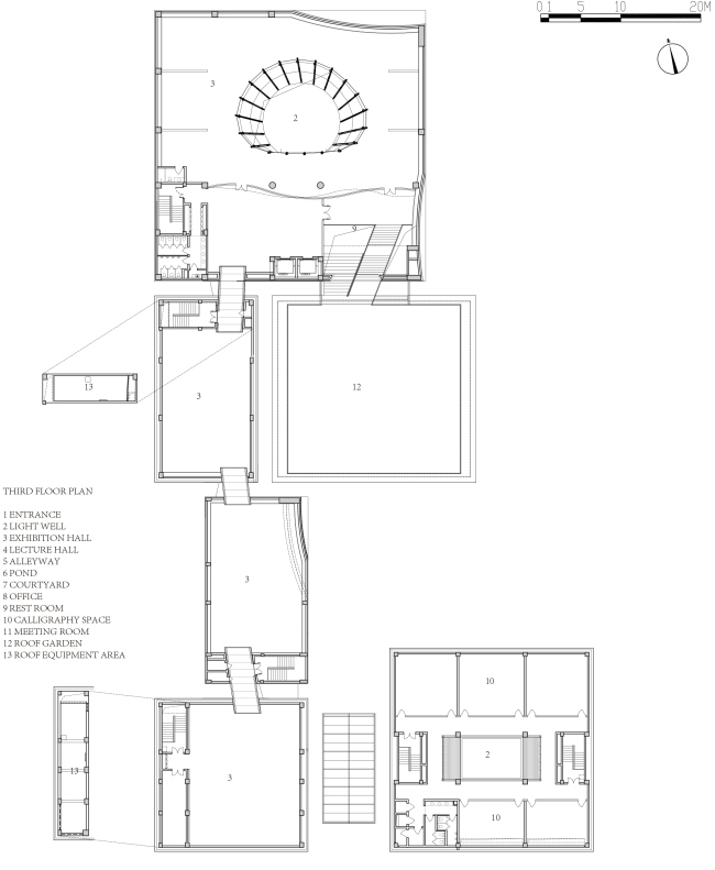
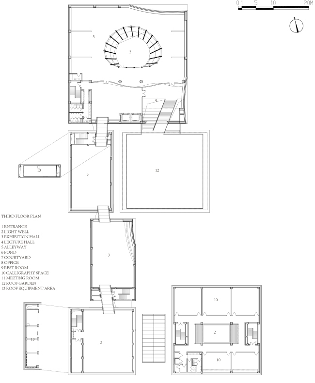
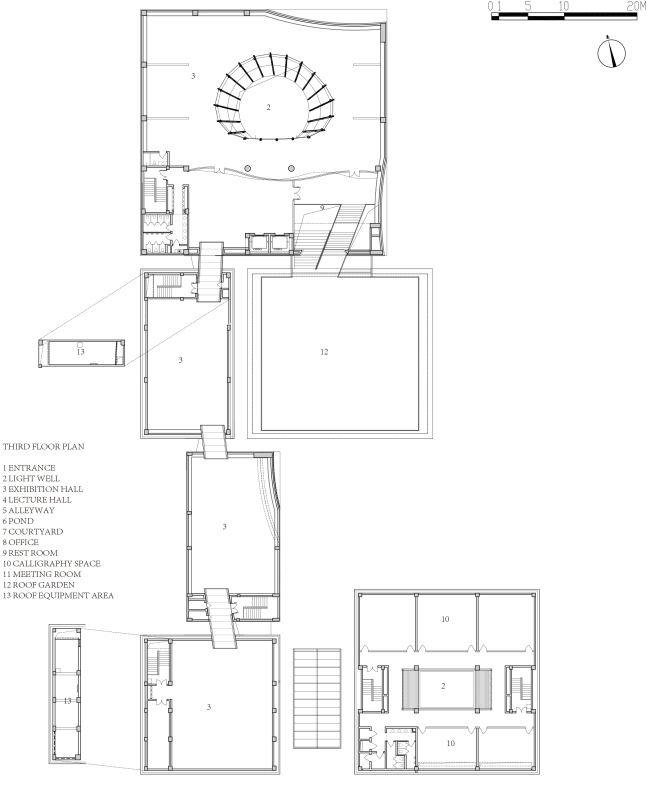
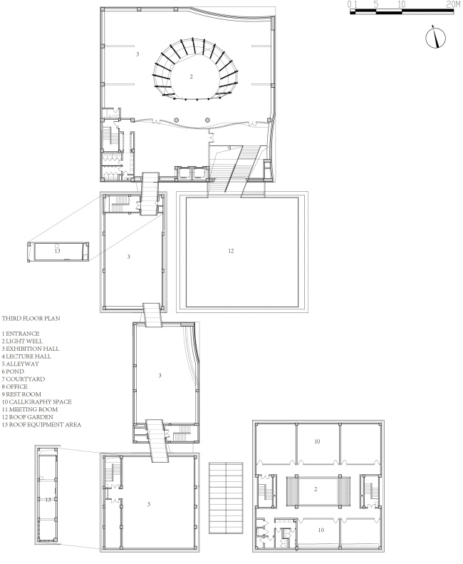
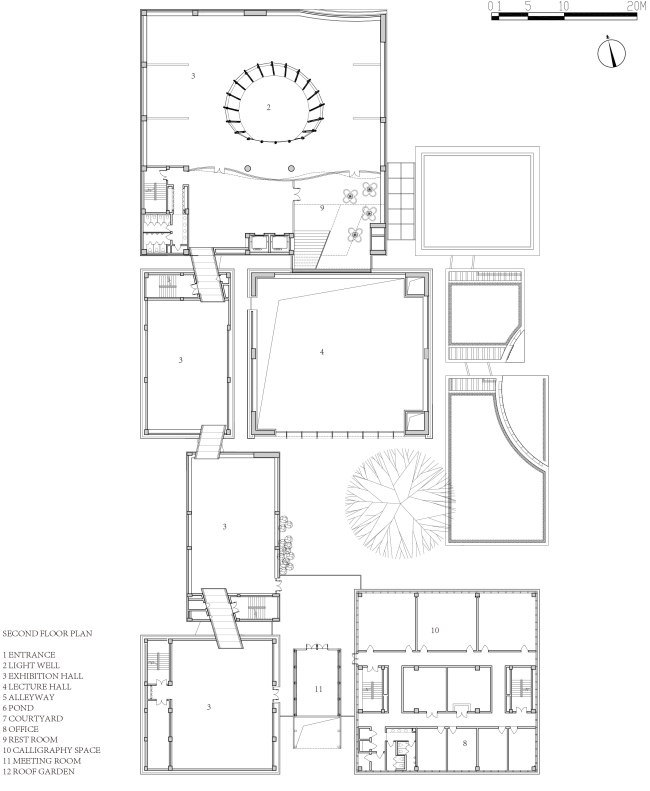
Три основных выставочных зала символизируют три части произведения каллиграфии: бумагу, тушь и печать. Самый заметный и эффектный корпус вдохновлен как раз красной печатью. Это криволинейный объем, облицованный бордовым кирпичом из уезда Исин все той же провинции Цзянсу – исторического центра керамического производства. Кладка трех типов придает сложной форме фасадов еще большее разнообразие.
 
Шуянская художественная галерея
Шуянская художественная галерея
Фото © Zhao Qiang

Меньшие объемы, обозначающие плитку туши, покрыты темно-серой фторуглеродной краской, придающей им сходство с камнями. На уровне земли их фасады завершаются обратной выкружкой, что должно передавать необходимую для занятий каллиграфией серьезность.
 
Шуянская художественная галерея
Шуянская художественная галерея
Фото © Zhao Qiang

Бумагу символизируют корпуса, покрытые сборными фасадными панелями из бетона. Их поверхность расчерчена вертикальными бороздами, чтобы напоминать рисовую бумагу. В самом низу фасад не касается земли, что обозначает «отчужденность» каллиграфа. Еще один важный элемент проекта – водоем; он, как и переходы между корпусами, ракурсы и резкие смены «характера» пространства должны быстро отвлечь посетителя от будничных забот и настроить на восприятие каллиграфии.
 
Шуянская художественная галерея
Шуянская художественная галерея
Фото © Zhao Qiang

Интерьеры почти лишены опор, чтобы было возможно легко менять структуру экспозиции. В главном, красном корпусе световые колодцы пронизывают все его уровни.
Шуянская художественная галерея Фото © Zhao Qiang
Шуянская художественная галерея
Фото © Zhao Qiang
Шуянская художественная галерея Фото © Zhao Qiang
Шуянская художественная галерея
Фото © Zhao Qiang
Шуянская художественная галерея Фото © Zhao Qiang
Шуянская художественная галерея
Фото © Zhao Qiang
Шуянская художественная галерея
Шуянская художественная галерея
Фото © Zhao Qiang
Шуянская художественная галерея
Шуянская художественная галерея
Фото © Zhao Qiang
Шуянская художественная галерея
Шуянская художественная галерея
Фото © Zhao Qiang
Шуянская художественная галерея
Шуянская художественная галерея
Фото © Zhao Qiang
Шуянская художественная галерея
Шуянская художественная галерея
Фото © Zhao Qiang
Шуянская художественная галерея
Шуянская художественная галерея
Фото © Zhao Qiang
Шуянская художественная галерея
Шуянская художественная галерея
Фото © Zhao Qiang
Шуянская художественная галерея
Шуянская художественная галерея
Фото © Zhao Qiang
Шуянская художественная галерея
Шуянская художественная галерея
Фото © Zhao Qiang
Шуянская художественная галерея
Шуянская художественная галерея
Фото © Zhao Qiang
Шуянская художественная галерея
Шуянская художественная галерея
Фото © Zhao Qiang
Шуянская художественная галерея
Шуянская художественная галерея
Фото © Zhao Qiang
Шуянская художественная галерея
Шуянская художественная галерея
© Architectural Design & Research Institute of Zhejiang University Co., Ltd. (UAD)
Шуянская художественная галерея
Шуянская художественная галерея
© Architectural Design & Research Institute of Zhejiang University Co., Ltd. (UAD)
Шуянская художественная галерея
Шуянская художественная галерея
© Architectural Design & Research Institute of Zhejiang University Co., Ltd. (UAD)
Шуянская художественная галерея
Шуянская художественная галерея
© Architectural Design & Research Institute of Zhejiang University Co., Ltd. (UAD)
Шуянская художественная галерея
Шуянская художественная галерея
© Architectural Design & Research Institute of Zhejiang University Co., Ltd. (UAD)
Шуянская художественная галерея
Шуянская художественная галерея
© Architectural Design & Research Institute of Zhejiang University Co., Ltd. (UAD)
Шуянская художественная галерея
Шуянская художественная галерея
© Architectural Design & Research Institute of Zhejiang University Co., Ltd. (UAD)
Шуянская художественная галерея
Шуянская художественная галерея
© Architectural Design & Research Institute of Zhejiang University Co., Ltd. (UAD)
Шуянская художественная галерея
Шуянская художественная галерея
© Architectural Design & Research Institute of Zhejiang University Co., Ltd. (UAD)