Размещено на портале Архи.ру (www.archi.ru)

27.07.2020

Форум на холме

Нина Фролова
Объект:
Культурный центр Carmen Würth Forum
Адрес:
Германия, None, Кюнцельзау. Am Forumsplatz 1, 74653 Künzelsau

Недалеко от Штутгарта по проекту бюро Дэвида Чипперфильда полностью завершен культурный центр Carmen Würth Forum: теперь там открылись музей и конференц-центр.

Дэвид Чипперфильд выиграл конкурс на проект «форума» в 2006–2007, первая его очередь открылась в 2017, сейчас завершена вторая, финальная. Этот комплекс – замысел крупного немецкого предпринимателя Райнхольда Вюрта; он построен в городке Кюнцельзау через дорогу от производственного кампуса его компании Adolf Würth GmbH & Co. KG, но предназначен далеко не только для ее корпоративных нужд.
 

Культурный центр Carmen Würth Forum. Вторая очередь
Культурный центр Carmen Würth Forum. Вторая очередь
Фото © Simon Menges

Сначала там появились концертный зал и зал для мероприятий, теперь – музей для коллекции Вюрта и конференц-центр. Это невысокие постройки, не нарушающие разворачивающийся до горизонта ландшафт: они частично вписаны в невысокий холм. Язык архитектуры напоминает о модернизме середины прошлого века, но авторы проекта больше говорят о родстве с индустриальными постройками по соседству, от которых «форум» отличает лишь высокое качество материалов и проработка деталей.
 
Культурный центр Carmen Würth Forum. Вторая очередь
Культурный центр Carmen Würth Forum. Вторая очередь
Фото © Simon Menges

Вместе с тем, комплекс, носящий имя супруги Райнхольда Вюрта, недаром назван «форумом»: архитекторы все же помнили о римских ансамблях, составляя свой – из корпусов и дворов, с внутренними и внешними колоннадами.
 
Культурный центр Carmen Würth Forum. Вторая очередь
Культурный центр Carmen Würth Forum. Вторая очередь
Фото © Simon Menges

Музей включает в себя большой выставочный зал, который при желании можно разделить, и меньшую, защищенную от солнечного света галерею графики. Также есть и открытый в окружающий ландшафт «бельведер», а также парк скульптур.
 
Культурный центр Carmen Würth Forum. Вторая очередь
Культурный центр Carmen Würth Forum. Вторая очередь
Фото © Simon Menges

Райнхольд Вюрт собрал одну из важнейших в Европе коллекций живописи, графики, скульптуры – современной и новейшей. Среди представленных мастеров – Макс Бекман, Эдвард Мунк, Эмиль Нольде, Пабло Пикассо, Генри Мур, Аниш Капур, Георг Базелиц. В 2003 Вюрт приобрел коллекцию позднесредневекового искусства князей Фюрстенберг, которую с тех пор дополнил скульптурой и живописью, в том числе периода Ренессанса. Самая знаменитая работа появилась там в 2012 – это «Богоматерь бургомистра Мейера» Ганса Гольбейна Младшего. Однако далеко не все эти сокровища можно увидеть в Кюнцельзау: значительная часть коллекции экспонируется в городе Швебиш-Халль, а отдельные произведения – в 14 «партнерских» музеях и галереях в разных городах Европы.
Культурный центр Carmen Würth Forum. Вторая очередь
Культурный центр Carmen Würth Forum. Вторая очередь
Фото © Simon Menges
Культурный центр Carmen Würth Forum. Вторая очередь
Культурный центр Carmen Würth Forum. Вторая очередь
Фото © Simon Menges
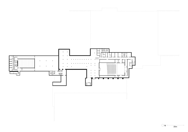
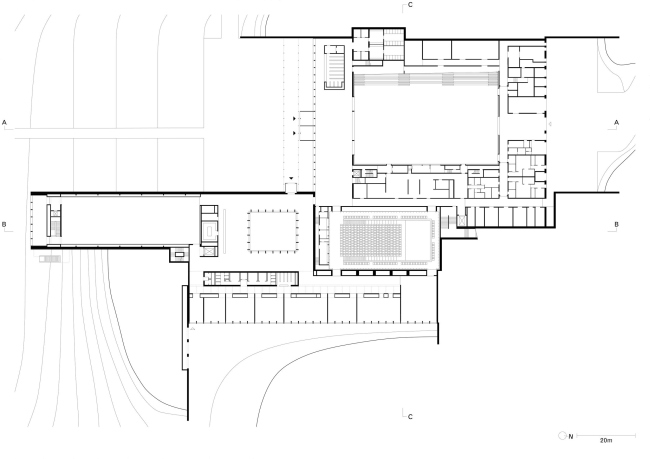
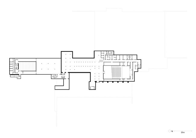
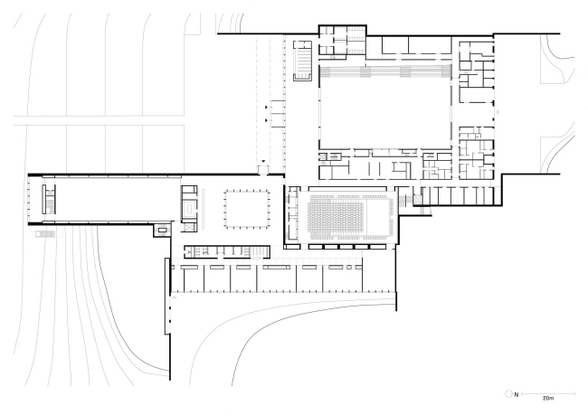
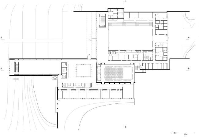
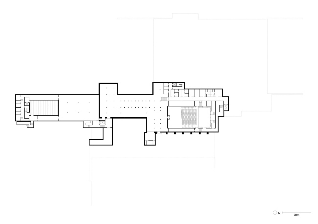
Культурный центр Carmen Würth Forum. Вторая очередь
Культурный центр Carmen Würth Forum. Вторая очередь
© David Chipperfield Architects
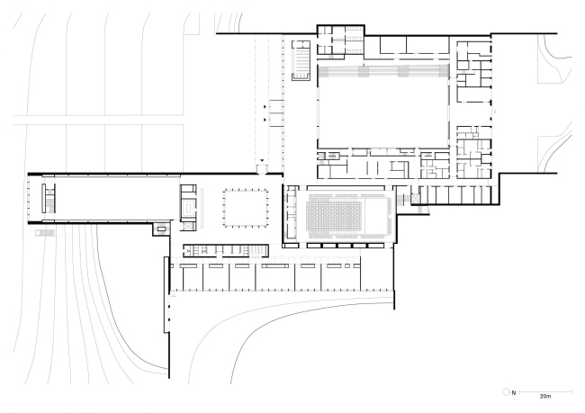
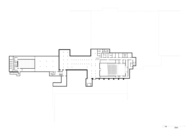
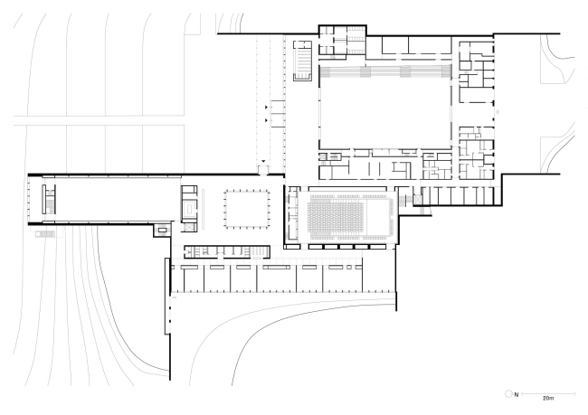
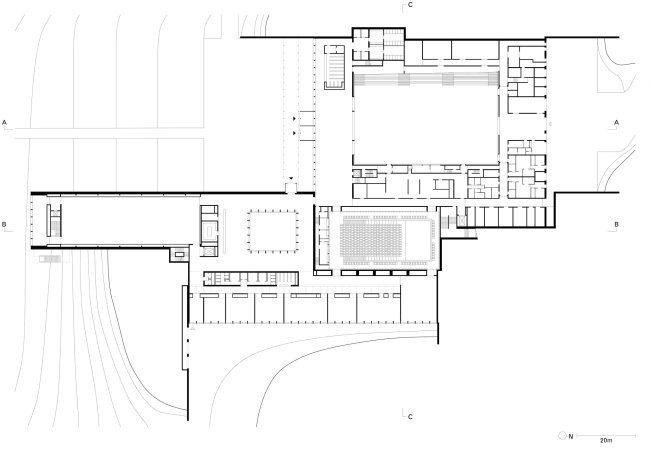
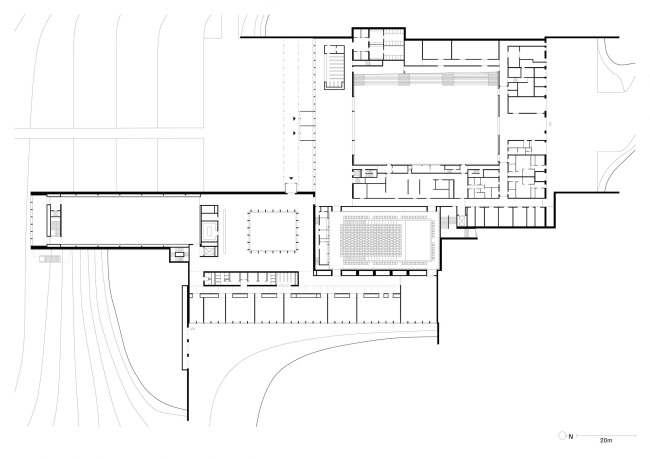
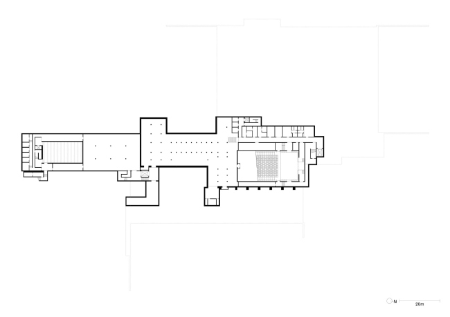
Культурный центр Carmen Würth Forum. Вторая очередь
Культурный центр Carmen Würth Forum. Вторая очередь
© David Chipperfield Architects
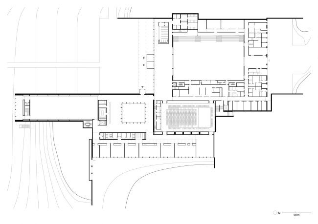
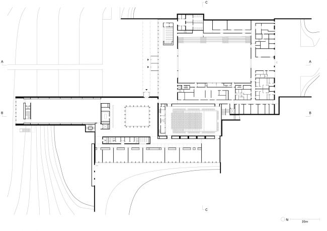
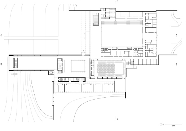
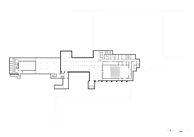
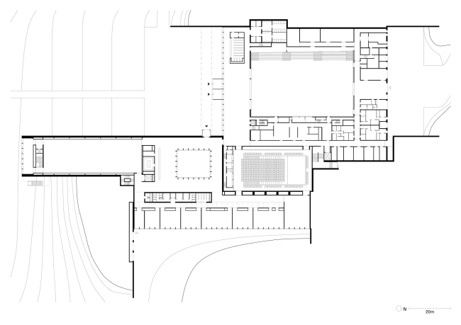
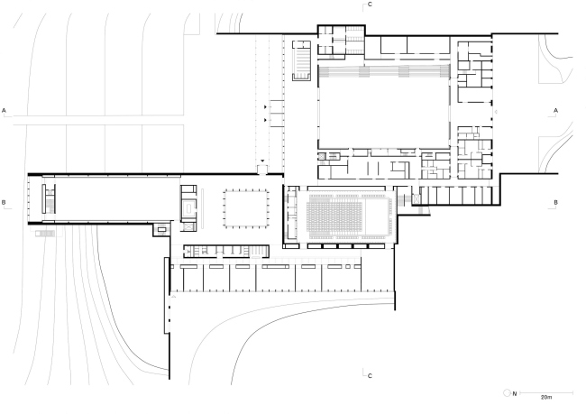
Культурный центр Carmen Würth Forum. Вторая очередь
Культурный центр Carmen Würth Forum. Вторая очередь
© David Chipperfield Architects
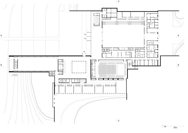
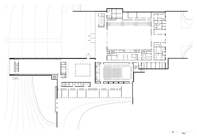
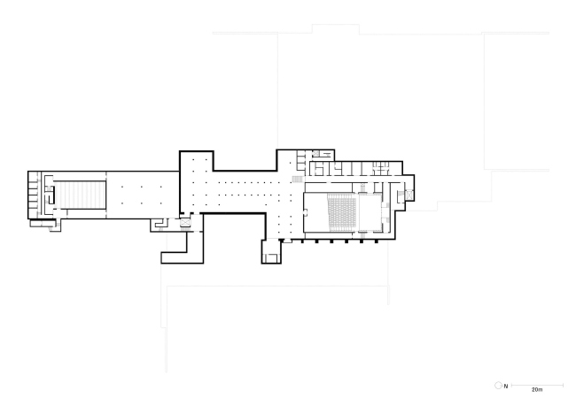
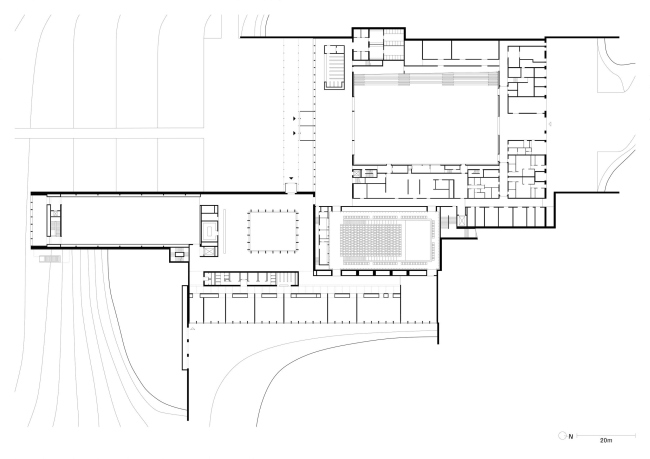
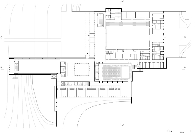
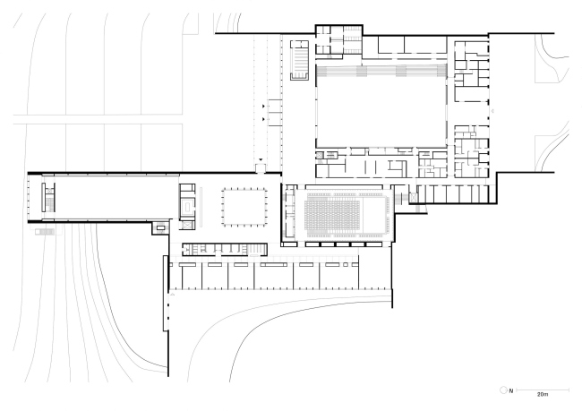
Культурный центр Carmen Würth Forum. Вторая очередь
Культурный центр Carmen Würth Forum. Вторая очередь
© David Chipperfield Architects
Культурный центр Carmen Würth Forum. Вторая очередь
Культурный центр Carmen Würth Forum. Вторая очередь
© David Chipperfield Architects
Культурный центр Carmen Würth Forum. Вторая очередь
Культурный центр Carmen Würth Forum. Вторая очередь
© David Chipperfield Architects
Культурный центр Carmen Würth Forum. Вторая очередь
Культурный центр Carmen Würth Forum. Вторая очередь
© David Chipperfield Architects
Культурный центр Carmen Würth Forum. Вторая очередь
Культурный центр Carmen Würth Forum. Вторая очередь
© David Chipperfield Architects
Культурный центр Carmen Würth Forum. Вторая очередь
Культурный центр Carmen Würth Forum. Вторая очередь
© David Chipperfield Architects
Культурный центр Carmen Würth Forum. Вторая очередь
Культурный центр Carmen Würth Forum. Вторая очередь
© David Chipperfield Architects
Культурный центр Carmen Würth Forum. Вторая очередь
Культурный центр Carmen Würth Forum. Вторая очередь
© David Chipperfield Architects
Культурный центр Carmen Würth Forum. Вторая очередь
Культурный центр Carmen Würth Forum. Вторая очередь
© David Chipperfield Architects
Культурный центр Carmen Würth Forum. Вторая очередь
Культурный центр Carmen Würth Forum. Вторая очередь
© David Chipperfield Architects