Размещено на портале Архи.ру (www.archi.ru)

27.07.2020

Мастерская Paolo Bodega Architettura представила «антивирусное» модульное жилье с функциями «умного дома»

Алина Измайлова

Итальянское бюро Paolo Bodega Architettura представило проект «Здоровый дом» – одноэтажную модульную постройку, призванную защитить своих жильцов от COVID-19. Так, специальный фильтр, встроенный в систему вентиляции, избавляет воздух от вредных микроорганизмов, а система рециркуляции озона дезинфицирует шкафы и помещения. Стены и пол в «Здоровом доме» покрыты самоочищающимся слоем из диоксида титана, который выступает также в качестве воздухоочистителя.

Проект модульного жилища «Здоровый дом – Антивирус»
Проект модульного жилища «Здоровый дом – Антивирус»
Предоставлена Paolo Bodega Architettura

Надо сказать, что «антивирусный» «Дом здоровья» – это продолжение одноименного проекта десятилетней давности. В 2010 студия Paolo Bodega Architettura по заказу департамента здравоохранения Милана разработала проект энергоэффективного дома, призванного улучшить качество жизни своих обитателей: компоненты постройки и ее планировка «работали» на профилактику различных заболеваний и «приучали» людей к здоровому образу жизни. Прототип первой версии «Дома» был выставлен для публики в миланском общественном саду Индро Монтанелли. Все желающие могли бесплатно осмотреть его изнутри.
Проект модульного жилища «Здоровый дом – Антивирус» Предоставлена Paolo Bodega Architettura
Проект модульного жилища «Здоровый дом – Антивирус»
Предоставлена Paolo Bodega Architettura
Проект модульного жилища «Здоровый дом – Антивирус» Предоставлена Paolo Bodega Architettura
Проект модульного жилища «Здоровый дом – Антивирус»
Предоставлена Paolo Bodega Architettura
Проект модульного жилища «Здоровый дом – Антивирус» Предоставлена Paolo Bodega Architettura
Проект модульного жилища «Здоровый дом – Антивирус»
Предоставлена Paolo Bodega Architettura
Проект модульного жилища «Здоровый дом – Антивирус» Предоставлена Paolo Bodega Architettura
Проект модульного жилища «Здоровый дом – Антивирус»
Предоставлена Paolo Bodega Architettura

Строение площадью 80 м2 не имеет традиционного разделения на комнаты: весь дом – это единая среда с различными функциональными зонами, которые свободно перетекают одна в другую и способны трансформироваться. Отсутствие барьеров позволяет свободно использовать дом даже людям с ограниченными возможностями.
Распределение функциональных зон с ядром посередине. Проект модульного жилища «Здоровый дом – Антивирус»
Распределение функциональных зон с ядром посередине. Проект модульного жилища «Здоровый дом – Антивирус»
Предоставлена Paolo Bodega Architettura

На кухне предусмотрено место для мини-теплицы: предполагается, что домовладельцы будут выращивать там овощи, лекарственные растения и цветы.
Проект модульного жилища «Здоровый дом – Антивирус»
Проект модульного жилища «Здоровый дом – Антивирус»
Предоставлена Paolo Bodega Architettura

Жилище способно «расти» и адаптироваться к изменяющимся условиям среды и потребностям своих обитателей – совсем как живой организм. Так, к базовому «ядру» можно «подключить» дополнительные модули и тем самым расширить его площадь и получить доступ к зонам фитнеса, хобби, медитации, природы и так далее. «Как различные природные элементы эволюционируют и меняют свою форму, цвет и поведение в зависимости от условий окружающей среды, так и «Дом здоровья» развивается и адаптируется в соответствии с потребностями тех, кто живет в нем, в зависимости от времени года и суток», – поясняют авторы проекта.
Проект модульного жилища «Здоровый дом – Антивирус»
Проект модульного жилища «Здоровый дом – Антивирус»
Предоставлена Paolo Bodega Architettura

Модули изготовлены из больших железобетонных панелей и скрепляются по технологии Housing System. Жилые единицы можно объединить между собой в вертикальной или горизонтальной плоскости – получится многоэтажный дом или целый квартал.
Проект модульного жилища «Здоровый дом – Антивирус»
Проект модульного жилища «Здоровый дом – Антивирус»
Предоставлена Paolo Bodega Architettura

Управлять различными приборами и устройствами можно при помощи голоса. Технологии «умного дома» подчиняются бытовая техника, жалюзи, система освещения, а также входные двери. Отсутствие контактов с кнопками, панелями, поверхностями и другими источниками вредоносных бактерий также снижает риск заражения инфекцией.
Проект модульного жилища «Здоровый дом – Антивирус»
Проект модульного жилища «Здоровый дом – Антивирус»
Предоставлена Paolo Bodega Architettura
Проект модульного жилища «Здоровый дом – Антивирус»
Проект модульного жилища «Здоровый дом – Антивирус»
Предоставлена Paolo Bodega Architettura
Проект модульного жилища «Здоровый дом – Антивирус»
Проект модульного жилища «Здоровый дом – Антивирус»
Предоставлена Paolo Bodega Architettura
Проект модульного жилища «Здоровый дом – Антивирус»
Проект модульного жилища «Здоровый дом – Антивирус»
Предоставлена Paolo Bodega Architettura
Проект модульного жилища «Здоровый дом – Антивирус»
Проект модульного жилища «Здоровый дом – Антивирус»
Предоставлена Paolo Bodega Architettura
Проект модульного жилища «Здоровый дом – Антивирус»
Проект модульного жилища «Здоровый дом – Антивирус»
Предоставлена Paolo Bodega Architettura
Проект модульного жилища «Здоровый дом – Антивирус»
Проект модульного жилища «Здоровый дом – Антивирус»
Предоставлена Paolo Bodega Architettura
Проект модульного жилища «Здоровый дом – Антивирус»
Проект модульного жилища «Здоровый дом – Антивирус»
Предоставлена Paolo Bodega Architettura
Проект модульного жилища «Здоровый дом – Антивирус»
Проект модульного жилища «Здоровый дом – Антивирус»
Предоставлена Paolo Bodega Architettura
Проект модульного жилища «Здоровый дом – Антивирус»
Проект модульного жилища «Здоровый дом – Антивирус»
Предоставлена Paolo Bodega Architettura
Проект модульного жилища «Здоровый дом – Антивирус»
Проект модульного жилища «Здоровый дом – Антивирус»
Предоставлена Paolo Bodega Architettura
Проект модульного жилища «Здоровый дом – Антивирус»
Проект модульного жилища «Здоровый дом – Антивирус»
Предоставлена Paolo Bodega Architettura
Проект модульного жилища «Здоровый дом – Антивирус»
Проект модульного жилища «Здоровый дом – Антивирус»
Предоставлена Paolo Bodega Architettura
План. Проект модульного жилища «Здоровый дом – Антивирус»
План. Проект модульного жилища «Здоровый дом – Антивирус»
Предоставлена Paolo Bodega Architettura
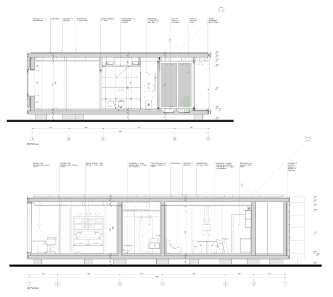
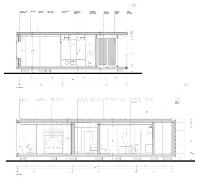
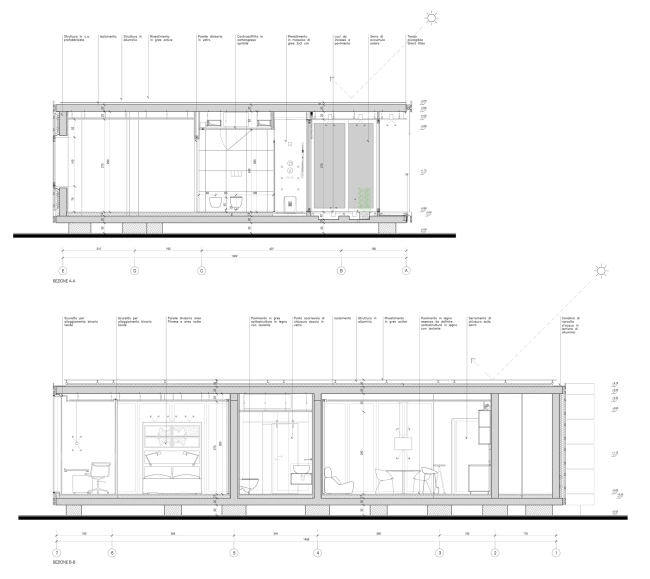
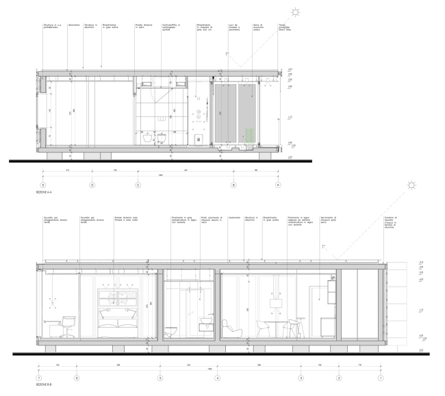
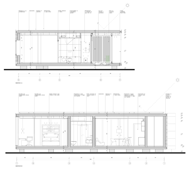
Разрезы. Проект модульного жилища «Здоровый дом – Антивирус»
Разрезы. Проект модульного жилища «Здоровый дом – Антивирус»
Предоставлена Paolo Bodega Architettura
Проект модульного жилища «Здоровый дом – Антивирус»
Проект модульного жилища «Здоровый дом – Антивирус»
Предоставлена Paolo Bodega Architettura
Проект модульного жилища «Здоровый дом – Антивирус»
Проект модульного жилища «Здоровый дом – Антивирус»
Предоставлена Paolo Bodega Architettura
Проект модульного жилища «Здоровый дом – Антивирус»
Проект модульного жилища «Здоровый дом – Антивирус»
Предоставлена Paolo Bodega Architettura
Группировка модулей. Проект модульного жилища «Здоровый дом – Антивирус»
Группировка модулей. Проект модульного жилища «Здоровый дом – Антивирус»
Предоставлена Paolo Bodega Architettura
Группировка модулей. Проект модульного жилища «Здоровый дом – Антивирус»
Группировка модулей. Проект модульного жилища «Здоровый дом – Антивирус»
Предоставлена Paolo Bodega Architettura
Кондоминиум. Проект модульного жилища «Здоровый дом – Антивирус»
Кондоминиум. Проект модульного жилища «Здоровый дом – Антивирус»
Предоставлена Paolo Bodega Architettura