Размещено на портале Архи.ру (www.archi.ru)

21.07.2020

Мозаика этажей

Нина Фролова
Объект:
Жилой комплекс Etaget
Адрес:
Швеция, None, Стокгольм.
Мастерская:
Kjellander Sjöberg
Авторский коллектив:
Partner in charge: Stefan Sjöberg
Team: Ola Kjellander, Sylvia Neiglick, Mimmi Wide Gustafsson, Jesús Franch, Julia Börjesson, Kamil Szczesny, Linda Schuur, Moa Wendt, Simon Estié, Pontus Nilsson

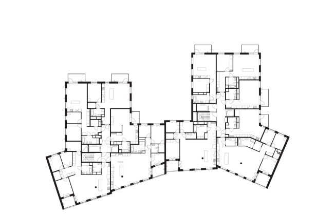
Жилой комплекс Etaget по проекту архитекторов Kjellander Sjöberg встроен в сложившуюся застройку центральной части Стокгольма, имитируя «город в городе».

Комплекс Etaget на 103 квартиры расположен в западной части острова Кунгсхольмен. Раньше это была территория офисных корпусов и предприятий легкой промышленности, а теперь там обосновались и другие компании, а также строится жилье. Это разнообразие функций наряду с традиционной для центра Стокгольма схемой многоквартирного дома – общественный первый этаж, основная часть, отодвинутый от красной линии пентхаус – определили композицию Etaget.
 

Жилой комплекс Etaget
Жилой комплекс Etaget
Фото © Adam Mørk
Жилой комплекс Etaget
Жилой комплекс Etaget
Фото © Adam Mørk
Жилой комплекс Etaget
Жилой комплекс Etaget
Фото © Adam Mørk

Здание составлено из отдельных блоков, сдвинутых друг относительно друга. Их отличия подчеркивает фасадный материал – три вида кирпича, латунь и медь. Дерево использовано для обшивки террас и балконов. В результате возникает образ «города в городе», аккуратно вписанного в небольшой участок в изгибе улицы.
 
Жилой комплекс Etaget
Жилой комплекс Etaget
Фото © Adam Mørk
Жилой комплекс Etaget
Жилой комплекс Etaget
Фото © Adam Mørk
Жилой комплекс Etaget
Жилой комплекс Etaget
Фото © Adam Mørk

Первый этаж занят магазинами и кафе, квартиры с большими окнами повторяют схему «лофта», озелененная крыша-терраса способствует общению жильцов.
Жилой комплекс Etaget
Жилой комплекс Etaget
Фото © Adam Mørk
Жилой комплекс Etaget
Жилой комплекс Etaget
Фото © Adam Mørk
Жилой комплекс Etaget
Жилой комплекс Etaget
Фото © Adam Mørk
Жилой комплекс Etaget
Жилой комплекс Etaget
Фото © Adam Mørk
Жилой комплекс Etaget
Жилой комплекс Etaget
Фото © Adam Mørk
Жилой комплекс Etaget
Жилой комплекс Etaget
Фото © Adam Mørk
Жилой комплекс Etaget
Жилой комплекс Etaget
Фото © Adam Mørk
Жилой комплекс Etaget
Жилой комплекс Etaget
Фото © Adam Mørk
Жилой комплекс Etaget
Жилой комплекс Etaget
Фото © Adam Mørk
Жилой комплекс Etaget
Жилой комплекс Etaget
Фото © Adam Mørk
Жилой комплекс Etaget
Жилой комплекс Etaget
Фото © Adam Mørk
Жилой комплекс Etaget
Жилой комплекс Etaget
Фото © Adam Mørk
Жилой комплекс Etaget
Жилой комплекс Etaget
Фото © Adam Mørk
Жилой комплекс Etaget
Жилой комплекс Etaget
Фото © Adam Mørk
Жилой комплекс Etaget
Жилой комплекс Etaget
© Kjellander Sjöberg
Жилой комплекс Etaget
Жилой комплекс Etaget
© Kjellander Sjöberg
Жилой комплекс Etaget
Жилой комплекс Etaget
© Kjellander Sjöberg
Жилой комплекс Etaget
Жилой комплекс Etaget
© Kjellander Sjöberg
Жилой комплекс Etaget
Жилой комплекс Etaget
© Kjellander Sjöberg
Жилой комплекс Etaget
Жилой комплекс Etaget
© Kjellander Sjöberg