Размещено на портале Архи.ру (www.archi.ru)

09.07.2020

Дом у парка

Нина Фролова
Объект:
Жилой комплекс Pilestredet 77/79
Адрес:
Норвегия, None, Осло.

Жилой комплекс Pilestredet 77/79 в Осло по проекту Reiulf Ramstad Arkitekter.

Pilestredet 77/79 назван по своему адресу в районе Фагерборг, по улице Пилестредет – к северо-западу от центра Осло. Вокруг – застройка XIX–XX веков в три–пять этажей, разнообразная, но в целом сдержанная. Новый жилой комплекс граничит с небольшим Стенс-парком и церковью Фагерборг первых лет прошлого столетия. Здесь типичный для Осло перепад рельефа, и постройка бюро Рейульфа Рамстада стоит над склоном, видная издалека.
 

Жилой комплекс Pilestredet 77/79
Жилой комплекс Pilestredet 77/79
Фото © Ivar Kvaal

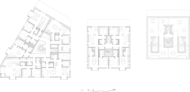
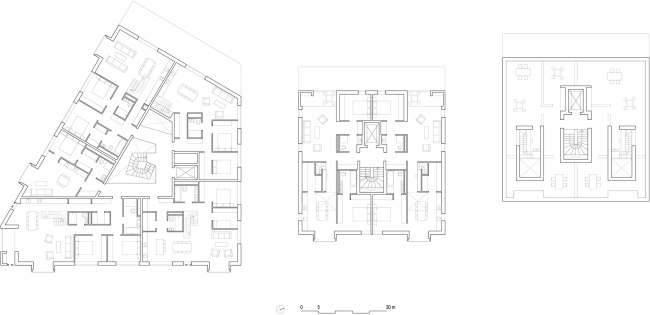
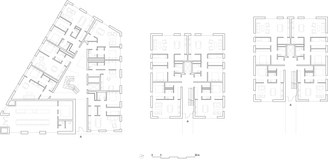
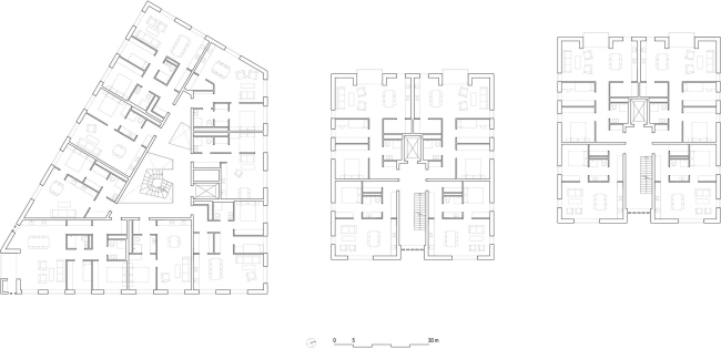
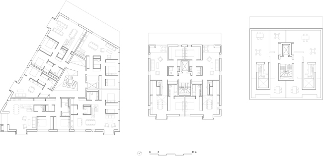
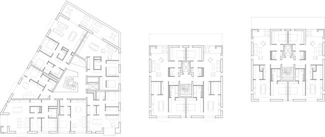
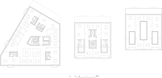
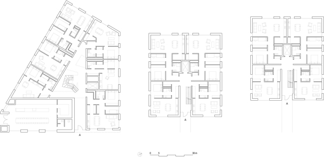
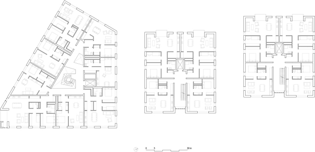
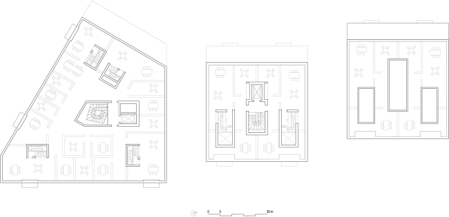
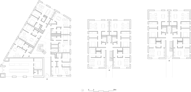
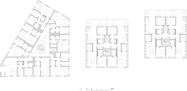
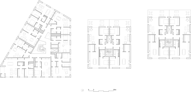
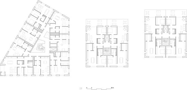
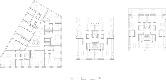
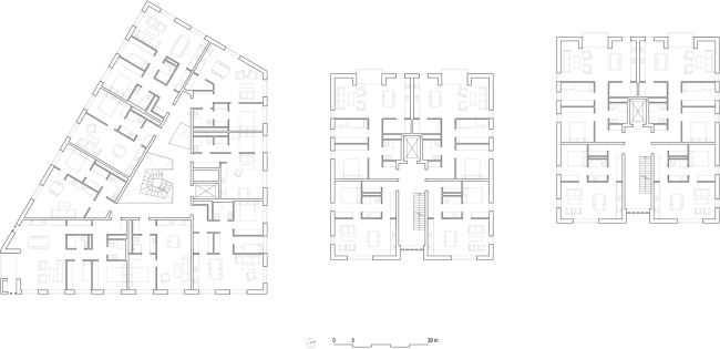
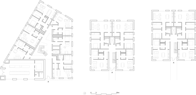
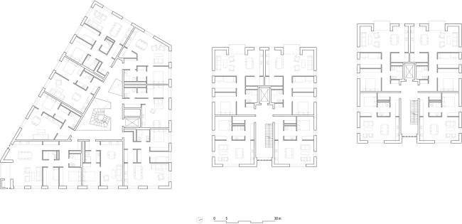
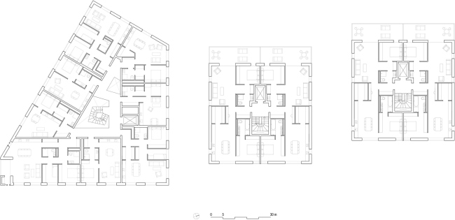
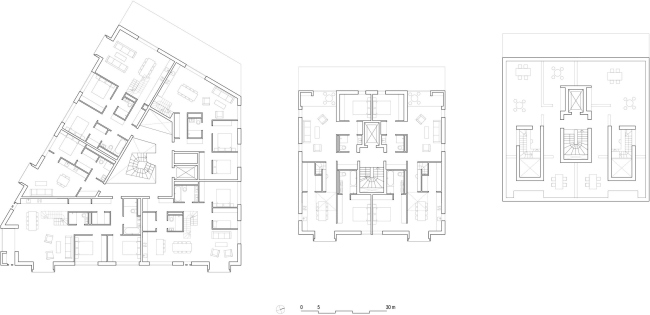
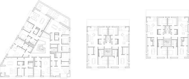
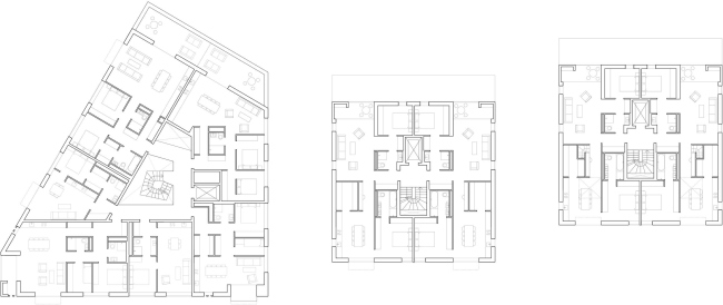
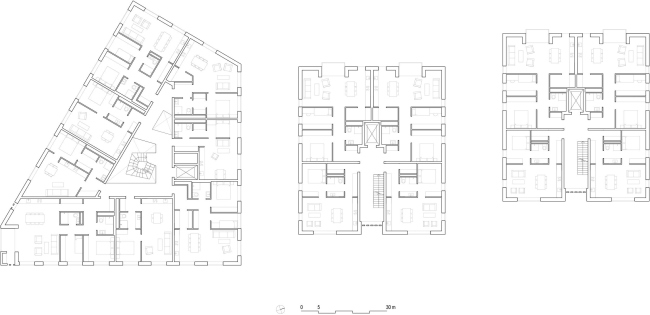
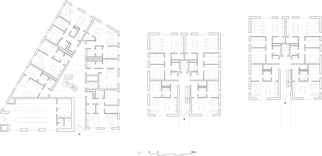
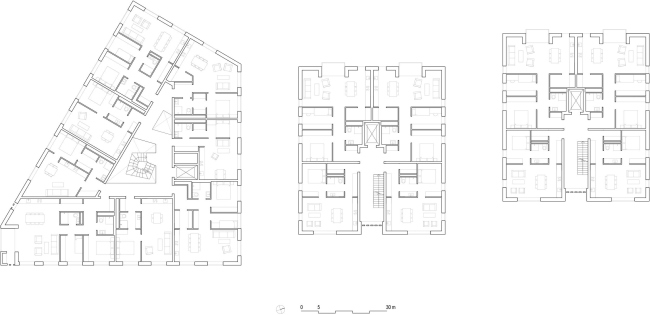
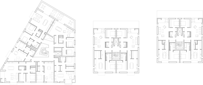
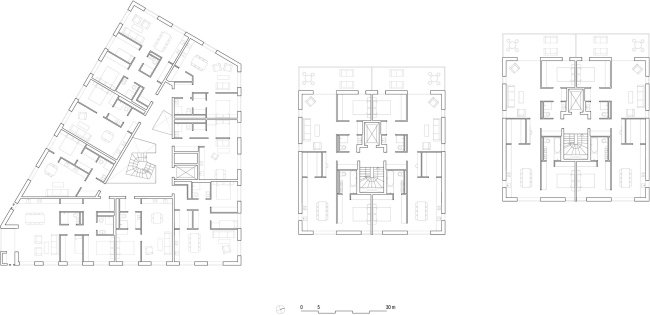
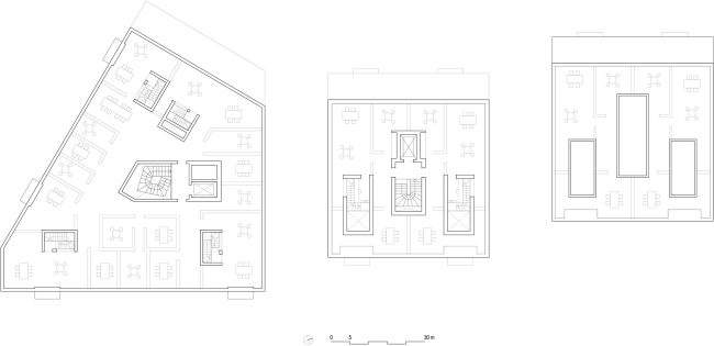
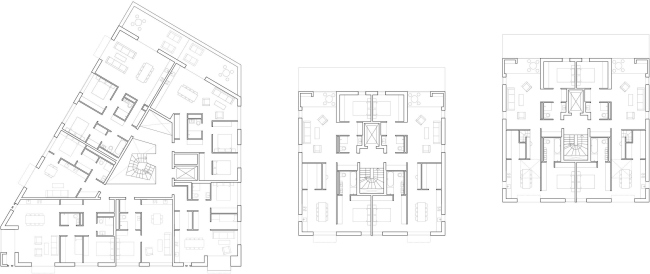
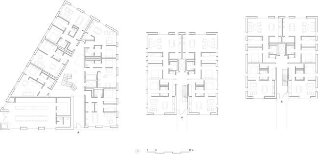
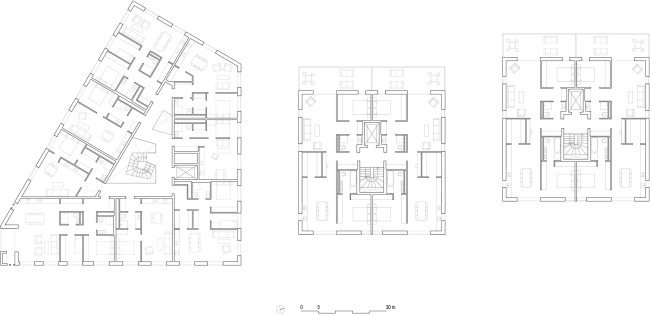
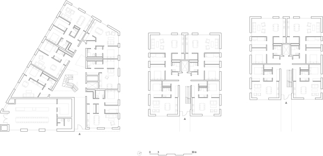
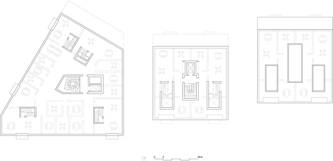
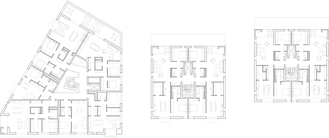
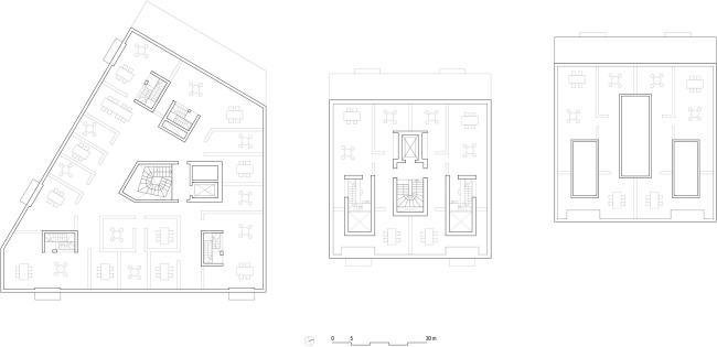
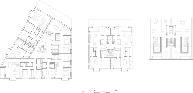
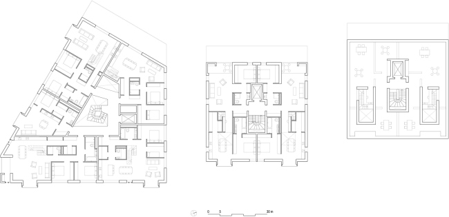
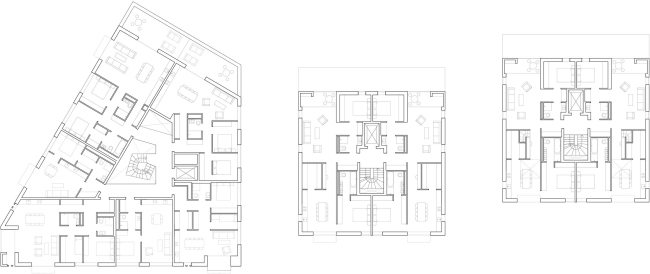
Поэтому для архитекторов было важным аккуратно вписать ее в окружение. Это комплекс из трех жилых корпусов – на углу двух улиц стоит шестиэтажный, самый большой, там на этаже по 6–8 квартир – разного размера и планировки. Два меньших здания, с одинаковым пятном застройки – высотой пять и четыре этажа, где чередуются две и четыре квартиры на ярусе. Всего в комплексе – 59 квартир, их варьирующиеся характеристики должны привлечь туда жильцов разного возраста и стиля жизни.
 
Жилой комплекс Pilestredet 77/79
Жилой комплекс Pilestredet 77/79
Фото © Ivar Kvaal

Фасады покрыты нейтральным светлым кирпичом, который хорошо сочетается с листвой парка и неплохо выглядит в долгих сумерках, что важно для Осло.
 
Жилой комплекс Pilestredet 77/79
Жилой комплекс Pilestredet 77/79
Фото © Ivar Kvaal

В вестибюлях и на лестничных клетках использованы архитектурный бетон и дерево, кровли превращены в террасы для отдыха жителей. В комплекс входят кафе-пекарня на первом этаже и подземный гараж.
Жилой комплекс Pilestredet 77/79
Жилой комплекс Pilestredet 77/79
Фото © Ivar Kvaal
Жилой комплекс Pilestredet 77/79 Фото © Ivar Kvaal
Жилой комплекс Pilestredet 77/79
Фото © Ivar Kvaal
Жилой комплекс Pilestredet 77/79 Фото © Ivar Kvaal
Жилой комплекс Pilestredet 77/79
Фото © Ivar Kvaal
Жилой комплекс Pilestredet 77/79 Фото © Ivar Kvaal
Жилой комплекс Pilestredet 77/79
Фото © Ivar Kvaal
Жилой комплекс Pilestredet 77/79 Фото © Ivar Kvaal
Жилой комплекс Pilestredet 77/79
Фото © Ivar Kvaal
Жилой комплекс Pilestredet 77/79
Жилой комплекс Pilestredet 77/79
Фото © Ivar Kvaal
Жилой комплекс Pilestredet 77/79
Жилой комплекс Pilestredet 77/79
Фото © Ivar Kvaal
Жилой комплекс Pilestredet 77/79 Фото © Ivar Kvaal
Жилой комплекс Pilestredet 77/79
Фото © Ivar Kvaal
Жилой комплекс Pilestredet 77/79 Фото © Ivar Kvaal
Жилой комплекс Pilestredet 77/79
Фото © Ivar Kvaal
Жилой комплекс Pilestredet 77/79 Фото © Ivar Kvaal
Жилой комплекс Pilestredet 77/79
Фото © Ivar Kvaal
Жилой комплекс Pilestredet 77/79 Фото © Ivar Kvaal
Жилой комплекс Pilestredet 77/79
Фото © Ivar Kvaal
Жилой комплекс Pilestredet 77/79
Жилой комплекс Pilestredet 77/79
Фото © Ivar Kvaal
Жилой комплекс Pilestredet 77/79
Жилой комплекс Pilestredet 77/79
Фото © Ivar Kvaal
Жилой комплекс Pilestredet 77/79
Жилой комплекс Pilestredet 77/79
Фото © Ivar Kvaal
Жилой комплекс Pilestredet 77/79
Жилой комплекс Pilestredet 77/79
Фото © Ivar Kvaal
Жилой комплекс Pilestredet 77/79
Жилой комплекс Pilestredet 77/79
Фото © Ivar Kvaal
Жилой комплекс Pilestredet 77/79
Жилой комплекс Pilestredet 77/79
Фото © Ivar Kvaal
Жилой комплекс Pilestredet 77/79
Жилой комплекс Pilestredet 77/79
Фото © Ivar Kvaal
Жилой комплекс Pilestredet 77/79
Жилой комплекс Pilestredet 77/79
Фото © Ivar Kvaal
Жилой комплекс Pilestredet 77/79
Жилой комплекс Pilestredet 77/79
© Reiulf Ramstad Arkitekter
Жилой комплекс Pilestredet 77/79
Жилой комплекс Pilestredet 77/79
© Reiulf Ramstad Arkitekter
Жилой комплекс Pilestredet 77/79
Жилой комплекс Pilestredet 77/79
© Reiulf Ramstad Arkitekter
Жилой комплекс Pilestredet 77/79
Жилой комплекс Pilestredet 77/79
© Reiulf Ramstad Arkitekter
Жилой комплекс Pilestredet 77/79
Жилой комплекс Pilestredet 77/79
© Reiulf Ramstad Arkitekter
Жилой комплекс Pilestredet 77/79
Жилой комплекс Pilestredet 77/79
© Reiulf Ramstad Arkitekter
Жилой комплекс Pilestredet 77/79
Жилой комплекс Pilestredet 77/79
© Reiulf Ramstad Arkitekter
Жилой комплекс Pilestredet 77/79
Жилой комплекс Pilestredet 77/79
© Reiulf Ramstad Arkitekter
Жилой комплекс Pilestredet 77/79
Жилой комплекс Pilestredet 77/79
© Reiulf Ramstad Arkitekter
Жилой комплекс Pilestredet 77/79
Жилой комплекс Pilestredet 77/79
© Reiulf Ramstad Arkitekter
Жилой комплекс Pilestredet 77/79
Жилой комплекс Pilestredet 77/79
© Reiulf Ramstad Arkitekter
Жилой комплекс Pilestredet 77/79
Жилой комплекс Pilestredet 77/79
© Reiulf Ramstad Arkitekter