Размещено на портале Архи.ру (www.archi.ru)

29.06.2020

Окна на Влтаву

Нина Фролова
Объект:
Реконструкция набережных Рашиновой и Горейши
Адрес:
Чехия, None, Прага.
Мастерская:
Petr Janda / brainwork

В ходе реконструкции пражских набережных по проекту бюро Petr Janda / brainwork у них усилилась связь с городом и возникли разнообразные социальные и культурные функции.


Набережные по реке Влтаве – важная часть пражского пейзажа, однако они существуют, по мысли бюро Petr Janda / brainwork, в «блестящей изоляции» от города – связаны они преимущественно с рекой. Отдельный вред их развитию нанесло катастрофическое наводнение 2002 года.
 

Реконструкция Рашиновой набережной
Реконструкция Рашиновой набережной
Фото © Jakub Skokan & Martin Tůma / BoysPlayNice
Реконструкция Рашиновой набережной
Реконструкция Рашиновой набережной
Фото © Jakub Skokan & Martin Tůma / BoysPlayNice
Реконструкция Рашиновой набережной
Реконструкция Рашиновой набережной
Фото © Jakub Skokan & Martin Tůma / BoysPlayNice

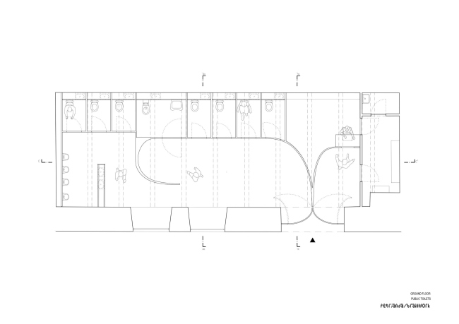
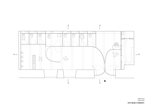
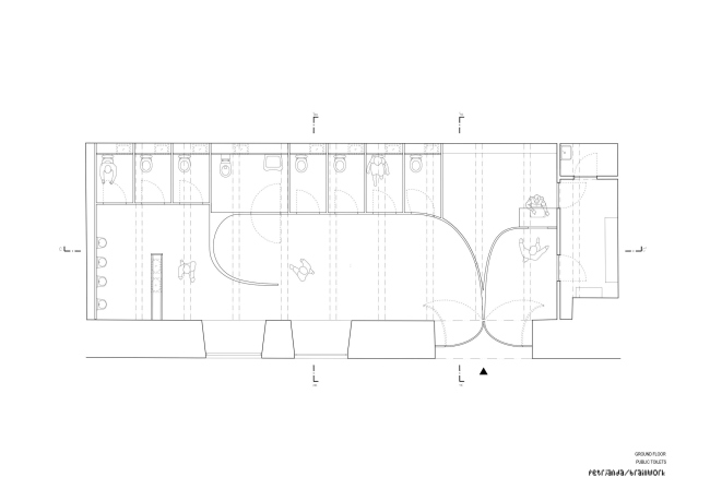
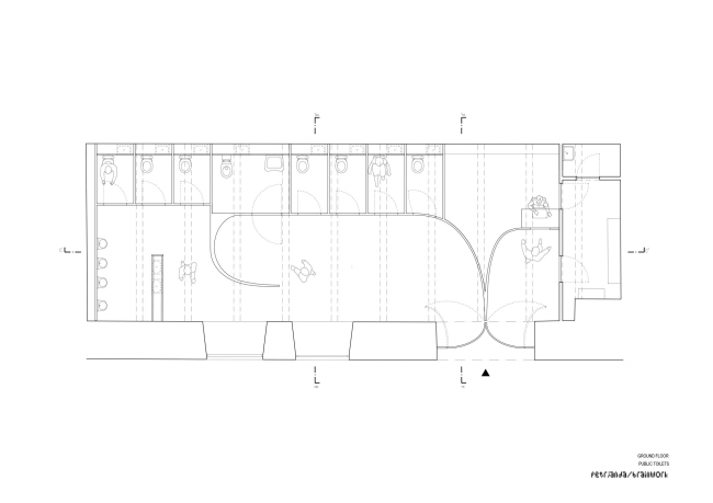
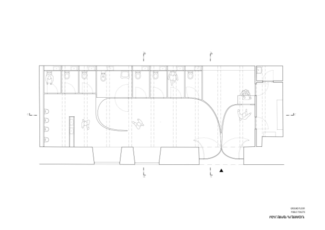
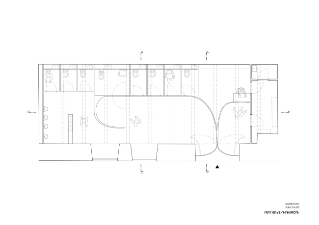
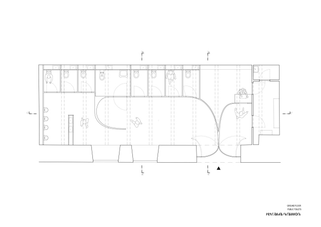
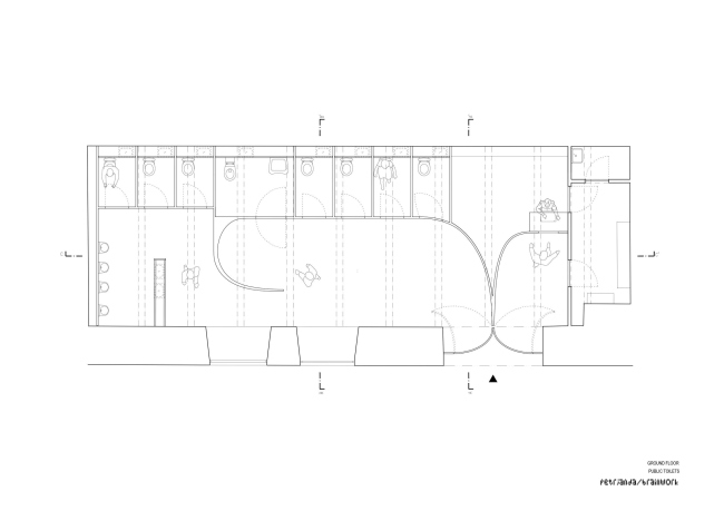
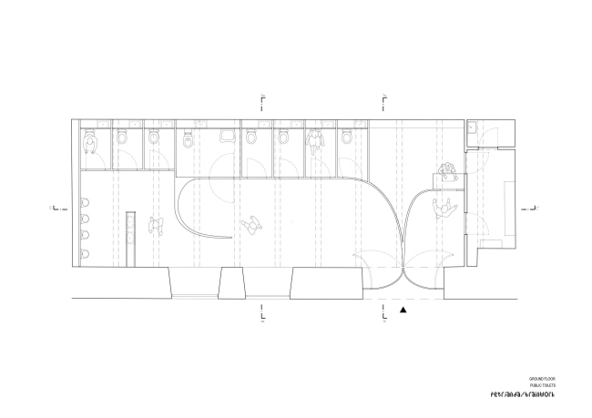
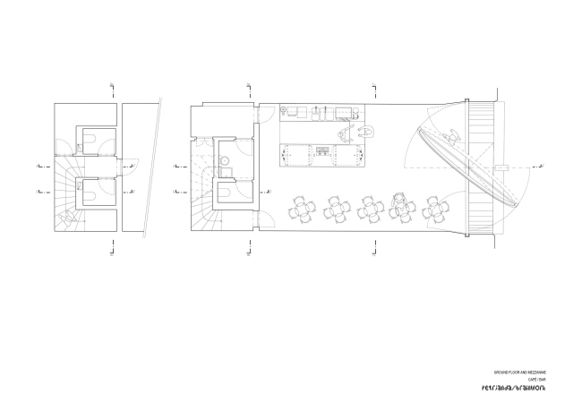
Контекст требовал взвешенного подхода, поэтому проект реконструкции набережных разрабатывался не как чисто архитектурный, а как социокультурный, причем первая его очередь заняла 10 лет, и строительство здесь было последним этапом. Это вложение в общественные пространства Праги, самое крупное с революции 1989 года (бюджет 6,5 млн евро), включает в себя превращение 20 погребов для хранения льда в объекты инфраструктуры. Там размещены бары, кафе, клубы, различные студии и мастерские, художественные галереи, филиал библиотеки, центр местного сообщества, туалеты.
 
Реконструкция Рашиновой набережной
Реконструкция Рашиновой набережной
Фото © Jakub Skokan & Martin Tůma / BoysPlayNice
Реконструкция Рашиновой набережной Фото © Jakub Skokan & Martin Tůma / BoysPlayNice
Реконструкция Рашиновой набережной
Фото © Jakub Skokan & Martin Tůma / BoysPlayNice
Реконструкция Рашиновой набережной Фото © Jakub Skokan & Martin Tůma / BoysPlayNice
Реконструкция Рашиновой набережной
Фото © Jakub Skokan & Martin Tůma / BoysPlayNice
Реконструкция Рашиновой набережной Фото © Jakub Skokan & Martin Tůma / BoysPlayNice
Реконструкция Рашиновой набережной
Фото © Jakub Skokan & Martin Tůma / BoysPlayNice
Реконструкция Рашиновой набережной Фото © Jakub Skokan & Martin Tůma / BoysPlayNice
Реконструкция Рашиновой набережной
Фото © Jakub Skokan & Martin Tůma / BoysPlayNice
Реконструкция Рашиновой набережной Фото © Jakub Skokan & Martin Tůma / BoysPlayNice
Реконструкция Рашиновой набережной
Фото © Jakub Skokan & Martin Tůma / BoysPlayNice
Реконструкция Рашиновой набережной Фото © Jakub Skokan & Martin Tůma / BoysPlayNice
Реконструкция Рашиновой набережной
Фото © Jakub Skokan & Martin Tůma / BoysPlayNice
Реконструкция Рашиновой набережной Фото © Jakub Skokan & Martin Tůma / BoysPlayNice
Реконструкция Рашиновой набережной
Фото © Jakub Skokan & Martin Tůma / BoysPlayNice
Реконструкция Рашиновой набережной
Реконструкция Рашиновой набережной
Фото © Jakub Skokan & Martin Tůma / BoysPlayNice

Учитывая разнообразие арендаторов, архитекторы выработали для интерьеров сдержанное оформление, которое может быть в той или иной степени «кастомизировано» силами новых хозяев. Проектировщики постарались найти баланс между единообразием «стиля» и разным имиджем расположившихся в погребах заведений. Архитекторы в данном случае выступают как «кураторы», помогающие арендаторам, но не стремящиеся к полному контролю.
 
Реконструкция Рашиновой набережной
Реконструкция Рашиновой набережной
Фото © Jakub Skokan & Martin Tůma / BoysPlayNice
Реконструкция Рашиновой набережной
Реконструкция Рашиновой набережной
Фото © Jakub Skokan & Martin Tůma / BoysPlayNice
Реконструкция Рашиновой набережной Фото © Jakub Skokan & Martin Tůma / BoysPlayNice
Реконструкция Рашиновой набережной
Фото © Jakub Skokan & Martin Tůma / BoysPlayNice
Реконструкция Рашиновой набережной Фото © Jakub Skokan & Martin Tůma / BoysPlayNice
Реконструкция Рашиновой набережной
Фото © Jakub Skokan & Martin Tůma / BoysPlayNice
Реконструкция Рашиновой набережной Фото © Jakub Skokan & Martin Tůma / BoysPlayNice
Реконструкция Рашиновой набережной
Фото © Jakub Skokan & Martin Tůma / BoysPlayNice
Реконструкция Рашиновой набережной Фото © Jakub Skokan & Martin Tůma / BoysPlayNice
Реконструкция Рашиновой набережной
Фото © Jakub Skokan & Martin Tůma / BoysPlayNice
Реконструкция Рашиновой набережной Фото © Jakub Skokan & Martin Tůma / BoysPlayNice
Реконструкция Рашиновой набережной
Фото © Jakub Skokan & Martin Tůma / BoysPlayNice

Шесть погребов на Рашиновой набережной теперь имеют элегантные, почти идеально круглые входы. Туда вставлены стеклянные двери-окна с поворотным механизмом с мотором, так как вес этих конструкций – несколько тонн. Использовано органическое стекло толщиной 7 см. Работать заведениям внутри удобней всего, когда окна открыты на 60%. Изначально входы были полуциркульными арками, но «ступени» снизу довели их форму до окружности. В «ступенях», напоминающих о разобранных в ходе реконструкции технических лестницах, скрыто вентиляционное оборудование, система защиты от наводнений и т.д.
 
Реконструкция Рашиновой набережной
Реконструкция Рашиновой набережной
Фото © Jakub Skokan & Martin Tůma / BoysPlayNice
Реконструкция Рашиновой набережной Фото © Jakub Skokan & Martin Tůma / BoysPlayNice
Реконструкция Рашиновой набережной
Фото © Jakub Skokan & Martin Tůma / BoysPlayNice
Реконструкция Рашиновой набережной Фото © Jakub Skokan & Martin Tůma / BoysPlayNice
Реконструкция Рашиновой набережной
Фото © Jakub Skokan & Martin Tůma / BoysPlayNice
Реконструкция Рашиновой набережной Фото © Jakub Skokan & Martin Tůma / BoysPlayNice
Реконструкция Рашиновой набережной
Фото © Jakub Skokan & Martin Tůma / BoysPlayNice
Реконструкция Рашиновой набережной Фото © Jakub Skokan & Martin Tůma / BoysPlayNice
Реконструкция Рашиновой набережной
Фото © Jakub Skokan & Martin Tůma / BoysPlayNice
Реконструкция Рашиновой набережной Фото © Jakub Skokan & Martin Tůma / BoysPlayNice
Реконструкция Рашиновой набережной
Фото © Jakub Skokan & Martin Tůma / BoysPlayNice
Реконструкция Рашиновой набережной Фото © Jakub Skokan & Martin Tůma / BoysPlayNice
Реконструкция Рашиновой набережной
Фото © Jakub Skokan & Martin Tůma / BoysPlayNice
Реконструкция Рашиновой набережной Фото © Jakub Skokan & Martin Tůma / BoysPlayNice
Реконструкция Рашиновой набережной
Фото © Jakub Skokan & Martin Tůma / BoysPlayNice
Реконструкция Рашиновой набережной Фото © Jakub Skokan & Martin Tůma / BoysPlayNice
Реконструкция Рашиновой набережной
Фото © Jakub Skokan & Martin Tůma / BoysPlayNice
Реконструкция Рашиновой набережной
Реконструкция Рашиновой набережной
Фото © Jakub Skokan & Martin Tůma / BoysPlayNice

Интерьер был полностью очищен от наполнения, включая межэтажные перегородки, и все поверхности покрыты торкретированным бетоном. Новые конструкции были выполнены из монолитного бетона (лестницы и т.д.), другие элементы – например, барные стойки – из темной стали.
 
Реконструкция набережной Горейши
Реконструкция набережной Горейши
Фото © Jakub Skokan & Martin Tůma / BoysPlayNice
Реконструкция набережной Горейши
Реконструкция набережной Горейши
Фото © Jakub Skokan & Martin Tůma / BoysPlayNice
Реконструкция набережной Горейши
Реконструкция набережной Горейши
Фото © Jakub Skokan & Martin Tůma / BoysPlayNice

Напротив Рашиновой расположена набережная Горейши. Ее 14 погребов теперь закрыты криволинейными стальными «воротами».
 
Реконструкция набережной Горейши
Реконструкция набережной Горейши
Фото © Jakub Skokan & Martin Tůma / BoysPlayNice
Реконструкция набережной Горейши
Реконструкция набережной Горейши
Фото © Jakub Skokan & Martin Tůma / BoysPlayNice
Реконструкция набережной Горейши
Реконструкция набережной Горейши
Фото © Jakub Skokan & Martin Tůma / BoysPlayNice

Все погреба рассчитаны на функционирование с открытыми дверьми, чтобы притягивать горожан и туристов на набережные. Для того, чтобы поддерживать внутри комфортную температуру, применены теплые полы, система кондиционирования с рекуперацией тепла, инфракрасные обогреватели. Все оборудование, включая розетки, держатели для развески произведений (при использовании погреба как галереи) и т.д. тщательно замаскировано.
 
Реконструкция набережной Горейши
Реконструкция набережной Горейши
Фото © Jakub Skokan & Martin Tůma / BoysPlayNice
Реконструкция набережной Горейши
Реконструкция набережной Горейши
Фото © Jakub Skokan & Martin Tůma / BoysPlayNice
Реконструкция набережной Горейши
Реконструкция набережной Горейши
Фото © Jakub Skokan & Martin Tůma / BoysPlayNice

20 погребов – это первая очередь проекта. В будущем будут реконструированы погреба на Дворжаковой набережной, расставлена уличная мебель, включая питьевые фонтанчики и подземные урны, размещены отдельно стоящие туалеты, уличные светильники. На воде расположатся бассейн, продолжающий пражскую традицию речных бань, и даже круизный терминал, а также плавучие туалеты. Вместе с тем, пришвартованных судов станет меньше, и предпочтение будет отдано низким плавсредствам, которые не будут загораживать виды на Влтаву и город.

 
Реконструкция набережной Горейши Фото © Jakub Skokan & Martin Tůma / BoysPlayNice
Реконструкция набережной Горейши
Фото © Jakub Skokan & Martin Tůma / BoysPlayNice
Реконструкция набережной Горейши Фото © Jakub Skokan & Martin Tůma / BoysPlayNice
Реконструкция набережной Горейши
Фото © Jakub Skokan & Martin Tůma / BoysPlayNice
Реконструкция набережной Горейши Фото © Jakub Skokan & Martin Tůma / BoysPlayNice
Реконструкция набережной Горейши
Фото © Jakub Skokan & Martin Tůma / BoysPlayNice
Реконструкция набережной Горейши Фото © Jakub Skokan & Martin Tůma / BoysPlayNice
Реконструкция набережной Горейши
Фото © Jakub Skokan & Martin Tůma / BoysPlayNice
Реконструкция набережной Горейши Фото © Jakub Skokan & Martin Tůma / BoysPlayNice
Реконструкция набережной Горейши
Фото © Jakub Skokan & Martin Tůma / BoysPlayNice
Реконструкция набережной Горейши Фото © Jakub Skokan & Martin Tůma / BoysPlayNice
Реконструкция набережной Горейши
Фото © Jakub Skokan & Martin Tůma / BoysPlayNice
Реконструкция набережной Горейши Фото © Jakub Skokan & Martin Tůma / BoysPlayNice
Реконструкция набережной Горейши
Фото © Jakub Skokan & Martin Tůma / BoysPlayNice
Реконструкция набережной Горейши Фото © Jakub Skokan & Martin Tůma / BoysPlayNice
Реконструкция набережной Горейши
Фото © Jakub Skokan & Martin Tůma / BoysPlayNice
Реконструкция набережной Горейши Фото © Jakub Skokan & Martin Tůma / BoysPlayNice
Реконструкция набережной Горейши
Фото © Jakub Skokan & Martin Tůma / BoysPlayNice
Реконструкция набережной Горейши Фото © Jakub Skokan & Martin Tůma / BoysPlayNice
Реконструкция набережной Горейши
Фото © Jakub Skokan & Martin Tůma / BoysPlayNice
Реконструкция набережной Горейши Фото © Jakub Skokan & Martin Tůma / BoysPlayNice
Реконструкция набережной Горейши
Фото © Jakub Skokan & Martin Tůma / BoysPlayNice
Реконструкция набережной Горейши Фото © Jakub Skokan & Martin Tůma / BoysPlayNice
Реконструкция набережной Горейши
Фото © Jakub Skokan & Martin Tůma / BoysPlayNice
Реконструкция Рашиновой набережной
Реконструкция Рашиновой набережной
© Petr Janda / brainwork
Реконструкция Рашиновой набережной
Реконструкция Рашиновой набережной
© Petr Janda / brainwork
Реконструкция Рашиновой набережной
Реконструкция Рашиновой набережной
© Petr Janda / brainwork
Реконструкция Рашиновой набережной
Реконструкция Рашиновой набережной
© Petr Janda / brainwork
Реконструкция Рашиновой набережной
Реконструкция Рашиновой набережной
© Petr Janda / brainwork
Реконструкция Рашиновой набережной
Реконструкция Рашиновой набережной
© Petr Janda / brainwork
Реконструкция Рашиновой набережной
Реконструкция Рашиновой набережной
© Petr Janda / brainwork
Реконструкция Рашиновой набережной
Реконструкция Рашиновой набережной
© Petr Janda / brainwork
Реконструкция Рашиновой набережной
Реконструкция Рашиновой набережной
© Petr Janda / brainwork
Реконструкция Рашиновой набережной
Реконструкция Рашиновой набережной
© Petr Janda / brainwork
Реконструкция Рашиновой набережной
Реконструкция Рашиновой набережной
© Petr Janda / brainwork
Реконструкция Рашиновой набережной
Реконструкция Рашиновой набережной
© Petr Janda / brainwork
Реконструкция Рашиновой набережной
Реконструкция Рашиновой набережной
© Petr Janda / brainwork
Реконструкция набережной Горейши
Реконструкция набережной Горейши
© Petr Janda / brainwork
Реконструкция набережной Горейши
Реконструкция набережной Горейши
© Petr Janda / brainwork
Реконструкция набережной Горейши
Реконструкция набережной Горейши
© Petr Janda / brainwork
Реконструкция набережной Горейши
Реконструкция набережной Горейши
© Petr Janda / brainwork
Реконструкция набережной Горейши
Реконструкция набережной Горейши
© Petr Janda / brainwork
Реконструкция набережной Горейши
Реконструкция набережной Горейши
© Petr Janda / brainwork
Реконструкция набережной Горейши
Реконструкция набережной Горейши
© Petr Janda / brainwork
Реконструкция набережной Горейши
Реконструкция набережной Горейши
© Petr Janda / brainwork
Реконструкция набережной Горейши
Реконструкция набережной Горейши
© Petr Janda / brainwork
Реконструкция набережной Горейши
Реконструкция набережной Горейши
© Petr Janda / brainwork
Реконструкция набережной Горейши
Реконструкция набережной Горейши
© Petr Janda / brainwork
Реконструкция набережной Горейши
Реконструкция набережной Горейши
© Petr Janda / brainwork