Размещено на портале Архи.ру (www.archi.ru)

15.06.2020

Пожарный цвет

Нина Фролова
Объект:
Пожарная часть Вилрейк
Адрес:
Бельгия, None, Антверпен.
Мастерская:
Happel Cornelisse Verhoeven

Пожарная часть в Антверпене по проекту бюро Happel Cornelisse Verhoeven фасадами из красного глазурованного кирпича сразу сообщает прохожему о своей важной функции.

Роттердамскому бюро Happel Cornelisse Verhoeven интересна концепция «говорящей архитектуры» Леду и Булле, которую они воплощают в своих очень разных проектах. Пожарная часть на южной окраине Антверпена дала для этого особенно много возможностей. Она стоит на углу оживленной магистрали, вдали от исторической застройки. Поэтому авторы могли позволить себе энергичный жест: ярко-красное здание с небольшой башенкой сразу дает понять, что это пожарная часть – хотя есть и заметная вывеска, необходимая по бельгийским СНиПам.
 

Пожарная часть Вилрейк
Пожарная часть Вилрейк
Фото © Karin Borghouts

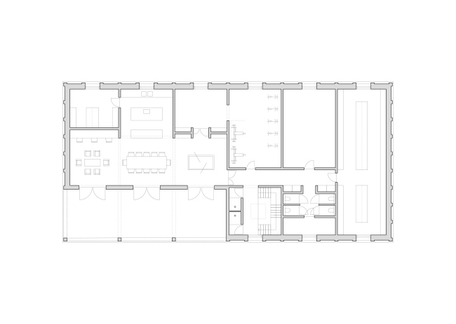
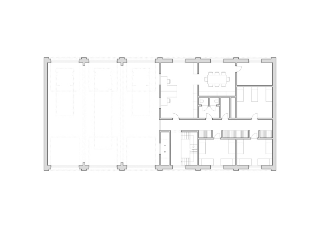
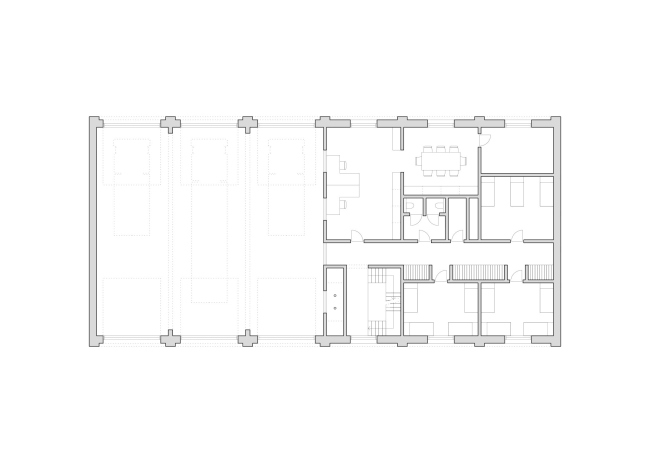
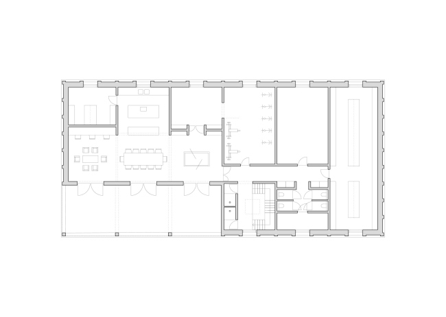
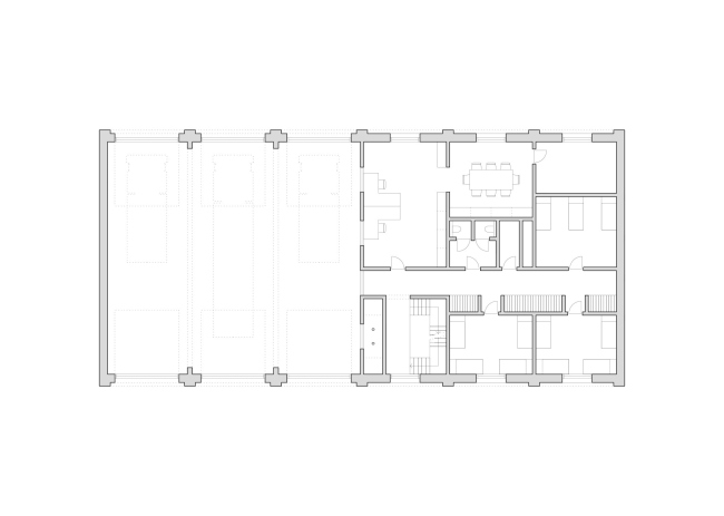
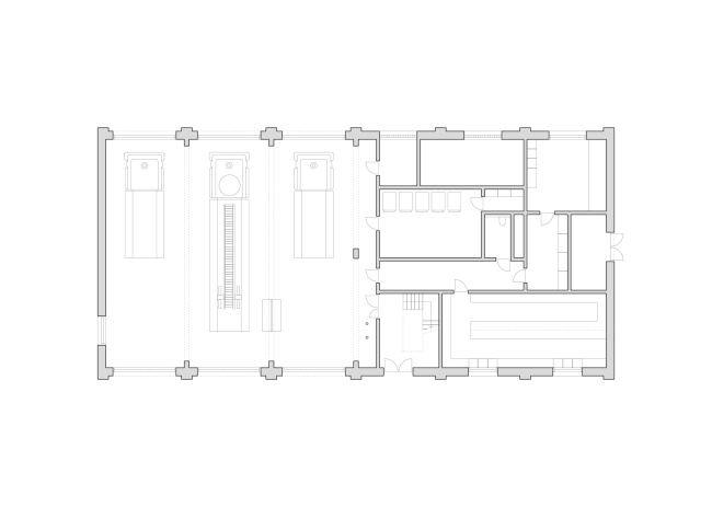
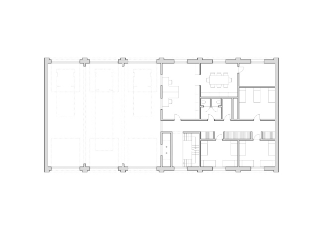
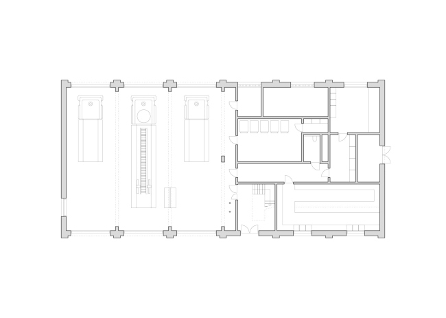
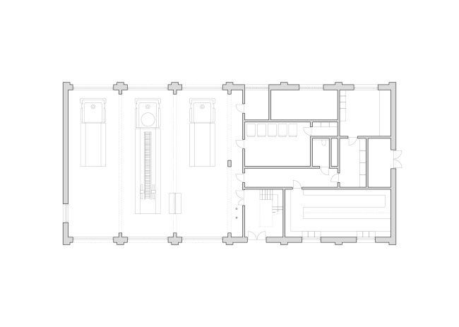
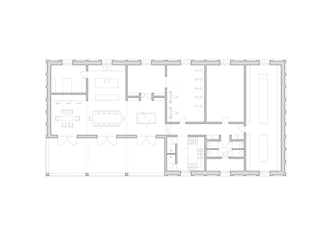
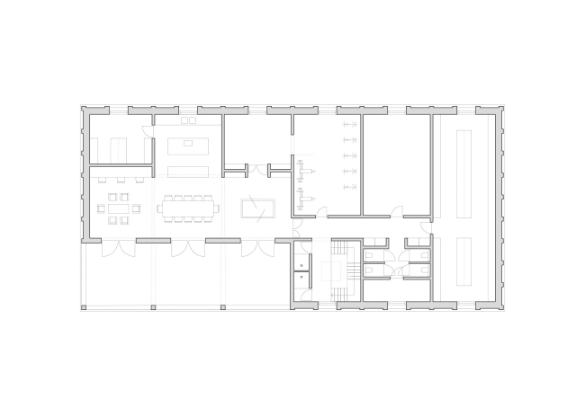
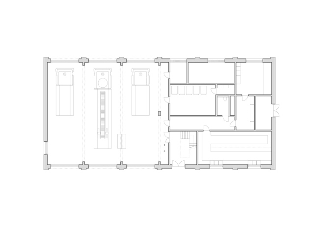
Здание вытянуто вдоль дороги. По его главному фасаду ясна структура постройки: гараж/депо занимает первый, двусветный уровень, выше находятся жилые и офисные пространства, в башенке – технические помещения. Каждый уровень сдвинут на 10 см от красной линии по сравнению с нижним.
 
Пожарная часть Вилрейк
Пожарная часть Вилрейк
Фото © Karin Borghouts

За фасадом из кладки – глазурованный кирпич с контрастным белым раствором – не заметить разницу в основном материале: гараж, пространство для машин – бетонный, верхняя, «человеческая» часть – из поперечно-клееной древесины (CLT). Дерево призвано сделать интерьер теплым – в первую очередь, психологически. В части служат 56 пожарных, в смене – восемь человек. В спальне 15 кроватей, но матрас у каждого сотрудника – свой. Предусмотрена и терраса для отдыха: со стороны более тихого заднего фасада.
 
Пожарная часть Вилрейк
Пожарная часть Вилрейк
Фото © Karin Borghouts

Цвет для фасада архитекторы впервые увидели в Лондоне – это была одна из старых кирпичных стен. А затем такой кирпич в двух форматах изготовили специально для пожарной части на одном из голландских заводов.
 
Пожарная часть Вилрейк Фото © Karin Borghouts
Пожарная часть Вилрейк
Фото © Karin Borghouts
Пожарная часть Вилрейк Фото © Karin Borghouts
Пожарная часть Вилрейк
Фото © Karin Borghouts
Пожарная часть Вилрейк Фото © Karin Borghouts
Пожарная часть Вилрейк
Фото © Karin Borghouts

Среди экологических компонентов проекта – солнечные коллектор (бойлер) и батареи, тепловой насос, системы сбора и вторичного использования воды – дождевой и для пожаротушения.
Пожарная часть Вилрейк
Пожарная часть Вилрейк
Фото © Karin Borghouts
Пожарная часть Вилрейк
Пожарная часть Вилрейк
Фото © Karin Borghouts
Пожарная часть Вилрейк
Пожарная часть Вилрейк
Фото © Karin Borghouts
Пожарная часть Вилрейк Фото © Karin Borghouts
Пожарная часть Вилрейк
Фото © Karin Borghouts
Пожарная часть Вилрейк Фото © Karin Borghouts
Пожарная часть Вилрейк
Фото © Karin Borghouts
Пожарная часть Вилрейк Фото © Karin Borghouts
Пожарная часть Вилрейк
Фото © Karin Borghouts
Пожарная часть Вилрейк
Пожарная часть Вилрейк
Фото © Karin Borghouts
Пожарная часть Вилрейк
Пожарная часть Вилрейк
Фото © Karin Borghouts
Пожарная часть Вилрейк
Пожарная часть Вилрейк
Фото © Karin Borghouts
Пожарная часть Вилрейк
Пожарная часть Вилрейк
Фото © Karin Borghouts
Пожарная часть Вилрейк
Пожарная часть Вилрейк
Фото © Karin Borghouts
Пожарная часть Вилрейк
Пожарная часть Вилрейк
Фото © Karin Borghouts
Пожарная часть Вилрейк
Пожарная часть Вилрейк
Фото © Karin Borghouts
Пожарная часть Вилрейк
Пожарная часть Вилрейк
Фото © Karin Borghouts
Пожарная часть Вилрейк
Пожарная часть Вилрейк
Фото © Karin Borghouts
Пожарная часть Вилрейк
Пожарная часть Вилрейк
Фото © Karin Borghouts
Пожарная часть Вилрейк
Пожарная часть Вилрейк
Фото © Karin Borghouts
Пожарная часть Вилрейк
Пожарная часть Вилрейк
Фото © Karin Borghouts
Пожарная часть Вилрейк
Пожарная часть Вилрейк
© Happel Cornelisse Verhoeven
Пожарная часть Вилрейк
Пожарная часть Вилрейк
© Happel Cornelisse Verhoeven
Пожарная часть Вилрейк
Пожарная часть Вилрейк
© Happel Cornelisse Verhoeven
Пожарная часть Вилрейк
Пожарная часть Вилрейк
© Happel Cornelisse Verhoeven
Пожарная часть Вилрейк
Пожарная часть Вилрейк
© Happel Cornelisse Verhoeven
Пожарная часть Вилрейк
Пожарная часть Вилрейк
© Happel Cornelisse Verhoeven
Пожарная часть Вилрейк
Пожарная часть Вилрейк
© Happel Cornelisse Verhoeven