Ðàçìåùåíî íà ïîðòàëå Àðõè.ðó (www.archi.ru)

04.06.2020

Ìåòðî êàê èñòî÷íèê ýíåðãèè

Íèíà Ôðîëîâà
Îáúåêò:
Ýíåðãåòè÷åñêèé öåíòð Bunhill 2
Àäðåñ:
Âåëèêîáðèòàíèÿ, None, Ëîíäîí.
Ìàñòåðñêàÿ:
Cullinan Studio

 Ëîíäîíå çàðàáîòàëà ïåðâàÿ ÒÝÖ, êîòîðàÿ èñïîëüçóåò «ïîòåðÿííîå òåïëî» ìåòðîïîëèòåíà: äëÿ îòîïëåíèÿ æèëûõ äîìîâ è íà÷àëüíîé øêîëû. Àâòîðû àðõèòåêòóðíîãî ïðîåêòà – Cullinan Studio.

Èíèöèàòîðîì ïðîåêòà âûñòóïèë îêðóã Èñëèíãòîí, êîòîðûé óæå â 2012 ââåë â ñòðîé «çåëåíóþ» ñèñòåìó öåíòðàëüíîãî îòîïëåíèÿ äëÿ ðàéîíà Áàíõèëë (âûñîêîýôôåêòèâíàÿ ãàçîâàÿ ÒÝÖ) íà 850 êâàðòèð è äâà äîñóãîâûõ öåíòðà. Ýòî áûë Bunhill 1, à â ýòîì ãîäó çàðàáîòàë Bunhill 2, èñïîëüçóþùèé òåïëî Ñåâåðíîé ëèíèè ìåòðî: ìîòîðîâ è òîðìîçîâ ïîåçäîâ, â ìåíüøåé ñòåïåíè – ñòàíöèîííîãî îáîðóäîâàíèÿ è ïàññàæèðîâ.
 

Ýíåðãåòè÷åñêèé öåíòð Bunhill 2
Ýíåðãåòè÷åñêèé öåíòð Bunhill 2
Ôîòî © Paul Raftery

Bunhill 2 ñ ïîìîùüþ 1,5 êèëîìåòðîâ íîâûõ òðóá îõâàòûâàåò 550 êâàðòèð è íà÷àëüíóþ øêîëó Ìîðëàíä. Èõ ñ Bunhill 1 îáùóþ ìîùíîñòü ìîæíî â áóäóùåì äîâåñòè äî 2200 êâàðòèð, ÷òî êðàéíå âàæíî äëÿ Ëîíäîíà, ãäå äàëåêî íå âñå æèëüå ïîäêëþ÷åíî ê öåíòðàëüíîìó îòîïëåíèþ, à ôèíàíñîâàÿ ðàçíèöà ìåæäó òàêèì òåïëîì è èíäèâèäóàëüíûìè «äîìîâûìè» ñèñòåìàìè äëÿ ïîòðåáèòåëÿ ñîñòàâëÿåò 1:2 – äàæå íå ñ÷èòàÿ ýêîëîãè÷åñêîé âûãîäû îò ñîâðåìåííûõ, áîëåå ýôôåêòèâíûõ ñåòåé. Êðîìå òîãî, «çåëåíîå» öåíòðàëüíîå îòîïëåíèå îò Bunhill 2 äåøåâëå îáû÷íîãî íà 10%.
 
Ýíåðãåòè÷åñêèé öåíòð Bunhill 2
Ýíåðãåòè÷åñêèé öåíòð Bunhill 2
Ôîòî © Paul Raftery

Àðõèòåêòîðîâ Cullinan Studio ñîâåò îêðóãà Èñëèíãòîí ïðèãëàñèë ê ñîòðóäíè÷åñòâó áëàãîäàðÿ èõ ïðîåêòàì ýíåðãåòè÷åñêèõ öåíòðîâ äëÿ óíèâåðñèòåòîâ â Ñåíò-Ýíäðþñå è Óîðèê â Êîâåíòðè. Ó÷àñòîê áûë êðàéíå ñëîæíûì è çàïóùåííûì, ïðè ýòîì î÷åíü çàìåòíûì, íà «ìûñó» ó ïåðåêðåñòêà øåñòè óëèö, ó ïîäíîæèÿ ìíîãîýòàæíîãî æèëîãî äîìà. Èìåííî òàì íàõîäèëàñü âåíòèëÿöèîííàÿ øàõòà ìåòðî, èçíà÷àëüíî – øàõòà ëèôòà çàêðûòîé ñ 1922 è ïî÷òè ïîëíîñòüþ äåìîíòèðîâàííîé ñòàíöèè Ñèòè-ðîóä. Íåîáõîäèìî áûëî ó÷åñòü âñå ïîäçåìíûå ïóñòîòû, äîñòóï äëÿ îáñëóæèâàíèÿ îáîðóäîâàíèÿ, áëèçîñòü æèëüÿ.
 
Ýíåðãåòè÷åñêèé öåíòð Bunhill 2
Ýíåðãåòè÷åñêèé öåíòð Bunhill 2
Ôîòî © Paul Raftery

Èñòî÷íèêîì âäîõíîâåíèÿ ñòàëè áðèòàíñêèå èíôðàñòðóêòóðíûå ïðîåêòû XIX–XX âåêîâ, âïëîòü äî êðàñíîé òåëåôîííîé áóäêè Äæàéëñà Ãèëáåðòà Ñêîòòà – ïðîäóìàííûå, óòèëèòàðíûå, íî âñåãäà èíòåðåñíûå.
 
Ýíåðãåòè÷åñêèé öåíòð Bunhill 2
Ýíåðãåòè÷åñêèé öåíòð Bunhill 2
Ôîòî © Paul Raftery

Êîìïàêòíûé îáúåì Bunhill 2 íà óðîâíå ÷åëîâå÷åñêîãî ðîñòà ïîêðûò ÷åðíûìè ãëàçóðîâàííûì êèðïè÷îì è ýìàëèðîâàííûìè ñòàëüíûìè ïàíåëÿìè: íà íèõ ñëîæíî íàíåñòè ãðàôôèòè, ïîöàðàïàòü, ðàçáèòü, à åùå îíè òèïè÷íû äëÿ ñòàíöèé ëîíäîíñêîãî ìåòðî. Âûøå íà÷èíàþòñÿ òåìíî-êðàñíûå îðíàìåíòàëüíûå ïåðôîðèðîâàííûå ïàíåëè. Öâåò íàïîìèíàåò î õàðàêòåðíîé ïëèòêå öâåòà áû÷üåé êðîâè â ìåòðî, à òàêæå î ìåäíûõ ïåðåãîííûõ àïïàðàòàõ: íåäàëåêî â ïðîøëîì ïðîèçâîäèëè äæèí.
 
Ýíåðãåòè÷åñêèé öåíòð Bunhill 2
Ýíåðãåòè÷åñêèé öåíòð Bunhill 2
Ôîòî © Paul Raftery

Ïëîòíîñòü ïåðôîðàöèè êîëåáëåòñÿ â çàâèñèìîñòè îò íóæä ïîìåùåííîãî çà êîíêðåòíîé ôàñàäíîé ïàíåëüþ îáîðóäîâàíèÿ, à îðíàìåíò â âèäå ïåðåïëåòåííûõ ëèíèé íàïîìèíàåò î ïîòîêàõ ýíåðãèè, òðóáàõ îòîïëåíèÿ, òîííåëÿõ ìåòðî.
 
Ýíåðãåòè÷åñêèé öåíòð Bunhill 2
Ýíåðãåòè÷åñêèé öåíòð Bunhill 2
Ôîòî © Paul Raftery

Íà ÷åðíîì öîêîëå çäàíèÿ óñòàíîâëåíû ðàáîòû øîòëàíäñêîãî õóäîæíèêà Òîáè Ïàòåðñîíà: ýòè ïëèòû èç ëèòîãî àëþìèíèÿ èíòåðïðåòèðóþò «êâàðòèðîãðàôèþ» æèëîãî ìàññèâà Êèíã-ñêâåð, êîòîðûé òåïåðü îòàïëèâàåò Bunhill 2.
 
Ýíåðãåòè÷åñêèé öåíòð Bunhill 2
Ýíåðãåòè÷åñêèé öåíòð Bunhill 2
Ôîòî © Paul Raftery

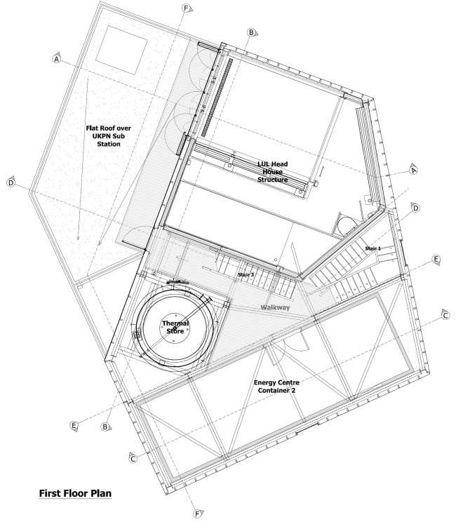
Bunhill 2 ðàáîòàåò ñëåäóþùèì îáðàçîì: äâóõìåòðîâûé âåíòèëÿòîð ãîíèò òóäà èç øàõòû ìåòðî âîçäóõ òåìïåðàòóðîé 18–28˚C. Ñ ïîìîùüþ òåïëîâûõ íàñîñîâ åãî òåìïåðàòóðó äîâîäÿò äî ïîðÿäêà 80˚C: îí íàãðåâàåò âîäó, êîòîðàÿ è ïîñòóïàåò ïîòðåáèòåëþ. Â òåïëûå ìåñÿöû âåíòèëÿòîð, íàîáîðîò, îõëàæäàåò òîííåëè ìåòðî âîçäóõîì ñíàðóæè – òàêîå ðåøåíèå ðåàëèçîâàíî çäåñü âïåðâûå â ìèðå.
 
Ýíåðãåòè÷åñêèé öåíòð Bunhill 2
Ýíåðãåòè÷åñêèé öåíòð Bunhill 2
Ôîòî © Paul Raftery

Ýëåêòðè÷åñòâî èç Bunhill 2 ïîñòóïàåò â ñåòü ìåòðîïîëèòåíà è â ñîñåäíþþ æèëóþ áàøíþ, ãäå èñïîëüçóåòñÿ äëÿ ðàáîòû ëèôòà è îñâåùåíèÿ ïîìåùåíèé îáùåãî ïîëüçîâàíèÿ.
Ýíåðãåòè÷åñêèé öåíòð Bunhill 2
Ýíåðãåòè÷åñêèé öåíòð Bunhill 2
Ôîòî © Paul Raftery
Ýíåðãåòè÷åñêèé öåíòð Bunhill 2
Ýíåðãåòè÷åñêèé öåíòð Bunhill 2
Ôîòî © Paul Raftery
Ýíåðãåòè÷åñêèé öåíòð Bunhill 2
Ýíåðãåòè÷åñêèé öåíòð Bunhill 2
Ôîòî © Paul Raftery
Ýíåðãåòè÷åñêèé öåíòð Bunhill 2
Ýíåðãåòè÷åñêèé öåíòð Bunhill 2
Ôîòî © Paul Raftery
Ýíåðãåòè÷åñêèé öåíòð Bunhill 2
Ýíåðãåòè÷åñêèé öåíòð Bunhill 2
Ôîòî © Paul Raftery
Ýíåðãåòè÷åñêèé öåíòð Bunhill 2
Ýíåðãåòè÷åñêèé öåíòð Bunhill 2
Ôîòî © Paul Raftery
Ýíåðãåòè÷åñêèé öåíòð Bunhill 2
Ýíåðãåòè÷åñêèé öåíòð Bunhill 2
Ôîòî © Paul Raftery
Ýíåðãåòè÷åñêèé öåíòð Bunhill 2
Ýíåðãåòè÷åñêèé öåíòð Bunhill 2
© Cullinan Studio
Ýíåðãåòè÷åñêèé öåíòð Bunhill 2
Ýíåðãåòè÷åñêèé öåíòð Bunhill 2
© Cullinan Studio
Ýíåðãåòè÷åñêèé öåíòð Bunhill 2
Ýíåðãåòè÷åñêèé öåíòð Bunhill 2
© McGurk Chartered Architects
Ýíåðãåòè÷åñêèé öåíòð Bunhill 2
Ýíåðãåòè÷åñêèé öåíòð Bunhill 2
© McGurk Chartered Architects
Ýíåðãåòè÷åñêèé öåíòð Bunhill 2
Ýíåðãåòè÷åñêèé öåíòð Bunhill 2
© McGurk Chartered Architects