Размещено на портале Архи.ру (www.archi.ru)

03.06.2020

Городская «обманка»

Нина Фролова
Объект:
Музей современного искусства Хельги де Альвеар
Адрес:
Испания, None, Касерес.
Мастерская:
Emilio Tuñón Arquitectos

Новый корпус музея Хельги де Альвеар по проекту Emilio Tuñón Arquitectos в Касересе на западе Испании кажется неприступным, но на самом деле пешеходы могут сократить путь через его сад и террасу.

Галерист, куратор и коллекционер Хельга де Альвеар уже много десятилетий – крупнейшая фигура Испании в сфере современного искусства. Ее галерея расположена в Мадриде, но собственную коллекцию современного искусства она передала области Эстремадура на границе с Португалией: на средства фонда Альвеар и местных властей в городе Касерес создан музей и культурный центр.
 

Музей современного искусства Хельги де Альвеар
Музей современного искусства Хельги де Альвеар
Фото © Amores Pictures / Alberto Amores & Pancho Matienzo

Он разместился в Каса-Гранде, буквально – большом доме в формах историзма (1910), интерьер которого под новую функцию приспособили в середине 2000-х архитекторы Mansilla + Tuñón. С тех пор бюро распалось, поэтому строительство нового корпуса и расширение Каса-Гранде было поручено одному Эмилио Туньону.
 
Музей современного искусства Хельги де Альвеар
Музей современного искусства Хельги де Альвеар
Фото © Amores Pictures / Alberto Amores & Pancho Matienzo

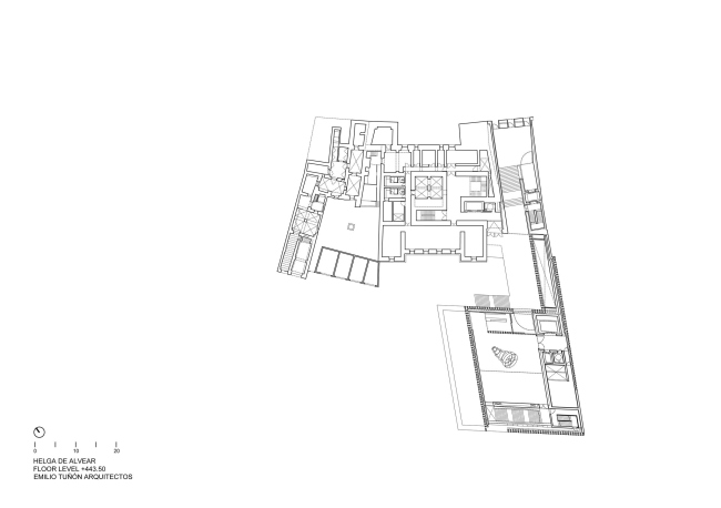
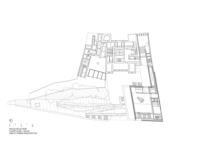
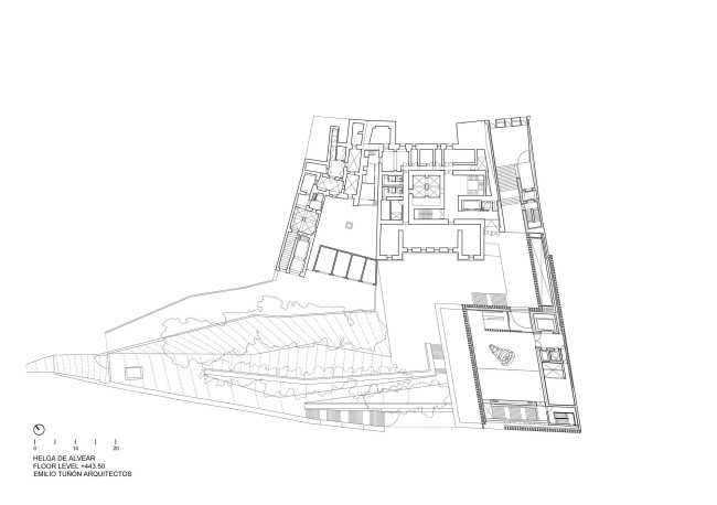
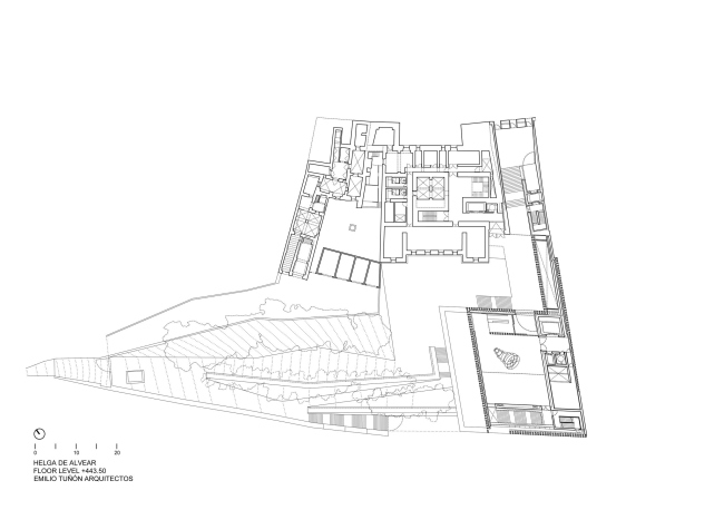
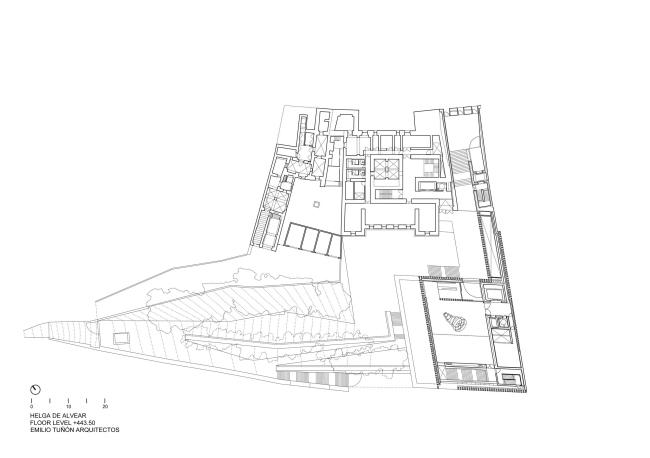
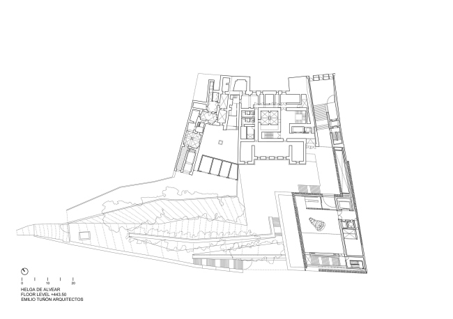
Вторая часть проекта стала возможной благодаря покупке участка, обращенного на параллельный улице Писарро, куда выходит Каса-Гранде, проезд Камино Льяно. То есть фонду-музею теперь принадлежит полоса поперек квартала в важном месте – по линии исчезнувших городских стен, на границе старого города и одновременно – природной долины. Значение этого участка выразилось в урбанистическом измерении проекта.
 
Музей современного искусства Хельги де Альвеар
Музей современного искусства Хельги де Альвеар
Фото © Amores Pictures / Alberto Amores & Pancho Matienzo

Новые строения – отдельный корпус и пристройка к Каса-Гранде – узкой лентой вытянулись вдоль границы участка от улицы до улицы, чтобы обеспечить его проницаемость: пешеходы могут теперь идти в том числе сквозь них. Также их путь пролегает по лестнице через внушительную подпорную стенку (она была отреставрирована), через террасу нового корпуса и старые сады. По словам Туньона и его коллег, так возникает «обманка»: комплекс кажется неприступным, но при ближайшем рассмотрении эта часть города стала более удобной и открытой.
 
Музей современного искусства Хельги де Альвеар
Музей современного искусства Хельги де Альвеар
Фото © Amores Pictures / Alberto Amores & Pancho Matienzo

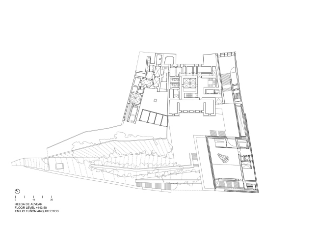
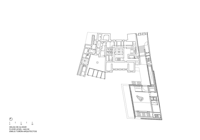
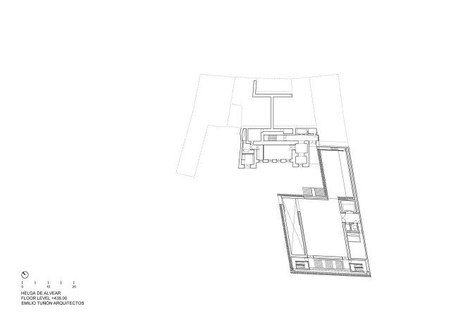
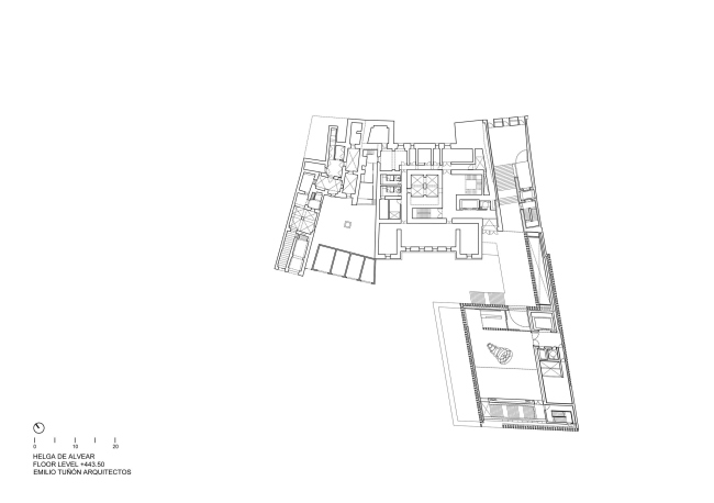
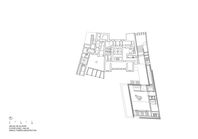
Сам корпус интересен тем, что в него попадают на верхнем этаже, с упомянутой террасы, и постепенно спускаются по бетонным залам с деревянными акцентами до уровня улицы Камино-Льяно. Все пространства, несмотря на проработанные детали, тонкое обращение с материалами, выверенные пропорции – еще и очень функциональны и рассчитаны на самые разные выставки, как очень больших произведений, так и в необычных жанрах и форматах.
 
Музей современного искусства Хельги де Альвеар
Музей современного искусства Хельги де Альвеар
Фото © Amores Pictures / Alberto Amores & Pancho Matienzo

Снаружи здание сразу заметно среди рыжих каменных стен Касереса своими «колоннадами» тонких опор из белого бетона, создающими так важную в жарком и сухом климате тень.
Музей современного искусства Хельги де Альвеар
Музей современного искусства Хельги де Альвеар
Фото © Amores Pictures / Alberto Amores & Pancho Matienzo
Музей современного искусства Хельги де Альвеар
Музей современного искусства Хельги де Альвеар
Фото © Amores Pictures / Alberto Amores & Pancho Matienzo
Музей современного искусства Хельги де Альвеар
Музей современного искусства Хельги де Альвеар
Фото © Amores Pictures / Alberto Amores & Pancho Matienzo
Музей современного искусства Хельги де Альвеар
Музей современного искусства Хельги де Альвеар
Фото © Amores Pictures / Alberto Amores & Pancho Matienzo
Музей современного искусства Хельги де Альвеар
Музей современного искусства Хельги де Альвеар
Фото © Amores Pictures / Alberto Amores & Pancho Matienzo
Музей современного искусства Хельги де Альвеар
Музей современного искусства Хельги де Альвеар
Фото © Amores Pictures / Alberto Amores & Pancho Matienzo
Музей современного искусства Хельги де Альвеар
Музей современного искусства Хельги де Альвеар
Фото © Amores Pictures / Alberto Amores & Pancho Matienzo
Музей современного искусства Хельги де Альвеар
Музей современного искусства Хельги де Альвеар
Фото © Amores Pictures / Alberto Amores & Pancho Matienzo
Музей современного искусства Хельги де Альвеар
Музей современного искусства Хельги де Альвеар
Фото © Amores Pictures / Alberto Amores & Pancho Matienzo
Музей современного искусства Хельги де Альвеар
Музей современного искусства Хельги де Альвеар
Фото © Amores Pictures / Alberto Amores & Pancho Matienzo
Музей современного искусства Хельги де Альвеар
Музей современного искусства Хельги де Альвеар
Фото © Amores Pictures / Alberto Amores & Pancho Matienzo
Музей современного искусства Хельги де Альвеар
Музей современного искусства Хельги де Альвеар
Фото © Amores Pictures / Alberto Amores & Pancho Matienzo
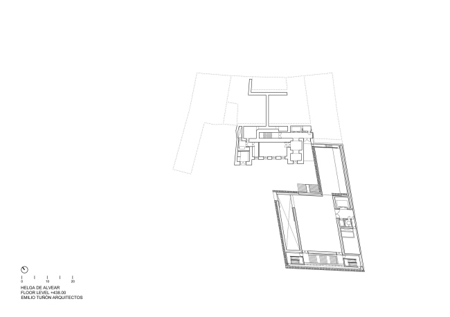
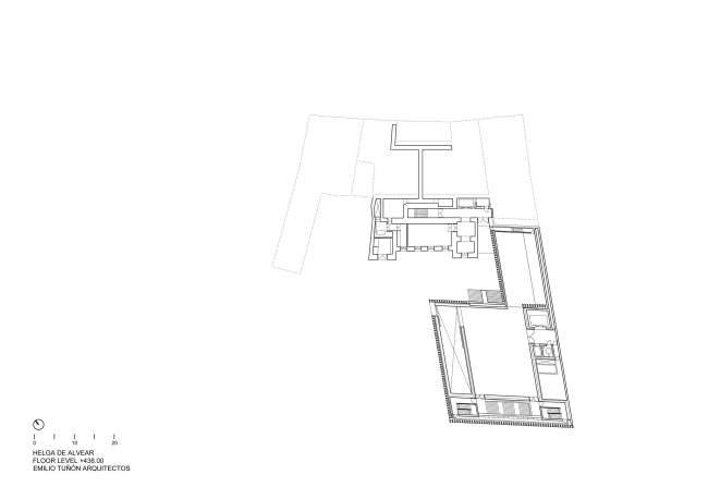
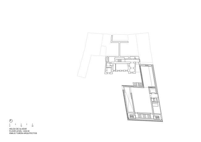
Музей современного искусства Хельги де Альвеар
Музей современного искусства Хельги де Альвеар
© Emilio Tuñón Arquitectos
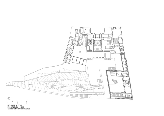
Музей современного искусства Хельги де Альвеар
Музей современного искусства Хельги де Альвеар
© Emilio Tuñón Arquitectos
Музей современного искусства Хельги де Альвеар
Музей современного искусства Хельги де Альвеар
© Emilio Tuñón Arquitectos
Музей современного искусства Хельги де Альвеар
Музей современного искусства Хельги де Альвеар
© Emilio Tuñón Arquitectos
Музей современного искусства Хельги де Альвеар
Музей современного искусства Хельги де Альвеар
© Emilio Tuñón Arquitectos
Музей современного искусства Хельги де Альвеар
Музей современного искусства Хельги де Альвеар
© Emilio Tuñón Arquitectos
Музей современного искусства Хельги де Альвеар
Музей современного искусства Хельги де Альвеар
© Emilio Tuñón Arquitectos
Музей современного искусства Хельги де Альвеар
Музей современного искусства Хельги де Альвеар
© Emilio Tuñón Arquitectos
Музей современного искусства Хельги де Альвеар
Музей современного искусства Хельги де Альвеар
© Emilio Tuñón Arquitectos