Размещено на портале Архи.ру (www.archi.ru)

28.05.2020

Зигзаг над полем

Нина Фролова
Объект:
Спортивный и общественный зал в Ле-Во
Адрес:
Швейцария, None, Ле-Во.
Мастерская:
Localarchitecture

Школьный спортзал, также играющий роль общественного центра для швейцарской деревни Ле-Во, спроектирован лозаннским бюро Localarchitecture.

Спортзал, также подходящий для представлений, собраний и других многолюдных мероприятий, согласован с окружением: его внешняя оболочка с зигзагообразной кровлей напоминает двускатную крышу школы и других построек Ле-Во, дерево происходит из соседних лесов, а «профнастил» типичен для местных ферм. Для большего сходства авторы даже добавили на кровлю выступ вроде трубы.
 

Спортивный и общественный зал в Ле-Во
Спортивный и общественный зал в Ле-Во
Фото © Matthieu Gafsou

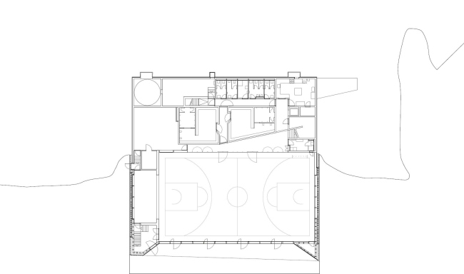
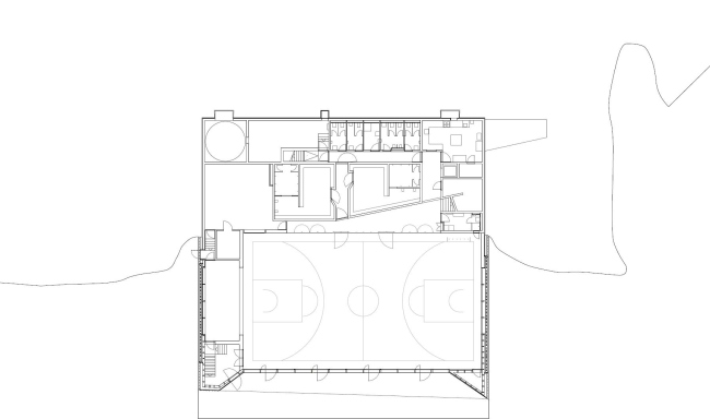
Северный фасад, с главным входом со стороны игрового поля, и южный – полностью остеклены. От солнца и от капризов погоды, характерных для гор Юра – у их подножия расположен Ле-Во – эти стороны здания защищают глубокие выносы кровли, но облик его формируют не они.
 
Спортивный и общественный зал в Ле-Во
Спортивный и общественный зал в Ле-Во
Фото © Matthieu Gafsou

Западный и восточный фасады получили характерное зигзагообразное завершение, где металлическая обшивка граничит с треугольными окнами за тонкой деревянной решеткой. Особенно эффектно это выглядит вечером, когда изнутри льется свет. Зато днем интерьер наполнен солнцем, подчеркивающим теплые обшитые деревом поверхности.
 
Спортивный и общественный зал в Ле-Во
Спортивный и общественный зал в Ле-Во
Фото © Matthieu Gafsou

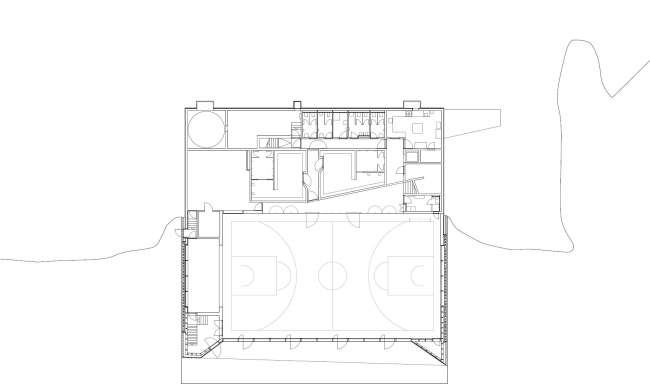
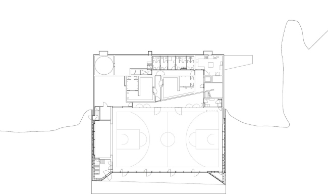
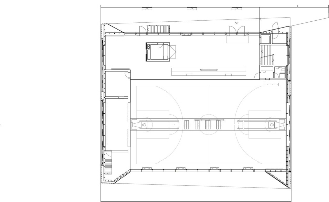
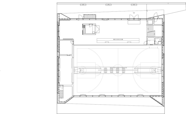
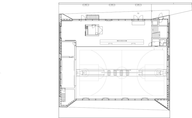
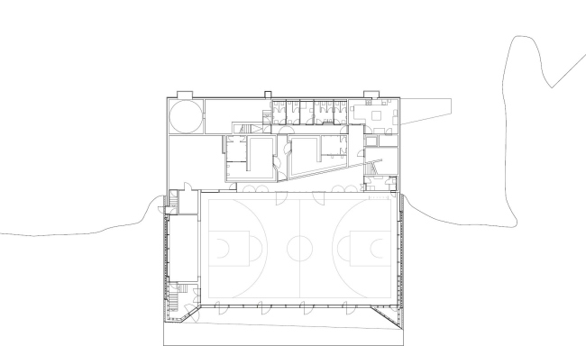
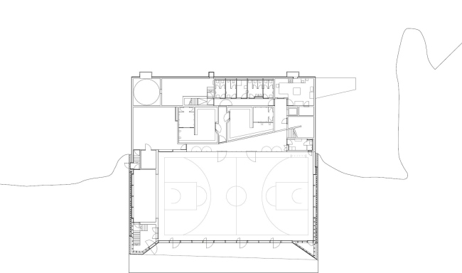
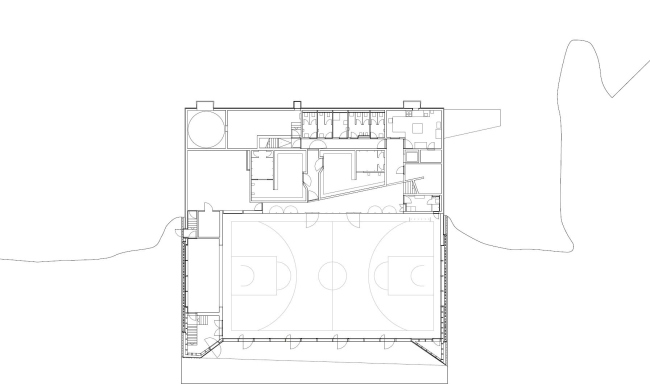
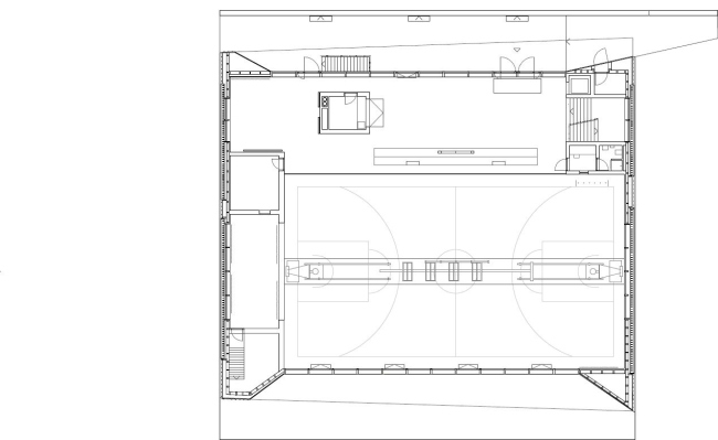
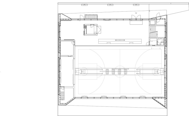
Западная и восточная «щипцовые» стены – несущие, на них опираются балки перекрытия, включая центральную, к которой прикреплены светильники, сдвижные баскетбольные корзины и прочий инвентарь, что освобождает от «беспорядка» потолок, покрытый сборными акустическими панелями в тон дереву.
 
Спортивный и общественный зал в Ле-Во
Спортивный и общественный зал в Ле-Во
Фото © Matthieu Gafsou

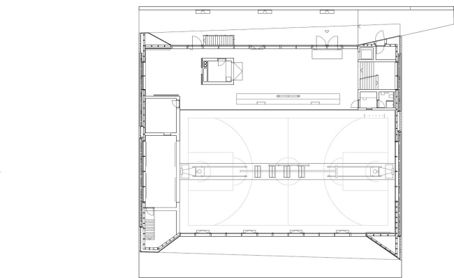
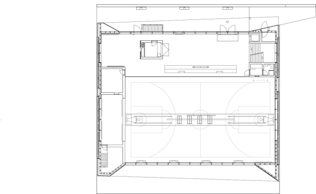
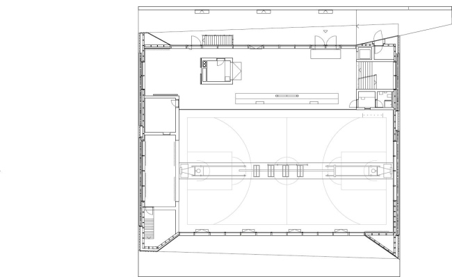
Перепад рельефа позволил «утопить» в нем подсобные помещения: раздевалки, котельную и т.д. Над ними помещен балкон, с которого можно наблюдать за соревнованиями или собранием; там же находится «сигнальная будка» – пункт управления акустической и осветительной системами, который также может служить баром.
 
Спортивный и общественный зал в Ле-Во
Спортивный и общественный зал в Ле-Во
Фото © Matthieu Gafsou

Сцена устроена в нише, задник за ней – одно из треугольных окон. Архитекторы предприняли немалые усилия, чтобы скрыть в стенах не только любые «инфраструктурные» детали, но и, к примеру, лестницу на балкон – для более ясного впечатления от пространства.
Спортивный и общественный зал в Ле-Во
Спортивный и общественный зал в Ле-Во
Фото © Matthieu Gafsou

Здание совсем новое, но уже «с биографией»: оно должно было открыться в 2016-м, но в тот год, уже почти готовое, полностью сгорело. Поэтому сейчас существует его «второе издание», которое архитекторы, как полагается, исправили и дополнили, доведя до возможного совершенства все детали.
Спортивный и общественный зал в Ле-Во
Спортивный и общественный зал в Ле-Во
Фото © Matthieu Gafsou
Спортивный и общественный зал в Ле-Во
Спортивный и общественный зал в Ле-Во
Фото © Matthieu Gafsou
Спортивный и общественный зал в Ле-Во
Спортивный и общественный зал в Ле-Во
Фото © Matthieu Gafsou
Спортивный и общественный зал в Ле-Во
Спортивный и общественный зал в Ле-Во
Фото © Matthieu Gafsou
Спортивный и общественный зал в Ле-Во
Спортивный и общественный зал в Ле-Во
Фото © Matthieu Gafsou
Спортивный и общественный зал в Ле-Во
Спортивный и общественный зал в Ле-Во
Фото © Matthieu Gafsou
Спортивный и общественный зал в Ле-Во
Спортивный и общественный зал в Ле-Во
Фото © Matthieu Gafsou
Спортивный и общественный зал в Ле-Во
Спортивный и общественный зал в Ле-Во
Фото © Matthieu Gafsou
Спортивный и общественный зал в Ле-Во
Спортивный и общественный зал в Ле-Во
© Localarchitecture
Спортивный и общественный зал в Ле-Во
Спортивный и общественный зал в Ле-Во
© Localarchitecture
Спортивный и общественный зал в Ле-Во
Спортивный и общественный зал в Ле-Во
© Localarchitecture
Спортивный и общественный зал в Ле-Во
Спортивный и общественный зал в Ле-Во
© Localarchitecture
Спортивный и общественный зал в Ле-Во
Спортивный и общественный зал в Ле-Во
© Localarchitecture
Спортивный и общественный зал в Ле-Во
Спортивный и общественный зал в Ле-Во
© Localarchitecture
Спортивный и общественный зал в Ле-Во
Спортивный и общественный зал в Ле-Во
© Localarchitecture