Размещено на портале Архи.ру (www.archi.ru)

21.05.2020

Крыша на вырост

Нина Фролова
Объект:
«1/3 дома»
Адрес:
Норвегия, None,
Мастерская:
Rever & Drage Architects

Хозяева смогут расширить свои «1/3 дома» по проекту бюро Rever & Drage на западе Норвегии, если их семья увеличится, а пока используют кровлю-навес как парковку, банкетный зал, мастерскую.

«1/3 дома» построен в Сунндале для молодой пары, у которой был ограниченный бюджет и разные потребности. Если мужу хотелось романтический и уютный домик, то для жены, охотницы на оленей, главным было пространство для хранения разнообразного инвентаря и разделки добычи.
 

«1/3 дома»
«1/3 дома»
Фото © Tom Auger

Архитекторы предложили выход: дом, где треть – «настоящее», утепленное жилище, но его крыша охватывает еще две трети. Ее поддерживают две диагональные балки из клееного бруса, образующие своего рода треугольные арки. То, что кровля уже возведена, позволит сэкономить деньги на возможной достройке, а «полуготовое» состояние дома уже сберегло средства владельцев.
 
«1/3 дома»
«1/3 дома»
Фото © Tom Auger

Внутри хозяйке дома можно хранить ружья и разделывать туши; также владельцы паркуют там машину, устраивают праздники на открытом воздухе, что-нибудь мастерят или чинят.
 
«1/3 дома»
«1/3 дома»
Фото © Tom Auger

Пока «1/3 дома» представляет собой контраст между обычной частью и экспериментальными двумя третями, причем его облик меняется от точки зрения: скажем, с подъездной дороги дом выглядит совсем обычно. А если владельцам захочется увеличить жилую площадь, постройка постепенно превратится в полное подобие соседских домов. То есть при перестройке она изменится от радикальной к традиционной, хотя обычно бывает иначе.
 
«1/3 дома»
«1/3 дома»
Фото © Tom Auger

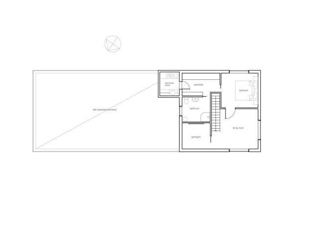
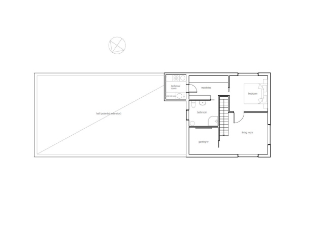
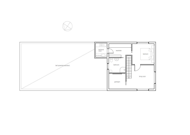
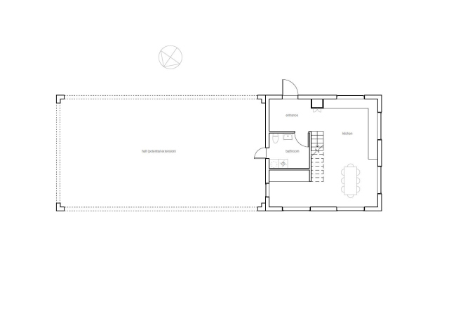
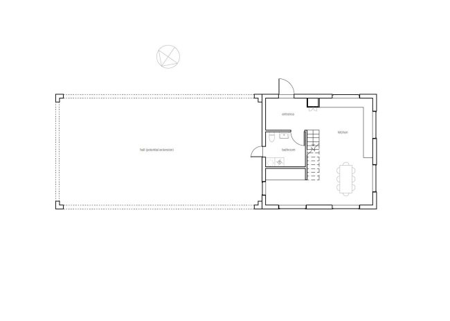
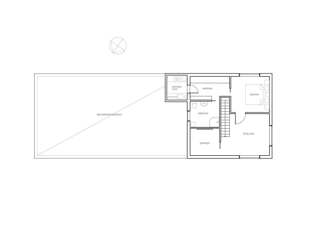
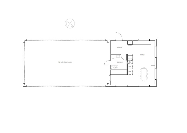
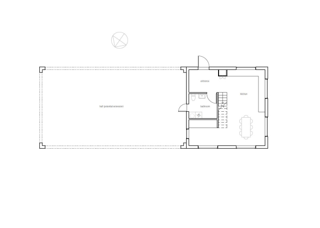
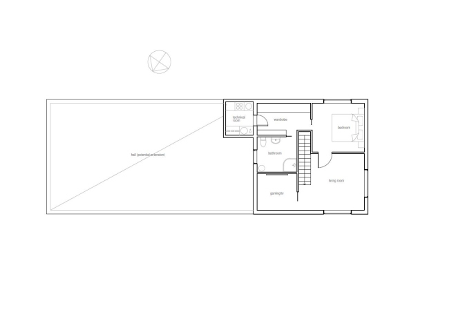
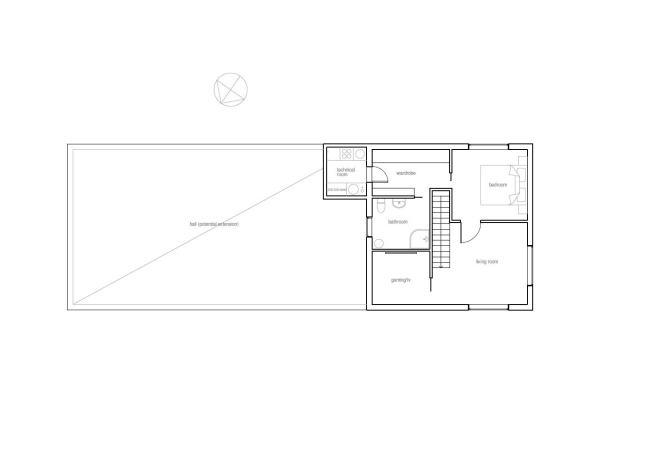
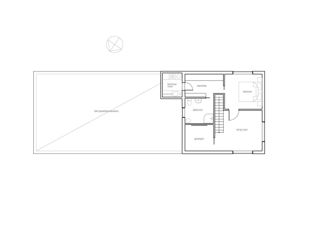
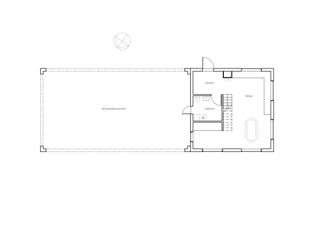
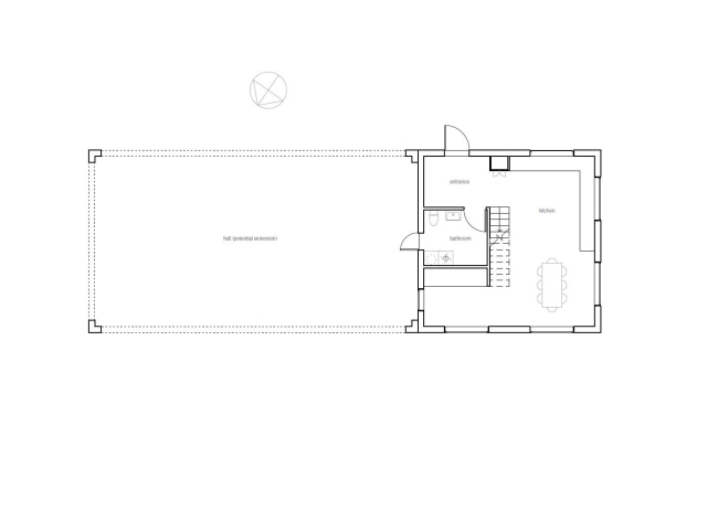
«Полуготовые» две трети охватывают участок в 100 м2, а утепленная часть дома занимает пятно застройки в 50 м2. Так как в ней два этажа, ее общая площадь составляет 100 м2. Вход обращен к дороге, задняя дверь ведет из прачечной, «теплого ядра» первого этажа, в пространство под кровлей. Второй ярус ядра занят ванной. Вокруг расположены прихожая, кухня и общая комната (внизу), кладовка, спальня, вторая общая комната и «телевизионный салон» (вверху).
«1/3 дома»
«1/3 дома»
Фото © Tom Auger
«1/3 дома»
«1/3 дома»
Фото © Tom Auger
«1/3 дома»
«1/3 дома»
Фото © Tom Auger
«1/3 дома»
«1/3 дома»
Фото © Tom Auger
«1/3 дома»
«1/3 дома»
Фото © Tom Auger
«1/3 дома»
«1/3 дома»
Фото © Tom Auger
«1/3 дома»
«1/3 дома»
Фото © Tom Auger
«1/3 дома»
«1/3 дома»
Фото © Tom Auger
«1/3 дома»
«1/3 дома»
Фото © Tom Auger
«1/3 дома»
«1/3 дома»
Фото © Tom Auger
«1/3 дома»
«1/3 дома»
Фото © Tom Auger
«1/3 дома»
«1/3 дома»
© Rever & Drage Architects
«1/3 дома»
«1/3 дома»
© Rever & Drage Architects
«1/3 дома»
«1/3 дома»
© Rever & Drage Architects
«1/3 дома»
«1/3 дома»
© Rever & Drage Architects
«1/3 дома»
«1/3 дома»
© Rever & Drage Architects
«1/3 дома»
«1/3 дома»
© Rever & Drage Architects