Размещено на портале Архи.ру (www.archi.ru)

20.05.2020

Бетон и пальмы

Нина Фролова
Объект:
Новый корпус фонда Nubuke
Адрес:
Гана, None, Аккра.
Мастерская:
nav_s baerbel mueller

Новый корпус фонда Nubuke в Аккре, столице Ганы, по проекту бюро nav_s baerbel mueller и Юргена Штромайера.

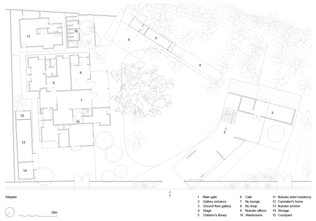
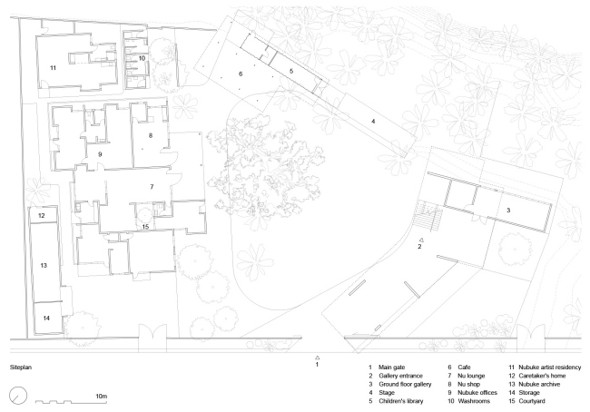
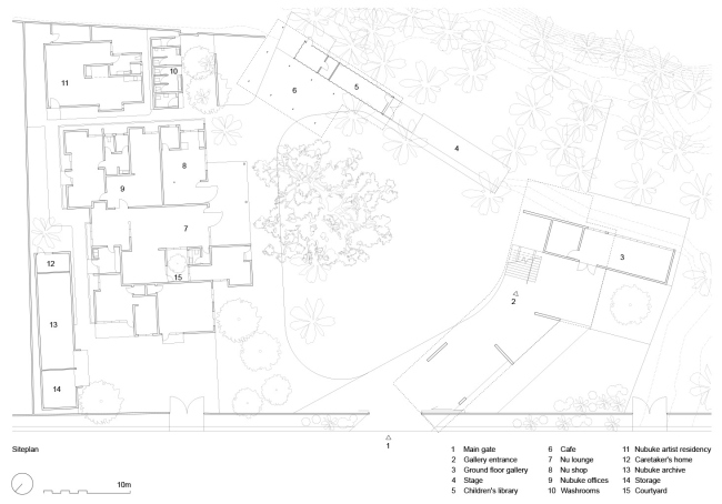
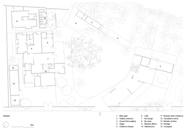
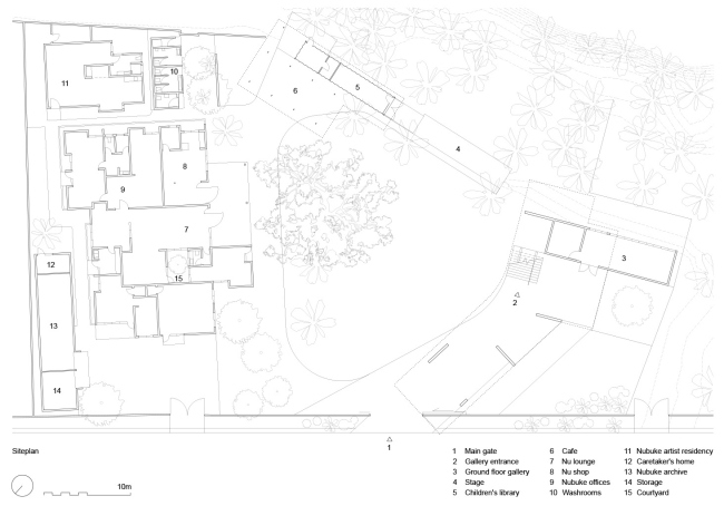
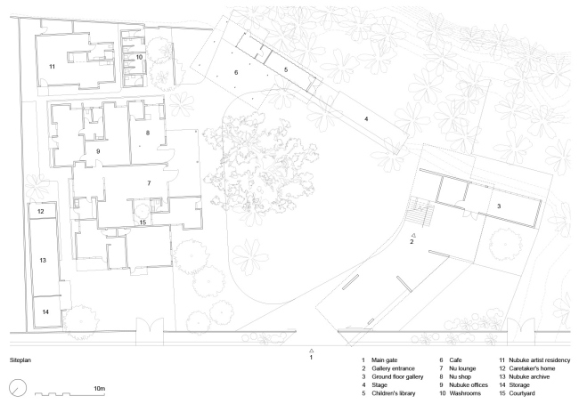
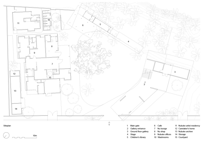
Фонд Nubuke, занимающийся культурными и просветительскими программами, расположен в пригороде ганской столицы Ист-Легоне. Еще недавно все его функции были сосредоточены в одном здании, так называемом бунгало. Но теперь по проекту работающих в Вене и Аккре архитекторов Бербель Мюллер и Юргена Штроймайера «база» фонда стала более удобной и связанной с окружением.
 

Новый корпус фонда Nubuke
Новый корпус фонда Nubuke
Фото © Julien Lanoo

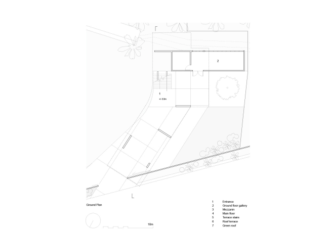
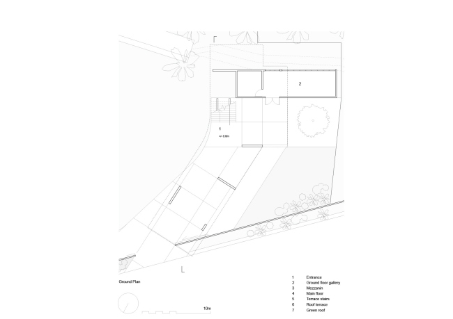
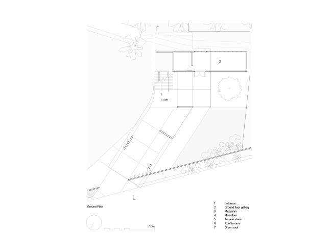
Имеющееся здание теперь расширили, центром его стал «лаундж», где мастера художественных ремесел, музыканты, художники могут работать вместе. Бунгало теперь тесней связано с садом, где появилась сцена для концертов и представлений. Но главное – новый выставочный корпус.
 
Новый корпус фонда Nubuke
Новый корпус фонда Nubuke
Фото © Julien Lanoo

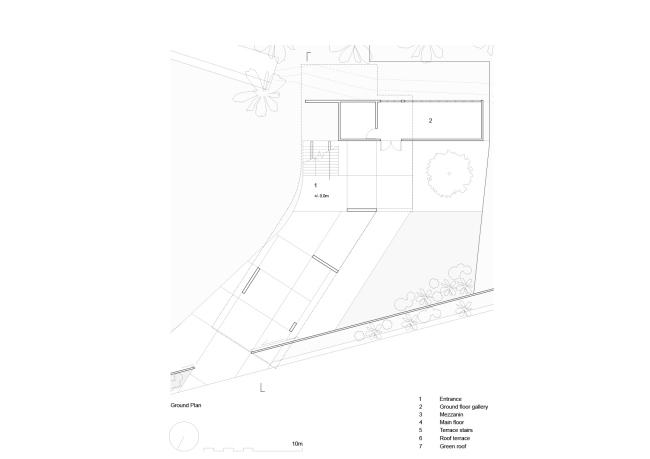
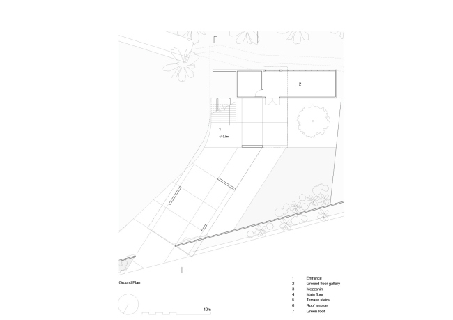
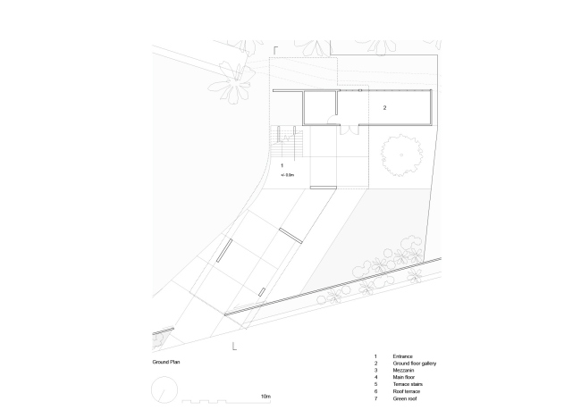
Это постройка из «грубого» бетона, который подчеркивает зелень пальм и большого дерева вида индийский миндаль. Снаружи сразу привлекает внимание консольный вынос, внутри – колебания высоты пола и потолка благодаря антресольным уровням. Серый тон бетона архитекторы намеренно оставили без изменений: цвета добавят яркие произведения искусства и наряды посетителей.
Новый корпус фонда Nubuke
Новый корпус фонда Nubuke
Фото © Julien Lanoo
Новый корпус фонда Nubuke
Новый корпус фонда Nubuke
Фото © Julien Lanoo
Новый корпус фонда Nubuke
Новый корпус фонда Nubuke
Фото © Julien Lanoo
Новый корпус фонда Nubuke
Новый корпус фонда Nubuke
Фото © Julien Lanoo
Новый корпус фонда Nubuke
Новый корпус фонда Nubuke
Фото © Julien Lanoo
Новый корпус фонда Nubuke
Новый корпус фонда Nubuke
© nav_s baerbel mueller + Juergen Strohmayer
Новый корпус фонда Nubuke
Новый корпус фонда Nubuke
© nav_s baerbel mueller + Juergen Strohmayer
Новый корпус фонда Nubuke
Новый корпус фонда Nubuke
© nav_s baerbel mueller + Juergen Strohmayer
Новый корпус фонда Nubuke
Новый корпус фонда Nubuke
© nav_s baerbel mueller + Juergen Strohmayer
Новый корпус фонда Nubuke
Новый корпус фонда Nubuke
© nav_s baerbel mueller + Juergen Strohmayer
Новый корпус фонда Nubuke
Новый корпус фонда Nubuke
© nav_s baerbel mueller + Juergen Strohmayer