Размещено на портале Архи.ру (www.archi.ru)

18.05.2020

Зеркало для неба

Нина Фролова
Объект:
Офисное здание cube berlin
Адрес:
Германия, None, Берлин.
Мастерская:
3XN

Офисное здание cube berlin по проекту бюро 3XN рядом с центральным берлинским вокзалом получило зеркальный фасад-аттракцион, позволивший одновременно устроить открытые террасы для отдыха сотрудников.

cube berlin появился, возможно, в самом спорном с градостроительной точки зрения месте «нового Берлина»: рядом с центральным вокзалом, на берегу Шпре. Здесь не слишком уютно и удобно, несмотря на новизну, есть проблемы в плане благоустройства и т.д.
 

Офисное здание cube berlin
Офисное здание cube berlin
Фото © Adam Mørk

Датские архитекторы, очевидно, отреагировали на эту среду зданием-интровертом, которое при этом вполне может постоять за себя. Стеклянные зеркальные фасады скрывают его интерьеры, в то же время их ломанные грани делают отражение неба и зданий вокруг чрезвычайно эффектным. Еще до открытия cube berlin стал популярным объектом обычных фотографий и селфи, а заказчик снял фильм, где в минуту уложились 24 часа из жизни этого здания. Меняющееся освещение, солнечные лучи и тяжелые тучи совершенно меняют облик постройки 3XN, наводя на мысль о мимикрии.




Офисное здание cube berlin
Офисное здание cube berlin
Фото © Adam Mørk
Офисное здание cube berlin
Офисное здание cube berlin
Фото © Adam Mørk

В то же время, кристаллические грани позволили сделать работу в здании, предназначенном под аренду, более комфортным: на разных этажах появились открытые террасы. Конечно, главная из них – на крыше, с панорамой центра Берлина, но туда еще надо добраться, а небольшие балконы – всегда рядом.
 
Офисное здание cube berlin
Офисное здание cube berlin
Фото © Adam Mørk

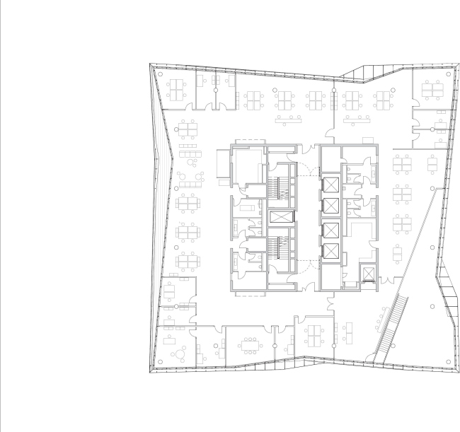
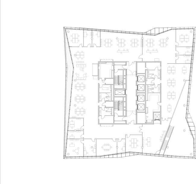
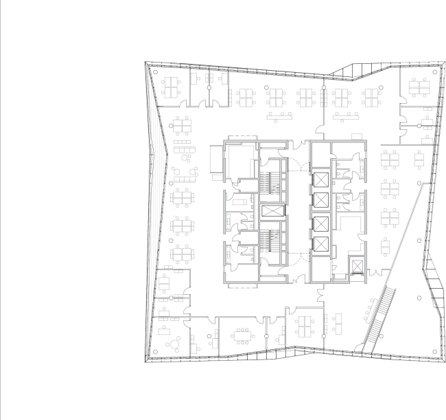
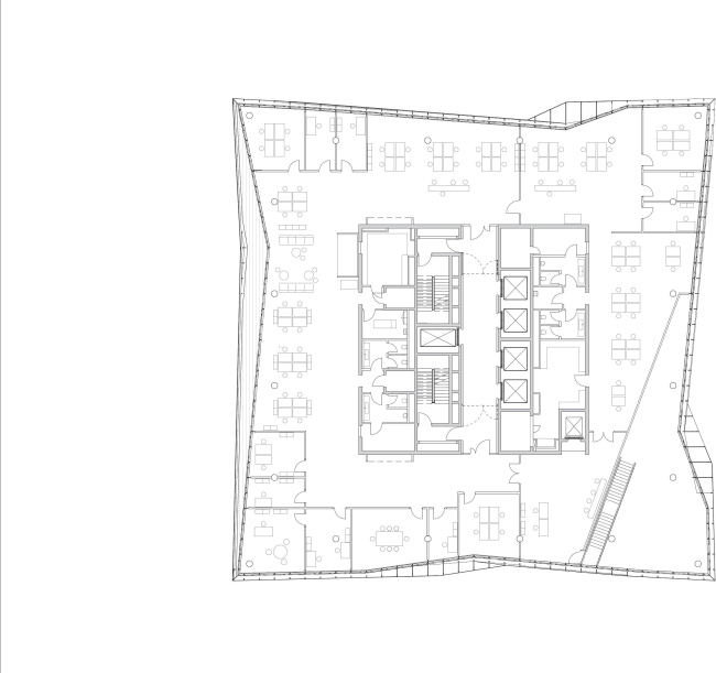
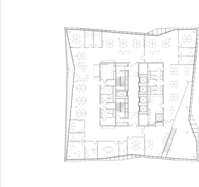
10 этажей с офисами свободного плана сочетаются с «продовольственным рынком» на первом уровне и с подземным гаражом. Надземная площадь составляет почти 20 000 м2. cube berlin – и правда куб, со стороной 42,5 м, хотя это не так очевидно благодаря его изломам.
 
Офисное здание cube berlin
Офисное здание cube berlin
Фото © Adam Mørk

Высокоэффективный двойной фасад с наружным солнцезащитным слоем позволяет хорошо изолировать здание, однако окна там открываются, что снижает необходимость в кондиционерах. «Умная» система управления постройкой экономит ресурсы и способна «учиться». С помощью специального приложения для смартфонов сотрудники могут управлять доступом в офис, температурой в помещении, потреблением энергии, бронировать переговорную или парковочное место.
Офисное здание cube berlin
Офисное здание cube berlin
Фото © Adam Mørk
Офисное здание cube berlin
Офисное здание cube berlin
Фото © Adam Mørk
Офисное здание cube berlin
Офисное здание cube berlin
Фото © Adam Mørk
Офисное здание cube berlin
Офисное здание cube berlin
Фото © Adam Mørk
Офисное здание cube berlin
Офисное здание cube berlin
Фото © Adam Mørk
Офисное здание cube berlin
Офисное здание cube berlin
Фото © Adam Mørk
Офисное здание cube berlin
Офисное здание cube berlin
Фото © Adam Mørk
Офисное здание cube berlin
Офисное здание cube berlin
Фото © Adam Mørk
Офисное здание cube berlin
Офисное здание cube berlin
Фото © Adam Mørk
Офисное здание cube berlin
Офисное здание cube berlin
Фото © Adam Mørk
Офисное здание cube berlin
Офисное здание cube berlin
Фото © Adam Mørk
Офисное здание cube berlin
Офисное здание cube berlin
Фото © Adam Mørk
Офисное здание cube berlin
Офисное здание cube berlin
Фото © Adam Mørk
Офисное здание cube berlin
Офисное здание cube berlin
Фото © Adam Mørk
Офисное здание cube berlin
Офисное здание cube berlin
Фото © Adam Mørk
Офисное здание cube berlin
Офисное здание cube berlin
Фото © Adam Mørk
Офисное здание cube berlin
Офисное здание cube berlin
Фото © Adam Mørk
Офисное здание cube berlin
Офисное здание cube berlin
© 3XN A/S
Офисное здание cube berlin
Офисное здание cube berlin
© 3XN A/S
Офисное здание cube berlin
Офисное здание cube berlin
© 3XN A/S
Офисное здание cube berlin
Офисное здание cube berlin
© 3XN A/S
Офисное здание cube berlin
Офисное здание cube berlin
© 3XN A/S
Офисное здание cube berlin
Офисное здание cube berlin
© 3XN A/S
Офисное здание cube berlin
Офисное здание cube berlin
© 3XN A/S
Офисное здание cube berlin
Офисное здание cube berlin
© 3XN A/S
Офисное здание cube berlin
Офисное здание cube berlin
© 3XN A/S
Офисное здание cube berlin
Офисное здание cube berlin
© 3XN A/S
Офисное здание cube berlin
Офисное здание cube berlin
© 3XN A/S
Офисное здание cube berlin
Офисное здание cube berlin
© 3XN A/S
Офисное здание cube berlin
Офисное здание cube berlin
© 3XN A/S