Размещено на портале Архи.ру (www.archi.ru)

06.05.2020

Пустота как драма

Нина Фролова
Объект:
Комплекс The Opus
Адрес:
ОАЭ, None, Дубай.
Мастерская:
Zaha Hadid Architects

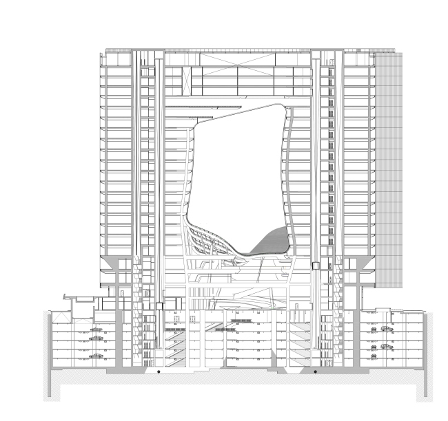
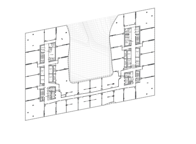
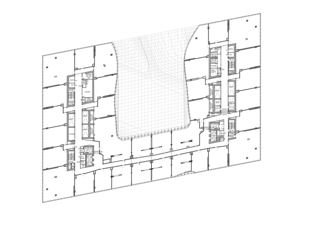
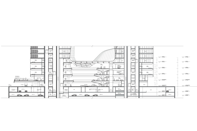
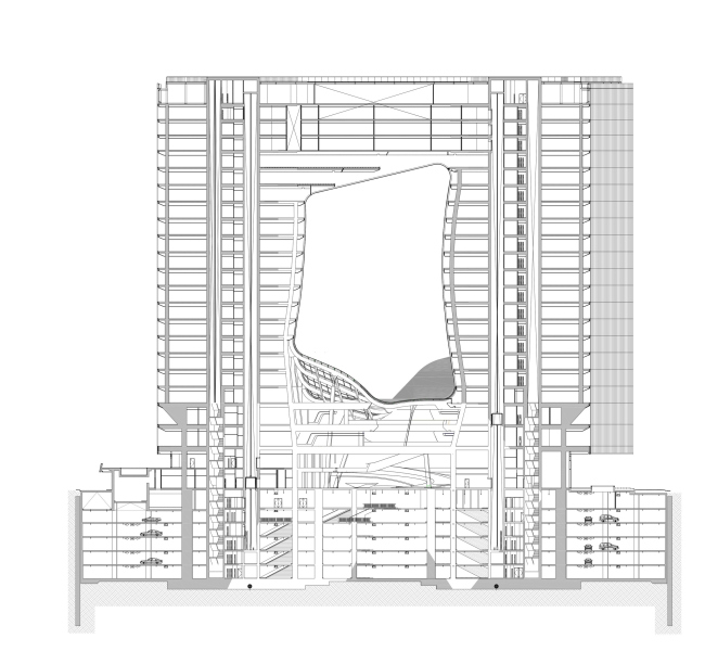
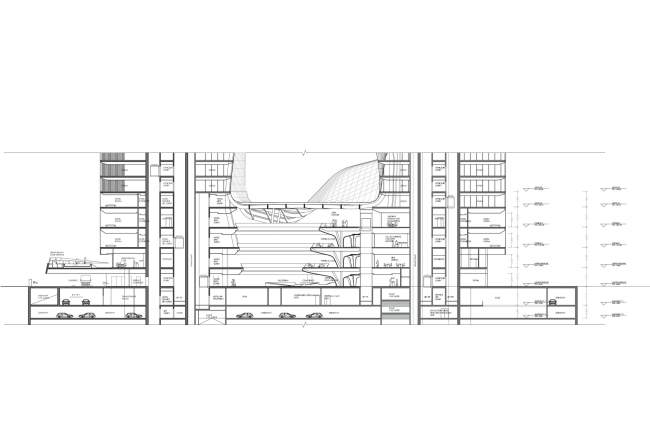
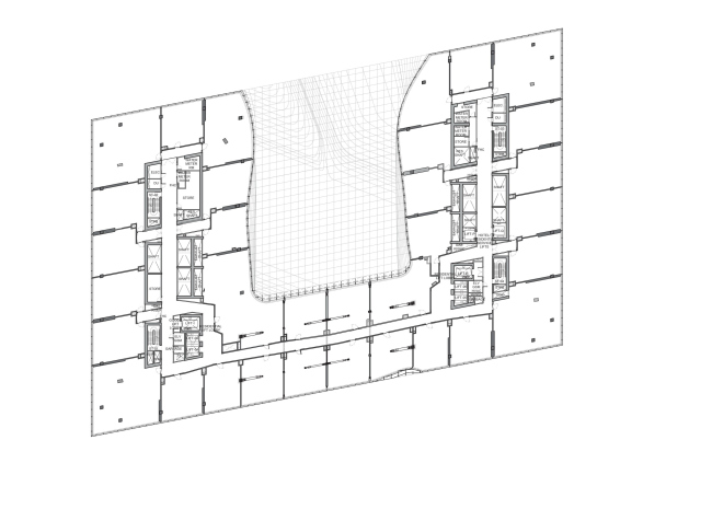
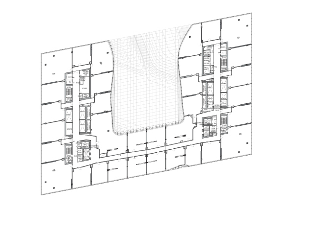
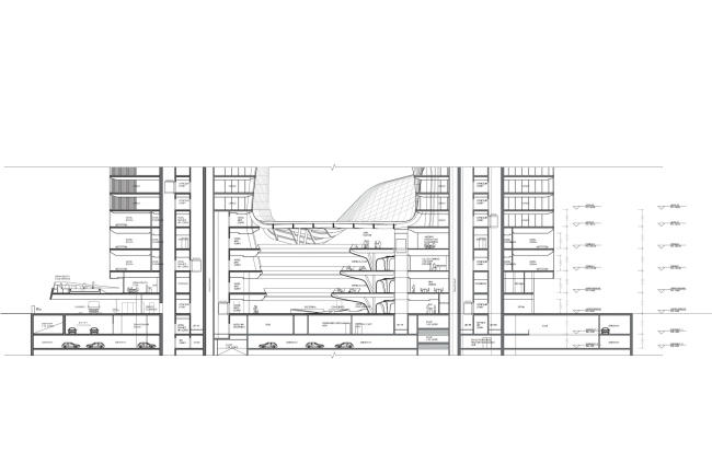
В Дубае закончено строительство комплекса The Opus, задуманного Захой Хадид еще в 2007 году. Главное в здании – криволинейный проем высотой в 8 этажей.

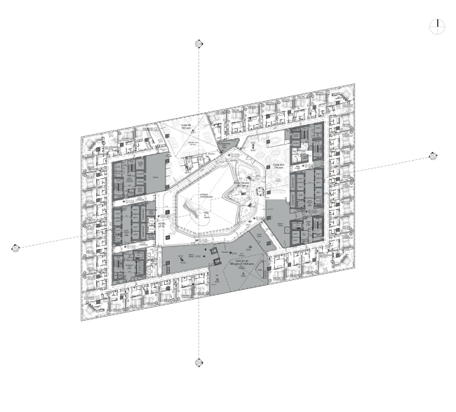
The Opus построен рядом с небоскребом-рекордсменом «Бурдж-Халифа» и деловым районом Бизнес-бэй. В программу входят офисы, квартиры с обслуживанием, рестораны и бары, а ключевую роль играет отель ME Dubai (сеть Meliá) на 74 обычных номера и 19 «люксов». Это единственная гостиница, как напоминают ZHA, где Заха Хадид занималась и самим зданием, и интерьерами.
 

Комплекс The Opus
Комплекс The Opus
Фото © Laurian Ghinitoiu
Комплекс The Opus
Комплекс The Opus
Фото © Laurian Ghinitoiu
Комплекс The Opus
Комплекс The Opus
Фото © Laurian Ghinitoiu

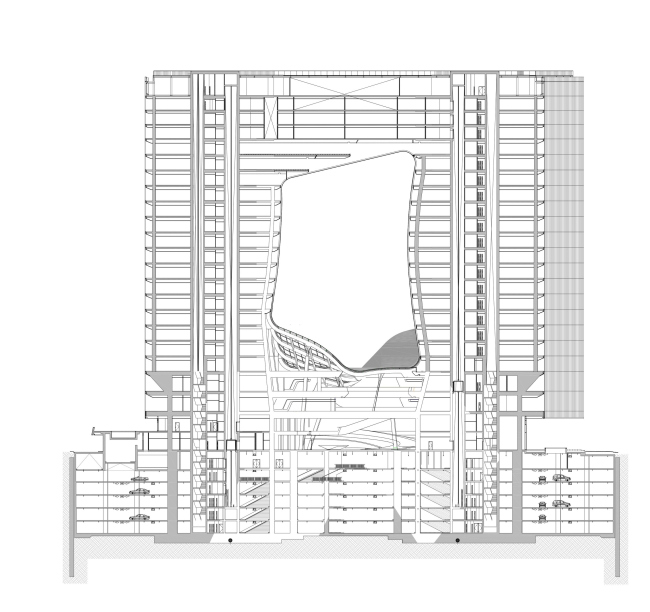
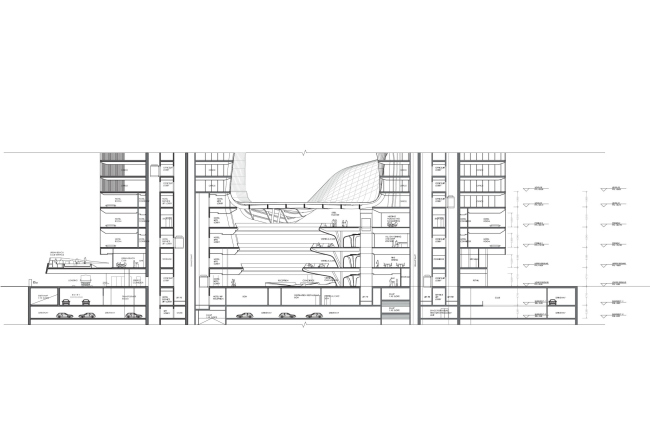
Но отель вряд ли может отвлечь от экстерьера The Opus: прямоугольного блока, из которого извлечена сердцевина. Архитекторы видят в проекте «драматический контраст», который создает этот криволинейный восьмиэтажный проем.
 
Комплекс The Opus
Комплекс The Opus
Фото © Laurian Ghinitoiu

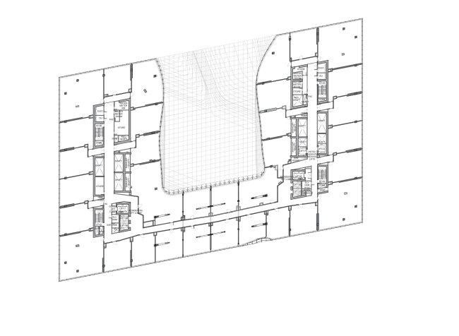
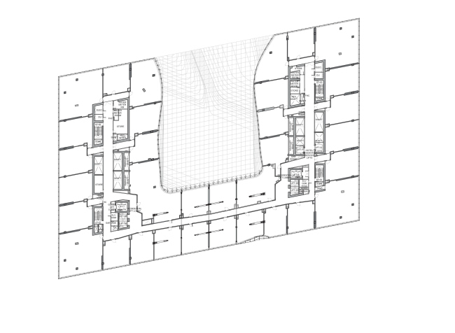
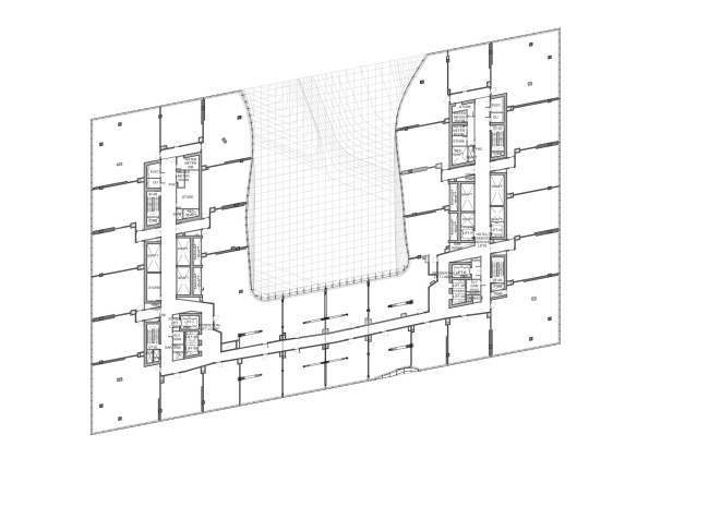
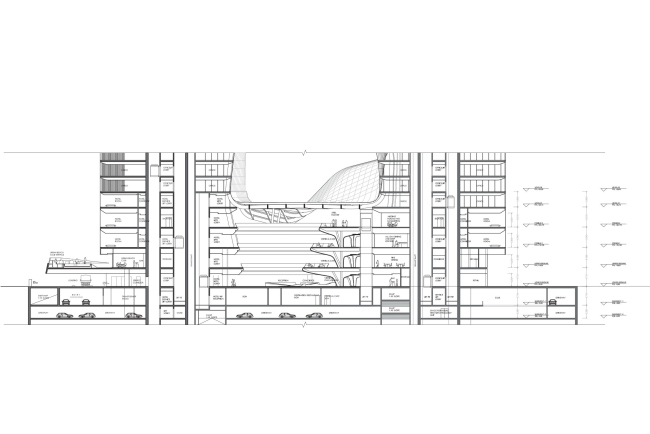
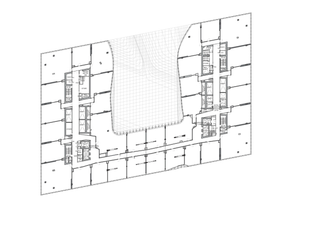
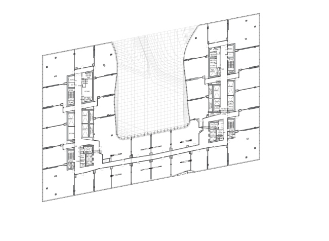
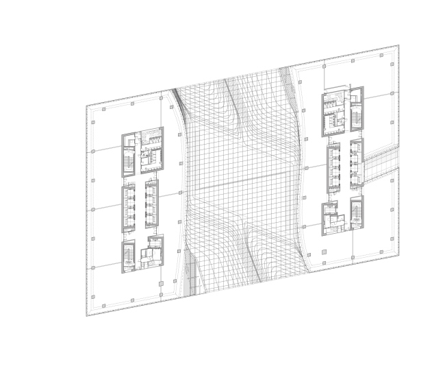
Внизу две половины постройки соединяет четырехэтажный атриум, вверху – трехэтажный «мост». Ее общая высота – 20 этажей (93 метра), а гараж и другие помещения занимают семь подземных ярусов. Общая площадь The Opus – 84 345 м2.
 
Комплекс The Opus
Комплекс The Opus
Фото © Laurian Ghinitoiu

Учитывая жаркий климат, фасады с двойным остеклением покрыты защищающим от ультрафиолетовых лучей слоем и зеркальным фриттованным узором. Криволинейная поверхность проема – а это 6000 м2 – состоит из 4300 модулей: прямых, изогнутых и двойной кривизны. Каждый модуль изготовлен из 8-миллиметрового энергоэффективного стекла, полости в 16 миллиметров и двух слоев 6-миллиметрового прозрачного стекла, ламинированного ПВБ (1,52 мм). Использованная при проектировании САПР также определила участки, где необходимо было применить закаленное стекло.
 
Комплекс The Opus
Комплекс The Opus
Фото © Laurian Ghinitoiu

Фасады днем выглядят зеркальными, ночью – включаются установленные в каждой стеклянной панели светодиоды. Каждым можно управлять отдельно, вместе они составляют динамическую инсталляцию.
 
Комплекс The Opus
Комплекс The Opus
Фото © Laurian Ghinitoiu

В отеле спроектированные ZHA интерьеры дополнены мебелью по проектам Хадид: это диваны Petalinas и модули Ottomans в вестибюле, кровати Opus, диваны, коллекция Vitae для ванных комнат – в номерах.
 
Комплекс The Opus
Комплекс The Opus
Фото © Laurian Ghinitoiu

В начале 2017-го девелопер The Opus заявил о своих планах создать в здании мемориал Захе Хадид. Сейчас об этом ничего не сообщается.
 
Комплекс The Opus
Комплекс The Opus
Фото © Laurian Ghinitoiu
Комплекс The Opus
Комплекс The Opus
Фото © Laurian Ghinitoiu
Комплекс The Opus
Комплекс The Opus
Фото © Laurian Ghinitoiu
Комплекс The Opus
Комплекс The Opus
Фото © Laurian Ghinitoiu
Комплекс The Opus
Комплекс The Opus
Фото © Laurian Ghinitoiu
Комплекс The Opus. Отель ME Dubai
Комплекс The Opus. Отель ME Dubai
Фото © Laurian Ghinitoiu
Комплекс The Opus. Отель ME Dubai
Комплекс The Opus. Отель ME Dubai
Фото © Laurian Ghinitoiu
Комплекс The Opus. Отель ME Dubai
Комплекс The Opus. Отель ME Dubai
Фото © Laurian Ghinitoiu
Комплекс The Opus. Отель ME Dubai
Комплекс The Opus. Отель ME Dubai
Фото © Laurian Ghinitoiu
Комплекс The Opus. Отель ME Dubai
Комплекс The Opus. Отель ME Dubai
Фото © Laurian Ghinitoiu
Комплекс The Opus. Отель ME Dubai
Комплекс The Opus. Отель ME Dubai
Фото © Laurian Ghinitoiu
Комплекс The Opus. Отель ME Dubai
Комплекс The Opus. Отель ME Dubai
Фото © Laurian Ghinitoiu
Комплекс The Opus. Отель ME Dubai
Комплекс The Opus. Отель ME Dubai
Фото © Laurian Ghinitoiu
Комплекс The Opus. Отель ME Dubai
Комплекс The Opus. Отель ME Dubai
Фото © Laurian Ghinitoiu
Комплекс The Opus
Комплекс The Opus
© Zaha Hadid Architects
Комплекс The Opus
Комплекс The Opus
© Zaha Hadid Architects
Комплекс The Opus
Комплекс The Opus
© Zaha Hadid Architects
Комплекс The Opus
Комплекс The Opus
© Zaha Hadid Architects
Комплекс The Opus
Комплекс The Opus
© Zaha Hadid Architects
Комплекс The Opus
Комплекс The Opus
© Zaha Hadid Architects
Комплекс The Opus
Комплекс The Opus
© Zaha Hadid Architects
Комплекс The Opus
Комплекс The Opus
© Zaha Hadid Architects