Размещено на портале Архи.ру (www.archi.ru)

30.04.2020

Учеба как социальный процесс

Нина Фролова
Объект:
Корпус Town House Кингстонского университета
Адрес:
Великобритания, None, Лондон.
Мастерская:
Grafton

Корпус Town House Кингстонского университета в Лондоне по проекту лауреатов Притцкеровской премии 2020 года – дублинских архитекторов Grafton.

Основательницам Grafton Шелли МакНамара и Ивонн Фаррелл в этом году не только присудили Притцкеровскую премию, но и вручили Золотую медаль RIBA – при этом первое здание в Великобритании у них готово только сейчас. Это корпус Town House Кингстонского университета на юго-западе Большого Лондона, через Темзу от дворца Хэмптон-корт.
 

Корпус Town House Кингстонского университета
Корпус Town House Кингстонского университета
Фото © Dennis Gilbert/VIEW

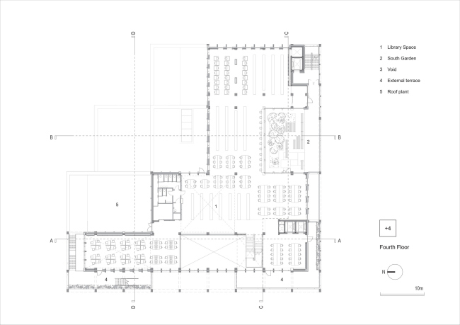
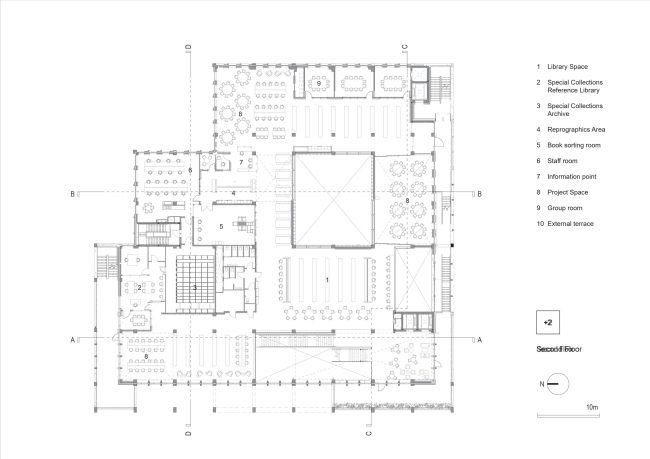
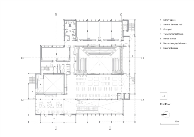
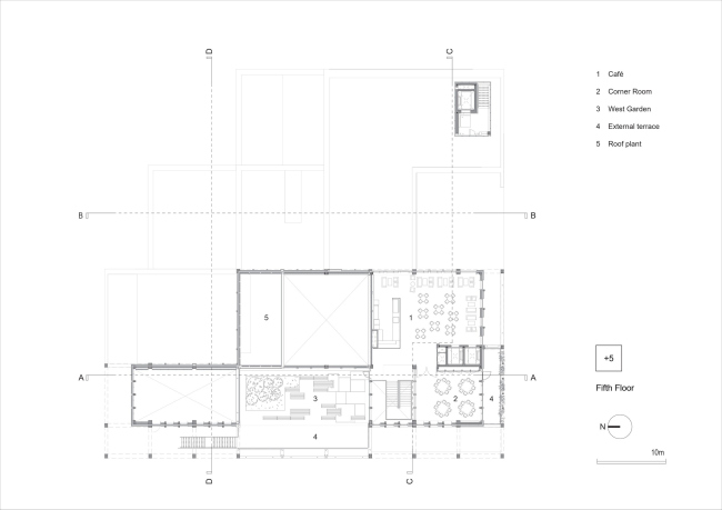
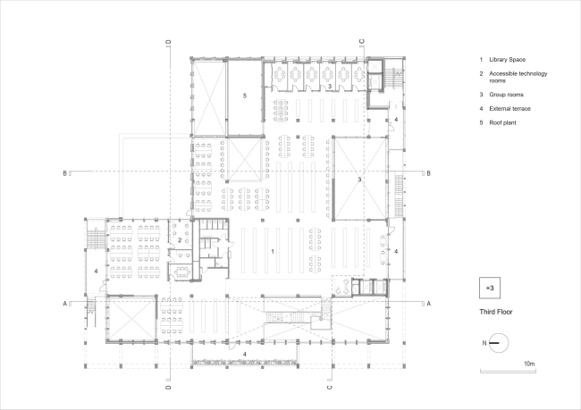
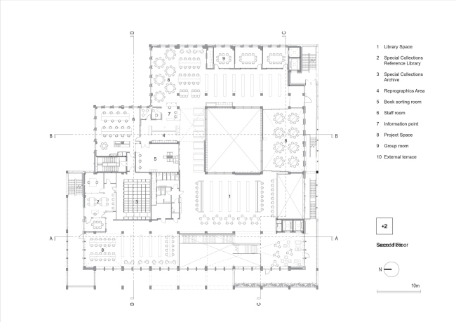
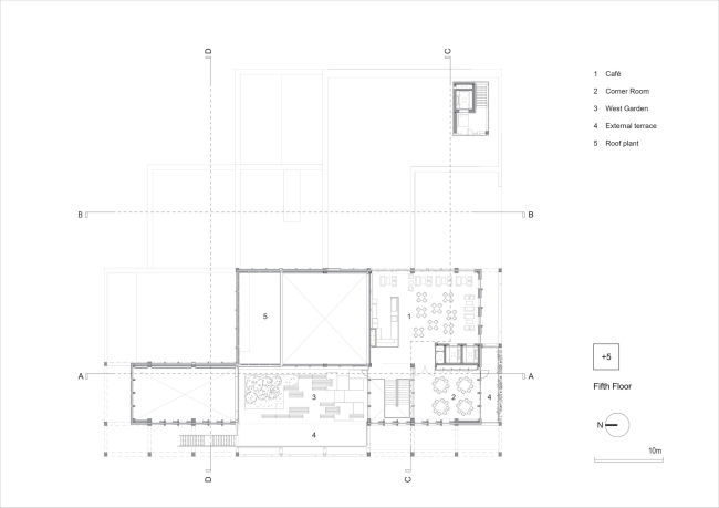
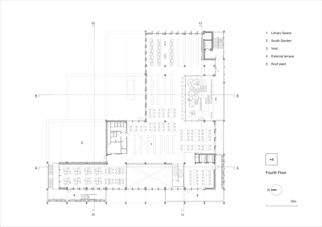
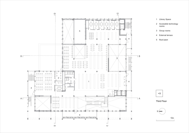
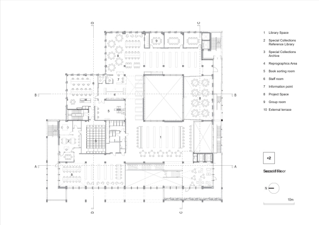
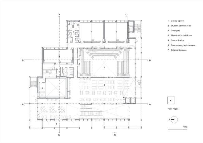
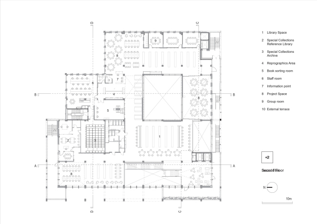
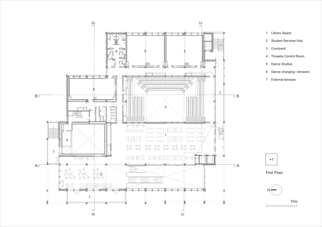
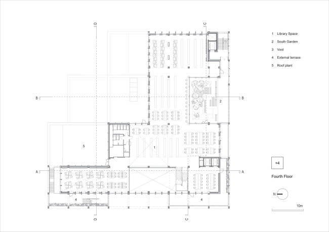
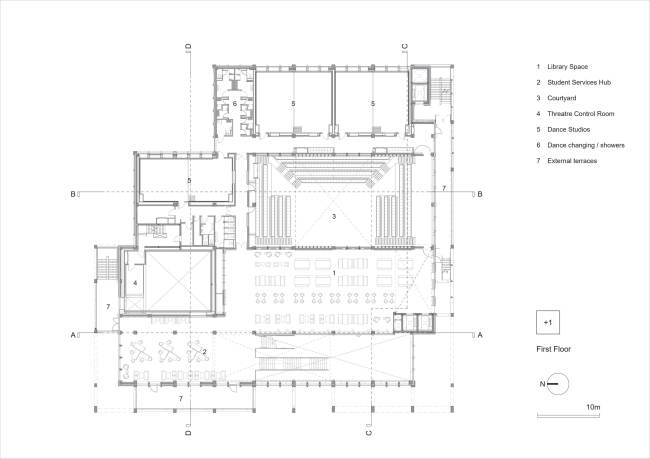
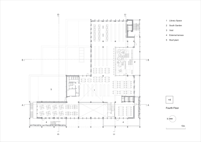
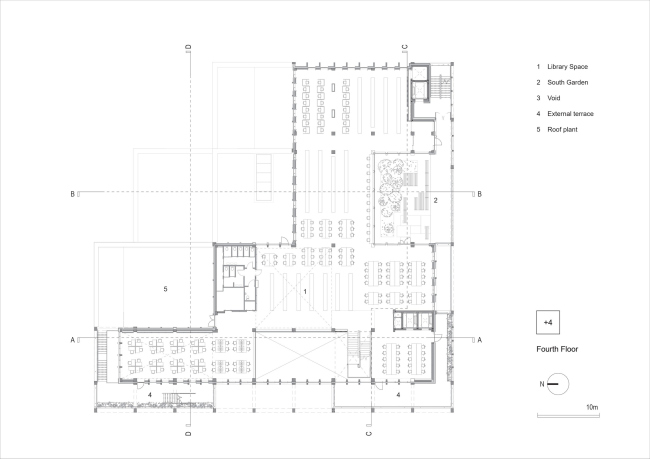
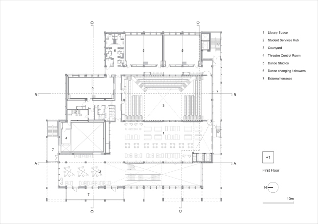
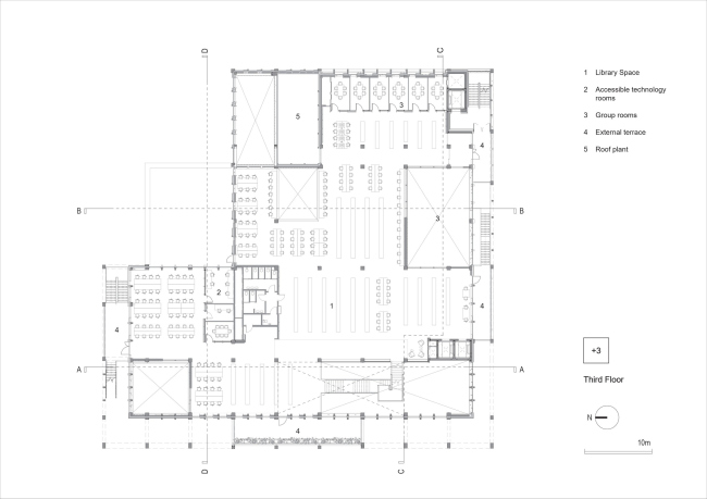
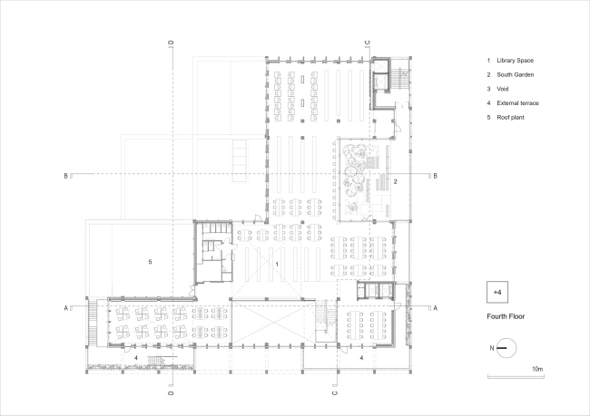
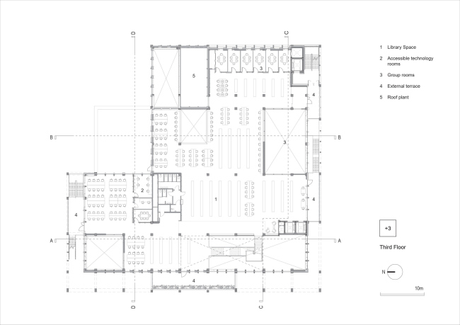
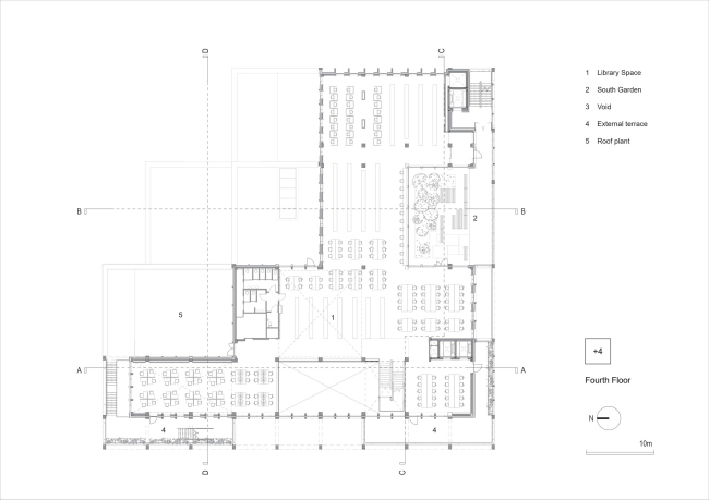
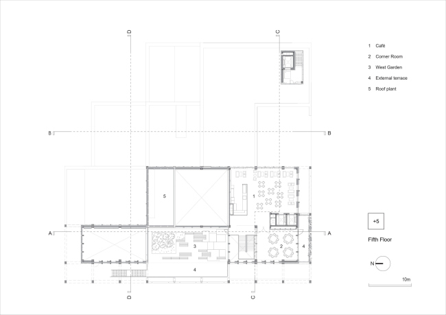
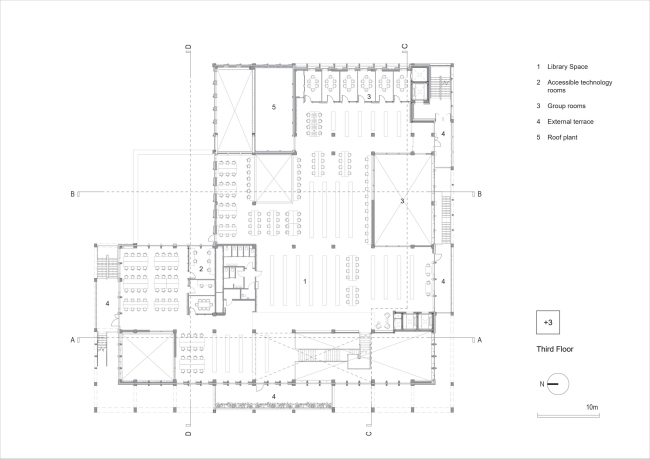
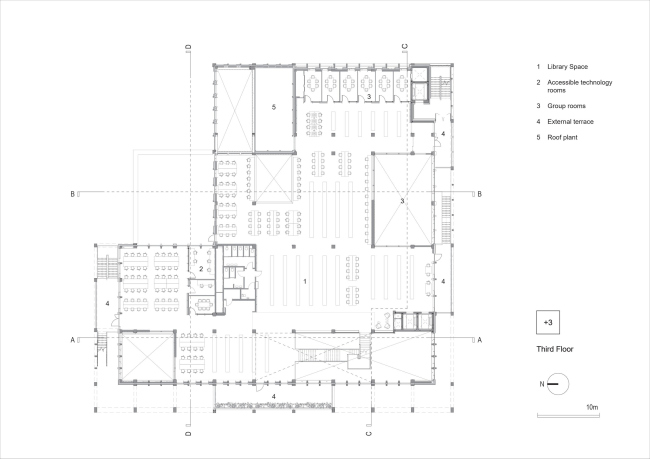
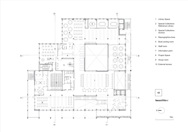
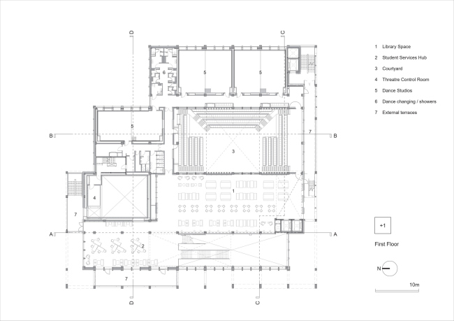
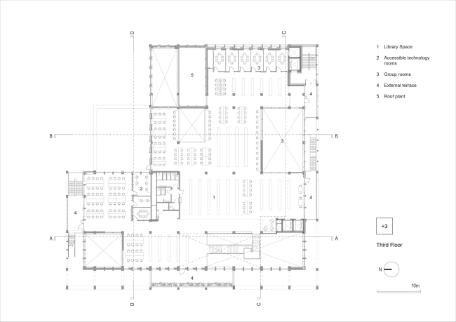
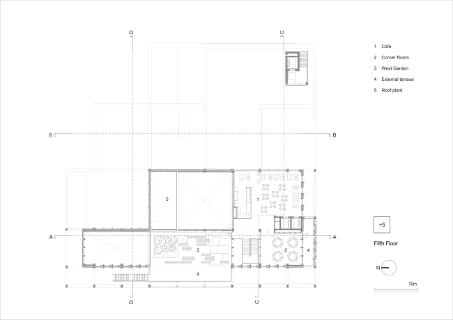
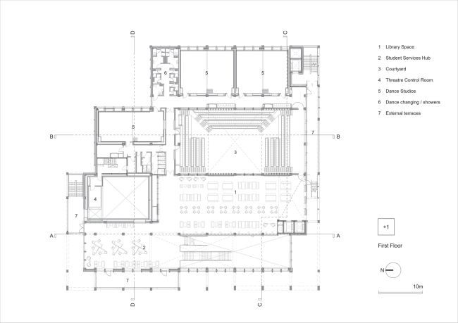
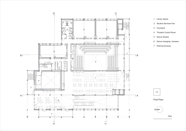
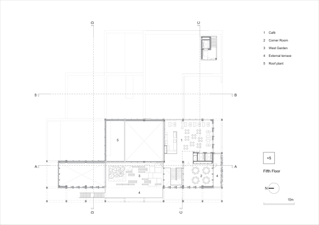
Постройка общей площадью 9400 м2 и бюджетом в 50 млн фунтов была поручена Grafton по итогам закрытого конкурса в 2013. Она сменила университетское здание из сборных бетонных деталей: такая архитектура вообще характерна для округа Кингстон, что нашло отражение в интерьере нового корпуса. В нем размещены главная библиотека и архив, балетные студии, театральный зал, «адаптивные» помещения, два кафе.
 
Корпус Town House Кингстонского университета
Корпус Town House Кингстонского университета
Фото © Dennis Gilbert/VIEW
Корпус Town House Кингстонского университета
Корпус Town House Кингстонского университета
Фото © Dennis Gilbert/VIEW
Корпус Town House Кингстонского университета
Корпус Town House Кингстонского университета
Фото © Ed Reeve

Около половины пространств в Town House – свободного плана, он визуально и физически проницаем, чему способствуют трехсветный «внутренний двор» в центре и большая лестница, соединяющая этажи. По замыслу архитекторов, это должно способствовать обмену идеями и знаниями, новому, социальному образовательному процессу.
 
Корпус Town House Кингстонского университета в Лондоне
Корпус Town House Кингстонского университета в Лондоне
Проект Grafton Architects. Фотография © Ed Reeve
Корпус Town House Кингстонского университета
Корпус Town House Кингстонского университета
Фото © Ed Reeve
Корпус Town House Кингстонского университета
Корпус Town House Кингстонского университета
Фото © Ed Reeve

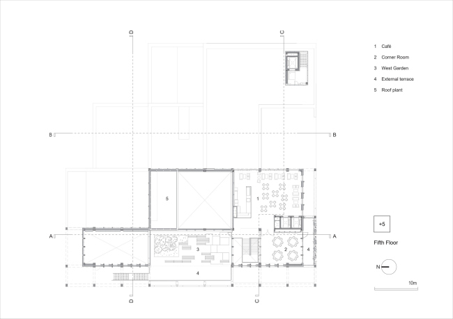
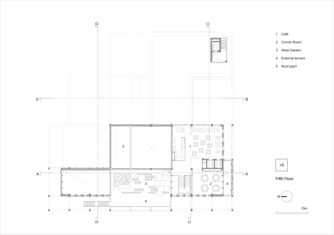
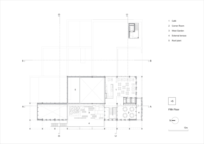
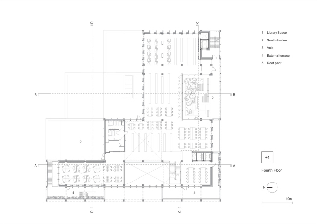
Первый этаж занят общественными пространствами, кафе, а также «гибкими» помещениями для собраний и выступлений, где использованы сборные бетонные детали. По мере роста высоты появляются зоны для тихих индивидуальных занятий, которые доходят до самого верха, где также есть второе кафе со смотровой террасой и помещение для собраний.
 
Корпус Town House Кингстонского университета
Корпус Town House Кингстонского университета
Фото © Ed Reeve
Корпус Town House Кингстонского университета
Корпус Town House Кингстонского университета
Фото © Ed Reeve
Корпус Town House Кингстонского университета
Корпус Town House Кингстонского университета
Фото © Ed Reeve

Идея проницаемости касается не только интерьера, но и отношений здания с окружением: у него много входов, внутрь попадает много солнечного света, но главное – границы со средой размыты благодаря многоярусной «колоннаде». Она создает привлекательное промежуточное пространство, которое на верхних ярусах станет висячими садами. Материал колонн – восстановленный камень, отсылка к зданию совета графства Суррей через улицу, поздневикторианской постройке с фасадом из «классического» портландского известняка.
Корпус Town House Кингстонского университета
Корпус Town House Кингстонского университета
Фото © Ed Reeve
Корпус Town House Кингстонского университета
Корпус Town House Кингстонского университета
Фото © Ed Reeve
Корпус Town House Кингстонского университета
Корпус Town House Кингстонского университета
Фото © Ed Reeve
Корпус Town House Кингстонского университета
Корпус Town House Кингстонского университета
Фото © Ed Reeve
Корпус Town House Кингстонского университета
Корпус Town House Кингстонского университета
Фото © Dennis Gilbert/VIEW
Корпус Town House Кингстонского университета
Корпус Town House Кингстонского университета
Фото © Ed Reeve
Корпус Town House Кингстонского университета
Корпус Town House Кингстонского университета
Фото © Ed Reeve
Корпус Town House Кингстонского университета
Корпус Town House Кингстонского университета
Фото © Ed Reeve
Корпус Town House Кингстонского университета
Корпус Town House Кингстонского университета
Фото © Ed Reeve
Корпус Town House Кингстонского университета
Корпус Town House Кингстонского университета
Фото © Ed Reeve
Корпус Town House Кингстонского университета
Корпус Town House Кингстонского университета
Фото © Ed Reeve
Корпус Town House Кингстонского университета
Корпус Town House Кингстонского университета
Фото © Ed Reeve
Корпус Town House Кингстонского университета
Корпус Town House Кингстонского университета
Фото © Ed Reeve
Корпус Town House Кингстонского университета
Корпус Town House Кингстонского университета
Фото © Ed Reeve
Корпус Town House Кингстонского университета
Корпус Town House Кингстонского университета
Фото © Dennis Gilbert/VIEW
Корпус Town House Кингстонского университета
Корпус Town House Кингстонского университета
© Grafton Architects
Корпус Town House Кингстонского университета
Корпус Town House Кингстонского университета
© Grafton Architects
Корпус Town House Кингстонского университета
Корпус Town House Кингстонского университета
© Grafton Architects
Корпус Town House Кингстонского университета
Корпус Town House Кингстонского университета
© Grafton Architects
Корпус Town House Кингстонского университета
Корпус Town House Кингстонского университета
© Grafton Architects
Корпус Town House Кингстонского университета
Корпус Town House Кингстонского университета
© Grafton Architects
Корпус Town House Кингстонского университета
Корпус Town House Кингстонского университета
© Grafton Architects
Корпус Town House Кингстонского университета
Корпус Town House Кингстонского университета
© Grafton Architects
Корпус Town House Кингстонского университета
Корпус Town House Кингстонского университета
© Grafton Architects
Корпус Town House Кингстонского университета
Корпус Town House Кингстонского университета
© Grafton Architects
Корпус Town House Кингстонского университета
Корпус Town House Кингстонского университета
© Grafton Architects
Корпус Town House Кингстонского университета
Корпус Town House Кингстонского университета
© Grafton Architects
Корпус Town House Кингстонского университета
Корпус Town House Кингстонского университета
© Grafton Architects
Корпус Town House Кингстонского университета
Корпус Town House Кингстонского университета
© Grafton Architects
Корпус Town House Кингстонского университета
Корпус Town House Кингстонского университета
© Grafton Architects
Корпус Town House Кингстонского университета
Корпус Town House Кингстонского университета
© Grafton Architects
Корпус Town House Кингстонского университета
Корпус Town House Кингстонского университета
© Grafton Architects
Корпус Town House Кингстонского университета
Корпус Town House Кингстонского университета
© Grafton Architects
Корпус Town House Кингстонского университета
Корпус Town House Кингстонского университета
© Grafton Architects