Размещено на портале Архи.ру (www.archi.ru)

29.04.2020

Башня-знак

Нина Фролова
Объект:
Башня Mjøstårnet
Адрес:
Норвегия, Брумунндал.
Мастерская:
Voll Arkitekter

Самое высокое деревянное здание в мире, 18-этажная башня Mjøstårnet на юге Норвегии, одновременно привлекает внимание к своему городу – Брумунндалу – и служит знаком возможностей дерева как строительного материала.

В марте 2019-го Международный совет по высотным зданиям и городской среде (CTBUH) присвоил многофункциональной башне на юге Норвегии высотой 85,4 м звание самого высокого деревянного сооружения в мире. Речь идет об инженерном дереве, клееном брусе (glulam): мы подробно рассказывали о процессе строительства и технических особенностях башни здесь.
 

Башня Mjøstårnet
Башня Mjøstårnet
Фото © Ricardo Foto
Башня Mjøstårnet
Башня Mjøstårnet
Фото © Ricardo Foto

Сейчас Mjøstårnet уже год «в строю». Ее название переводится как «башня [на озере] Мьёса»: постройка находится на берегу крупнейшего озера Норвегии, узнаваема издалека как деревянная и хорошо заметна проезжающим мимо автомобилистам, которые теперь обращают внимание на город Брумунндал. Это было целью архитекторов и застройщика, но все же не главной.
 
Башня Mjøstårnet
Башня Mjøstårnet
Фото © Ricardo Foto
Башня Mjøstårnet
Башня Mjøstårnet
Фото © Ricardo Foto

Гораздо важней было показать возможности дерева как строительного материала, экологически чистого возобновляемого ресурса, который удерживает CO2 – в отличие от деревьев, доживающих до естественной смерти и выделяющих весь удержанный за свою жизнь углекислый газ обратно в атмосферу при гниении. Естественно, древесину имеет смысл использовать лишь при «устойчивой» схеме вырубки и компенсационной посадки, но в окрестностях Бурмунндала, известном регионе лесозаготовки и деревообработки, все эти правила всегда соблюдают.
 
Башня Mjøstårnet
Башня Mjøstårnet
Фото © Ricardo Foto
Башня Mjøstårnet
Башня Mjøstårnet
Фото © Ricardo Foto

Авторы проекта подчеркивают, что места добычи необходимых для строительства 3500 м3 древесины (14 000 деревьев) и ее превращения в клееный брус буквально видны с вершины «Мьёсторнет», то есть выброс CO2 и затраты ресурсов на транспортировку были сведены к минимуму.
 
Башня Mjøstårnet
Башня Mjøstårnet
Фото © Ricardo Foto
Башня Mjøstårnet
Башня Mjøstårnet
Фото © Ricardo Foto

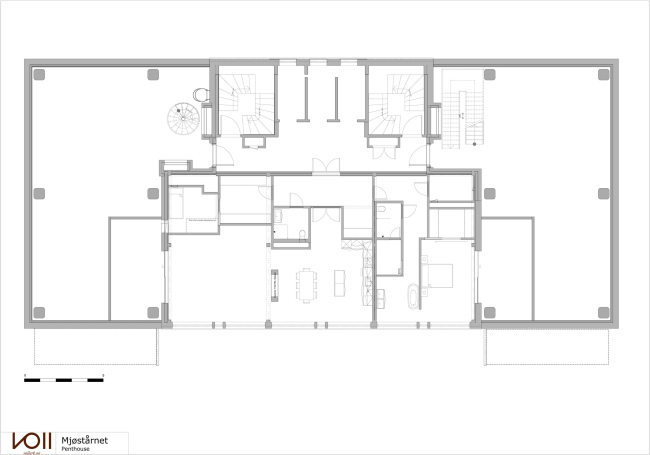
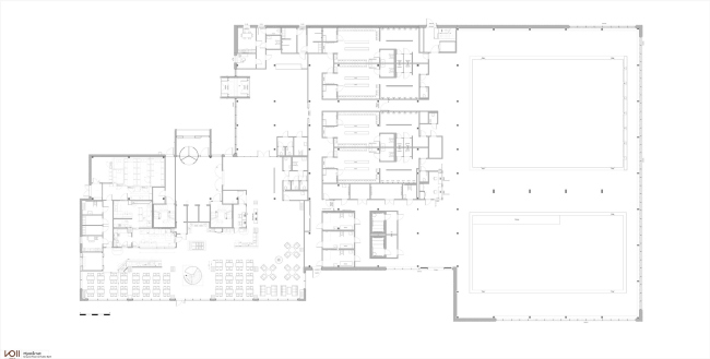
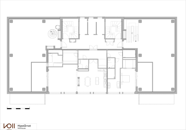
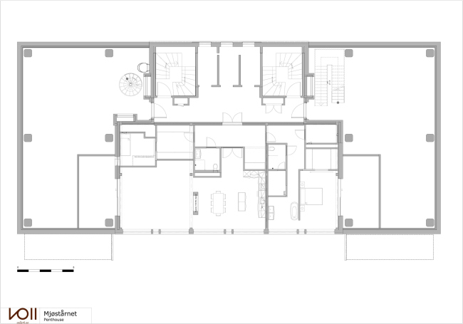
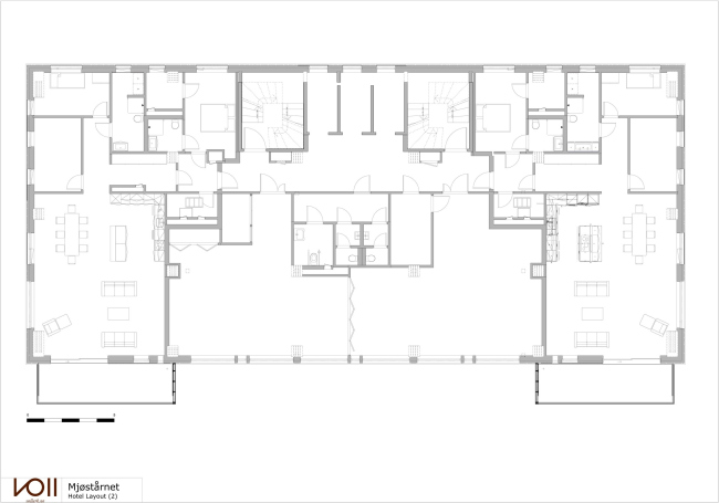
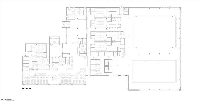
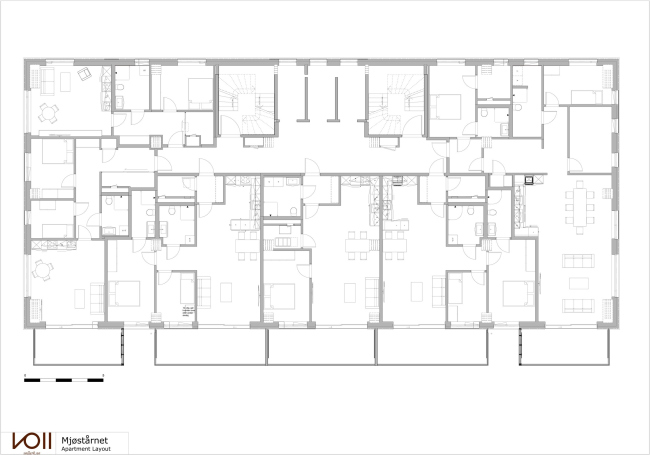
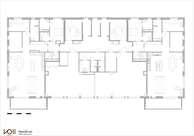
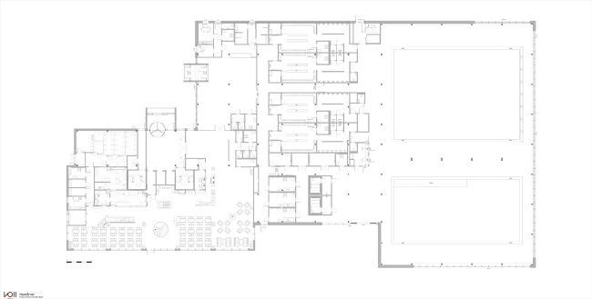
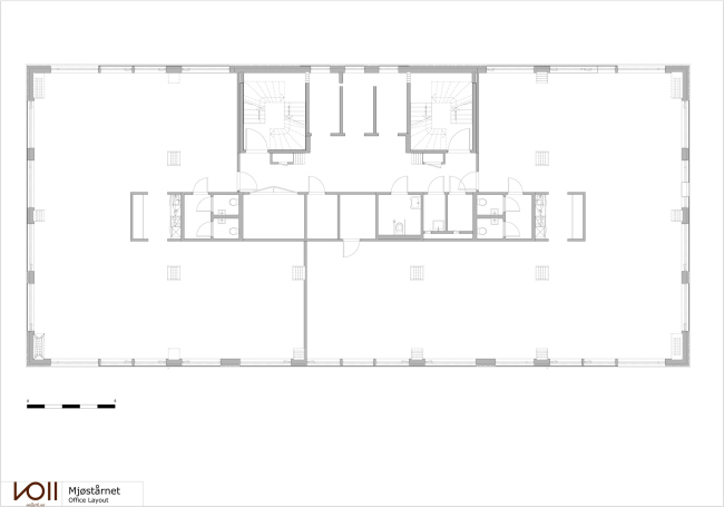
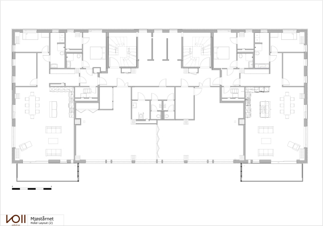
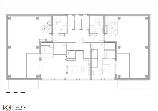
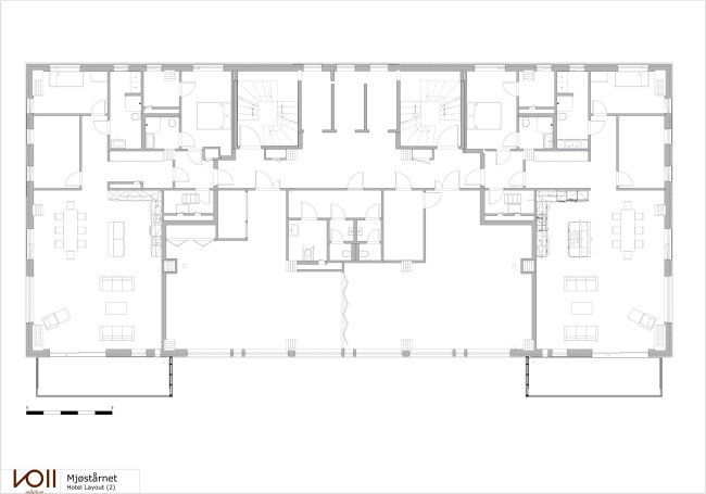
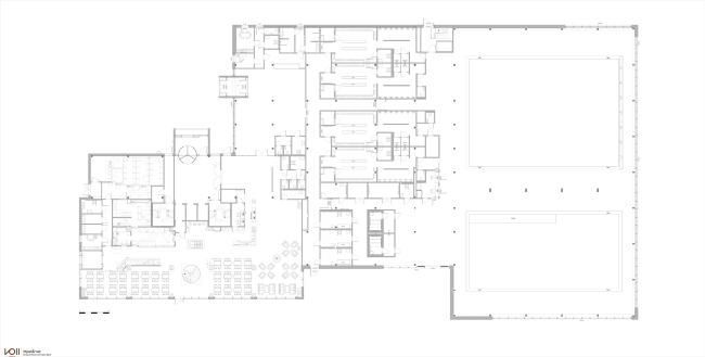
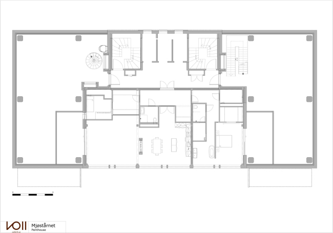
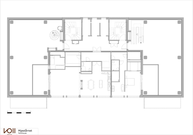
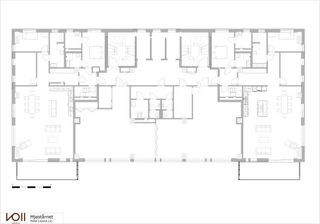
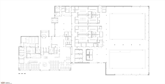
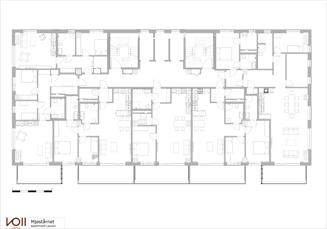
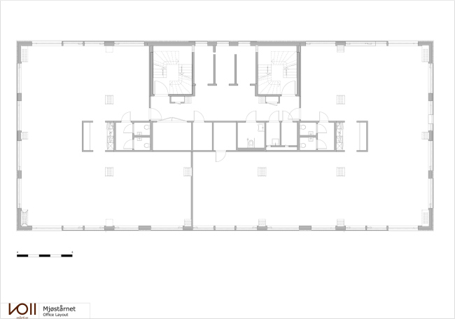
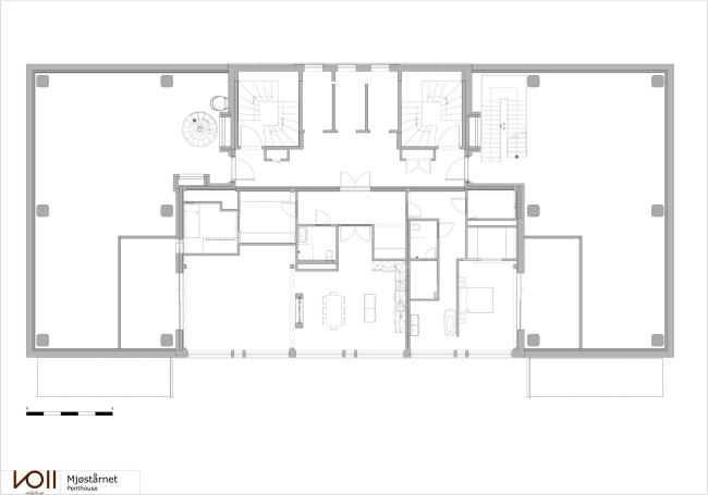
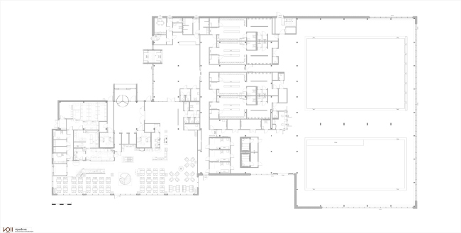
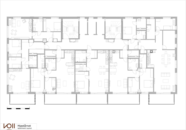
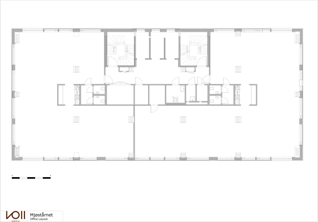
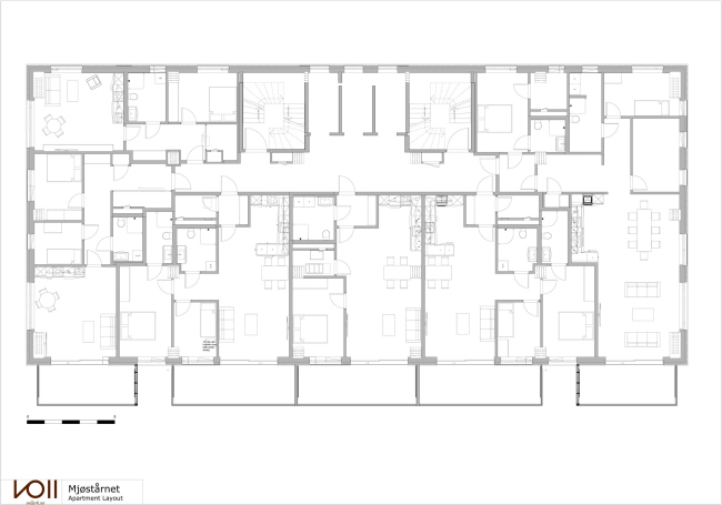
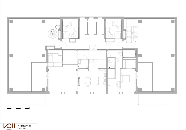
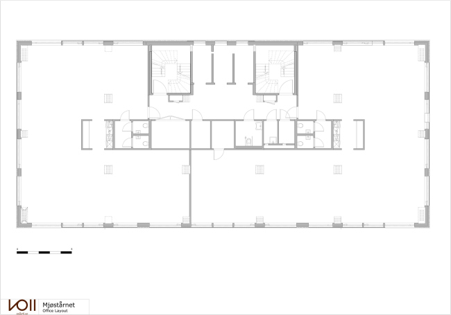
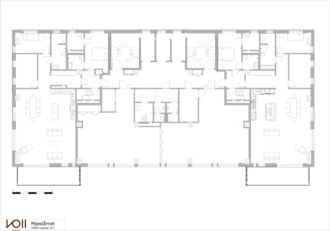
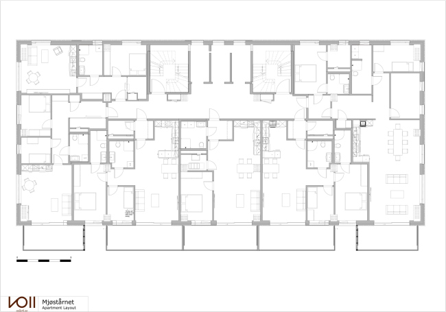
Башня расположена у самой воды, куда теперь ведут пешеходные и вело- дорожки. В невысокой пристройке открыт аква-центр с двумя 25-метровыми бассейнами (4500 м2), а сама башня (10 500 м2) на первом этаже вмещает вестибюль и ресторан, выше – конференц-центр, над ним – пять этажей офисов свободного плана, четыре этажа гостиницы (72 номера), пять ярусов с 32 квартирами. На 17-м и 18-м этажах – три пентхауса, выставочный зал и доступная всем желающим смотровая площадка.
Башня Mjøstårnet
Башня Mjøstårnet
Фото © Ricardo Foto
Башня Mjøstårnet
Башня Mjøstårnet
Фото © Øystein Elgsaas / Voll Arkitekter AS
Башня Mjøstårnet
Башня Mjøstårnet
Фото © Øystein Elgsaas / Voll Arkitekter AS
Башня Mjøstårnet
Башня Mjøstårnet
Фото © Øystein Elgsaas / Voll Arkitekter AS
Башня Mjøstårnet
Башня Mjøstårnet
Фото © Øystein Elgsaas / Voll Arkitekter AS
Башня Mjøstårnet
Башня Mjøstårnet
Фото © Øystein Elgsaas / Voll Arkitekter AS
Башня Mjøstårnet
Башня Mjøstårnet
Фото © Øystein Elgsaas / Voll Arkitekter AS
Башня Mjøstårnet
Башня Mjøstårnet
Фото © Øystein Elgsaas / Voll Arkitekter AS
Башня Mjøstårnet
Башня Mjøstårnet
Фото © Øystein Elgsaas / Voll Arkitekter AS
Башня Mjøstårnet
Башня Mjøstårnet
Фото © Øystein Elgsaas / Voll Arkitekter AS
Башня Mjøstårnet
Башня Mjøstårnet
Фото © Øystein Elgsaas / Voll Arkitekter AS
Башня Mjøstårnet
Башня Mjøstårnet
Фото © Øystein Elgsaas / Voll Arkitekter AS
Башня Mjøstårnet
Башня Mjøstårnet
© Voll Arkitekter AS
Башня Mjøstårnet
Башня Mjøstårnet
© Voll Arkitekter AS
Башня Mjøstårnet
Башня Mjøstårnet
© Voll Arkitekter AS
Башня Mjøstårnet
Башня Mjøstårnet
© Voll Arkitekter AS
Башня Mjøstårnet
Башня Mjøstårnet
© Voll Arkitekter AS
Башня Mjøstårnet
Башня Mjøstårnet
© Voll Arkitekter AS
Башня Mjøstårnet
Башня Mjøstårnet
© Voll Arkitekter AS