Размещено на портале Архи.ру (www.archi.ru)

22.04.2020

Жилые изгибы

Нина Фролова
Объект:
Жилой комплекс Courbes
Адрес:
Франция, None, Коломб.

В жилом комплексе Courbes по проекту Studio Christophe Rousselle в пригороде Парижа балконы получили ограждения общей длиной более чем 2 километра гнутого стекла.

Courbes на 134 квартиры расположен в Коломбе – городе, входящем во «второе кольцо» пригородов Парижа. Но теперь туда пришел скоростной трамвай, который связал Коломб и с центром агломерации, и с расположенным гораздо ближе деловым районом Дефанс. Это стало стимулом для нового строительства, которое идет в очень неоднородной среде: среди односемейных и многоквартирных домов 1980-х и 1990-х годов.
 

Жилой комплекс Courbes
Жилой комплекс Courbes
Фото © Fernando Guerra (FG+SG)

Жилой комплекс Courbes, что можно перевести как «Изгибы», построен в зоне реконструкции бульвара Шарля де Голля. К этой магистрали обращены остекленные двусветные коммерческие помещения первого этажа.
 
Жилой комплекс Courbes
Жилой комплекс Courbes
Фото © Fernando Guerra (FG+SG)

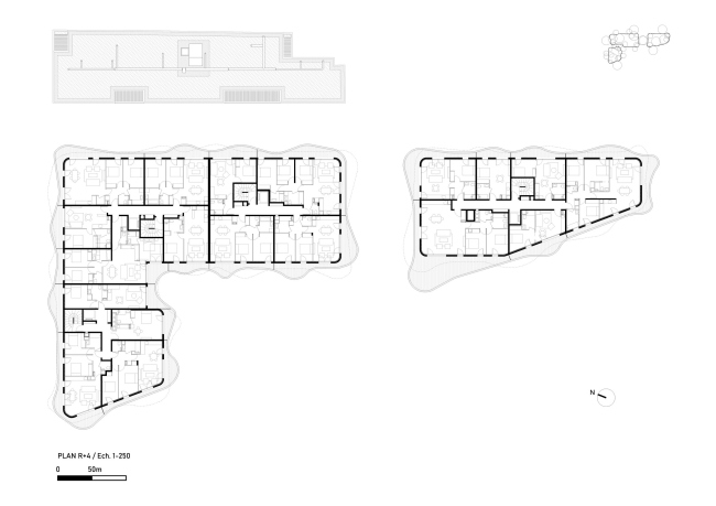
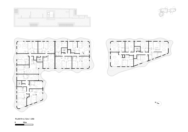
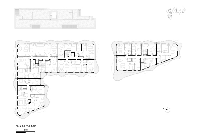
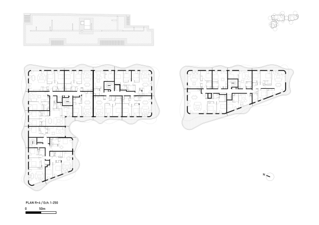
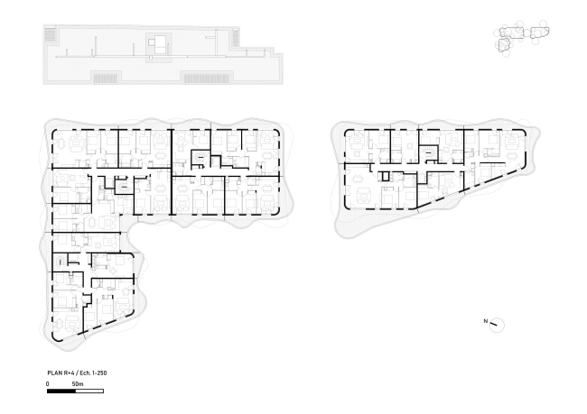
Автор проекта, архитектор Кристоф Руссель, разделил объем на два корпуса со сложным криволинейным силуэтом. Любой следующий этаж следует своему изгибу и отступает от нижнего уровня. Каждая квартира получила 22 м2 обширных балконов-террас. В интерьере широко использован дубовый паркет.
 
Жилой комплекс Courbes
Жилой комплекс Courbes
Фото © Takuji Shimmura

Сложная форма подчеркнута визуально размывающими объем материалами. На фасадах частично использована блестящая нержавеющая сталь. Стеклянное ограждение балконов, одновременно зеркальное и прозрачное, извиваясь вслед за стенами корпусов, достигает в сумме длины в более чем два километра.
 
Жилой комплекс Courbes Фото © Takuji Shimmura
Жилой комплекс Courbes
Фото © Takuji Shimmura
Жилой комплекс Courbes Фото © Takuji Shimmura
Жилой комплекс Courbes
Фото © Takuji Shimmura
Жилой комплекс Courbes Фото © Takuji Shimmura
Жилой комплекс Courbes
Фото © Takuji Shimmura
Жилой комплекс Courbes Фото © Takuji Shimmura
Жилой комплекс Courbes
Фото © Takuji Shimmura

Между двумя корпусами от бульвара вглубь квартала проложен небольшой переулок, обсаженный 30 пиниями.
Жилой комплекс Courbes
Жилой комплекс Courbes
Фото © Takuji Shimmura
Жилой комплекс Courbes Фото © Takuji Shimmura
Жилой комплекс Courbes
Фото © Takuji Shimmura
Жилой комплекс Courbes Фото © Fernando Guerra (FG+SG)
Жилой комплекс Courbes
Фото © Fernando Guerra (FG+SG)
Жилой комплекс Courbes Фото © Takuji Shimmura
Жилой комплекс Courbes
Фото © Takuji Shimmura
Жилой комплекс Courbes Фото © Takuji Shimmura
Жилой комплекс Courbes
Фото © Takuji Shimmura
Жилой комплекс Courbes Фото © Takuji Shimmura
Жилой комплекс Courbes
Фото © Takuji Shimmura
Жилой комплекс Courbes
Жилой комплекс Courbes
Фото © Fernando Guerra (FG+SG)
Жилой комплекс Courbes Фото © Takuji Shimmura
Жилой комплекс Courbes
Фото © Takuji Shimmura
Жилой комплекс Courbes Фото © Fernando Guerra (FG+SG)
Жилой комплекс Courbes
Фото © Fernando Guerra (FG+SG)
Жилой комплекс Courbes Фото © Takuji Shimmura
Жилой комплекс Courbes
Фото © Takuji Shimmura
Жилой комплекс Courbes Фото © Takuji Shimmura
Жилой комплекс Courbes
Фото © Takuji Shimmura
Жилой комплекс Courbes
Жилой комплекс Courbes
Фото © Fernando Guerra (FG+SG)
Жилой комплекс Courbes Фото © Takuji Shimmura
Жилой комплекс Courbes
Фото © Takuji Shimmura
Жилой комплекс Courbes Фото © Fernando Guerra (FG+SG)
Жилой комплекс Courbes
Фото © Fernando Guerra (FG+SG)
Жилой комплекс Courbes Фото © Takuji Shimmura
Жилой комплекс Courbes
Фото © Takuji Shimmura
Жилой комплекс Courbes
Жилой комплекс Courbes
Фото © Fernando Guerra (FG+SG)
Жилой комплекс Courbes
Жилой комплекс Courbes
Фото © Fernando Guerra (FG+SG)
Жилой комплекс Courbes
Жилой комплекс Courbes
Фото © Fernando Guerra (FG+SG)
Жилой комплекс Courbes
Жилой комплекс Courbes
Фото © Takuji Shimmura
Жилой комплекс Courbes
Жилой комплекс Courbes
© Christophe Rousselle architecte
Жилой комплекс Courbes
Жилой комплекс Courbes
© Christophe Rousselle architecte
Жилой комплекс Courbes
Жилой комплекс Courbes
© Christophe Rousselle architecte
Жилой комплекс Courbes
Жилой комплекс Courbes
© Christophe Rousselle architecte
Жилой комплекс Courbes
Жилой комплекс Courbes
© Christophe Rousselle architecte
Жилой комплекс Courbes
Жилой комплекс Courbes
© Christophe Rousselle architecte
Жилой комплекс Courbes
Жилой комплекс Courbes
© Christophe Rousselle architecte
Жилой комплекс Courbes
Жилой комплекс Courbes
© Christophe Rousselle architecte
Жилой комплекс Courbes
Жилой комплекс Courbes
© Christophe Rousselle architecte