Размещено на портале Архи.ру (www.archi.ru)

20.04.2020

Мозаичные ленты

Нина Фролова
Объект:
Жилой дом Le Stella
Адрес:
Монако, None, Ла-Кондамин.

Жилой дом в Монако по проекту Жана-Пьера Лотта: покрытые белой мозаикой «ленты» защищают от солнца балконы, а квартиры, малогабаритные дуплексы, рассчитаны на молодежь.

Многоэтажный дом Le Stella построен в центральном районе Монако – Ла-Кондамин: его уместили в развилке двух улиц, и он стоит как будто на мысу – или на носу корабля, открывая прилегающий квартал.
 

Жилой дом Le Stella
Жилой дом Le Stella
Фото © Aldo Amoretti

Его самая заметная и эффектная часть – обращенный к городу и морю фасад с балконами, скрытыми за развевающимися «лентами», покрытыми, как и все внешние поверхности здания, белой мозаикой. Эти «ленты» защищают жильцов и их квартиры от солнца и взглядов соседей, не закрывая при этом эффектных панорам.
 
Жилой дом Le Stella
Жилой дом Le Stella
Фото © Aldo Amoretti

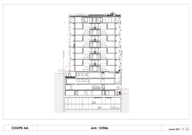
Цоколь постройки открыт лишь со стороны восточной улицы, более пологой (западная уходит резко вверх): он полностью остеклен и обращен на небольшую площадь-террасу. Внутри расположены детский сад и помещения Международного университета Монако. Благодаря прозрачному фасаду с зимним садом за ним эти пространства обеспечены естественным освещением и одновременно защищены от взглядов снаружи.
 
Жилой дом Le Stella
Жилой дом Le Stella
Фото © Aldo Amoretti

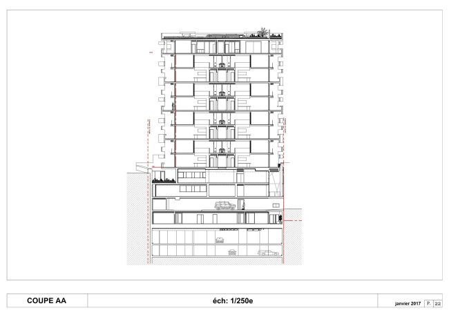
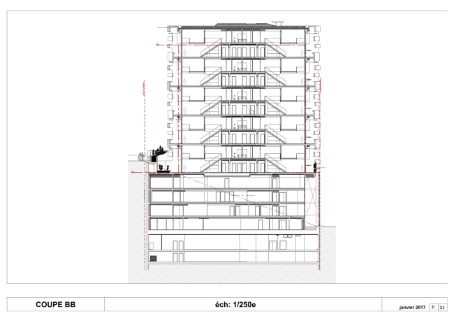
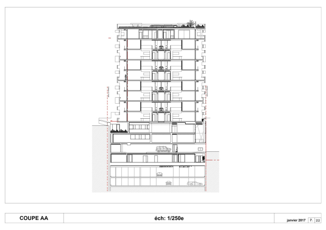
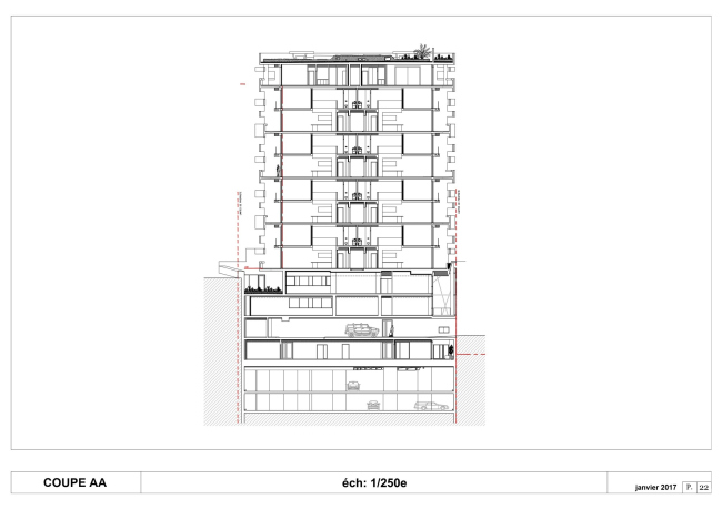
С 4-го по 13-й этажи размещены 99 квартир: большинство из них – это двухъярусное малогабаритное жилье, рассчитанное на молодежь. Роль коридоров исполняют открытые галереи, которые обеспечивают чувство открытости и «общности». Они идут через этаж: на третьем, пятом и так далее. Проходя по ним, жильцы и их гости заново открывают город в необычном ракурсе.
 
Жилой дом Le Stella
Жилой дом Le Stella
Фото © Aldo Amoretti

Большинство квартир – размером 13 м х 3,7 м с высотой двухсветной общей комнаты в 5,7 м; спальня помещена на антресольном этаже. Балкон-лоджия – продолжение пространства квартиры.
Жилой дом Le Stella
Жилой дом Le Stella
Фото © Aldo Amoretti
Жилой дом Le Stella
Жилой дом Le Stella
Фото © Aldo Amoretti
Жилой дом Le Stella
Жилой дом Le Stella
Фото © Aldo Amoretti
Жилой дом Le Stella
Жилой дом Le Stella
Фото © Aldo Amoretti
Жилой дом Le Stella
Жилой дом Le Stella
Фото © Aldo Amoretti
Жилой дом Le Stella
Жилой дом Le Stella
Фото © Aldo Amoretti
Жилой дом Le Stella
Жилой дом Le Stella
Фото © Aldo Amoretti
Жилой дом Le Stella
Жилой дом Le Stella
Фото © Aldo Amoretti
Жилой дом Le Stella
Жилой дом Le Stella
Фото © Aldo Amoretti
Жилой дом Le Stella
Жилой дом Le Stella
Фото © Aldo Amoretti
Жилой дом Le Stella
Жилой дом Le Stella
Фото © Aldo Amoretti
Жилой дом Le Stella
Жилой дом Le Stella
© Jean-Pierre Lott Architecte
Жилой дом Le Stella
Жилой дом Le Stella
© Jean-Pierre Lott Architecte
Жилой дом Le Stella
Жилой дом Le Stella
© Jean-Pierre Lott Architecte
Жилой дом Le Stella
Жилой дом Le Stella
© Jean-Pierre Lott Architecte
Жилой дом Le Stella
Жилой дом Le Stella
© Jean-Pierre Lott Architecte