Размещено на портале Архи.ру (www.archi.ru)

16.04.2020

Медицинские контейнеры

Нина Фролова
Мастерская:
CRA-Carlo Ratti Associati

Команда во главе с бюро Carlo Ratti Associati разработала для борьбы с Covid-19 изоляционный реанимационный модуль на базе 20-футового транспортного контейнера. Это проект с «открытым кодом»: чертежи выложены в открытый доступ. Пилотный модуль строится сейчас на севере Италии.

Медицинский модуль CURA: реанимационная палата-изолятор для инфекционных больных
Медицинский модуль CURA: реанимационная палата-изолятор для инфекционных больных
Фото © Max Tomasinelli. Предоставлено CRA – Carlo Ratti Associati

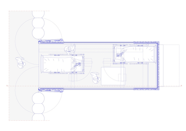
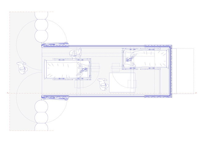
Бюро Карло Ратти во главе команды из дюжины участников, включая подразделения Массачусетского института технологии и Philips, разработало проект модуля для реанимации инфекционных больных на базе 20-футового транспортного контейнера. Это общедоступный «строительный материал», удобный для перевозки на корабле, поездом или грузовиком. Необходимую биоизоляцию обеспечивает внутри более низкое, чем снаружи, давление: модуль соответствует стандартам, разработанным в связи с распространением Covid-19 для больниц КНР.
 
Медицинский модуль CURA: реанимационная палата-изолятор для инфекционных больных
Медицинский модуль CURA: реанимационная палата-изолятор для инфекционных больных
Фото © Max Tomasinelli. Предоставлено CRA – Carlo Ratti Associati

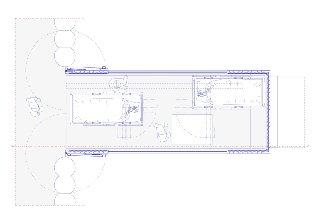
Проект назван CURA, от латинского «лекарство», но также это английская аббревиатура Connected Units for Respiratory Ailments («соединенные блоки для респираторных заболеваний»): контейнеры можно связывать вместе надувными переходами. Если в одном можно разместить двух пациентов с аппаратами искусственной вентиляции легких и капельницами, то из серии модулей получится целая больница более чем на 40 человек. Каждый блок автономен, поэтому может быть установлен где угодно, но CURA также подходит для больниц, где не хватает мест в реанимации: модули можно расставить на автостоянке.
 
Медицинский модуль CURA: реанимационная палата-изолятор для инфекционных больных
Медицинский модуль CURA: реанимационная палата-изолятор для инфекционных больных
Предоставлено CRA – Carlo Ratti Associati

Проект соединяет скорость развертывания палаточных медицинских объектов, которые при этом мало сдерживают распространение инфекции, с надежностью и безопасностью больниц из сборных конструкций, на строительство которых нужно неизмеримо больше времени и денег. CURA подходят не только для борьбы с Covid-19 и могут перемещаться туда, где в них есть потребность.
 
Медицинский модуль CURA: реанимационная палата-изолятор для инфекционных больных
Медицинский модуль CURA: реанимационная палата-изолятор для инфекционных больных
Предоставлено CRA – Carlo Ratti Associati

Вся документация проекта выложена в открытый доступ, к сотрудничеству в его доработке приглашаются все желающие. Пилотный CURA строится сейчас для больницы на севере Италии, деньги на это выделил банк UniCredit.
Медицинский модуль CURA: реанимационная палата-изолятор для инфекционных больных
Медицинский модуль CURA: реанимационная палата-изолятор для инфекционных больных
Предоставлено CRA – Carlo Ratti Associati
Медицинский модуль CURA: реанимационная палата-изолятор для инфекционных больных
Медицинский модуль CURA: реанимационная палата-изолятор для инфекционных больных
Предоставлено CRA – Carlo Ratti Associati
Медицинский модуль CURA: реанимационная палата-изолятор для инфекционных больных
Медицинский модуль CURA: реанимационная палата-изолятор для инфекционных больных
Предоставлено CRA – Carlo Ratti Associati
Медицинский модуль CURA: реанимационная палата-изолятор для инфекционных больных
Медицинский модуль CURA: реанимационная палата-изолятор для инфекционных больных
Предоставлено CRA – Carlo Ratti Associati
Медицинский модуль CURA: реанимационная палата-изолятор для инфекционных больных
Медицинский модуль CURA: реанимационная палата-изолятор для инфекционных больных
Предоставлено CRA – Carlo Ratti Associati
Медицинский модуль CURA: реанимационная палата-изолятор для инфекционных больных
Медицинский модуль CURA: реанимационная палата-изолятор для инфекционных больных
Предоставлено CRA – Carlo Ratti Associati