Размещено на портале Архи.ру (www.archi.ru)

20.08.2020

От фундамента до ложки

Олег Гишар
Объект:
Дом в Подмосковье
Адрес:
Россия, Москва.
Архитектор:
Роман Леонидов
Мастерская:
АБ Романа Леонидова
Авторский коллектив:
Ольга Буденная, Ксения Волкова, Надежда Фоменко, Роман Леонидов

Ориентируясь на вкус друзей-заказчиков, архитекторы Ольга Буденная и Роман Леонидов задумали и осуществили дом в ближнем Подмосковье как игру в ар-нуво. А заодно обогатили типологию частного жилья современными функциями гаражного лофта и детской художественной студии-мастерской.

Обычно Ольга Буденная и Роман Леонидов, архитектурный и семейный дуэт, проектируют дома в стилистике модернизма. Но для близких знакомых они сделали исключение. Заказчики дома – очень открытые люди, увлекающиеся изобразительным искусством и театром. Хозяйка сама занимается творчеством и влюблена в ар-нуво. Стиль дома – пожелание заказчицы, она участвовала в проектировании как соавтор-декоратор, и, принимая во внимание эти конструктивные творческие отношения, архитекторы решили «сыграть в ар-нуво». Именно так они определили творческую задачу – игра в ар-нуво. В доме нет буквальных цитат, но есть характерные узнаваемые мотивы: арочные окна, витражи с полукруглыми «сплюснутыми» завершениями, изогнутая крыша и декоративные керамические элементы фасада. Интересно, что наряду с фигурными витражами применяются и простые прямоугольные окна с сетчатой расстекловкой «фабричного модерна». Красный кирпич с белыми штукатурными деталями – не самое частое решение для исторических ар-нувошных зданий, но встречается, скажем, в Риге и Харькове; ну, или у Шехтеля в Ермолаевском переулке. Иными словами, при создании образа дома модерн был для архитекторов не догмой, а точкой отсчета.

Дом в Подмосковье
Дом в Подмосковье
Фотография © Софья Леонидова

Проектирование складывалось из нескольких этапов. Ключевым событием стало то, что заказчики вдохновились интерьером виллы Керилос (1902), которая расположена на Ривьере, в городке Больё-сюр-Мер под Ниццей. Эту виллу архитектор Э. Понтремоли построил для археолога и мецената Т. Рейнаха, соединив древнегреческую стилистику со стилем модерн. Впечатление было столь захватывающим, что некоторые элементы решили процитировать в своем доме, такие как люстру в холле или некоторые мотивы в декорации ванных комнат. Такое прочтение ар-нуво и способ введения в него классических деталей были взяты архитекторами на вооружение.

Разделение творческих обязанностей было традиционным: Роман Леонидов занимался объемной композицией и структурой дома. Два высоких объема, соединенных одноэтажным переходом, возникли не случайно. Сначала дом предназначался для двух друзей и партнеров по бизнесу и их семей. Потом планы изменились, в результате дом занимает одна семья, но корпуса, каждый со своим характером и формообразованием, решили сохранить. Тем более что асимметрия объема – характерная черта стиля модерн.
Дом в Подмосковье
Дом в Подмосковье
Фотография © Софья Леонидова

Теперь структура с двумя приподнятыми корпусами нашла себе новое функциональное объяснение. Теперь дом с ар-нувошной крышей-шляпой занимают покои родителей, а корпус пониже, с более простым завершением, – детская половина. Высокий объем «со шляпой» помещен в центр композиции, справа от него просторное помещение гаража, на крыше которого устроили открытую террасу с кованой оградой и зелеными насаждениями.
Дом в Подмосковье Фотография © Софья Леонидова
Дом в Подмосковье
Фотография © Софья Леонидова
Дом в Подмосковье Фотография © Софья Леонидова
Дом в Подмосковье
Фотография © Софья Леонидова

Общественное пространство первого этажа решено в виде классической анфилады с поперечными ответвлениями. Из прихожей, расположенной на центральной оси дома, посетитель попадает в центральный холл с лестницей с коваными перилами и той самой люстрой – аналогом люстры с французской виллы Керилос, выполненной мастерами из Санкт-Петербурга.
Дом в Подмосковье Фотография © Софья Леонидова
Дом в Подмосковье
Фотография © Софья Леонидова
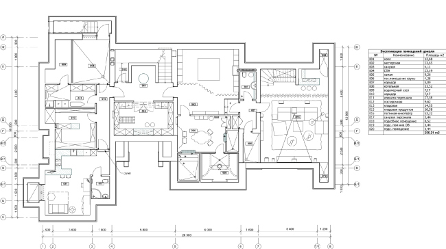
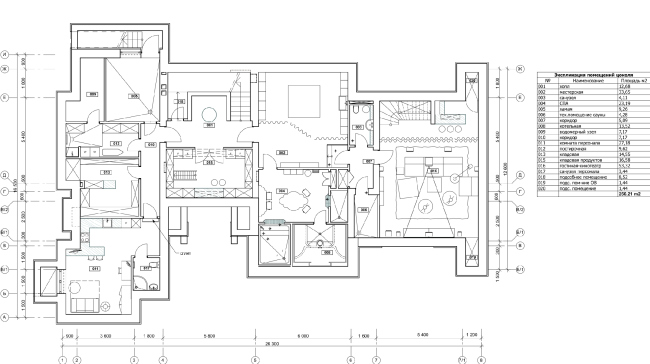
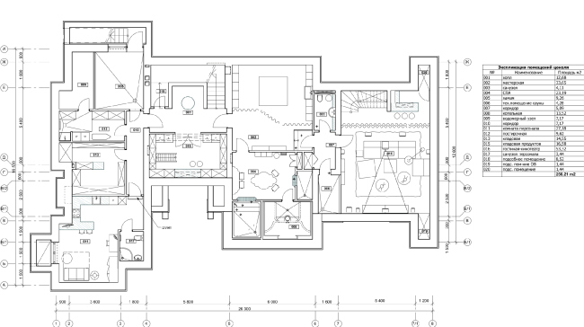
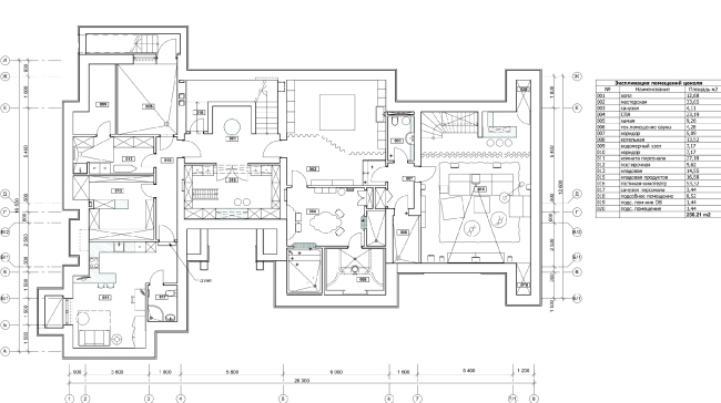
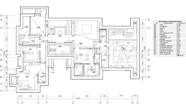
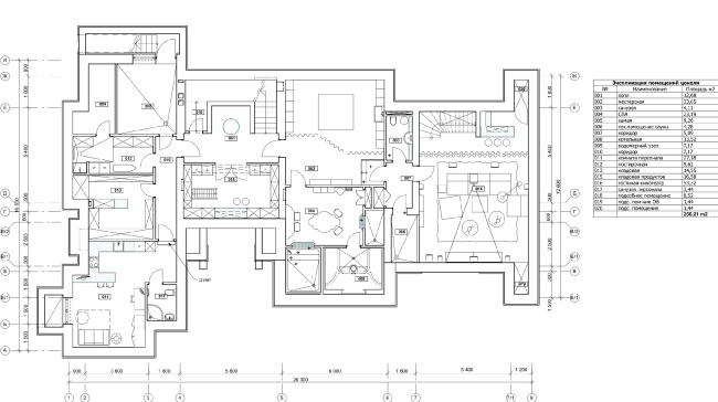
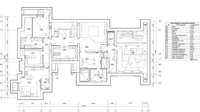
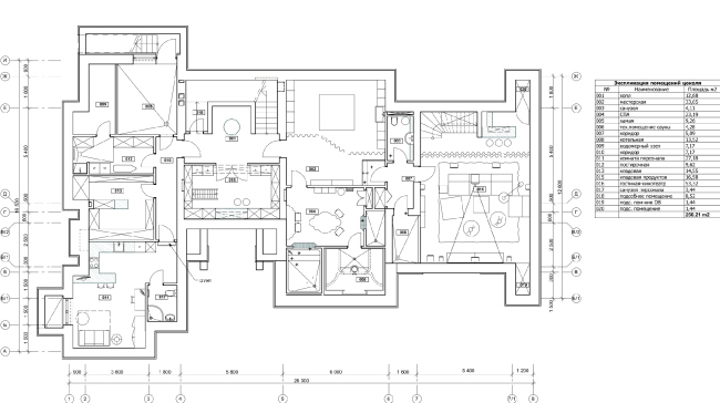
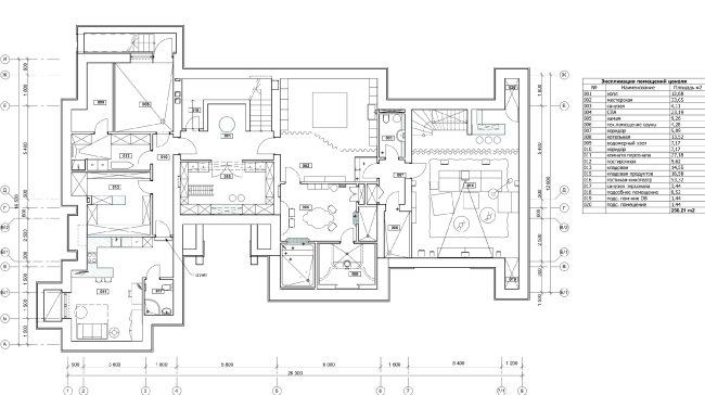
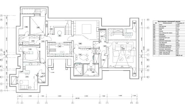
План 1-го этажа с расстановкой мебели. Дом в Подмосковье © Архитектурное бюро Романа Леонидова
План 1-го этажа с расстановкой мебели. Дом в Подмосковье
© Архитектурное бюро Романа Леонидова
Дом в Подмосковье Фотография © Софья Леонидова
Дом в Подмосковье
Фотография © Софья Леонидова
Дом в Подмосковье Фотография © Софья Леонидова
Дом в Подмосковье
Фотография © Софья Леонидова

Налево от холла расположена парадная зона, состоящая из перетекающих друг в друга помещений: кухня, затем столовая, дальше – каминная, играющая роль основной гостиной, и гостиная-зимний сад, представляющая собой эркер со сплошным остеклением, украшенный тропическими растениями.
Дом в Подмосковье Фотография © Софья Леонидова
Дом в Подмосковье
Фотография © Софья Леонидова
Дом в Подмосковье Фотография © Софья Леонидова
Дом в Подмосковье
Фотография © Софья Леонидова

Направо от холла – кабинет хозяйки с библиотекой, рабочим столом и диванной зоной, которую украсил авторский журнальный столик, выполненный краснодеревщиком из Подмосковья по эскизам авторов. Из кабинета можно выйти в гараж-лофт. Это особенное пространство с высокими потолками площадью 60 м2, одна из стен которого прорезана семью высокими окнами с той самой фабричной расстекловкой, как будто это старый цех. В строгом смысле слова это не только гараж, но и атмосферный лофт, который может использоваться для приема гостей и вечеринок.
Дом в Подмосковье Фотография © Софья Леонидова
Дом в Подмосковье
Фотография © Софья Леонидова
Дом в Подмосковье Фотография © Софья Леонидова
Дом в Подмосковье
Фотография © Софья Леонидова
Дом в Подмосковье Фотография © Софья Леонидова
Дом в Подмосковье
Фотография © Софья Леонидова

Из гаража-лофта спускаемся в цокольный этаж, где попадаем в домашний кинотеатр и далее – в мастерскую. Она оборудована большим рабочим столом, за которым собираются дети и взрослые для занятий изобразительным и прикладным искусством. Любопытна логистическая цепочка творческих пространств: кабинет хозяйки – лофт – кинотеатр – мастерская.
План цокольного этажа. Дом в Подмосковье
План цокольного этажа. Дом в Подмосковье
© Архитектурное бюро Романа Леонидова

На втором и антресольном этажах находятся частные помещения членов семьи: родительский блок и две детских. Они все состоят из двух уровней: на нижнем располагаются малые гостиные и рабочие зоны, на антресолях – спальни, в две из них ведут винтовые лестницы. Родительская гостиная имеет выход на большую террасу с садом, который образован аллеей шарообразно подстриженных кленов, высаженных в запроектированный на кровле «вазон», позволяющий выращивать крупноразмерные деревья. Эта деталь ассоциируется с «висячим садом» и дополняет архитектурную композицию дома. Свой балкон есть и у одной из детских гостиных, а большая крытая лоджия, расположенная по центру дома, между двумя основными объемами, объединяет их и визуально, и функционально. В детских комнатах активно применяется цвет: они окрашены в зеленый и желтый, а стены хозяйской спальни украшены панелями с декоративными авторскими росписями. Сводчатые потолки выполнены из дерева.
Дом в Подмосковье Фотография © Софья Леонидова
Дом в Подмосковье
Фотография © Софья Леонидова
Дом в Подмосковье © Архитектурное бюро Романа Леонидова
Дом в Подмосковье
© Архитектурное бюро Романа Леонидова
План 2-го этажа с расстановкой мебели. Дом в Подмосковье © Архитектурное бюро Романа Леонидова
План 2-го этажа с расстановкой мебели. Дом в Подмосковье
© Архитектурное бюро Романа Леонидова
План антресольного этажа. Дом в Подмосковье © Архитектурное бюро Романа Леонидова
План антресольного этажа. Дом в Подмосковье
© Архитектурное бюро Романа Леонидова

Ванные комнаты и санузлы, как и многое другое, вдохновлены интерьерами виллы Керилос: они оформлены изысканной мозаикой с рисунком «рыбьей чешуи», трафаретными росписями, насыщенными цветами и эстетской фурнитурой. В ванных, как и во всем доме, множество деталей выполнены художниками на заказ.
Дом в Подмосковье Фотография © Софья Леонидова
Дом в Подмосковье
Фотография © Софья Леонидова
Дом в Подмосковье Фотография © Софья Леонидова
Дом в Подмосковье
Фотография © Софья Леонидова
Дом в Подмосковье Фотография © Софья Леонидова
Дом в Подмосковье
Фотография © Софья Леонидова
Дом в Подмосковье Фотография © Софья Леонидова
Дом в Подмосковье
Фотография © Софья Леонидова

Как уже говорилось, хозяйка активно участвовала в творческом процессе, предлагая идеи, стимулируя интересные решения и подбирая декор: скульптуры и антикварные вазы, люстры и дверные ручки. Многое из этого собрано по европейским антикварным салонам, другое сделано на заказ по аналогам предметов того времени. Благодаря хозяйке в интерьере появились романтические детали вроде внутренних балкончиков на фигурных авторских кронштейнах и хамама с марокканской мозаикой.
Дом в Подмосковье Фотография © Софья Леонидова
Дом в Подмосковье
Фотография © Софья Леонидова
Дом в Подмосковье Фотография © Софья Леонидова
Дом в Подмосковье
Фотография © Софья Леонидова
Дом в Подмосковье Фотография © Софья Леонидова
Дом в Подмосковье
Фотография © Софья Леонидова

Современные заказчики многих стран, например России и США, хорошо относятся к ар-нуво. Позволю себе предположить, почему: модерн из ближайших к современности стилей – самый эмоциональный. У архитекторов отношение более сложное. Отвечая на вопрос о причинах популярности стиля ар-нуво, Ольга Буденная и Роман Леонидов подчеркнули близкие каждому из них черты. Ольга Буденная сказала, что модерн любят за очень красивые вещи, за возможность их декорировать и тонко подавать и в то же время за соответствие современности и подчеркнутую функциональность. Роман Леонидов считает, что «основная особенность ар-нуво – тотальный контроль автора над всей жизнью дома: от фундамента до чайной ложки. Эта тенденция продолжается и в ар-деко. И Макинтош, и Райт занимались всем: и архитектурой, и дизайном мебели и предметов». В данном конкретном случае можно сказать, что тотальный контроль осуществляли авторы: Ольга Буденная, Роман Леонидов, Ксения Волкова и хозяйка дома Надежда Фоменко. Результат получился эмоциональным, соответствующим образовательно-творческому пафосу и общественному темпераменту владельцев.