Размещено на портале Архи.ру (www.archi.ru)

14.04.2020

Терапевтический кораблик

Нина Фролова
Объект:
Дневной психиатрический стационар L′Adamant
Адрес:
Франция, None, Париж.
Мастерская:
Seine Design

Дневной психиатрический стационар L’Adamant по проекту Seine Design пришвартован как баржа у набережной Сены на востоке Парижа.

Архитекторы Seine Design – специалисты по плавучим объектам, расположенным, как следует из названия их бюро, на Сене, но и в их портфолио дневной психиатрический стационар L’Adamant выделяется как очень необычный. Его открыли летом 2010-го, а в прошлом году – отреставрировали: медицинскому центру, как и любому плавсредству, нужен регулярный ремонт.
 

Дневной психиатрический стационар L′Adamant
Дневной психиатрический стационар L′Adamant
Фото © Sergio Grazia

L’Adamant пришвартован к восточному берегу Сены у моста Шарля де Голля, соединяющего большие вокзалы – Лионский и Аустерлиц. Заказчиком выступила государственная психиатрическая больница Шарантон (Эскироль), ныне вошедшая в состав больничного комплекса Сен-Морис. Задачей дневного стационара на воде стало максимально уменьшить время пребывания пациентов в стенах стационарах обычного.
 
Дневной психиатрический стационар L′Adamant
Дневной психиатрический стационар L′Adamant
Фото © Sergio Grazia

На кораблике были обустроены похожие на мастерские художников студии для разного рода терапии, включая не только классическую психиатрическую и психологическую помощь, но и специальные занятия рисованием, керамикой, музыкой и т.д. Пациентам помогают не терять связи с обществом и собственной самостоятельности, но многим для этого необходимо регулярно посещать L’Adamant.
 
Дневной психиатрический стационар L′Adamant
Дневной психиатрический стационар L′Adamant
Фото © Sergio Grazia

Поэтому сделать это место приятным, привлекательным было очень важным для успеха этого учреждения. Архитекторы советовались со специалистами и «пользователями» стационара при проектировании. В результате получилось открытое внешне и изнутри сооружение: его основной ярус, корма и нос напоминают огромную веранду, обращенную к городу и Сене. Даже если начался ливень, необязательно закрывать деревянные ставни: авторы называют свой проект «метеорологическим», подчеркивающим красоту любой погоды и вызванных ею перемен в речном пейзаже.
 
Дневной психиатрический стационар L′Adamant
Дневной психиатрический стационар L′Adamant
Фото © Sergio Grazia

Большое внимание было уделено материалам и их фактуре. Металлическую основу стационара-баржи не стали прятать, открыв в интерьер все швы и технические пометки сварщиков. Но главную роль играет дерево, создающее светлую и теплую атмосферу, как изнутри, так и снаружи.
 
Дневной психиатрический стационар L′Adamant
Дневной психиатрический стационар L′Adamant
Фото © Sergio Grazia

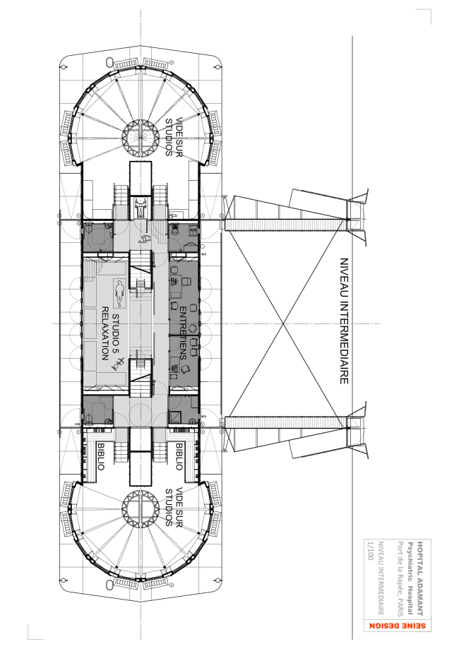
На 600 м2 расположены зоны для терапии, собраний и общения, кабинеты специалистов.
Дневной психиатрический стационар L′Adamant
Дневной психиатрический стационар L′Adamant
Фото © Sergio Grazia
Дневной психиатрический стационар L′Adamant
Дневной психиатрический стационар L′Adamant
Фото © Sergio Grazia
Дневной психиатрический стационар L′Adamant
Дневной психиатрический стационар L′Adamant
Фото © Sergio Grazia
Дневной психиатрический стационар L′Adamant
Дневной психиатрический стационар L′Adamant
© Seine Design
Дневной психиатрический стационар L′Adamant
Дневной психиатрический стационар L′Adamant
© Seine Design
Дневной психиатрический стационар L′Adamant
Дневной психиатрический стационар L′Adamant
© Seine Design
Дневной психиатрический стационар L′Adamant
Дневной психиатрический стационар L′Adamant
© Seine Design
Дневной психиатрический стационар L′Adamant
Дневной психиатрический стационар L′Adamant
© Seine Design
Дневной психиатрический стационар L′Adamant
Дневной психиатрический стационар L′Adamant
© Seine Design