Размещено на портале Архи.ру (www.archi.ru)

07.04.2020

Зеркальная иллюзия на работе

Нина Фролова
Объект:
Офисное здание The Illusion
Адрес:
Южная Корея, None, Сеул.
Мастерская:
OBBA

Атриум офисного здания в центре Сеула превращен архитекторами OBBA в визуальный аттракцион, чтобы спасти сотрудников от рутины. При этом эффективность использования площадей достигает максимума, разрешенного СНиПами.

Архитекторы OBBA при разработке этого проекта искали способ разрушить монотонность офисной призмы, типичной для деловых районов всего мира. Фасад, офисы, общественные зоны похожи у нее на миллионы других построек, и оттого работающим там людям их однообразный труд кажется еще однообразной.
 

Офисное здание The Illusion
Офисное здание The Illusion
Фото © Kyungsub Shin

В итоге архитекторы OBBA предложили офисным сотрудникам новое впечатление в виде открытого атриума, где зеркальные грани эффектно контрастируют с окрашенным в массе темным бетоном.
 
Офисное здание The Illusion
Офисное здание The Illusion
Фото © Kyungsub Shin

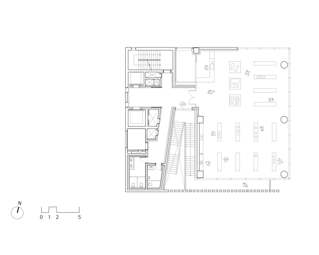
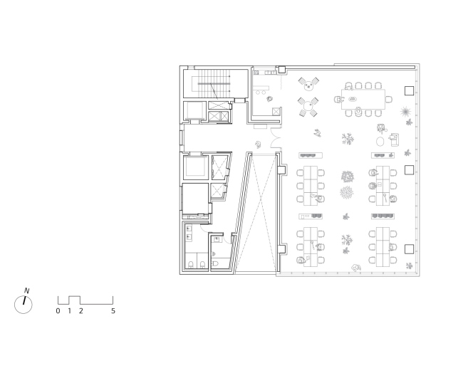
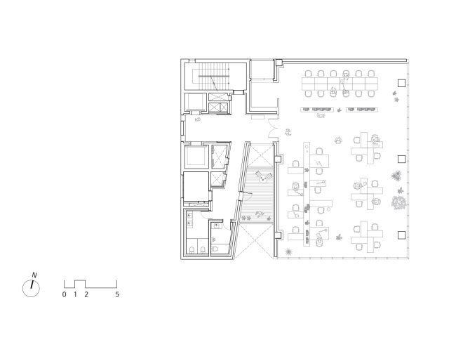
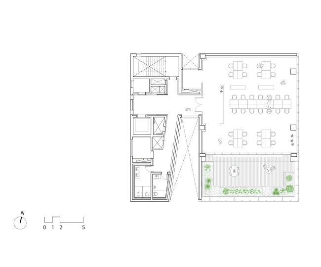
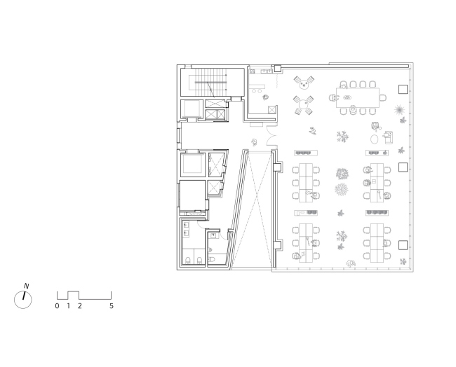
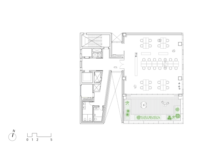
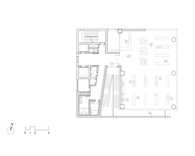
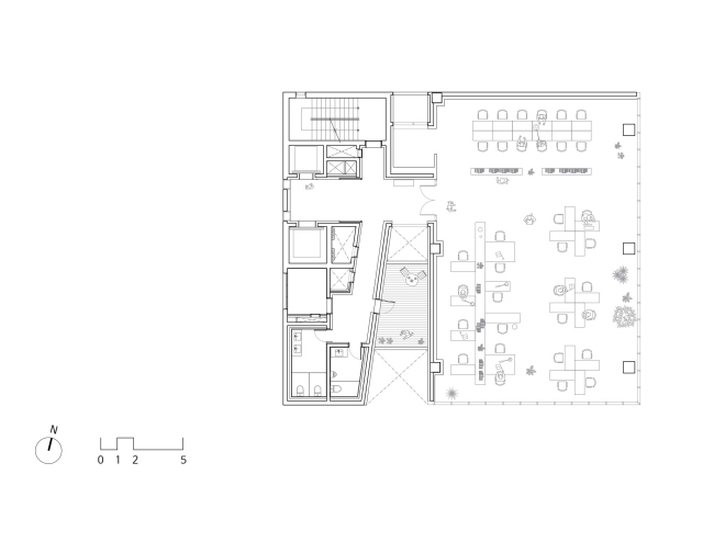
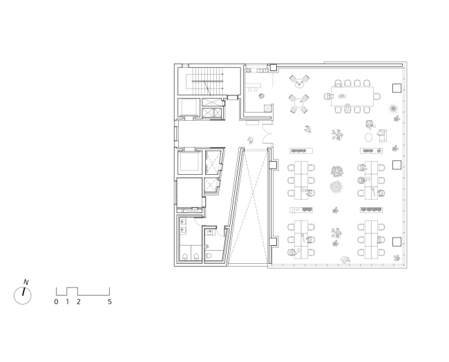
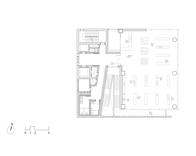
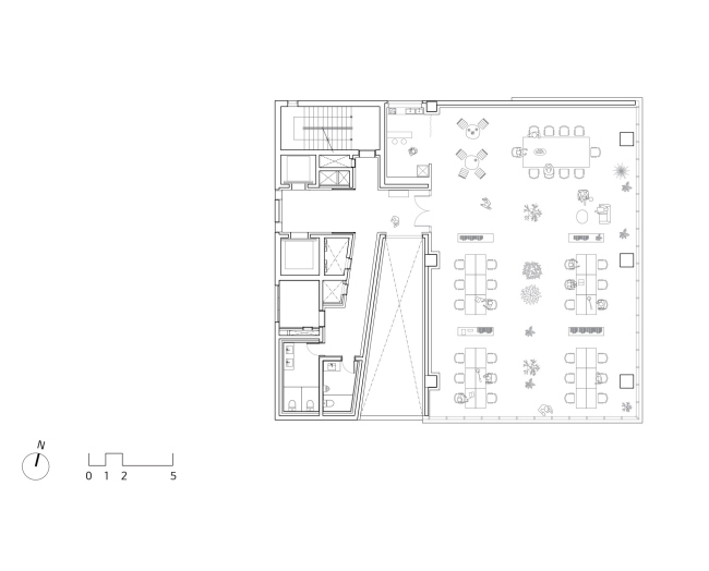
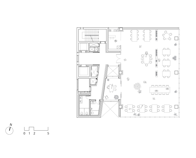
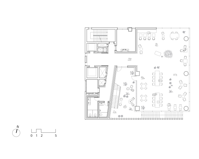
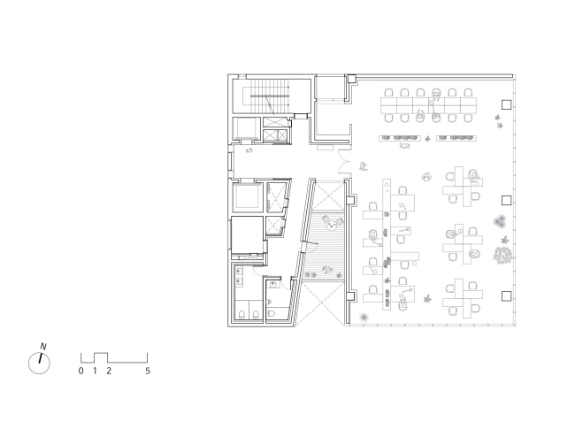
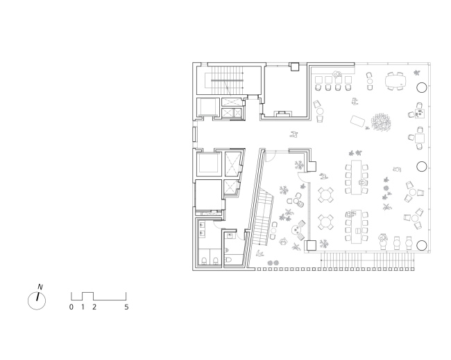
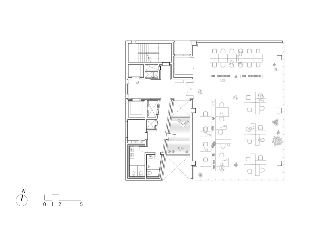
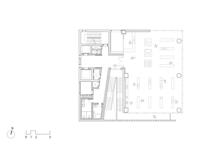
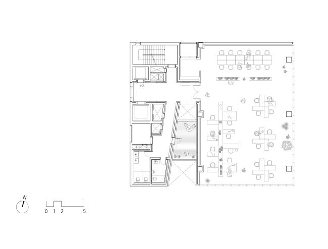
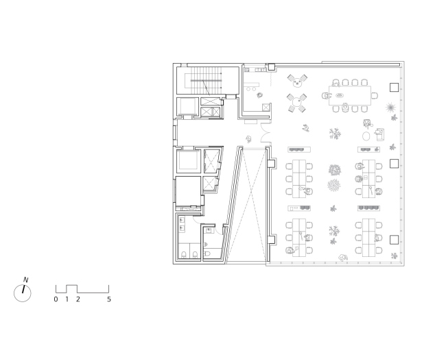
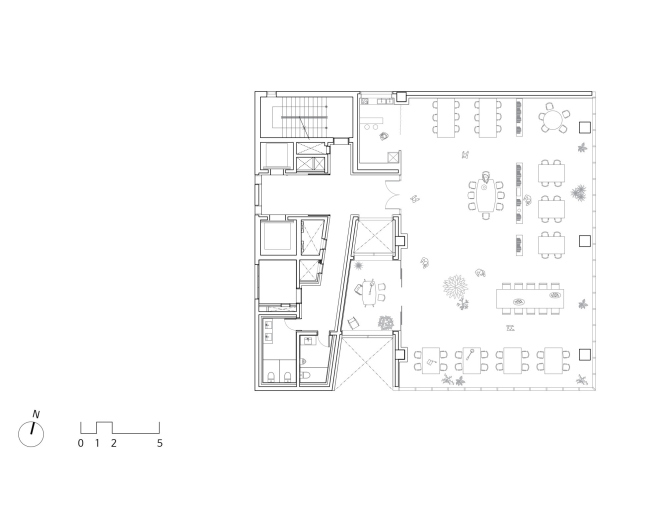
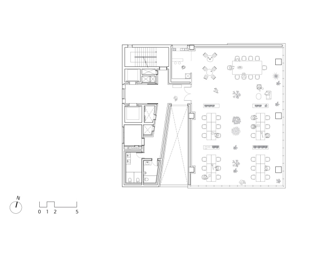
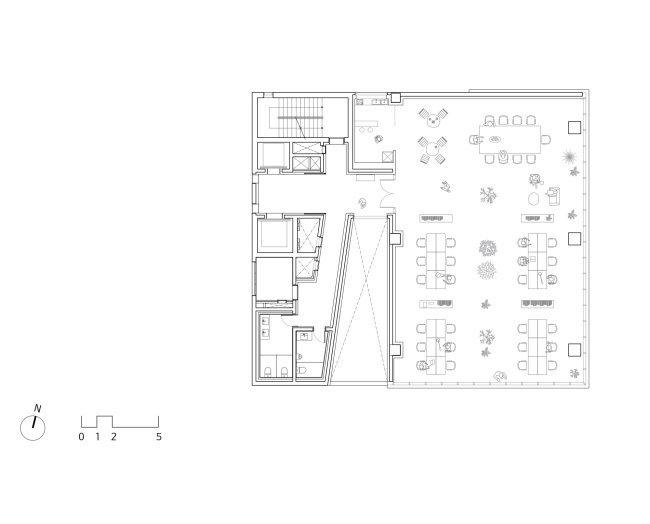
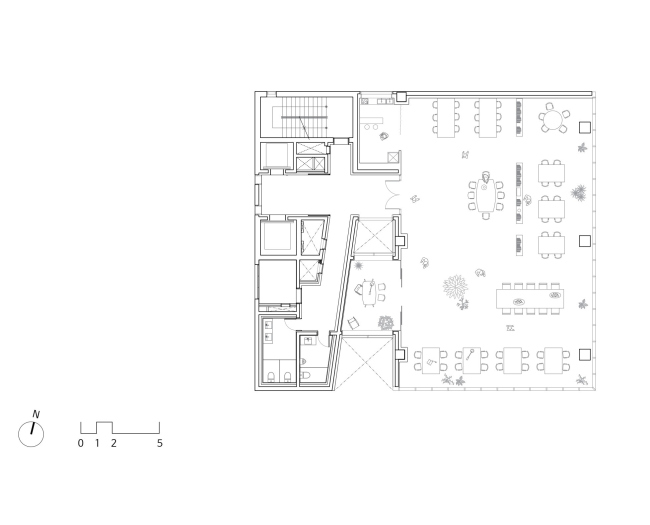
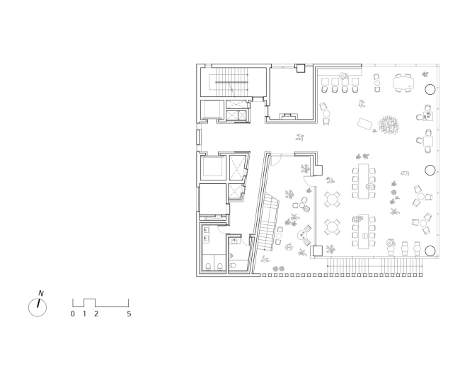
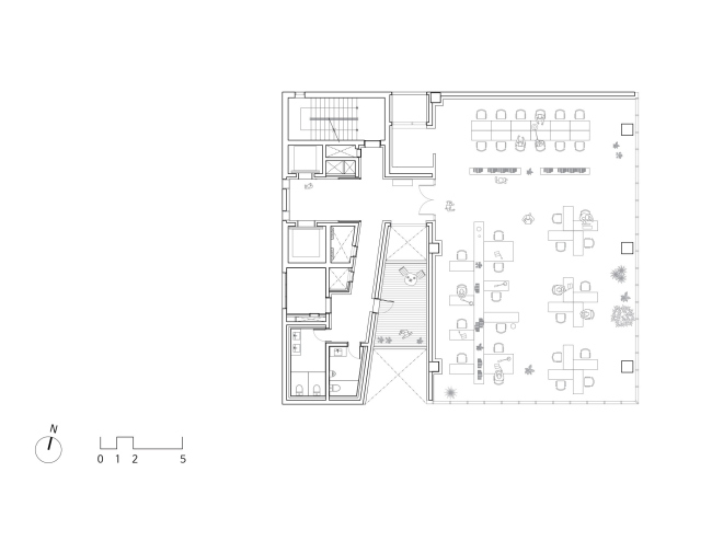
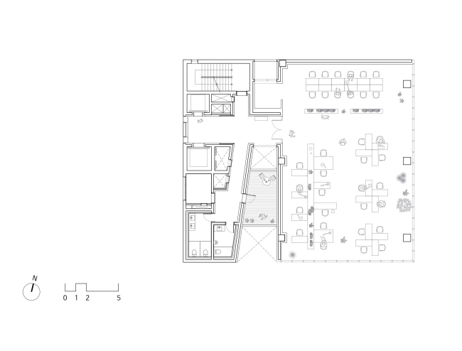
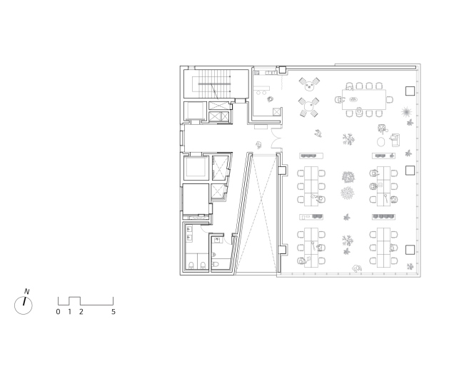
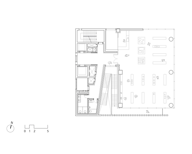
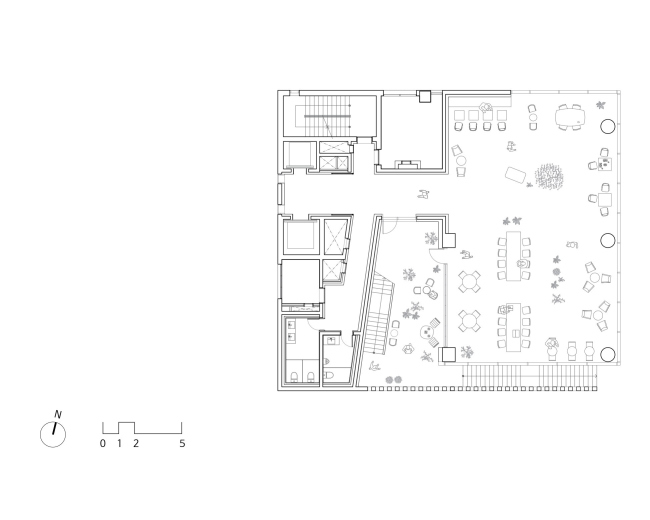
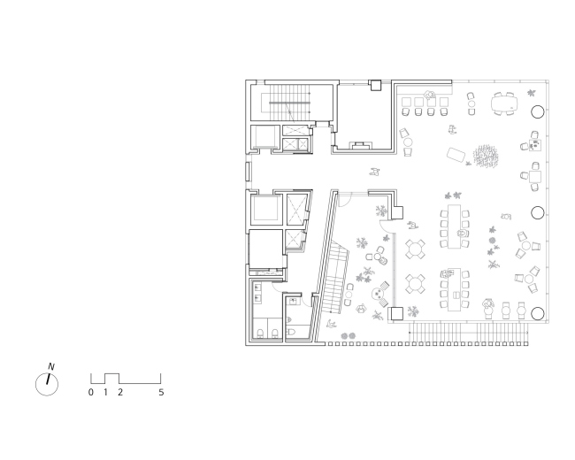
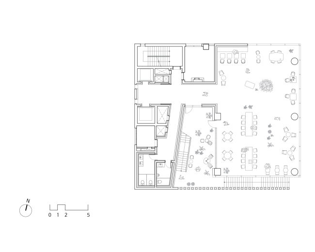
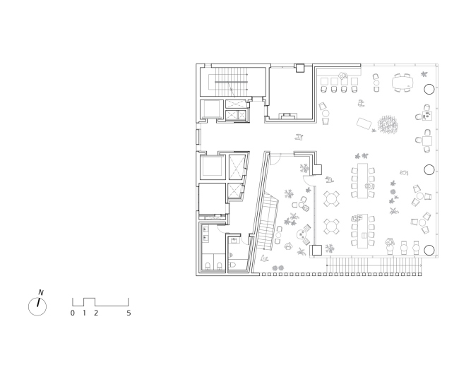
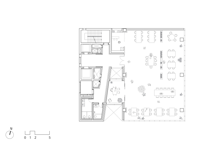
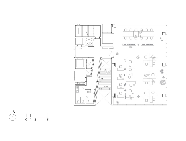
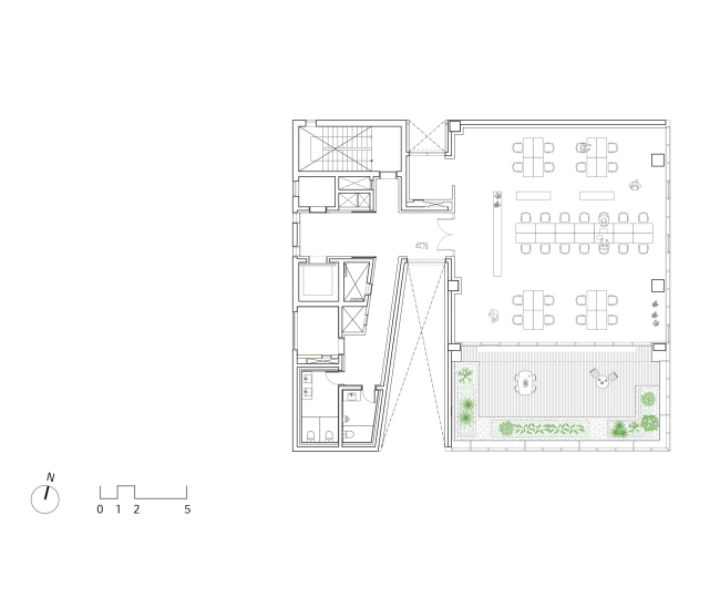
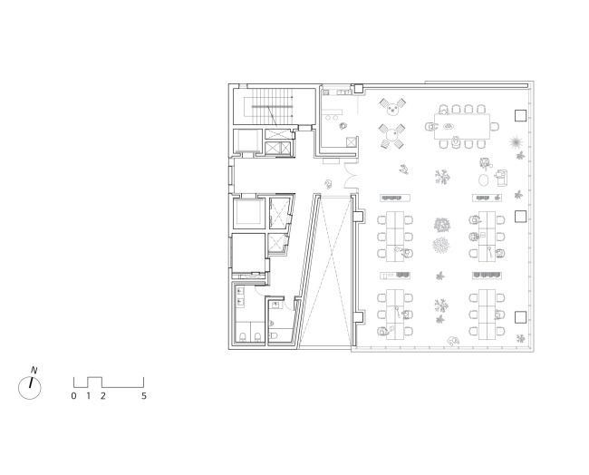
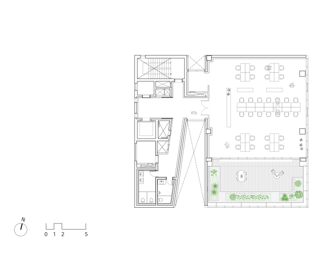
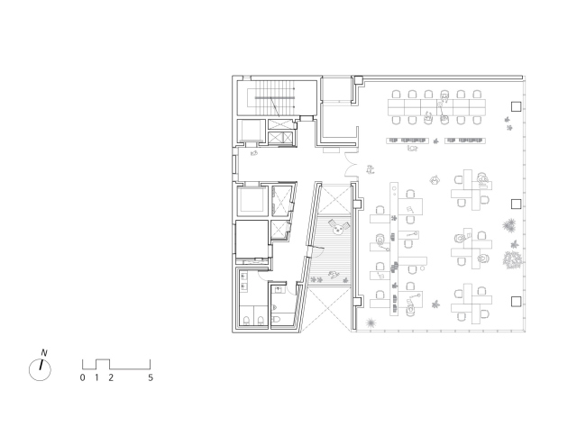
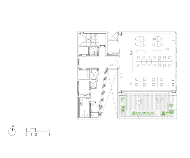
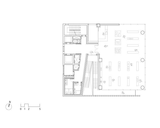
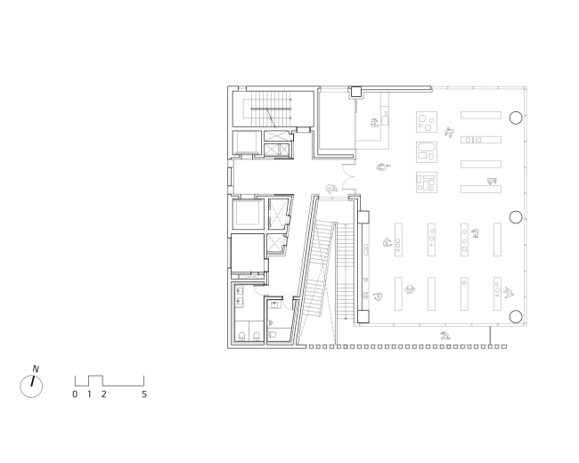
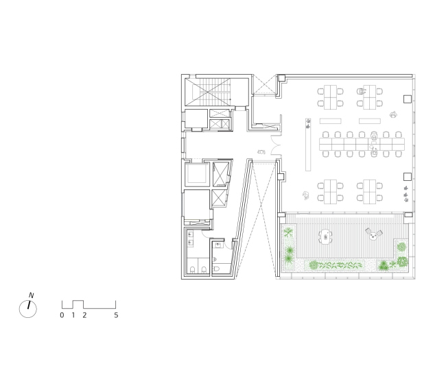
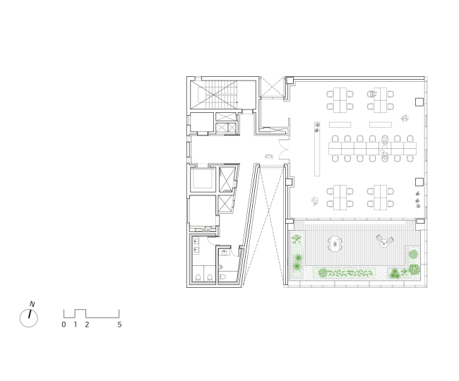
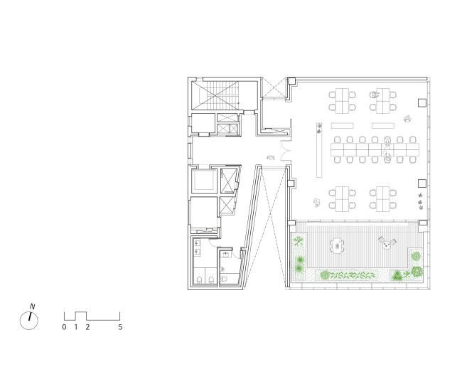
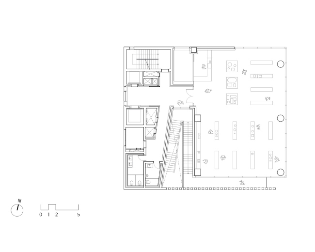
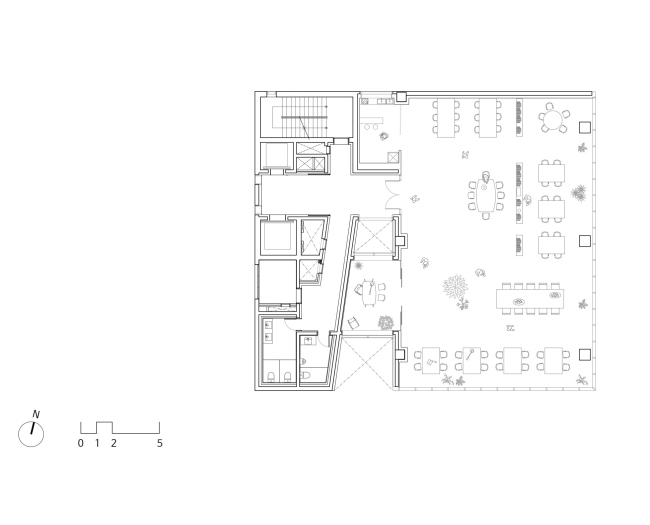
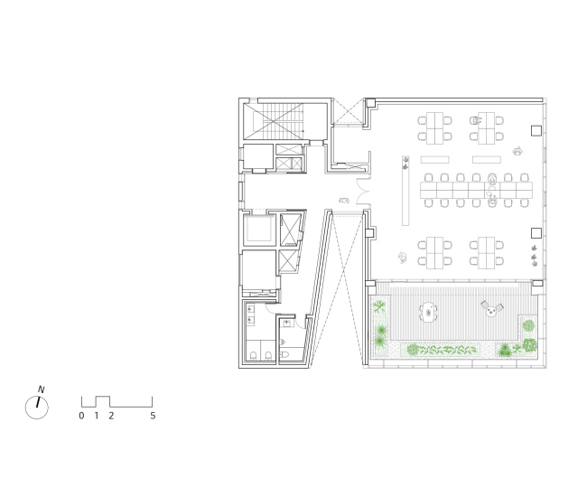
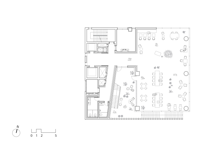
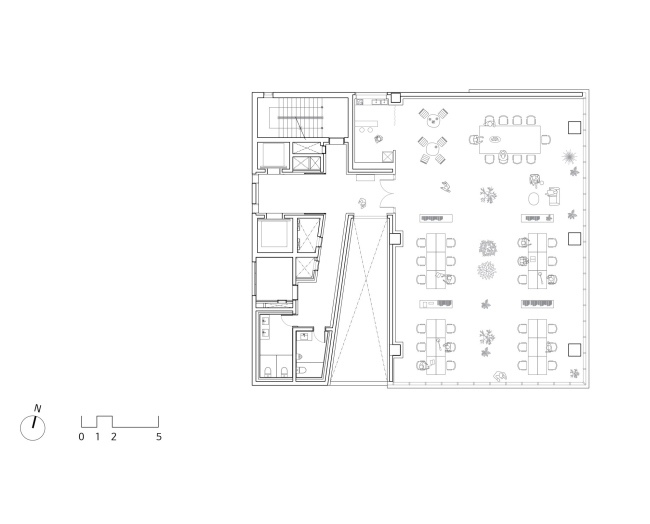
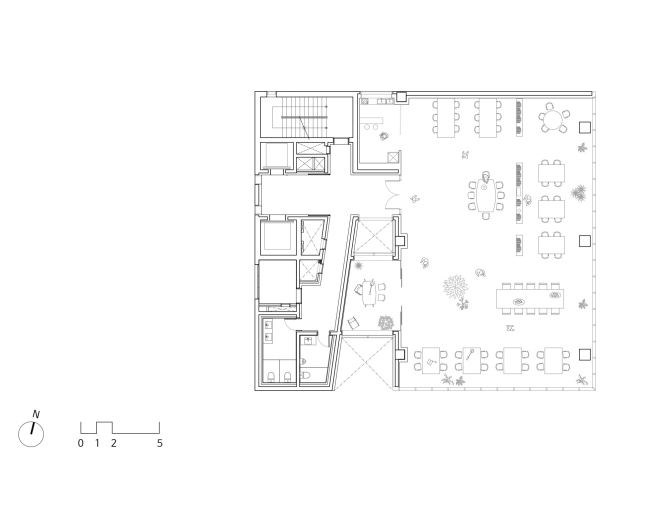
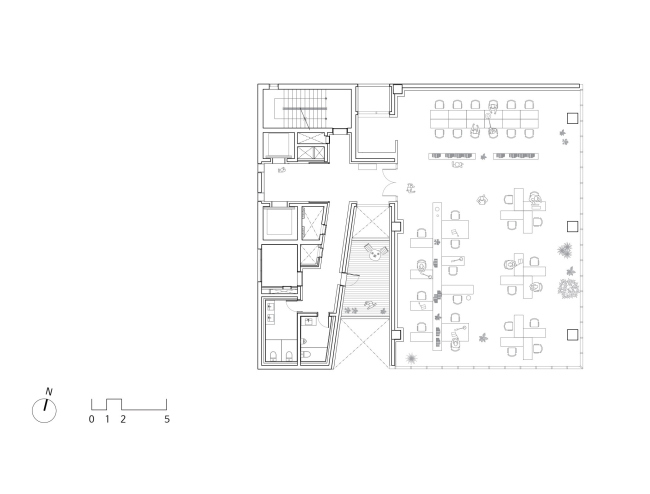
Нижние четыре этажа их здания The Illusion заняты кафе и ресторанами, выше помещены одиннадцать ярусов офисов. Начиная с пятого этажа здание превращается в букву Н, только вертикальные палочки на самом деле – пластины, в одной из которых размещены рабочие зоны, в другой – лестницы, лифты, санузлы и т.д. Соединены они между собой коротким коридором, также на некоторых этажах есть дополнительные мостики.
 
Офисное здание The Illusion
Офисное здание The Illusion
Фото © Kyungsub Shin

Атриум и две образующие его пластины видны и среди плотной застройки центра Сеула, привлекая внимание к зданию. При этом архитекторы не сделали проект менее выгодным для заказчика: пятно застройки занимает 59,96% участка при разрешенном максимуме в 60%, а коэффициент полезной площади составляет 778,65% («потолок» – 800%).
Офисное здание The Illusion
Офисное здание The Illusion
Фото © Kyungsub Shin
Офисное здание The Illusion
Офисное здание The Illusion
Фото © Kyungsub Shin
Офисное здание The Illusion
Офисное здание The Illusion
Фото © Kyungsub Shin
Офисное здание The Illusion
Офисное здание The Illusion
Фото © Kyungsub Shin
Офисное здание The Illusion
Офисное здание The Illusion
Фото © Kyungsub Shin
Офисное здание The Illusion
Офисное здание The Illusion
Фото © Kyungsub Shin
Офисное здание The Illusion
Офисное здание The Illusion
Фото © Kyungsub Shin
Офисное здание The Illusion
Офисное здание The Illusion
Фото © Kyungsub Shin
Офисное здание The Illusion
Офисное здание The Illusion
Фото © Kyungsub Shin
Офисное здание The Illusion
Офисное здание The Illusion
Фото © Kyungsub Shin
Офисное здание The Illusion
Офисное здание The Illusion
Фото © Kyungsub Shin
Офисное здание The Illusion
Офисное здание The Illusion
Фото © Kyungsub Shin
Офисное здание The Illusion
Офисное здание The Illusion
Фото © Kyungsub Shin
Офисное здание The Illusion
Офисное здание The Illusion
Фото © Kyungsub Shin
Офисное здание The Illusion
Офисное здание The Illusion
© OBBA
Офисное здание The Illusion
Офисное здание The Illusion
© OBBA
Офисное здание The Illusion
Офисное здание The Illusion
© OBBA
Офисное здание The Illusion
Офисное здание The Illusion
© OBBA
Офисное здание The Illusion
Офисное здание The Illusion
© OBBA
Офисное здание The Illusion
Офисное здание The Illusion
© OBBA
Офисное здание The Illusion
Офисное здание The Illusion
© OBBA
Офисное здание The Illusion
Офисное здание The Illusion
© OBBA
Офисное здание The Illusion
Офисное здание The Illusion
© OBBA