Размещено на портале Архи.ру (www.archi.ru)

02.04.2020

Восемь с половиной

Нина Фролова
Объект:
Деревянная жилая башня Kajstaden
Адрес:
Швеция, None, Вестерос.
Мастерская:
C. F. Møller

Самое высокое деревянное здание Швеции – жилая башня в 8,5 этажей по проекту C.F. Møller в городе Вестерос.

В башне – на самом деле восемь с половиной этажей: если считать повышенный первый и двухсветный последний. Она построена из поперечно-клееной древесины (cross-laminated timber) с небольшим добавлением клееного бруса (glulam).
 

Деревянная жилая башня Kajstaden
Деревянная жилая башня Kajstaden
Фото © Nikolaj Jakobsen

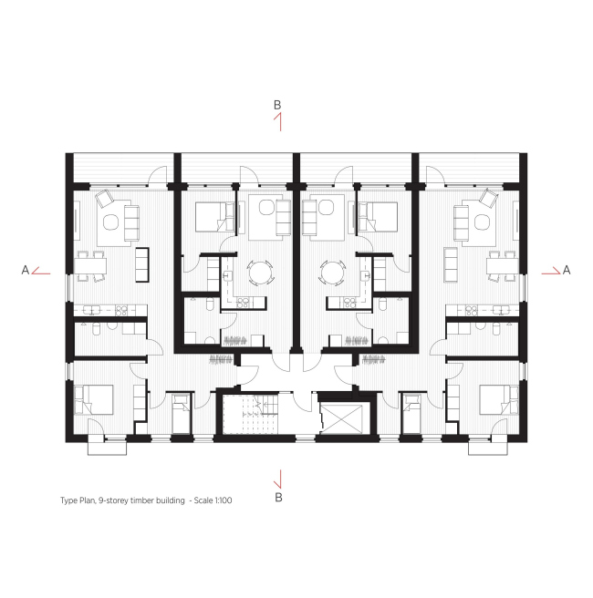
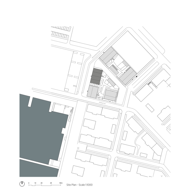
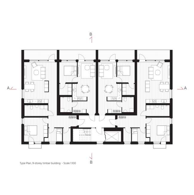
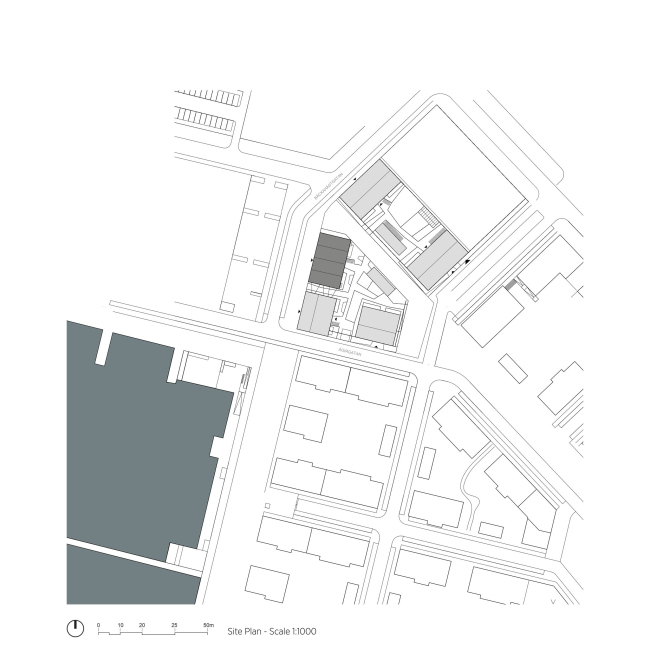
Новая постройка – часть жилого комплекса Kajstaden из пяти корпусов, где в общей сложности – 99 квартир. Он возведен на берегу озера Меларен, недалеко от центра Вестероса, в рамках превращения бывшей промзоны в район смешанной застройки. Kajstaden весь – деревянный и спроектирован C.F. Møller. Его площадь – 7500 м2, собственно башни – 2400 м2.
 
Деревянная жилая башня Kajstaden
Деревянная жилая башня Kajstaden
Фото © Nikolaj Jakobsen

Датские архитекторы C.F. Møller с большой энергией занимаются темой деревянных сооружений: сейчас на стадии строительства 100 000 м2 таких их проектов в Швеции и Великобритании. Они подчеркивают, что эти здания оставляют гораздо меньший углеродный след как при производстве (конечно, при эко-сертифицированной вырубке), так и при доставке на стройплощадку (дерево легче других стройматериалов). В природе живые деревья поглощают CO2, а потом, при гниении, отдают его обратно в атмосферу, а деревянное здание так и остается хранилищем этого соединения, тем более что этот материал можно использовать повторно.
 
Деревянная жилая башня Kajstaden
Деревянная жилая башня Kajstaden
Фото © Nikolaj Jakobsen






Так, в башне Kajstaden использованы крепления на винтах, то есть ее легко можно будет разобрать. Еще достоинство – легкость использования станков с цифровым управлением, и как следствие – высокая точность в производстве деталей. В результате удалось добиться практически герметичной изоляции постройки (то есть ее энергоэффективности) без использования дополнительных материалов.
 
Деревянная жилая башня Kajstaden
Деревянная жилая башня Kajstaden
Фото © Nikolaj Jakobsen

Строительные площадки у таких зданий чище, там меньше шума, главное – беречь материал от сырости. В случае Kajstaden каркас каждого этажа площадью в четыре квартиры команда из четырех человек собирала за три дня: монтаж таких построек всегда идет быстро.
 
Деревянная жилая башня Kajstaden Фото © Nikolaj Jakobsen
Деревянная жилая башня Kajstaden
Фото © Nikolaj Jakobsen
Деревянная жилая башня Kajstaden Фото © Nikolaj Jakobsen
Деревянная жилая башня Kajstaden
Фото © Nikolaj Jakobsen
Деревянная жилая башня Kajstaden Фото © Nikolaj Jakobsen
Деревянная жилая башня Kajstaden
Фото © Nikolaj Jakobsen
Деревянная жилая башня Kajstaden Фото © Nikolaj Jakobsen
Деревянная жилая башня Kajstaden
Фото © Nikolaj Jakobsen
Деревянная жилая башня Kajstaden Фото © Nikolaj Jakobsen
Деревянная жилая башня Kajstaden
Фото © Nikolaj Jakobsen
Деревянная жилая башня Kajstaden Фото © Nikolaj Jakobsen
Деревянная жилая башня Kajstaden
Фото © Nikolaj Jakobsen

В башне все, от каркаса и лестнично-лифтовых узлов до балконов, сделано из поперечно-клееной древесины. В результате, ее след из CO2 за время строительства и эксплуатации – на 550 тонн меньший, чем аналогичного сооружения из бетона.
Деревянная жилая башня Kajstaden
Деревянная жилая башня Kajstaden
Фото © Nikolaj Jakobsen
Деревянная жилая башня Kajstaden
Деревянная жилая башня Kajstaden
Фото © Nikolaj Jakobsen
Деревянная жилая башня Kajstaden Фото © Nikolaj Jakobsen
Деревянная жилая башня Kajstaden
Фото © Nikolaj Jakobsen
Деревянная жилая башня Kajstaden Фото © Nikolaj Jakobsen
Деревянная жилая башня Kajstaden
Фото © Nikolaj Jakobsen
Деревянная жилая башня Kajstaden Фото © Nikolaj Jakobsen
Деревянная жилая башня Kajstaden
Фото © Nikolaj Jakobsen
Деревянная жилая башня Kajstaden Фото © Nikolaj Jakobsen
Деревянная жилая башня Kajstaden
Фото © Nikolaj Jakobsen
Деревянная жилая башня Kajstaden
Деревянная жилая башня Kajstaden
Фото © Nikolaj Jakobsen
Деревянная жилая башня Kajstaden
Деревянная жилая башня Kajstaden
Фото © Nikolaj Jakobsen
Деревянная жилая башня Kajstaden
Деревянная жилая башня Kajstaden
Фото © Nikolaj Jakobsen
Деревянная жилая башня Kajstaden
Деревянная жилая башня Kajstaden
Фото © Nikolaj Jakobsen
Деревянная жилая башня Kajstaden
Деревянная жилая башня Kajstaden
Фото © Nikolaj Jakobsen
Деревянная жилая башня Kajstaden Фото © C.F. Møller Architects
Деревянная жилая башня Kajstaden
Фото © C.F. Møller Architects
Деревянная жилая башня Kajstaden Фото © C.F. Møller Architects
Деревянная жилая башня Kajstaden
Фото © C.F. Møller Architects
Деревянная жилая башня Kajstaden Фото © C.F. Møller Architects
Деревянная жилая башня Kajstaden
Фото © C.F. Møller Architects
Деревянная жилая башня Kajstaden Фото © C.F. Møller Architects
Деревянная жилая башня Kajstaden
Фото © C.F. Møller Architects
Деревянная жилая башня Kajstaden Фото © C.F. Møller Architects
Деревянная жилая башня Kajstaden
Фото © C.F. Møller Architects
Деревянная жилая башня Kajstaden Фото © C.F. Møller Architects
Деревянная жилая башня Kajstaden
Фото © C.F. Møller Architects
Деревянная жилая башня Kajstaden Фото © C.F. Møller Architects
Деревянная жилая башня Kajstaden
Фото © C.F. Møller Architects
Деревянная жилая башня Kajstaden Фото © C.F. Møller Architects
Деревянная жилая башня Kajstaden
Фото © C.F. Møller Architects
Деревянная жилая башня Kajstaden
Деревянная жилая башня Kajstaden
© C.F. Møller Architects
Деревянная жилая башня Kajstaden
Деревянная жилая башня Kajstaden
© C.F. Møller Architects
Деревянная жилая башня Kajstaden
Деревянная жилая башня Kajstaden
© C.F. Møller Architects
Деревянная жилая башня Kajstaden
Деревянная жилая башня Kajstaden
© C.F. Møller Architects
Деревянная жилая башня Kajstaden
Деревянная жилая башня Kajstaden
© C.F. Møller Architects
Деревянная жилая башня Kajstaden
Деревянная жилая башня Kajstaden
© C.F. Møller Architects
Деревянная жилая башня Kajstaden
Деревянная жилая башня Kajstaden
© C.F. Møller Architects
Деревянная жилая башня Kajstaden
Деревянная жилая башня Kajstaden
© C.F. Møller Architects
Деревянная жилая башня Kajstaden
Деревянная жилая башня Kajstaden
© C.F. Møller Architects
Деревянная жилая башня Kajstaden
Деревянная жилая башня Kajstaden
© C.F. Møller Architects
Деревянная жилая башня Kajstaden
Деревянная жилая башня Kajstaden
© C.F. Møller Architects
Деревянная жилая башня Kajstaden © C.F. Møller Architects
Деревянная жилая башня Kajstaden
© C.F. Møller Architects
Деревянная жилая башня Kajstaden © C.F. Møller Architects
Деревянная жилая башня Kajstaden
© C.F. Møller Architects
Деревянная жилая башня Kajstaden © C.F. Møller Architects
Деревянная жилая башня Kajstaden
© C.F. Møller Architects
Деревянная жилая башня Kajstaden © C.F. Møller Architects
Деревянная жилая башня Kajstaden
© C.F. Møller Architects
Деревянная жилая башня Kajstaden © C.F. Møller Architects
Деревянная жилая башня Kajstaden
© C.F. Møller Architects