Размещено на портале Архи.ру (www.archi.ru)

18.03.2020

«Дом бездомных»

Нина Фролова
Объект:
Приют «Дом для бездомных»
Адрес:
Польша, None,
Мастерская:
xystudio

Католический приют для социально незащищенных людей в деревне на юго-востоке Польши построен по проекту бюро xystudio с бережным отношением к окружающей среде.

Заказчик приюта «Дом для бездомных» – благотворительный фонд Domy Wspólnoty Chleb Życia («Дома сообщества Хлеба жизни»), основанный в 2002 католической монахиней Малгожатой Хмелевской. Он борется с маргинализацией самых незащищенных слоев населения – малообеспеченных детей, молодежи, людей с особенностями здоровья. Фонд действует в Свентокшиском воеводстве, одном из беднейших в Польше. Именно там и построен приют, рассчитанный на людей одновременно выпавших из общественной структуры и имеющих проблемы со здоровьем – не настолько крупные, чтобы рассчитывать на место в государственном пансионате, но не позволяющие пользоваться системой ночлежек.
 

Приют «Дом для бездомных»
Приют «Дом для бездомных»
Фото © xystudio

Место для строительства – окраина деревни Янковице в гмине (коммуне) Ожарув, далеко от ближайшего города. Здание вписано в обсаженный старыми деревьями прямоугольник – бывшее школьное футбольное поле. Архитекторы, варшавское бюро xystudio, подчеркивают, что при реализации проекта ни одно дерево не пострадало.
 
Приют «Дом для бездомных»
Приют «Дом для бездомных»
Фото © xystudio

Из окон открываются идиллические виды, но не менее важен внутренний двор, создающий у обитателей ощущение защищенности. При этом его остекленные стены позволяют сотрудникам приюта следить за происходящим там: как поясняет сестра Хмелевская, ведь ее подопечные могут все. Кроме того, им всем нужен круглосуточный если не уход, то присмотр.
 
Приют «Дом для бездомных» Фото © One Light Studio
Приют «Дом для бездомных»
Фото © One Light Studio
Приют «Дом для бездомных» Фото © One Light Studio
Приют «Дом для бездомных»
Фото © One Light Studio
Приют «Дом для бездомных» Фото © One Light Studio
Приют «Дом для бездомных»
Фото © One Light Studio

Двор, скамьи для курения (эту привычку считают здесь проблемой меньшей по сравнению с остальными трудностями жителей приюта: она как минимум помогает их ре-социализации) и другие общественные зоны сделаны максимально привлекательными, чтобы способствовать общению, а спальни – хотя и уютными, но маленькими, чтобы днем там нечасто оставались. Стены двора по желанию сестры Хмелевской художник Марцин Чайя расписал жизнерадостной фреской «Времена года», чтобы избежать излишнего аскетизма. Кухня рассчитана на посильное участие в приготовлении пищи со стороны жителей приюта.
 
Приют «Дом для бездомных»
Приют «Дом для бездомных»
Фото © xystudio

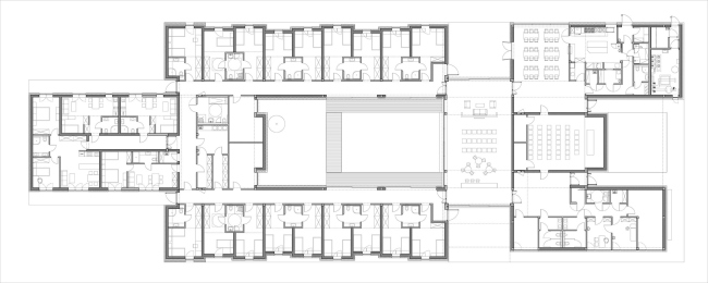
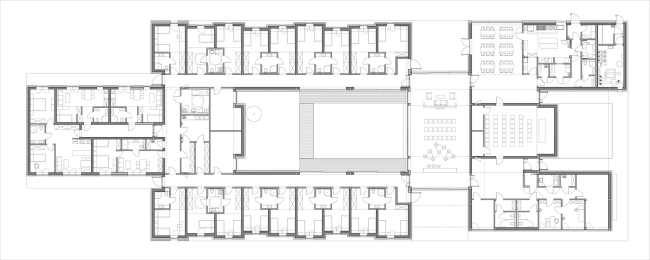
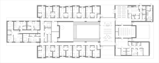
Одноэтажное здание (1485 м2) с волнообразной кровлей разделено стенами с фигурной кирпичной кладкой на три функциональные зоны. Ближе ко входу – часовня, административные помещения, залы для реабилитации, общая комната и столовая. Дальше идут 19 двухместных комнат с санузлом каждая, рассчитанных на разные физические возможности (хотя в целом в приюте – безбарьерная среда). В конце расположены три маленькие квартиры для сотрудников приюта, которые, так как это благотворительная католическая организация, видят в этом труде свой религиозный долг. Но этот труд в любом случае очень сложен, поэтому архитекторы сделали их часть здания изолированной, чтобы они могли там отдыхать, отрешившись от внешнего мира.
 
Приют «Дом для бездомных» Фото © xystudio
Приют «Дом для бездомных»
Фото © xystudio
Приют «Дом для бездомных» Фото © xystudio
Приют «Дом для бездомных»
Фото © xystudio
Приют «Дом для бездомных» Фото © xystudio
Приют «Дом для бездомных»
Фото © xystudio
Приют «Дом для бездомных» Фото © xystudio
Приют «Дом для бездомных»
Фото © xystudio
Приют «Дом для бездомных» Фото © xystudio
Приют «Дом для бездомных»
Фото © xystudio

Проект должен был быть недорогим в реализации и в эксплуатации, самодостаточным и экологичным. При строительстве были использованы кирпичи от разрушенной 200-летней мельницы, доски от сносимых старых амбаров, которых много в окрестностях: кроме «зеленого» эффекта, это также дало проекту тактильность, чтобы обитатели приюта легче к нему привыкали.
 
Приют «Дом для бездомных»
Приют «Дом для бездомных»
Фото © xystudio

Архитекторы признают, что не все эко-компоненты оказались подходящими для «Дома для бездомных»: так, тепловой насос не подошел по причине скачков напряжения в электросети и геологической ситуации. Газовое отопление оказалось для приюта гораздо проще в эксплуатации и намного дешевле. Солнечные коллекторы тоже оказались бы лишними: на собранную энергию в Янковице спроса нет.
 
Приют «Дом для бездомных» Фото © xystudio
Приют «Дом для бездомных»
Фото © xystudio
Приют «Дом для бездомных» Фото © xystudio
Приют «Дом для бездомных»
Фото © xystudio
Приют «Дом для бездомных» Фото © xystudio
Приют «Дом для бездомных»
Фото © xystudio
Приют «Дом для бездомных» Фото © xystudio
Приют «Дом для бездомных»
Фото © xystudio

Использованы теплые полы, вентиляция с рекуперацией тепла, хорошо изолированные стены и окна, экологическая система очистки сточных вод, цистерны для сбора дождевой воды: она идет на полив.
 
Приют «Дом для бездомных»
Приют «Дом для бездомных»
Фото © xystudio
Приют «Дом для бездомных»
Приют «Дом для бездомных»
Фото © xystudio
Приют «Дом для бездомных»
Приют «Дом для бездомных»
Фото © xystudio
Приют «Дом для бездомных»
Приют «Дом для бездомных»
Фото © xystudio
Приют «Дом для бездомных»
Приют «Дом для бездомных»
Фото © xystudio
Приют «Дом для бездомных»
Приют «Дом для бездомных»
Фото © xystudio
Приют «Дом для бездомных»
Приют «Дом для бездомных»
Фото © xystudio
Приют «Дом для бездомных»
Приют «Дом для бездомных»
Фото © xystudio
Приют «Дом для бездомных»
Приют «Дом для бездомных»
Фото © xystudio
Приют «Дом для бездомных»
Приют «Дом для бездомных»
© xystudio
Приют «Дом для бездомных»
Приют «Дом для бездомных»
© xystudio
Приют «Дом для бездомных»
Приют «Дом для бездомных»
© xystudio