Размещено на портале Архи.ру (www.archi.ru)

06.03.2020

Искушение традицией

Нина Фролова
Объект:
Дом Casa di Confine
Адрес:
Италия, None,
Мастерская:
Simone Subissati Architects

В вилле по проекту Simone Subissati Architects в итальянской области Марке соединены геометрия традиционных сельских домов и идеи радикальной архитектуры 1970-х.

Новый дом находится недалеко от столицы Марке Анконы, на краю коммуны Польвериджи, в деревеньке Рустико. Он построен на гребне холма, и отсутствие заборов делает его частью сельской местности: травы его участка кажутся продолжением ячменя, пшеницы, подсолнухов и бобов на окружающих полях.
Дом Casa di Confine
Дом Casa di Confine
Фото © Alessandro Magi Galluzzi
Архитекторы взяли за основу геометрию традиционного для Марке дома и «препарировали» ее с помощью идей радикальной итальянской архитектуры 1970-х, в частности, Ремо Бути (Remo Buti) и Джанни Петтены (Gianni Pettena), у которых глава бюро Симоне Субиссати учился во Флоренции. 
Дом Casa di Confine
Дом Casa di Confine
Фото © Alessandro Magi Galluzzi
Архитекторы подчеркивают, что избежали «искушения вернакулярностью», их дом полностью принадлежит современности, однако искушения традицией они точно не избежали. Даже бассейн у них намеренно похож на типичный местный резервуар для сбора дождевой воды.
Дом Casa di Confine
Дом Casa di Confine
Фото © Alessandro Magi Galluzzi
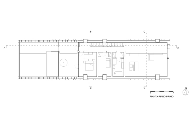
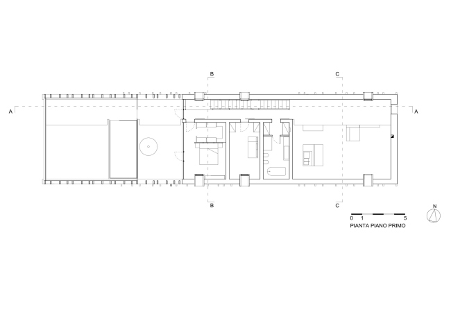
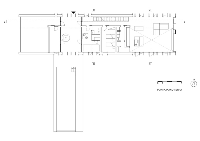
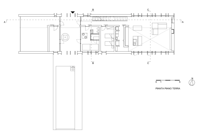
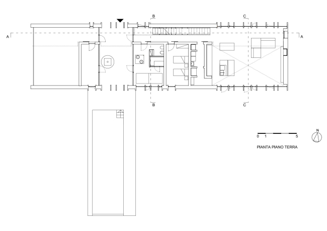
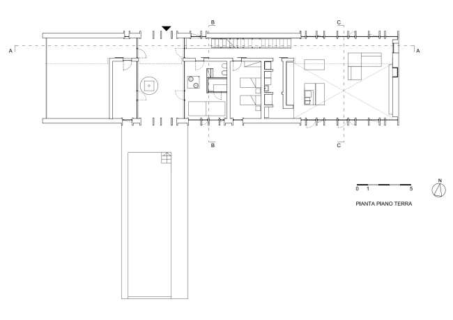
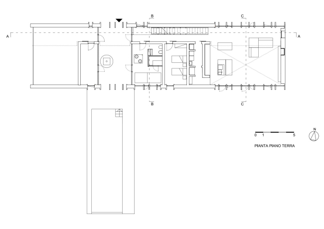
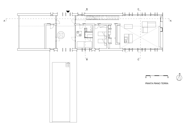
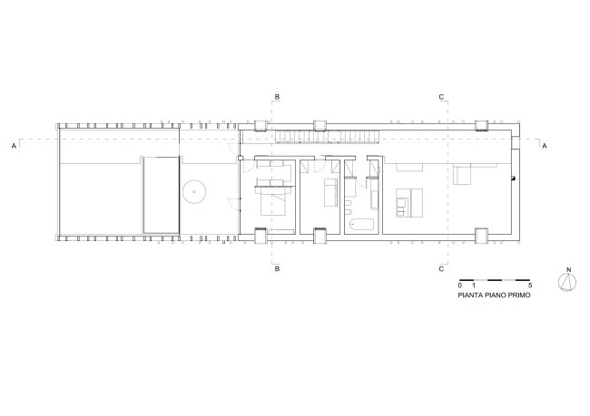
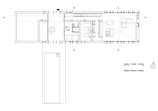
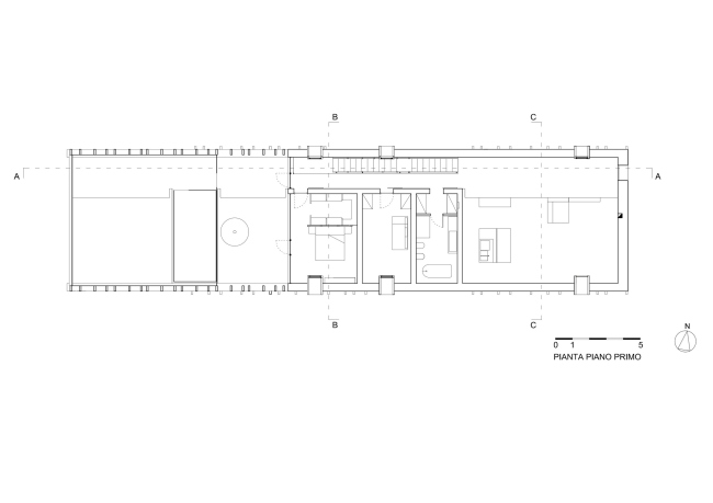
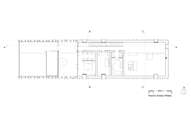
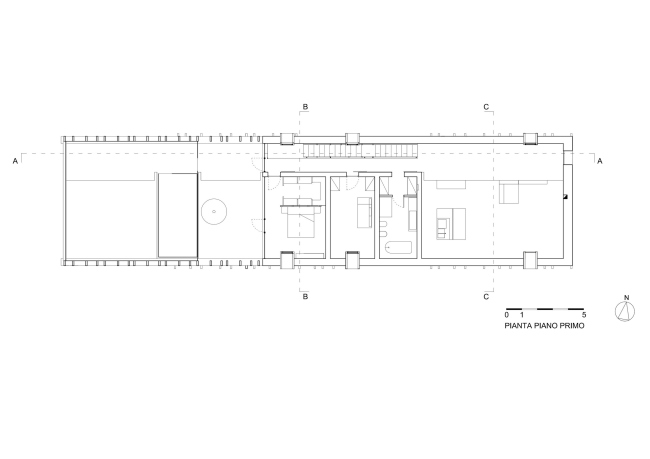
В результате возник Casa di Confine, «пограничный дом», где размываются границы между внутренним, частным, жилым, и внешним, «трудовым», открытым. Этому способствуют проем в центре дома, большие окна первого этажа, скрывающиеся в солнечный день за ставнями, полуоткрытое пространство на втором – с деревянным каркасом и полимерной мембраной. Балкон огражден всего лишь сеткой, как у курятника. Маленькие окна спален на втором этаже обрамлены зеркалами, поэтому выглядывая из них, все равно видишь немало.
Дом Casa di Confine
Дом Casa di Confine
Фото © Alessandro Magi Galluzzi
Ожидаема на этом фоне естественная вентиляция (искусственной нет), сбор дождевой воды, пассивное охлаждение и нагрев.
Дом Casa di Confine
Дом Casa di Confine
Фото © Alessandro Magi Galluzzi
Каркас у дома, кроме мембранной части, стальной; нижняя часть фасада – тоже стальная, покрыта лишь защищающим от влаги грунтом. Верх – самоочищающаяся штукатурка. Всю мебель, от стульев до кухонного гарнитура, спроектировал сам Симоне Субиссати, использовав в основном массив ясеня.
Дом Casa di Confine
Дом Casa di Confine
Фото © Alessandro Magi Galluzzi
Дом Casa di Confine
Дом Casa di Confine
Фото © Alessandro Magi Galluzzi
Дом Casa di Confine
Дом Casa di Confine
Фото © Alessandro Magi Galluzzi
Дом Casa di Confine
Дом Casa di Confine
Фото © Alessandro Magi Galluzzi
Дом Casa di Confine
Дом Casa di Confine
Фото © Alessandro Magi Galluzzi
Дом Casa di Confine
Дом Casa di Confine
Фото © Alessandro Magi Galluzzi
Дом Casa di Confine
Дом Casa di Confine
Фото © Alessandro Magi Galluzzi
Дом Casa di Confine
Дом Casa di Confine
Фото © Alessandro Magi Galluzzi
Дом Casa di Confine
Дом Casa di Confine
Фото © Alessandro Magi Galluzzi
Дом Casa di Confine
Дом Casa di Confine
Фото © Alessandro Magi Galluzzi
Дом Casa di Confine
Дом Casa di Confine
Фото © Alessandro Magi Galluzzi
Дом Casa di Confine
Дом Casa di Confine
Фото © Alessandro Magi Galluzzi
Дом Casa di Confine
Дом Casa di Confine
Фото © Alessandro Magi Galluzzi
Дом Casa di Confine
Дом Casa di Confine
© Simone Subissati Architects
Дом Casa di Confine
Дом Casa di Confine
© Simone Subissati Architects
Дом Casa di Confine
Дом Casa di Confine
© Simone Subissati Architects
Дом Casa di Confine
Дом Casa di Confine
© Simone Subissati Architects
Дом Casa di Confine
Дом Casa di Confine
© Simone Subissati Architects
Дом Casa di Confine
Дом Casa di Confine
© Simone Subissati Architects
Дом Casa di Confine
Дом Casa di Confine
© Simone Subissati Architects
Дом Casa di Confine
Дом Casa di Confine
© Simone Subissati Architects
Дом Casa di Confine
Дом Casa di Confine
© Simone Subissati Architects
Дом Casa di Confine
Дом Casa di Confine
© Simone Subissati Architects
Дом Casa di Confine
Дом Casa di Confine
© Simone Subissati Architects
Дом Casa di Confine
Дом Casa di Confine
© Simone Subissati Architects
Дом Casa di Confine
Дом Casa di Confine
© Simone Subissati Architects
Дом Casa di Confine. Эскиз Симоне Субиссати
Дом Casa di Confine. Эскиз Симоне Субиссати
© Simone Subissati Architects
Дом Casa di Confine. Эскиз Симоне Субиссати
Дом Casa di Confine. Эскиз Симоне Субиссати
© Simone Subissati Architects
Дом Casa di Confine. Эскиз Симоне Субиссати
Дом Casa di Confine. Эскиз Симоне Субиссати
© Simone Subissati Architects