Размещено на портале Архи.ру (www.archi.ru)

05.03.2020

Старое и новое на техасском солнце

Нина Фролова
Объект:
Комплекс Buda Mill & Grain Co.
Адрес:
США, None, Остин.
Мастерская:
Cushing Terrell

Промышленный комплекс начала XX века в пригороде столицы Техаса Остина, сохранив свой облик, вместил после реконструкции по проекту бюро Cushing Terrell рестораны, магазины, учреждения сервиса и общественные пространства.

Бывший участок компании Buda Mill & Grain Co. находится в пригороде Остина – городке Бьюда. Этот комплекс вмещает ангар с хлопкоочистительной машиной типа коттон-джин (1914), четыре элеватора, возвышающийся на землей шнековый транспортер для зерна и большой сарай для оборудования. Все они теперь или играют роль индустриального антуража, или приобрели новую функцию, а также дополнены тремя новыми корпусами.
 

Комплекс Buda Mill & Grain Co.
Комплекс Buda Mill & Grain Co.
Фото © Peter Molick

В результате получился комплекс общей площадью 2500 м2, занятый кафе, магазинами, салоном красоты и фитнес-центром, а также пространствами для собраний и общественными зонами.
 
Комплекс Buda Mill & Grain Co.
Комплекс Buda Mill & Grain Co.
Фото © Peter Molick

Архитекторы стремились сохранить облик промышленного объекта. Типичной для их подхода была реконструкция «Большого» – сарая для оборудования со стальной конструкцией (560 м2). Первую его ячейку превратили в крыльцо «техасского масштаба», следующую – остеклили, особое внимание уделив качеству этой прозрачной преграды. Профили между стеклянными панелями сзади поддерживают стальные опоры, которые раньше были частью каркаса сарая, но при реконструкции оказались лишними.
 
Комплекс Buda Mill & Grain Co.
Комплекс Buda Mill & Grain Co.
Фото © Peter Molick

Шнековый транспортер стал основой для новой вывески Buda Mill & Grain Co., дизайн которой также разработали архитекторы Cushing Terrell.
 
Комплекс Buda Mill & Grain Co.
Комплекс Buda Mill & Grain Co.
Фото © Peter Molick

Кирпичное здание для хлопкоочистительной машины было дополнено бетонными и стальными частями, причем весь удаленный старый кирпич был использован в других компонентах проекта.
 
Комплекс Buda Mill & Grain Co.
Комплекс Buda Mill & Grain Co.
Фото © Peter Molick

Тема соединения старого и нового продолжена в оформлении общественных пространств, защищенных от палящего техасского солнца; эта защита также обрамляет виды на исторические сооружения. Отдельного упоминания заслуживают подпорные бетонные стенки со следами дощатой опалубки.
Комплекс Buda Mill & Grain Co.
Комплекс Buda Mill & Grain Co.
Фото © Peter Molick
Комплекс Buda Mill & Grain Co.
Комплекс Buda Mill & Grain Co.
Фото © Peter Molick
Комплекс Buda Mill & Grain Co.
Комплекс Buda Mill & Grain Co.
Фото © Peter Molick
Комплекс Buda Mill & Grain Co.
Комплекс Buda Mill & Grain Co.
Фото © Peter Molick
Комплекс Buda Mill & Grain Co.
Комплекс Buda Mill & Grain Co.
Фото © Peter Molick
Комплекс Buda Mill & Grain Co.
Комплекс Buda Mill & Grain Co.
Фото © Peter Molick
Комплекс Buda Mill & Grain Co.
Комплекс Buda Mill & Grain Co.
Фото © Peter Molick
Комплекс Buda Mill & Grain Co.
Комплекс Buda Mill & Grain Co.
Фото © Peter Molick
Комплекс Buda Mill & Grain Co.
Комплекс Buda Mill & Grain Co.
Фото © Peter Molick
Комплекс Buda Mill & Grain Co.
Комплекс Buda Mill & Grain Co.
Фото © Peter Molick
Комплекс Buda Mill & Grain Co.
Комплекс Buda Mill & Grain Co.
Фото © Peter Molick
Комплекс Buda Mill & Grain Co.
Комплекс Buda Mill & Grain Co.
Фото © Peter Molick
Комплекс Buda Mill & Grain Co.
Комплекс Buda Mill & Grain Co.
Фото © Peter Molick
Комплекс Buda Mill & Grain Co.
Комплекс Buda Mill & Grain Co.
Фото © Peter Molick
Комплекс Buda Mill & Grain Co.
Комплекс Buda Mill & Grain Co.
Фото © Peter Molick
Комплекс Buda Mill & Grain Co.м Вид до начала реконструкции
Комплекс Buda Mill & Grain Co.м Вид до начала реконструкции
Фото © Peter Molick
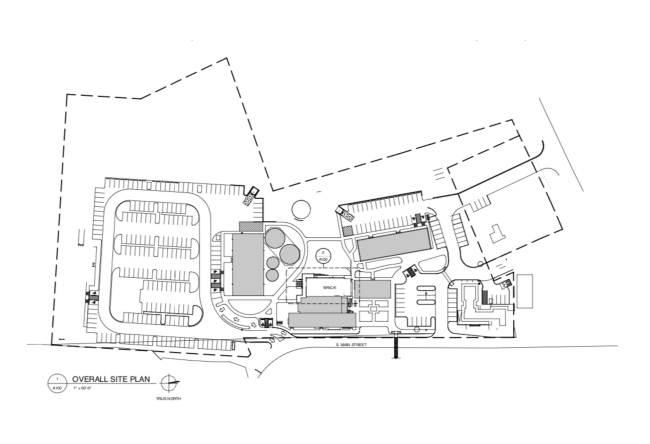
Комплекс Buda Mill & Grain Co.
Комплекс Buda Mill & Grain Co.
© Cushing Terrell
Комплекс Buda Mill & Grain Co. План сарая «Большой»
Комплекс Buda Mill & Grain Co. План сарая «Большой»
© Cushing Terrell