Размещено на портале Архи.ру (www.archi.ru)

02.03.2020

Огород на крыше

Нина Фролова
Объект:
Административное здание с теплицей на крыше
Адрес:
Германия, None, Оберхаузен.
Мастерская:
Kuehn Malvezzi

В центре Оберхаузена на западе Германии бюро Kuehn Malvezzi построило здание центра занятости с теплицей на крыше: там муниципалитет выращивает салат, зелень и клубнику, а институт Фраунгофера – исследует «закольцованные» производственные системы.

Новое здание центра занятости появилось в самом центре города, на площади Альтмаркт, где до сих пор шесть дней в неделю идет рыночная торговля. Оберхаузен – сравнительно молодой город, сформировавшийся в XIX–XX веках как крупный центр угледобывающей, металлургической, машиностроительной промышленности. В ходе роста он включил в свой состав находившиеся здесь древние замки и деревни, но сам древним, конечно, не стал.
 

Административное здание с теплицей на крыше
Административное здание с теплицей на крыше
Фото © hiepler, brunier

Однако у него все же есть исторический центр, как раз вокруг рыночной площади. Этот центр в конце XX века стал жертвой глубокого кризиса, в который погрузилась полностью зависевшая от тяжелой промышленности Рурская область. Помимо общего экономического упадка, на эту часть Оберхаузена негативно повлияло создание в 1990-е «Нового центра» на бывшей территории угольно-металлургического концерна Gutehoffnungshütte – с самым большим в Германии моллом Centro, парками развлечений и другими «точками притяжения».
 
Административное здание с теплицей на крыше
Административное здание с теплицей на крыше
Фото © hiepler, brunier

Идея соединить административное здание и «городскую ферму» родилась у городских властей в рамках программы по возрождению старого города. Этот первый в Германии подобный проект был разработан совместно с базирующимся в Оберхаузене институтом UMSICHT Общества Фраунгофера: он занимается технологиями в сфере окружающей среды, безопасности жизни и энергетики, в том числе – темой интеграции аграрного производства в здания.
 
Административное здание с теплицей на крыше
Административное здание с теплицей на крыше
Фото © hiepler, brunier

В 2016 конкурс на проект этого «гибрида» выиграло бюро Kuehn Malvezzi, которое подчеркнуло необычность соединения двух функций, центра занятости и теплицы, выбором материала. Офисная часть получила фасады из клинкера холодного темно-красного оттенка. Штабельная кладка выделяет его роль как облицовочного материала, а не «строительного», при этом кирпич – также дань местному контексту. Главные достопримечательности Оберхаузена, ратуша, главный склад Gutehoffnungshütte по проекту Беренса, ставший ныне музейным запасником, и другие заметные сооружения – именно кирпичные постройки начала XX века.
 
Административное здание с теплицей на крыше
Административное здание с теплицей на крыше
Фото © hiepler, brunier

По сравнению с клинкерными фасадами почти бесшовно продолжающая их теплица, которая полностью занимает площадь крыши, кажется особенно легкой и проницаемой. Это ощущение разделяет с ней и «висячий сад», ведущий к ней от уровня земли. «Трельяж», как называют его архитекторы, вмещает лестницу, грузовой лифт и платформы этажей со скамьями. Он связывает рыночную площадь, где торгуют овощами и фруктами, с местом их производства – теплицей. На кровле также размещена терраса с панорамным видом города.
 
Административное здание с теплицей на крыше
Административное здание с теплицей на крыше
Фото © hiepler, brunier

В теплице, спроектированной с помощью Haas Architekten, выращивают салат, зелень и клубнику с использованием метода «прилив-отлив», а также в наполненных водой емкостях и на грядках, собранных в подобие пирамид. Теплица принадлежит муниципалитету, который регулярно открывает ее двери для широкой публики и занимается реализацией ее продукции. Институт Фраунгофера там же занимается исследованиями, а зал на четвертом этаже используется для семинаров и собраний.
 
Административное здание с теплицей на крыше
Административное здание с теплицей на крыше
Фото © hiepler, brunier

Теплица и вертикальный сад породили ряд эко-компонентов проекта. Так, насыщенный углекислым газом и теплом воздух из системы вентиляции офисной части очень полезен растениям и потому поступает в парник; дождевую воду собирают для их полива, в то время как «серую» воду из раковин используют для ирригации декоративных посадок вертикального сада и в смывных бачках.
 
Административное здание с теплицей на крыше
Административное здание с теплицей на крыше
Фото © hiepler, brunier

Двор внутри П-образного здания Kuehn Malvezzi озеленен с учетом его восприятия с верхних этажей и кровли – как картины пуантилиста. Ландшафт формирует уплотненный гравий; сухие и влажные участки разделены по высоте до 60 см. Там растут кусты, многолетники, папоротники и травы, а также три ирги. В этот сад выходит остекленный вестибюль центра занятости, который контрастирует с клинкером снаружи своими бетонными поверхностями.
 
Административное здание с теплицей на крыше
Административное здание с теплицей на крыше
Фото © hiepler, brunier

Полностью проницаемый «трельяж» вертикального сада на нижнем уровне включает виноград японский, хмель обыкновенный, глицинию китайскую и гортензию черешковую: они укоренены на уровне земли. Более нежные виды лиан растут выше: акебия пятерная, актинидия острая, ломонос горный. Ландшафтной частью проекта занималось берлинское бюро atelier le balto.

В основе проекта лежит модульный принцип: вертикальные части конструкции из оцинкованной стали используются в переплетах окон центра занятости, в каркасе теплицы и «трельяже», платформы которого горизонтально точно скоординированы с подоконниками.
Административное здание с теплицей на крыше
Административное здание с теплицей на крыше
Фото © hiepler, brunier
Административное здание с теплицей на крыше
Административное здание с теплицей на крыше
Фото © hiepler, brunier
Административное здание с теплицей на крыше. Исследовательская зона теплицы
Административное здание с теплицей на крыше. Исследовательская зона теплицы
Фото © hiepler, brunier
Административное здание с теплицей на крыше. Офисы консультантов центра занятости на первом этаже
Административное здание с теплицей на крыше. Офисы консультантов центра занятости на первом этаже
Фото © hiepler, brunier
Административное здание с теплицей на крыше
Административное здание с теплицей на крыше
© Kuehn Malvezzi
Административное здание с теплицей на крыше
Административное здание с теплицей на крыше
© atelier le balto
Административное здание с теплицей на крыше
Административное здание с теплицей на крыше
© Kuehn Malvezzi
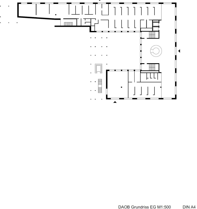
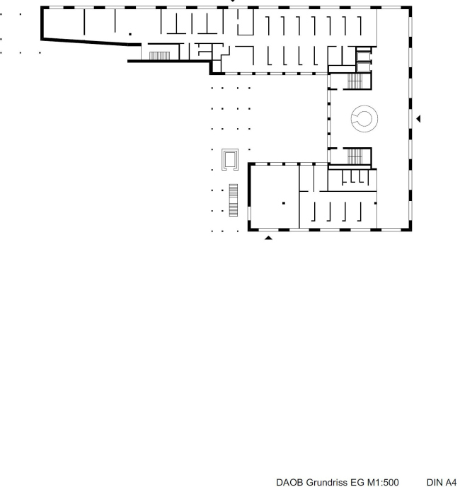
Административное здание с теплицей на крыше
Административное здание с теплицей на крыше
© Kuehn Malvezzi
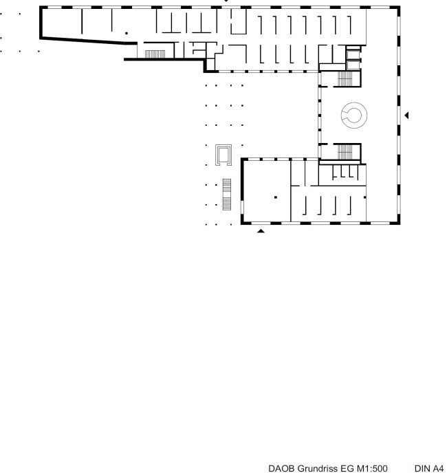
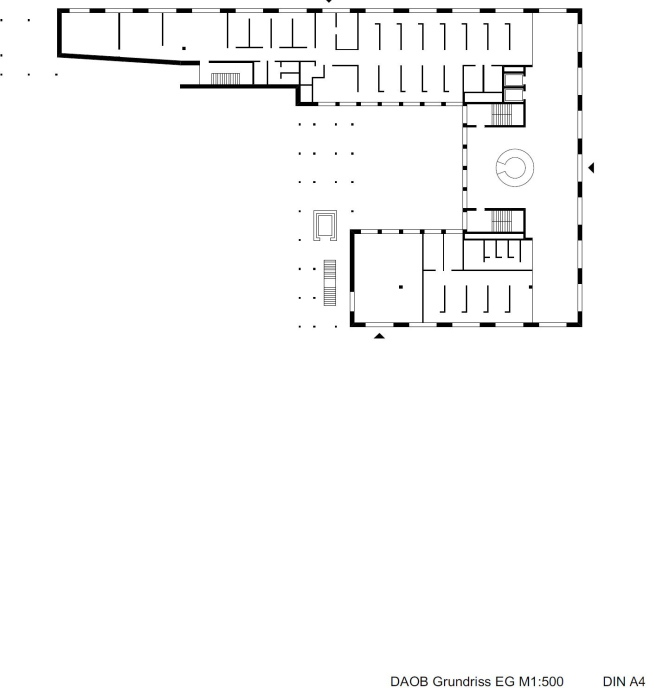
Административное здание с теплицей на крыше
Административное здание с теплицей на крыше
© Kuehn Malvezzi
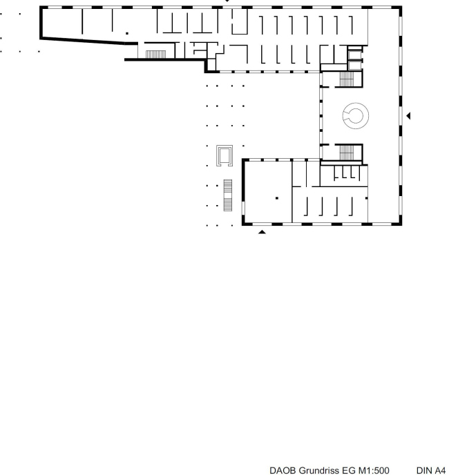
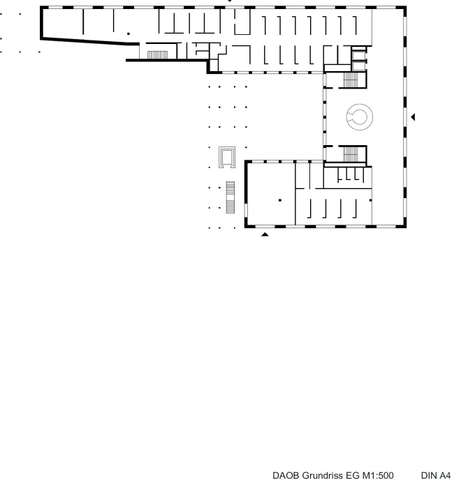
Административное здание с теплицей на крыше
Административное здание с теплицей на крыше
© Kuehn Malvezzi
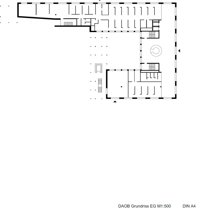
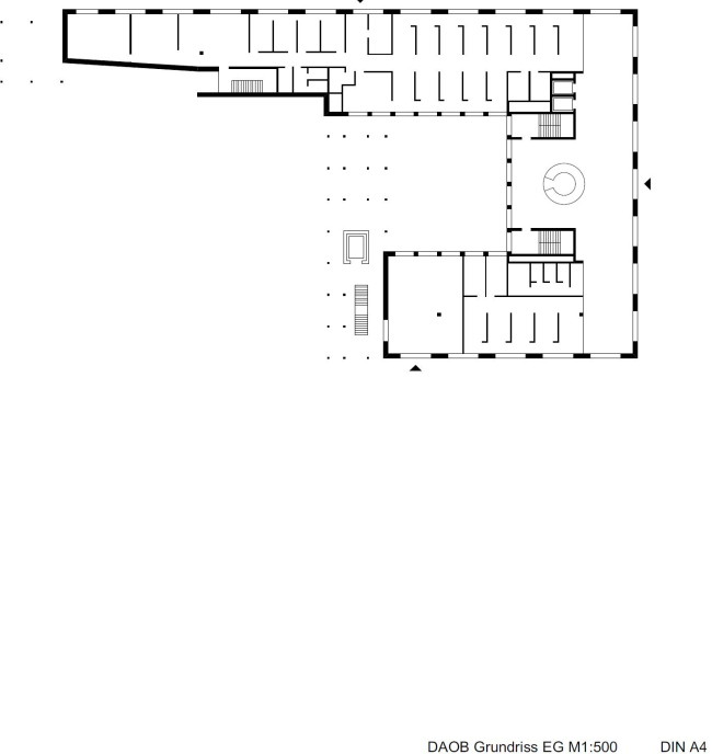
Административное здание с теплицей на крыше
Административное здание с теплицей на крыше
© Kuehn Malvezzi
Административное здание с теплицей на крыше
Административное здание с теплицей на крыше
© Kuehn Malvezzi